Морская Одиссея KIDO: образовательная гавань для дошкольников. Игровая зона
Фотография ©Татьяна Николаева. egodesign.studio
Морская Одиссея KIDO: образовательная гавань для дошкольников
информация:
-
статус
реализовано -
даты
— 2020 / — 2020 -
место
Ижевск ул. Максима Горького, 151 -
координаты
56.855600, 53.197315 -
функция
Образование и наука / Детский сад -
теги
send.project -
общая площадь
300 м2 -
этажность
2

Мария Ляпунова
Россияegodesign.studio
Россияавторский коллектив
Морская Одиссея KIDO: образовательная гавань для дошкольников. Игровая зона
Фотография ©Татьяна Николаева. egodesign.studio
Архи.ру об этом объекте:
Елена Петухова. Море фантазии
Студия EgoDesign разработала для сети частных детских садов KIDO в Ижевске дизайн-концепцию, которая должна способствовать творческому развитию детей за счет тематических игровых компонентов и оформления, индивидуального для каждой группы.
От редакцииПедагогика видимо, самая сложная наука, потому что до сих пор она не дала ответа на главный вопрос: как воспитать ребенка так, чтобы он вырос хорошим и счастливым человеком. Тысячелетиями человечество не слишком задумывалось над этой пр... читать дальшеМорская Одиссея KIDO: образовательная гавань для дошкольников. Учебная зона
Фотография ©Татьяна Николаева. egodesign.studio
история проекта:
Заказчиком проекта выступил детский досуговый парк «Кидо», который уже много сделал для развития детей. Новый замысел компания решила связать с дошкольным образованием. Планируется создать серию детских садов, расположенных в разных районах города, с перспективой дальнейшего выхода за его пределы.
описание:
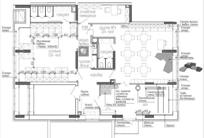
Серия детских садов «Кидо» задумывалась как сеть, расположенная в разных районах города. Концепция каждого сада напрямую связана с особенностями его окружения. Так, «Морская одиссея» появилась в жилом комплексе у берега искусственного водоема – здесь органично легла морская тема. Другой комплекс находится рядом с лесом, и для него была выбрана лесная тематика. Таким образом, каждая локация получает собственный характер и атмосферу. Все сады располагаются в помещениях жилых комплексов, переведённых в формат некоммерческого использования и адаптированных под нужды дошкольного образования. Это удобно и безопасно для жителей района.
Принципиальным моментом было то, что это частный детский сад с обязательным получением лицензии. А значит, проект требовал тщательной работы со строительными нормами и правилами (СНИПами, ГОСТами), строгого соблюдения требований к материалам. Помимо эстетики учитывалась пожарная безопасность и экологичность, ведь главные пользователи пространства – дети, а это особая аудитория с ещё неустойчивым иммунитетом и склонностью к аллергиям.
Конкретный сад расположен в двухэтажном помещении. С одной стороны, это даёт удобное функциональное зонирование, но с другой – лестница «съедает» много пространства и несёт риск для малышей. Поэтому в дальнейшем заказчик ориентировался на поиск одноуровневых площадей.
В интерьере использовано минимальное количество цветов: детям и так хватает фантазии для наполнения пространства яркими историями. Пространства трансформируемы, так как в одном зале проходят и занятия, и сон, и приём пищи. Мебель подобрана под каждую возрастную группу, каждая из которых получила имя морского обитателя. Эта тема нашла отражение в деталях оформления.
Особая гордость проекта – большие стеллажи с изображением рыб. Они присутствуют в каждой группе и стали узнаваемым элементом фирменного стиля садов «Кидо».
Хочешь, я помогу оформить этот текст в более краткий и «презентационный» формат, как архитектурное описание объекта?