RSS
Современный дом-павильон © АРХ студия Антона Никитина

Современный дом-павильон

информация:

  • статус
    реализовано
  • даты
    10.2015 — 03.2016 / 03.2015 — 09.2016
  • region=Ленинградская обл., area= address= Сертолово-Белоостров country_t=Россия city_t=
    место
    Ленинградская обл., Сертолово-Белоостров
  • координаты
    60.154446, 30.083933
  • функция
    Жилой / дом
  • общая площадь
    160 м2
ARCH studio of Anton Nikitin / Россия
Современный дом-павильон © АРХ студия Антона Никитина
Современный дом-павильон © АРХ студия Антона Никитина

описание:

Архитектура дома имеет два доминирующих элемента: первый – большие окна, делающие дом прозрачным насквозь, выполненные из клееного бруса по технологии фахверк, и второй – мощные продольные стены из газобетона, отделанные камнем внутри и снаружи.

По композиции дом разбит на две части: столовую-гостиную с высокими потолками и большими окнами и блок спален и технических помещений. Эти два блока явно читаются и на фасадах и в плане.

Архитектором была удачна подобрана форма дома, большее количество деталей и изгибов перегрузили бы дом, а упрощение углов и формы сделали бы его слишком обычным. Коттедж с большими окнами не так сложен в постройке, а благодаря современным стеклам хорошо сохраняет тепло.

Современный дом-павильон © АРХ студия Антона Никитина
Современный дом-павильон © АРХ студия Антона Никитина
Современный дом-павильон © АРХ студия Антона Никитина
Современный дом-павильон © АРХ студия Антона Никитина
Современный дом-павильон © АРХ студия Антона Никитина
Современный дом-павильон © АРХ студия Антона Никитина
Современный дом-павильон © АРХ студия Антона Никитина
Современный дом-павильон © АРХ студия Антона Никитина
Современный дом-павильон © АРХ студия Антона Никитина
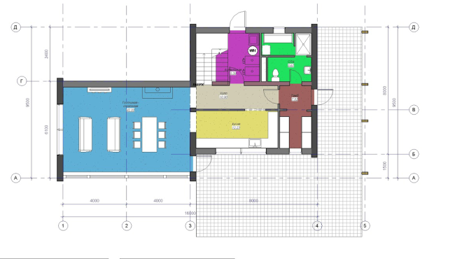
Современный дом-павильон. План 1-го этажа © АРХ студия Антона Никитина
Современный дом-павильон. 3D схема несущих стен, проемов и армопоясов © АРХ студия Антона Никитина
Современный дом-павильон. Клееные конструкции © АРХ студия Антона Никитина

Архитекторы – партнеры Архи.ру:

  • Илья Машков
  • Александра Кузьмина
  • Марина Егорова
  • Григориос Гавалидис
  • Олег Шапиро
  • Ростислав Цайзер
  • Василий Крапивин
  • Андрей Асадов
  • Михаил Давыдов
  • Юлиана Княжевская
  • Степан Липгарт
  • Станислав Белых
  • Евгений Новосадюк
  • Наталья Сидорова
  • Сергей Кузнецов
  • Алексей Гинзбург
  • Владимир Плоткин
  • Дмитрий Буш
  • Анастасия Абашева
  • Георгий Трофимов
  • Владислав Андреев
  • Александр Скокан
  • Иван Кожин
  • Антон Надточий
  • Дмитрий Ликин
  • Игорь Шварцман
  • Николай Кикава
  • Валерий Каняшин
  • Евгений Подгорнов
  • Юлия Солдатенкова
  • Сергей Чобан
  • Дмитрий Остроумов
  • Юлий Борисов
  • Игорь Членов
  • Михаил Канунников
  • Григорий Мустафин
  • Николай Переслегин
  • Сергей Скуратов
  • Андрей Романов
  • Екатерина Кузнецова
  • Олег Мединский
  • Павел Андреев
  • Андрей Михайлов
  • Александр Котенков
  • Полина Воеводина
  • Константин Ходнев
  • Зураб Басария
  • Никита Явейн
  • Ерлан Бекмухамедов
  • Всеволод Медведев
  • Юлия Тряскина
  • Александр Асадов
  • Вера Бутко
  • Елена Пучкова
  • Даниил Лоренц
  • Антон Яр-Скрябин
  • Энди Сноу
  • Сергей Переслегин
  • Алексей Орлов
  • Дмитрий Сухов
  • Татьяна Зульхарнеева
  • Виталий Лутц
  • Раис Баишев
  • Андрей Гнездилов
  • Александр Самарин
  • Сергей Никешкин
  • Евгений Зеленов
  • Сергей Труханов
  • Наталия Шилова
  • Тимур Абдуллаев
  • Екатерина Абдуллаева
  • Маргарита Авдышева
  • Левон Айрапетов
  • Александр Аношкин
  • Алексей Афоничкин
  • Владислав Бек-Булатов
  • Антон Белов
  • Татьяна Бузулукова
  • Петр Васильев
  • Данило Вукосавлевич
  • Алина Георгиевская
  • Павел Гордеев
  • Илья Гринберг
  • Никита Демидов
  • Никита Дергунов
  • Наталья Жилкина
  • Алексей Зародов
  • Екатерина Зырина
  • Алексей Ильин
  • Дарья Ильина
  • Олег Карлсон
  • Алексей Кибкало
  • Денис Кувшинников
  • Анна Куликова
  • Алексей Курков
  • Данил Куров
  • Мария Кутай
  • Евгений Кутай
  • Иван Кычкин
  • Антон Ладыгин
  • Дмитрий Лапин
  • Илья Левянт
  • Катерина Левянт
  • Борис Левянт
  • Валерий Лукомский
  • Антон Лукомский
  • Екатерина Ляпунова
  • Сергей Марков
  • Елена Мерцалова
  • Николай Миловидов
  • Станислав Михаловский
  • Олеся Могилевская
  • Мария Николаева
  • Дмитрий Овчаров
  • Виктор Перов
  • Алексей Полищук
  • Роман Пономарёв
  • Валерия Преображенская
  • Виктория Раубо
  • Василий Рыбаков
  • Николай Рыбаков
  • Мария Салех
  • Александр Стариков
  • Илья Уткин
  • Елисей Чакан
  • Олег Шурыгин
  • Дмитрий Шурыгин

Проект из каталога (случайный выбор)

Индивидуальный жилой дом, 1100 кв.м
Арсений Леонович, Никита Токарев, 2007 – 2007
Индивидуальный жилой дом, 1100 кв.м

Постройки и проекты (новые записи):

  • Навесы Ленинградского вокзала
  • Общежития Новосибирского государственного университета (НГУ)
  • Детский сад в квартале «СЕТ»
  • Клубный дом на Садовнической, 10
  • Торговый центр в ЖК «Одинбург»
  • Многофункциональный комплекс «Тушино»
  • Omni Tower
  • ОМ Ботанический
  • ЖК Амарант

Новости российской архитектуры:

Сезонные настроения
04.04.2026

Сезонные настроения

Кристина Лазарева, Надежда Голубева