RSS
Пляж Заря. Вид с птичьего полета
@ V6 GROUP

Пляж Заря

информация:

  • статус
    проект
  • даты
    2024
  • region= area= address=Курортный проспект, 105/8 country_t=Россия city_t=Сочи
    место
    Сочи Курортный проспект, 105/8
  • координаты
    43.547638, 39.780073
  • функция
    Ландшафт / Благоустройство территории
  • теги
    send.project
  • площадь застройки
    1 240 м2
  • общая площадь
    2 103 м2
  • высота
    7.95
  • этажность
    2
  • строительный объем
    7 360 м3
Россия

авторский коллектив

ГАП концептуального проекта – Дарья Виноградова, Олег Мерзляков; архитектор-концептуалист – Евгения Зазирная; ландшафтный дизайн – Наталия Дубровина; визуализатор – Давид Арабян; управляющая проектом – Светлана Шидловская

партнеры, заказчики, смежники

Заказчик - NDA

награды:

    Смотр – конкурс Нижегородской архитектурной школы НАШ 2025 (Нижний Новгород) – cеребряный диплом в номинации «Открытые общественные пространства»

    Архитавр 2025 (Ростов- на- Дону) – серебряный диплом в номинации «Общественные пространства»

    РАФ 2025 (Ростов- на- Дону) – диплом II cтепени  в номинации «Общественные пространства»

     
Пляж Заря. Вид на интегрированный бассейн бар
@ V6 GROUP

Архи.ру об этом объекте:

07.05.2026

«Заря» над волнами

В проекте реконструкции муниципального пляжа «Заря» в Сочи от бюро V6 GROUP – террасирование, «текучий» бетон и открытый бассейн стали ответами на главные вызовы курорта: нехватку места, капризы моря и модернистскую айдентику местной инфраструктуры.

Территориально пляж Заря расположен в районе санатория Актер , недалеко от Мацесты. Узкая береговая линия, полуразрушенные бетонные волнорезы в рыжих подтёках и безнадёжно устаревшая инфраструктура. В Сочи уже есть удачный опыт реконструкции, напр...   читать дальше
Пляж Заря. Вид на правый бун
@ V6 GROUP

история проекта:

Проект появился как заказ на комплексное развитие территории как части девелоперского проекта. Для команды V6 GROUP это был первый пляжный объект в портфолио и возможность собрать собственный подход к курортной инфраструктуре. Работа шла вокруг конкретного участка существующего пляжа «Заря» и была сосредоточена на организации сценариев отдыха и коммерчески устойчивой эксплуатации.

описание:

Пляж «Заря» – проект V6 GROUP для прибрежной территории в Сочи. Главная задача – переосмылить пляж как цельное курортное пространство, удобное для посетителя и понятное в эксплуатации.

Команда V6 предложила многоуровневую структуру. Верхние уровни выделены под кафе, бары и террасы для загара и отдыха. Нижний уровень – душевые, раздевалки, зоны отдыха, шезлонги и технические помещения. В архитектурный сценарий включены волнорезы: они перестают быть пустыми инженерными элементами и получают функцию общественных площадок.

Отдельный элемент проекта – открытый бассейн. Для сочинского побережья это рабочее решение: он расширяет сезон использования объекта, делает площадку удобнее для семей с детьми и добавляет сценарию отдыха гибкость в дни, когда море неспокойно.

Материалы подобраны под морской климат и интенсивную нагрузку. Шлифованный бетон работает на долговечность, имитация дерева добавляет теплоту и уют пространству, ажурные звуковые экраны и навесы создают тень и блокируют шумы от железной дороги. Для южного объекта это ключевой вопрос комфорта.

Проект важен для нас ещё и как первый пляжный объект в портфолио V6 GROUP. Он позволил сформулировать подход к курортной инфраструктуре, в которой архитектура одновременно решает задачи образа, эксплуатации и коммерческой эффективности.
Пляж Заря. Общий вид с моря
@ V6 GROUP
Пляж Заря. Входной тоннель
@ V6 GROUP
Пляж Заря. Барная стойка
@ V6 GROUP
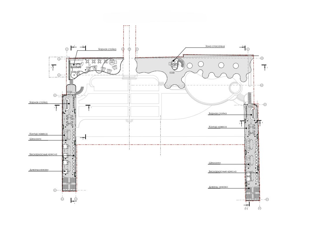
Пляж Заря. Функциональное зонирование
@ V6 GROUP
Пляж Заря. Зонирование на территории
@ V6 GROUP
Пляж Заря. Фасад в осях
@ V6 GROUP

Архитекторы – партнеры Архи.ру:

  • Григориос Гавалидис
  • Юлиана Княжевская
  • Сергей Чобан
  • Игорь Шварцман
  • Всеволод Медведев
  • Степан Липгарт
  • Евгений Подгорнов
  • Александр Котенков
  • Анастасия Абашева
  • Андрей Гнездилов
  • Ростислав Цайзер
  • Сергей Никешкин
  • Полина Воеводина
  • Дмитрий Сухов
  • Дмитрий Буш
  • Раис Баишев
  • Валерий Каняшин
  • Виталий Лутц
  • Евгений Зеленов
  • Илья Машков
  • Татьяна Зульхарнеева
  • Василий Крапивин
  • Владимир Плоткин
  • Юлия Солдатенкова
  • Борис Воскобойников
  • Михаил Канунников
  • Николай Кикава
  • Марина Егорова
  • Александр Самарин
  • Сергей Переслегин
  • Наталья Сидорова
  • Константин Ходнев
  • Ерлан Бекмухамедов
  • Андрей Михайлов
  • Александр Асадов
  • Юлия Тряскина
  • Никита Явейн
  • Георгий Трофимов
  • Александра Кузьмина
  • Даниил Лоренц
  • Григорий Мустафин
  • Юлий Борисов
  • Екатерина Кузнецова
  • Наталия Шилова
  • Сергей Скуратов
  • Антон Яр-Скрябин
  • Дмитрий Ликин
  • Энди Сноу
  • Иван Кожин
  • Сергей Кузнецов
  • Олег Шапиро
  • Сергей Труханов
  • Олег Мединский
  • Зураб Басария
  • Александр Скокан
  • Игорь Членов
  • Станислав Белых
  • Вера Бутко
  • Мария Ахременкова
  • Алексей Орлов
  • Елена Пучкова
  • Владислав Андреев
  • Михаил Давыдов
  • Евгений Новосадюк
  • Андрей Асадов
  • Николай Переслегин
  • Павел Андреев
  • Дмитрий Остроумов
  • Антон Надточий
  • Андрей Романов
  • Тимур Абдуллаев
  • Екатерина Абдуллаева
  • Маргарита Авдышева
  • Левон Айрапетов
  • Александр Аношкин
  • Алексей Афоничкин
  • Владислав Бек-Булатов
  • Антон Белов
  • Татьяна Бузулукова
  • Петр Васильев
  • Данило Вукосавлевич
  • Андрей Вырва
  • Алина Георгиевская
  • Павел Гордеев
  • Илья Гринберг
  • Никита Демидов
  • Никита Дергунов
  • Наталья Жилкина
  • Алексей Зародов
  • Екатерина Зырина
  • Алексей Ильин
  • Дарья Ильина
  • Олег Карлсон
  • Алексей Кибкало
  • Денис Кувшинников
  • Анна Куликова
  • Алексей Курков
  • Данил Куров
  • Мария Кутай
  • Евгений Кутай
  • Иван Кычкин
  • Антон Ладыгин
  • Дмитрий Лапин
  • Борис Левянт
  • Илья Левянт
  • Катерина Левянт
  • Валерий Лукомский
  • Антон Лукомский
  • Екатерина Ляпунова
  • Иса Магомедов
  • Сергей Марков
  • Елена Мерцалова
  • Николай Миловидов
  • Станислав Михаловский
  • Сергей Мичурин
  • Олеся Могилевская
  • Филипп Никандров
  • Мария Николаева
  • Дмитрий Овчаров
  • Сергей Пергаев
  • Виктор Перов
  • Алексей Полищук
  • Роман Пономарёв
  • Валерия Преображенская
  • Виктория Раубо
  • Василий Рыбаков
  • Николай Рыбаков
  • Мария Салех
  • Александр Стариков
  • Илья Уткин
  • Елисей Чакан
  • Евгения Чернышева
  • Бориша Чорович
  • Олег Шурыгин
  • Дмитрий Шурыгин

Проект из каталога (случайный выбор)

Постройки и проекты (новые записи):

  • Многофункциональный спортивный клуб Jet Arena
  • Павильон  Идеал
  • Флагманская кофейня Дринкит
  • Гостиница в Чите
  • ЖК Квартал 64
  • Деловое пространство «ПЛЭЙН»
  • Конкурсный проект ФИЦ / ТПО «Резерв»
  • Porta
  • Детский сад на 200 мест в Жилино-1

Новости российской архитектуры: