RSS
Реконструкция объекта незавершенного строительства в гостиницу 4*
© Godekan

Реконструкция объекта незавершенного строительства в гостиницу 4*

информация:

  • статус
    в процессе реализации
  • даты
    — 01.2023 / 2024
  • region= area= address=улица Шеболдаева, 49 ЗУ2 country_t=Россия city_t=Дербент
    место
    Дербент улица Шеболдаева, 49 ЗУ2
  • координаты
    42.025083, 48.330574
  • функция
    Туризм/здравоохранение / Отель
  • площадь участка
    1,208785 га
  • общая площадь
    15 201,47 м2
  • высота
    19
  • этажность
    4-5
  • строительный объем
    57 353,74 м3
  • Количество номеров - 155
  • кол-во машиномест
    84
Алик Гусейнов
Godekan

авторский коллектив

Иса Магомедов, Алик Гусейнов, Аида Мусаева 
Смежники: Артур Султанбеков, Тагир Магомедтагиров, Мугудин Мусиев 

партнеры, заказчики, смежники

Заказчик: ГОСТЕПРИИМНЫЙ ДАГЕСТАН
Реконструкция объекта незавершенного строительства в гостиницу 4*
© Godekan
Реконструкция объекта незавершенного строительства в гостиницу 4*
© Godekan

описание:

Гостиничный комплекс на побережье Каспийского моря представляет собой результат реконструкции существующего здания.

В основе архитектурной стратегии – точная работа с функцией и планировочной логикой. Благодаря деликатному подходу к существующим конструкциям удалось сохранить несущую основу и разместить номерной фонд в 155 номеров.

Пространственные сценарии были адаптированы под современные требования гостиничного размещения: каждый элемент – от конфигурации номерного фонда до логистики обслуживания – отвечает уровню международных операторов. Консультантом на всех этапах выступала команда ADHM, которая возьмет на себя управление объектом.

Фасады решены в спокойной нейтральной палитре, подчеркивающей масштаб, статус и пропорции здания. Морской фасад выполнен в сочетании композитных и HPL-панелей с разной текстурой. Витражное остекление создает комфортное видовое раскрытие на море.

Интерьеры выполнены в эстетике неотрадиционного дизайна с локальными акцентами: светлые фактуры, лаконичная мебель и ковры с национальным орнаментом создают теплую атмосферу. Решение подчеркивает связь с местом и отвечает современному запросу на аутентичность туристического пространства.

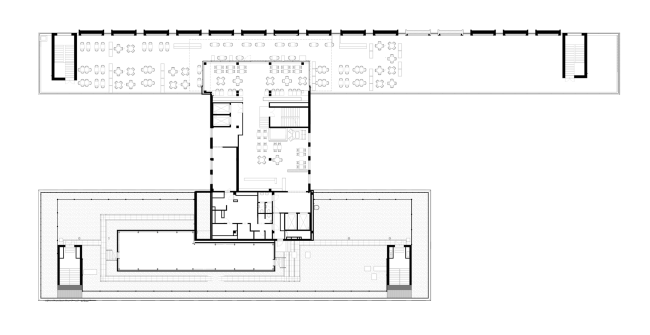
В комплексе предусмотрены все элементы для полноценного отдыха: 25-метровый бассейн с видом на море, благоустроенная территория, а на верхнем этаже – ресторан с панорамным видом на Каспий.

Архитектура комплекса сопровождает гостя: от входа в лобби до вида из окна – каждый элемент работает на ощущение уюта, достоинства и покоя.

архитектурно-планировочные решения:

Конструкции
Фасадные конструкции. Навесная фасадная система
Кровля. Система плоской эксплуатируемой кровли
Оконные системы. Алюминиевая витражная система
 
Инженерия
Вентиляция и кондиционирование. Принудительная система вентиляции, ДУ, ДП, Чиллер-фанкойл
Лифты.4 лифта грузоподъемностью 1000 кг
Электронные коммуникации, «интеллектуальный дом». Система управления отелем – Умный отель
Энергосберегающие технологии. Энергоэффективная система управления отелем – Умный отель

Интерьер
Пол. Наливной пол, керамогранит, ковролин
Стены. Кирпич, Акустические перегородки
Потолок. Открытые монолитные конструкции, Подшивка ГКЛ
Светильники. Подвесное световое оборудование, трековая система





 

Реконструкция объекта незавершенного строительства в гостиницу 4*
© Godekan
Реконструкция объекта незавершенного строительства в гостиницу 4*
© Godekan
Реконструкция объекта незавершенного строительства в гостиницу 4*
© Godekan
Реконструкция объекта незавершенного строительства в гостиницу 4*
© Godekan
Реконструкция объекта незавершенного строительства в гостиницу 4*
© Godekan
Реконструкция объекта незавершенного строительства в гостиницу 4*
© Godekan
Реконструкция объекта незавершенного строительства в гостиницу 4*
© Godekan
Реконструкция объекта незавершенного строительства в гостиницу 4*
© Godekan
Реконструкция объекта незавершенного строительства в гостиницу 4*
© Godekan
Реконструкция объекта незавершенного строительства в гостиницу 4*
© Godekan
Реконструкция объекта незавершенного строительства в гостиницу 4*
© Godekan
Реконструкция объекта незавершенного строительства в гостиницу 4*
© Godekan
Реконструкция объекта незавершенного строительства в гостиницу 4*
© Godekan
Реконструкция объекта незавершенного строительства в гостиницу 4*
© Godekan
Реконструкция объекта незавершенного строительства в гостиницу 4*
© Godekan
Реконструкция объекта незавершенного строительства в гостиницу 4*
© Godekan
Реконструкция объекта незавершенного строительства в гостиницу 4*
© Godekan
Реконструкция объекта незавершенного строительства в гостиницу 4*
© Godekan
Реконструкция объекта незавершенного строительства в гостиницу 4*
© Godekan
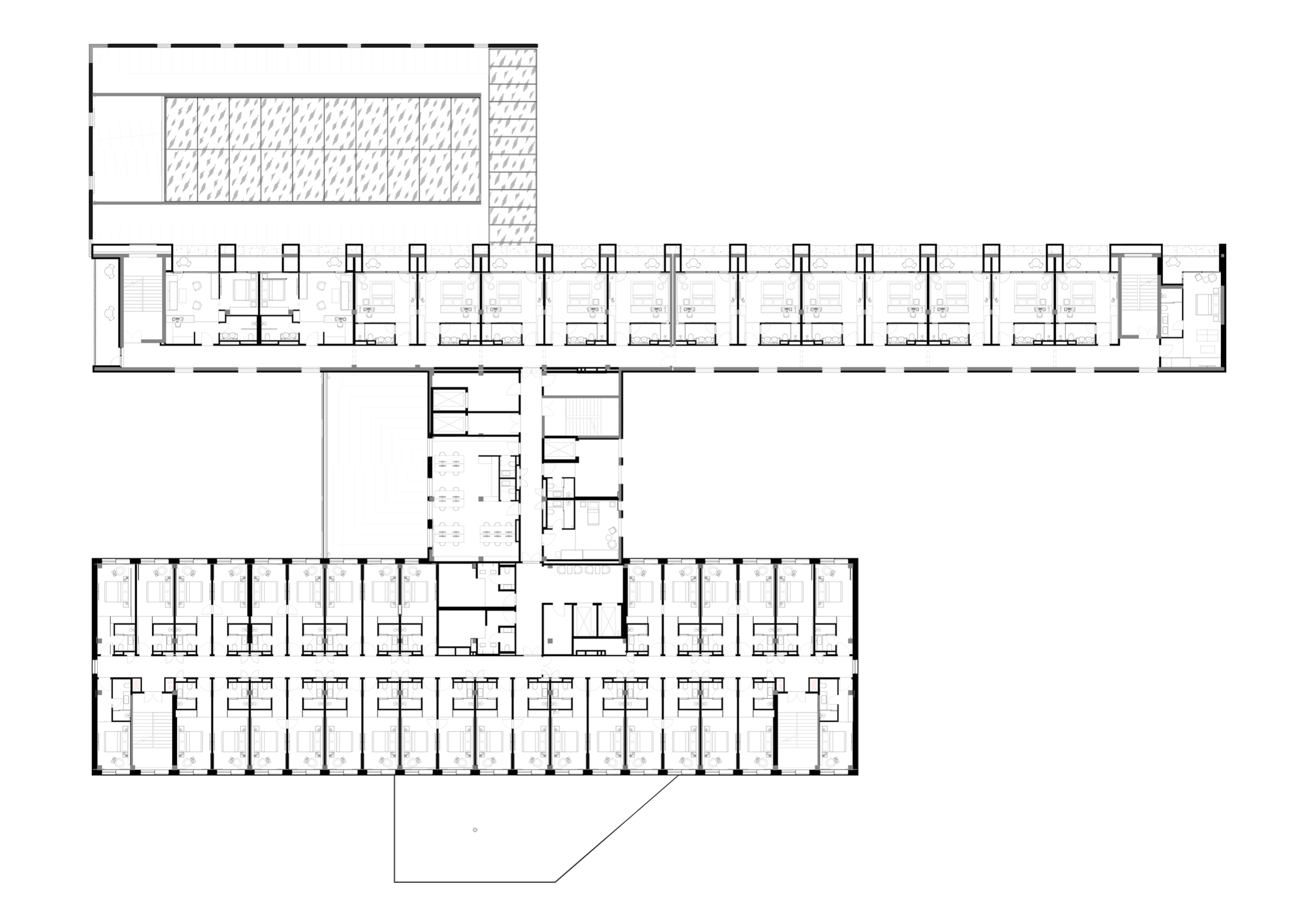
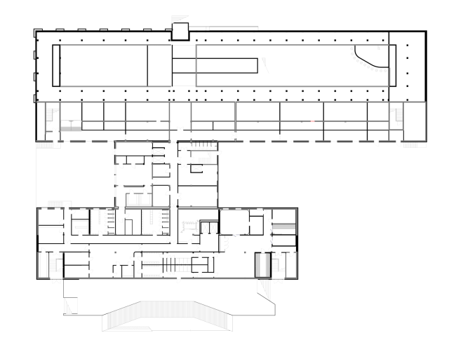
Реконструкция объекта незавершенного строительства в гостиницу 4*. План -1 этажа
© Godekan
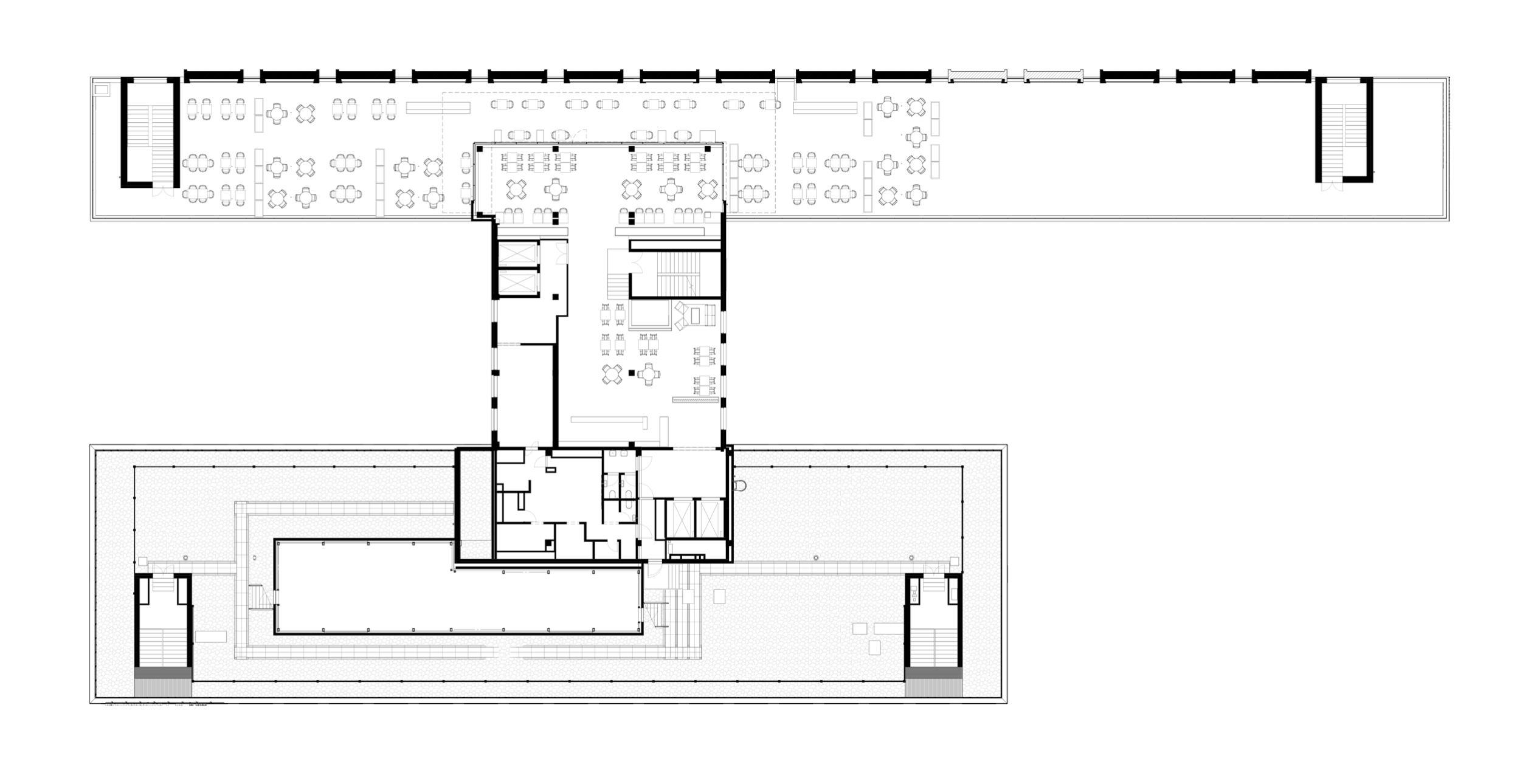
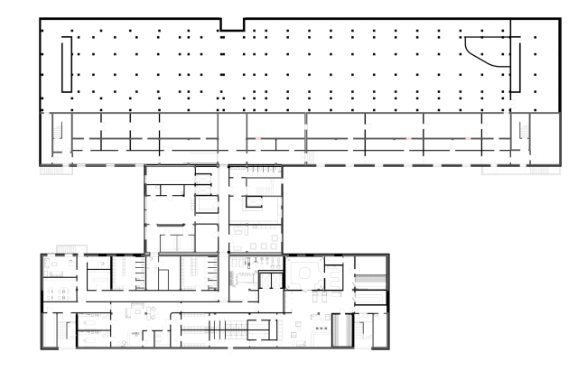
Реконструкция объекта незавершенного строительства в гостиницу 4*. План цокольного этажа
© Godekan
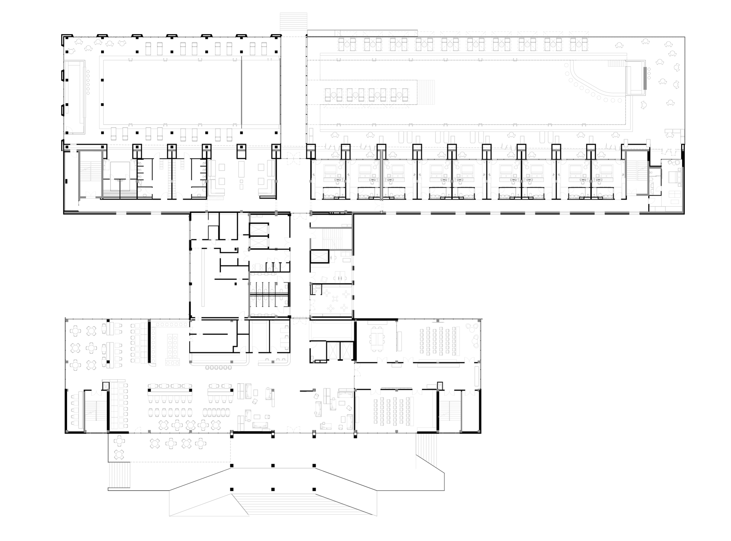
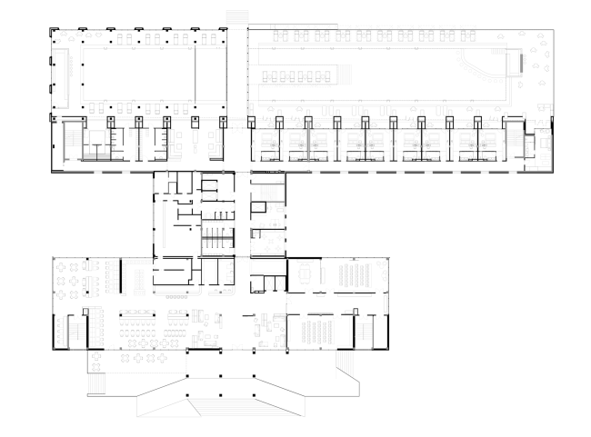
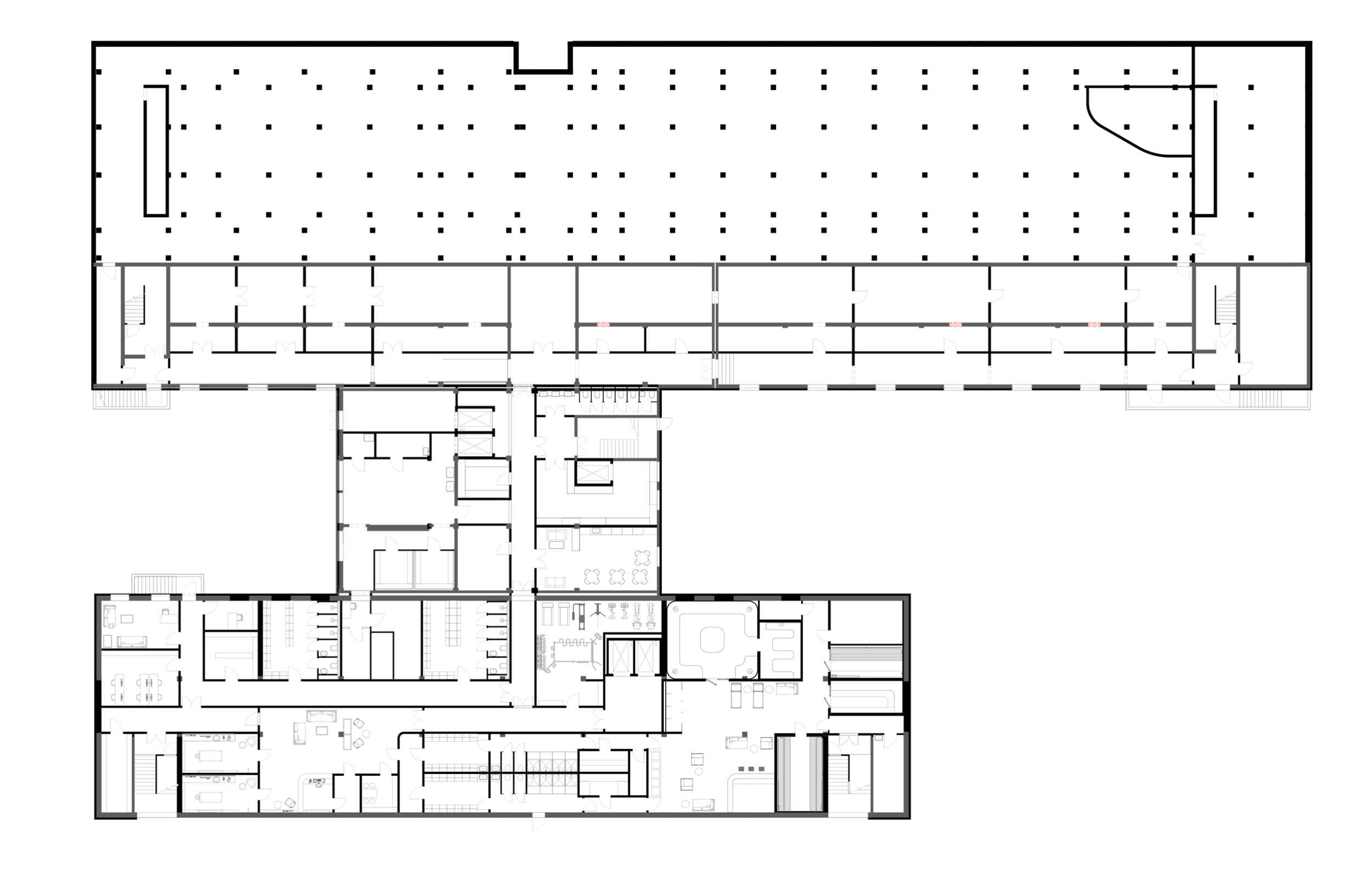
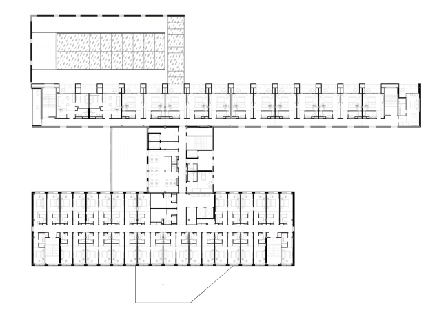
Реконструкция объекта незавершенного строительства в гостиницу 4*. План 1 этажа
© Godekan
Реконструкция объекта незавершенного строительства в гостиницу 4*. План 2 этажа
© Godekan
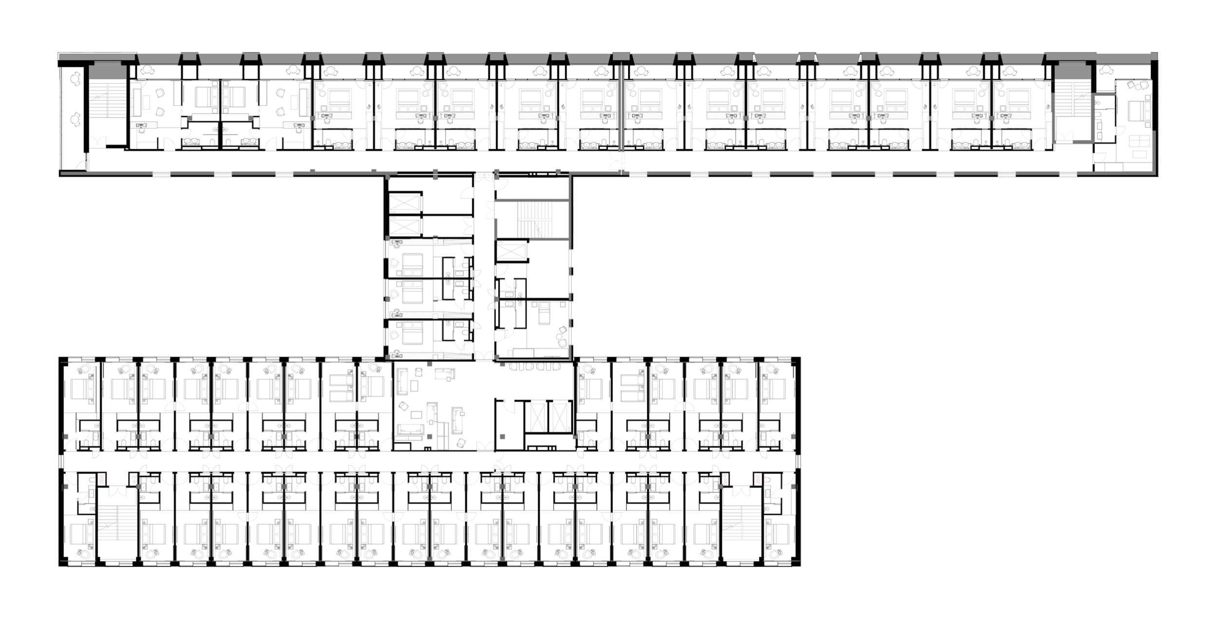
Реконструкция объекта незавершенного строительства в гостиницу 4*. План 3 этажа
© Godekan
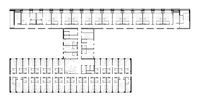
Реконструкция объекта незавершенного строительства в гостиницу 4*. План 4 этажа
© Godekan
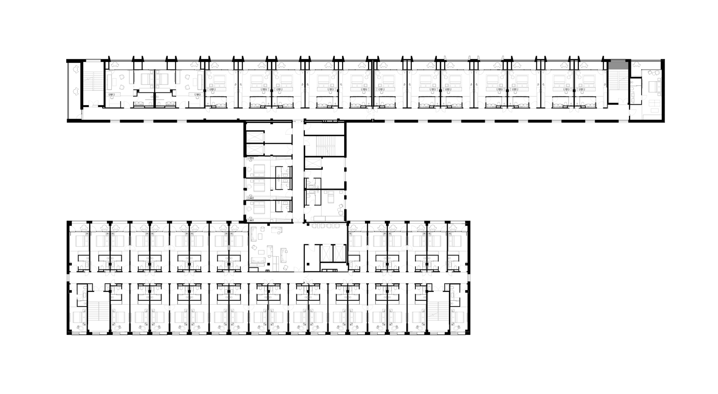
Реконструкция объекта незавершенного строительства в гостиницу 4*. План 5 этажа
© Godekan
Реконструкция объекта незавершенного строительства в гостиницу 4*. План кровли
© Godekan

Архитекторы – партнеры Архи.ру:

  • Александра Кузьмина
  • Татьяна Зульхарнеева
  • Дмитрий Сухов
  • Мария Ахременкова
  • Екатерина Кузнецова
  • Елена Пучкова
  • Вера Бутко
  • Василий Крапивин
  • Андрей Гнездилов
  • Раис Баишев
  • Станислав Белых
  • Олег Мединский
  • Дмитрий Остроумов
  • Владислав Андреев
  • Сергей Никешкин
  • Георгий Трофимов
  • Никита Явейн
  • Владимир Плоткин
  • Юлия Солдатенкова
  • Евгений Подгорнов
  • Даниил Лоренц
  • Олег Шапиро
  • Евгений Новосадюк
  • Илья Машков
  • Степан Липгарт
  • Борис Воскобойников
  • Юлий Борисов
  • Сергей Кузнецов
  • Григориос Гавалидис
  • Андрей Михайлов
  • Сергей Труханов
  • Александр Котенков
  • Игорь Шварцман
  • Николай Кикава
  • Григорий Мустафин
  • Энди Сноу
  • Михаил Давыдов
  • Сергей Чобан
  • Алексей Орлов
  • Марина Егорова
  • Антон Надточий
  • Иван Кожин
  • Зураб Басария
  • Ростислав Цайзер
  • Юлия Тряскина
  • Наталья Сидорова
  • Наталия Шилова
  • Виталий Лутц
  • Александр Скокан
  • Александр Самарин
  • Антон Яр-Скрябин
  • Дмитрий Буш
  • Сергей Скуратов
  • Михаил Канунников
  • Андрей Романов
  • Валерий Каняшин
  • Игорь Членов
  • Евгений Зеленов
  • Константин Ходнев
  • Александр Асадов
  • Полина Воеводина
  • Анастасия Абашева
  • Юлиана Княжевская
  • Дмитрий Ликин
  • Сергей Переслегин
  • Андрей Асадов
  • Ерлан Бекмухамедов
  • Павел Андреев
  • Всеволод Медведев
  • Николай Переслегин
  • Тимур Абдуллаев
  • Екатерина Абдуллаева
  • Маргарита Авдышева
  • Левон Айрапетов
  • Александр Аношкин
  • Алексей Афоничкин
  • Владислав Бек-Булатов
  • Антон Белов
  • Татьяна Бузулукова
  • Петр Васильев
  • Данило Вукосавлевич
  • Алина Георгиевская
  • Павел Гордеев
  • Илья Гринберг
  • Никита Демидов
  • Никита Дергунов
  • Наталья Жилкина
  • Алексей Зародов
  • Екатерина Зырина
  • Алексей Ильин
  • Дарья Ильина
  • Олег Карлсон
  • Алексей Кибкало
  • Денис Кувшинников
  • Анна Куликова
  • Алексей Курков
  • Данил Куров
  • Мария Кутай
  • Евгений Кутай
  • Иван Кычкин
  • Антон Ладыгин
  • Дмитрий Лапин
  • Борис Левянт
  • Илья Левянт
  • Катерина Левянт
  • Валерий Лукомский
  • Антон Лукомский
  • Екатерина Ляпунова
  • Иса Магомедов
  • Сергей Марков
  • Елена Мерцалова
  • Николай Миловидов
  • Станислав Михаловский
  • Сергей Мичурин
  • Олеся Могилевская
  • Филипп Никандров
  • Мария Николаева
  • Дмитрий Овчаров
  • Сергей Пергаев
  • Виктор Перов
  • Алексей Полищук
  • Роман Пономарёв
  • Валерия Преображенская
  • Виктория Раубо
  • Василий Рыбаков
  • Николай Рыбаков
  • Мария Салех
  • Александр Стариков
  • Илья Уткин
  • Елисей Чакан
  • Бориша Чорович
  • Олег Шурыгин
  • Дмитрий Шурыгин

Проект из каталога (случайный выбор)

Постройки и проекты (новые записи):

  • Деловое пространство «ПЛЭЙН»
  • Porta
  • Детский сад на 200 мест в Жилино-1
  • Архитектурная концепция кластера Ломоносов-2
  • Клубный дом в 1-м Казачьем переулке
  • Частный дом в Ленинградской области
  • IT-кластер TravelLine в Йошкар-Оле
  • Гостиничный комплекс Cosmos Selection Derbent 5
  • Офис компании АльфаСтрахование

Новости российской архитектуры:

Курган памяти
08.05.2026

Курган памяти

Никита Явейн
Баня по-царски
07.05.2026

Баня по-царски

Ольга Смоленская
«Заря» над волнами
07.05.2026

«Заря» над волнами

Дарья Виноградова
Белый конгломерат
07.05.2026

Белый конгломерат

Александр Томашенко, Андрей Горелов, Василий Сошников, Иван Колманок, Николай Фугаров, Владимир Плоткин