RSS
Многофункциональный спортивно-развлекательный комплекс с ледовым комплексом, гостиницей и ФОК на Дружинниковской улице, второй вариант 2025 года
© Сергей Скуратов Architects

Многофункциональный спортивно-развлекательный комплекс с ледовым комплексом, гостиницей и ФОК на Дружинниковской улице, второй вариант 2025 года

информация:

Сергей Скуратов
Сергей Скуратов ARCHITECTS

авторский коллектив

С. А. Скуратов – руководитель творческого коллектива, автор проекта, А. В. Панёв – главный архитекор бюро, С.Чекмарёв, В. Жеребцов, М. Пелеева, О. Григораш

партнеры, заказчики, смежники

Девелопер – Capital Group
Многофункциональный спортивно-развлекательный комплекс с ледовым комплексом, гостиницей и ФОК на Дружинниковской улице, второй вариант 2025 года
© Сергей Скуратов Architects

Архи.ру об этом объекте:

08.04.2026

Юлия Тарабарина. Ценность открытого места

Для участка рядом с метро Баррикадная Сергей Скуратов за период 2020–2025 сделал 5 проектов. Два из них победили в закрытых конкурсах заказчика. Пятый не так давно выбрал мэр Москвы для реализации. Проект ярок и пластичен, акцентен, заметен и интересен; что характерно для нашего времени. Однако – он среднеэтажен, невысок. И в своей северо-западной части, у метро и Дружинниковской улицы, формирует комфортный город. А с другой стороны – распахивается, открывая двор для солнечных лучей и формируя пространственную паузу в городской застройке. Как все устроено, какие тут геометрические закономерности и почему так – читайте в нашем материале.

Совсем недавно стало известно об утверждении проекта Дома Спорта . Компания Capital Group строит его на месте советского футбольно-легкоатлетического стадиона, в разное время носившего названия Красная Пресня / Искра / Правда / Метрострой. Это был и...   читать дальше
Многофункциональный спортивно-развлекательный комплекс с ледовым комплексом, гостиницей и ФОК на Дружинниковской улице, второй вариант 2025 года
© Сергей Скуратов Architects

описание:

1. Градостроительная ситуация
Отведенный участок располагается в городском сквере, спускающемся от круглого павильона станции метро «Краснопресненская» к Москве-реке. Участок ограничен транспортными улицами: с запада – улицей Дружинниковской, с севера – улицей Заморенова, с востока – Конюшковской улицей, с юга – Рочдельской улицей. Рельеф спокойный, с небольшим понижением в сторону реки. Продольный перепад вдоль всего участка составляет 2.5 м. Наибольшая интенсивность транспортного движения и плотность потока, вызывающие автомобильные пробки, наблюдаются на улице Заморенова.
Участок озеленен преимущественно липами.
Вдоль Конюшковской улицы находятся два 5-этажных и 6-этажных жилых дома 30-х гг., кирпичная ограда и корпус Посольства США, вдоль улицы Дружинниковской – два типовых панельных 5-этажных жилых дома 60-х гг. Со стороны Рочдельской улицы находится «горбатый мост» и памятник героям-дружинникам. Со стороны улицы Заморенова – разворотное кольцо наземного общественного транспорта, сквер у павильона метро и двухэтажная постройка, занимаемая рестораном.

2. Проектное предложение

2.1. Композиционное решение
Занимая большую часть участка по центру, здание комплекса «встраивается» в сетку пространственных и планировочных осей окружающей застройки. Основная пространственная ось, на которой располагается новое здание, проходит от круглого павильона станции метро «Краснопресненская» к зданию бывшего СЭВ (ныне Московской мэрии). В такой же ориентации располагаются еще несколько окружающих зданий: корпуса посольства США, дом Наркомфина, жилые дома по Дружинниковской и Конюшковской улицам. Данная ориентация также наиболее благоприятная с точки зрения попадания солнечного света в офисы и апартаменты, их продольные стороны ориентированы на запад и восток. Важным аспектом при посадке комплекса на участок является тот фактор, что территория является неблагоустроенным сквером, «выключенным» из городской жизни в данный момент. Поэтому одной из главных идей концепции проекта является открытие общественного озелененного пространства на отведенном участке. Вследствие этого новый комплекс занимает центральную часть территории, где меньше всего существующих деревьев, имеет круговой обход и организует новую городскую площадь во главе с прудом, зеленым сквером, существующим памятником дружинникам и поднимающейся от новообразовавшейся площади на озелененную, общедоступную эксплуатируемую кровлю с игровыми площадками, площадками для активного отдыха и к одноэтажному павильону ресторана.

2.2. Транспортная схема
Приоритетной улицей для данного участка является Дружинниковская, она наиболее активно используется горожанами для прохода от метро в сторону набережной. Проектом поддерживается данное свойство территории, и все основные заезды и входы в комплекс осуществляются с Дружинниковской улицы. Для удобства с этой же стороны сделан круговой проезд с односторонним движением, с которого можно заехать в подземную часть, высадить пассажиров у гостиничного комплекса и высадить VIP-персон у отдельного входа в ледовый комплекс, далее можно вернуться на Дружинниковскую улицу либо заехать в подземный паркинг. Для доступа служебного транспорта к ледовому комплексу предполагается технический заезд с улицы Заморенова. Проезд пожарной техники осуществляется вдоль фасадов всего комплекса. С северной стороны комплекса предусмотрена гостевая парковка для посетителей ресторана, и такая же парковка присутствует с западной стороны у входов в офисы, в VIP-зону ледовой арены, в магазин, ресторан и входы в вестибюли гостиничной части.

2.3. Озеленение
Проектом предполагается сохранение максимального количества зеленых насаждений, в первую очередь – лип. Существующие деревья с четырех сторон обрамляют новое здание. Для создания еще большего ощущения зеленого пространства предполагается дополнительная высадка хвойных пород деревьев по всему периметру комплекса. Весь стилобат представляет собой озелененную кровлю и склон с посаженными на нем группами деревьев и кустарников.

2.4. Объемно-планировочное и фасадное решение
Живописность места повлияла на выбор решения – сдержанный лаконичный монообъем, вырастающий из парка. Легкость сооружению придает сочетание трех материалов: белоснежные алюминиевые ламели скругленной формы, прозрачные и матовые стекла вместо стен. Абсолютно белое полупрозрачное сооружение с изменчивой игрой света и тени. Ламельная ребристость фасада хорошо вписывается в живописную среду городского сквера, появляясь в разрывах зеленых аллей и куп деревьев. Подчиненная месту, выверенная архитектурная форма создает загадочный образ общественного здания с нависающим объемом гостиничного корпуса, словно лайнер среди зеленых волн из крон деревьев.Офисный и гостиничный корпуса располагаются на стилобате, в котором расположены ледовые арены, ФОК и вся сопутствующая инфраструктура. Кровля стилобата эксплуатируемая, озелененная, на ней находятся площадки активного и спокойного отдыха. А добраться до нее можно либо по длинному пологому склону, ведущему от новой площади перед комплексом, либо выйти на уровне второго этажа из офисного и гостиничного корпусов, либо по открытым лестницам.

С уровня кровли раскрываются виды на город: в сторону Москвы-реки с ее доминантами, на Сити, на высотку Кудринской площади.

С южной стороны комплекса расположено футбольное поле. Вход с вестибюлем, раздевалки, тренерские и инвентарные находятся под зеленым склоном. Поле круглогодичного использования огорожено и освещено.В интерьерах мест общего пользования стилобата предлагается применить материалы теплых оттенков – деревянные пространственные конструкции, поддерживающие крышу, деревянная отделка пространств лобби в сочетании со светлой мебелью. Используемые материалы создадут уют и теплоту внутреннего пространства и станут контрастными по отношению к фасадным белым материалам.

2.5. Функциональное зонирование комплекса
Функциональное зонирование здания следует его объемно-пространственному построению, разделяющему это сооружение на три части – стилобат, двухчастная надстройка и зеленый склон кровли. В стилобате размещаются общественные функции – ледовый комплекс, спортивные залы, сопутствующие помещения (рестораны, магазины); в двухчастной надстройке – офисы (северная часть) и гостиничные апартаменты (южная часть), под зеленой кровлей располагаются залы ледовой арены, универсального зала, бассейна, студии йоги, физкультурно-оздоровительного комплекса (ФОК), банного комплекса и помещений футбольного поля.

Ледовый комплекс. В северной части стилобата размещен ледовый комплекс. Он имеет несколько входов: общедоступный, VIP и служебный. Все три входа продублированы как на уровне земли, так и на подземном этаже. Входы ориентированы на ледовые площадки, так посетители сразу могут ощутить назначение комплекса и почувствовать эффект присутствия. Более того, уровень льда ниже уровня входов на 5.1 м, это позволяет визуально охватить арену целиком и усиливает wow-эффект ее восприятия у зрителей. Вокруг арен на нижнем уровне располагаются раздевалки, сопутствующие помещения и залы, доступные из двух арен одновременно. Входы в магазины, рестораны, кафе с видом на лед и йогу-студию находятся на первом и подземном этажах. С восточной стороны стилобата устроен уличный пандус для доступа служебных машин на уровень ледовых арен. В нижней части стилобата располагается гостиничный комплекс и вход в ФОК. Весь первый этаж этой части наполнен общественными пространствами: магазины, кафе, рестораны, входы в вестибюли офисов и гостиницу.

ФОК. Бассейн 50 метров, универсальный зал, помещения БКФН, зал для боевых искусств, тренажерные залы, студия йоги, банный комплекс располагаются под зеленой кровлей.
Эти помещения имеют отдельные входы с Дружинниковской улицы и из подземного этажа. Из вестибюля с рецепцией посетитель попадает в холл, из которого может пройти либо в ресторан, либо в раздевалки ФОК и далее в спортивные залы с панорамным остеклением, за которым открываются виды на высотку, и с зенитными фонарями на кровле. Между апартаментами гостиницы и зеленым склоном посетители ФОК имеют возможность заниматься на воздухе, на уличной площадке, которая оснащена спортивным оборудованием. Рядом с помещениями ФОК под зеленым склоном располагаются студии йоги. Ниже по склону – двухуровневые помещения банного комплекса. На верхнем уровне помещения бани на 60 и 30 посетителей, а на нижнем уровне – 4 блока, независимых друг от друга, в каждом из которых могут принять оздоровительные процедуры 6–8 человек.

Гостиничный комплекс. Гостиничные апартаменты расположены на семи этажах и максимально ориентированы на примыкающий Пресненский парк с одной стороны и на высотку на Кудринской площади – с другой стороны. Четкая ориентация всего комплекса по сторонам света, заложенная в градостроительном решении, обеспечивает хорошую инсоляцию с восточной, южной и западной сторон. На втором этаже гостиничного комплекса и офисов каждый номер, ориентированный на восток, имеет выход на собственную террасу в уровне зеленого склона. Высота жилых лотов от пола до потолка на типовых этажах – 3.2 м; первый этаж – 6.5 м в гостиничной части и 8.0 м в части апартаментов.

На 7 и 8 этажах офисного блока на западной стороне располагаются террасы, с которых открывается вид на город в сторону Сити.

Подземная часть. Этот уровень разделен на две большие части: паркинг и помещения ледового комплекса, описанные выше. В паркинге располагаются места для хранения автомобилей жителей апартаментов, гостевые места для спортсменов и сотрудников ледового комплекса, гостевые места для посетителей ресторана, студии йоги, банного комплекса, футбольных раздевалок и ФОК. Все группы помещений имеют входы с вестибюлями из паркинга.

Также присутствуют мусорокамера, помещения для загрузки ресторанов, фитнеса и ледового комплекса, автомойка и технические помещения для инженерного оборудования.

Многофункциональный спортивно-развлекательный комплекс с ледовым комплексом, гостиницей и ФОК на Дружинниковской улице, второй вариант 2025 года
© Сергей Скуратов Architects
Многофункциональный спортивно-развлекательный комплекс с ледовым комплексом, гостиницей и ФОК на Дружинниковской улице, второй вариант 2025 года
© Сергей Скуратов Architects
Многофункциональный спортивно-развлекательный комплекс с ледовым комплексом, гостиницей и ФОК на Дружинниковской улице, второй вариант 2025 года
© Сергей Скуратов Architects
Многофункциональный спортивно-развлекательный комплекс с ледовым комплексом, гостиницей и ФОК на Дружинниковской улице, второй вариант 2025 года
© Сергей Скуратов Architects
Многофункциональный спортивно-развлекательный комплекс с ледовым комплексом, гостиницей и ФОК на Дружинниковской улице, второй вариант 2025 года
© Сергей Скуратов Architects
Многофункциональный спортивно-развлекательный комплекс с ледовым комплексом, гостиницей и ФОК на Дружинниковской улице, второй вариант 2025 года
© Сергей Скуратов Architects
Многофункциональный спортивно-развлекательный комплекс с ледовым комплексом, гостиницей и ФОК на Дружинниковской улице, второй вариант 2025 года
© Сергей Скуратов Architects
Многофункциональный спортивно-развлекательный комплекс с ледовым комплексом, гостиницей и ФОК на Дружинниковской улице, второй вариант 2025 года
© Сергей Скуратов Architects
Многофункциональный спортивно-развлекательный комплекс с ледовым комплексом, гостиницей и ФОК на Дружинниковской улице, второй вариант 2025 года
© Сергей Скуратов Architects
Многофункциональный спортивно-развлекательный комплекс с ледовым комплексом, гостиницей и ФОК на Дружинниковской улице, второй вариант 2025 года
© Сергей Скуратов Architects
Многофункциональный спортивно-развлекательный комплекс с ледовым комплексом, гостиницей и ФОК на Дружинниковской улице, второй вариант 2025 года
© Сергей Скуратов Architects
Ситуационный план 1:50000. Многофункциональный спортивно-развлекательный комплекс с ледовым комплексом, гостиницей и ФОК на Дружинниковской улице, второй вариант 2025 года
© Сергей Скуратов Architects
Схема движения автотранспорта. Многофункциональный спортивно-развлекательный комплекс с ледовым комплексом, гостиницей и ФОК на Дружинниковской улице, второй вариант 2025 года
© Сергей Скуратов Architects
Схема движения спецтранспорта. Многофункциональный спортивно-развлекательный комплекс с ледовым комплексом, гостиницей и ФОК на Дружинниковской улице, второй вариант 2025 года
© Сергей Скуратов Architects
Схема движения пешеходов. Многофункциональный спортивно-развлекательный комплекс с ледовым комплексом, гостиницей и ФОК на Дружинниковской улице, второй вариант 2025 года
© Сергей Скуратов Architects
Схема генерального плана. Баланс территории. Многофункциональный спортивно-развлекательный комплекс с ледовым комплексом, гостиницей и ФОК на Дружинниковской улице, второй вариант 2025 года
© Сергей Скуратов Architects
Суммарная поэтажная площадь. Многофункциональный спортивно-развлекательный комплекс с ледовым комплексом, гостиницей и ФОК на Дружинниковской улице, второй вариант 2025 года
© Сергей Скуратов Architects
План -1 этажа. Многофункциональный спортивно-развлекательный комплекс с ледовым комплексом, гостиницей и ФОК на Дружинниковской улице, второй вариант 2025 года
© Сергей Скуратов Architects
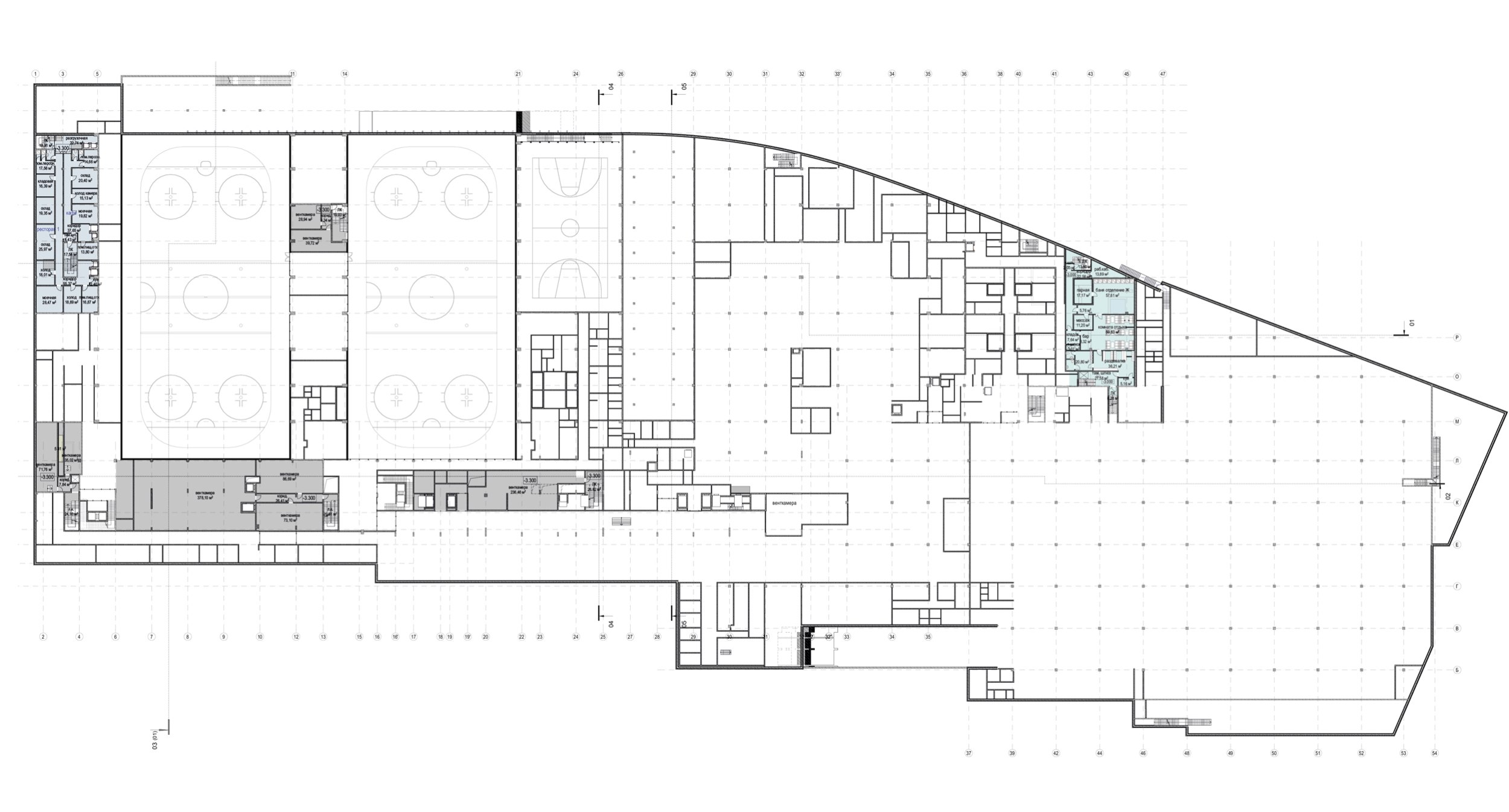
План на отм. -3,300. Многофункциональный спортивно-развлекательный комплекс с ледовым комплексом, гостиницей и ФОК на Дружинниковской улице, второй вариант 2025 года
© Сергей Скуратов Architects
План 1 этажа. Многофункциональный спортивно-развлекательный комплекс с ледовым комплексом, гостиницей и ФОК на Дружинниковской улице, второй вариант 2025 года
© Сергей Скуратов Architects
План антресольного этажа. Многофункциональный спортивно-развлекательный комплекс с ледовым комплексом, гостиницей и ФОК на Дружинниковской улице, второй вариант 2025 года
© Сергей Скуратов Architects
План 2 этажа. Многофункциональный спортивно-развлекательный комплекс с ледовым комплексом, гостиницей и ФОК на Дружинниковской улице, второй вариант 2025 года
© Сергей Скуратов Architects
Схемы планов гостиничного корпуса. Многофункциональный спортивно-развлекательный комплекс с ледовым комплексом, гостиницей и ФОК на Дружинниковской улице, второй вариант 2025 года
© Сергей Скуратов Architects
Схема офисного корпуса. Многофункциональный спортивно-развлекательный комплекс с ледовым комплексом, гостиницей и ФОК на Дружинниковской улице, второй вариант 2025 года
© Сергей Скуратов Architects
Схема благоустройства. Многофункциональный спортивно-развлекательный комплекс с ледовым комплексом, гостиницей и ФОК на Дружинниковской улице, второй вариант 2025 года
© Сергей Скуратов Architects
Разрез 1-1. Многофункциональный спортивно-развлекательный комплекс с ледовым комплексом, гостиницей и ФОК на Дружинниковской улице, второй вариант 2025 года
© Сергей Скуратов Architects
Разрез 2-2. Многофункциональный спортивно-развлекательный комплекс с ледовым комплексом, гостиницей и ФОК на Дружинниковской улице, второй вариант 2025 года
© Сергей Скуратов Architects
Разрез 3-3. Многофункциональный спортивно-развлекательный комплекс с ледовым комплексом, гостиницей и ФОК на Дружинниковской улице, второй вариант 2025 года
© Сергей Скуратов Architects
Разрез 4-4. Многофункциональный спортивно-развлекательный комплекс с ледовым комплексом, гостиницей и ФОК на Дружинниковской улице, второй вариант 2025 года
© Сергей Скуратов Architects
Разрез 5-5. Многофункциональный спортивно-развлекательный комплекс с ледовым комплексом, гостиницей и ФОК на Дружинниковской улице, второй вариант 2025 года
© Сергей Скуратов Architects
Восточный фасад. Конюшковская ул. Многофункциональный спортивно-развлекательный комплекс с ледовым комплексом, гостиницей и ФОК на Дружинниковской улице, второй вариант 2025 года
© Сергей Скуратов Architects
Западный фасад. Дружинниковская ул. Многофункциональный спортивно-развлекательный комплекс с ледовым комплексом, гостиницей и ФОК на Дружинниковской улице, второй вариант 2025 года
© Сергей Скуратов Architects
Южный фасад. Рочдельская ул. Многофункциональный спортивно-развлекательный комплекс с ледовым комплексом, гостиницей и ФОК на Дружинниковской улице, второй вариант 2025 года
© Сергей Скуратов Architects
Северный фасад. Ул. Заморенова. Многофункциональный спортивно-развлекательный комплекс с ледовым комплексом, гостиницей и ФОК на Дружинниковской улице, второй вариант 2025 года
© Сергей Скуратов Architects
Деталь фасада. Многофункциональный спортивно-развлекательный комплекс с ледовым комплексом, гостиницей и ФОК на Дружинниковской улице, второй вариант 2025 года
© Сергей Скуратов Architects
Развертка по Дружинниковской улице. Многофункциональный спортивно-развлекательный комплекс с ледовым комплексом, гостиницей и ФОК на Дружинниковской улице, второй вариант 2025 года
© Сергей Скуратов Architects
Развертка по Конюшковской улице. Многофункциональный спортивно-развлекательный комплекс с ледовым комплексом, гостиницей и ФОК на Дружинниковской улице, второй вариант 2025 года
© Сергей Скуратов Architects
Развертка по Рочдельской улице. Многофункциональный спортивно-развлекательный комплекс с ледовым комплексом, гостиницей и ФОК на Дружинниковской улице, второй вариант 2025 года
© Сергей Скуратов Architects
Развертка по улице Заморенова. Многофункциональный спортивно-развлекательный комплекс с ледовым комплексом, гостиницей и ФОК на Дружинниковской улице, второй вариант 2025 года
© Сергей Скуратов Architects

Архитекторы – партнеры Архи.ру:

  • Анастасия Абашева
  • Владислав Андреев
  • Виталий Лутц
  • Игорь Шварцман
  • Андрей Гнездилов
  • Мария Ахременкова
  • Михаил Канунников
  • Степан Липгарт
  • Владимир Плоткин
  • Зураб Басария
  • Полина Воеводина
  • Сергей Чобан
  • Борис Воскобойников
  • Сергей Скуратов
  • Сергей Никешкин
  • Илья Машков
  • Александр Асадов
  • Георгий Трофимов
  • Евгений Подгорнов
  • Елена Пучкова
  • Ростислав Цайзер
  • Юлиана Княжевская
  • Иван Кожин
  • Валерий Каняшин
  • Алексей Орлов
  • Григориос Гавалидис
  • Энди Сноу
  • Андрей Михайлов
  • Даниил Лоренц
  • Александр Скокан
  • Александра Кузьмина
  • Дмитрий Буш
  • Раис Баишев
  • Андрей Романов
  • Юлия Тряскина
  • Игорь Членов
  • Николай Кикава
  • Константин Ходнев
  • Станислав Белых
  • Григорий Мустафин
  • Вера Бутко
  • Юлия Солдатенкова
  • Сергей Переслегин
  • Дмитрий Ликин
  • Андрей Асадов
  • Наталья Сидорова
  • Павел Андреев
  • Евгений Зеленов
  • Олег Шапиро
  • Александр Котенков
  • Олег Мединский
  • Дмитрий Сухов
  • Василий Крапивин
  • Марина Егорова
  • Александр Самарин
  • Дмитрий Остроумов
  • Ерлан Бекмухамедов
  • Никита Явейн
  • Екатерина Кузнецова
  • Михаил Давыдов
  • Юлий Борисов
  • Татьяна Зульхарнеева
  • Сергей Труханов
  • Антон Надточий
  • Антон Яр-Скрябин
  • Наталия Шилова
  • Николай Переслегин
  • Всеволод Медведев
  • Евгений Новосадюк
  • Сергей Кузнецов
  • Тимур Абдуллаев
  • Екатерина Абдуллаева
  • Маргарита Авдышева
  • Левон Айрапетов
  • Александр Аношкин
  • Алексей Афоничкин
  • Владислав Бек-Булатов
  • Антон Белов
  • Татьяна Бузулукова
  • Петр Васильев
  • Данило Вукосавлевич
  • Алина Георгиевская
  • Павел Гордеев
  • Илья Гринберг
  • Никита Демидов
  • Никита Дергунов
  • Наталья Жилкина
  • Алексей Зародов
  • Екатерина Зырина
  • Алексей Ильин
  • Дарья Ильина
  • Олег Карлсон
  • Алексей Кибкало
  • Денис Кувшинников
  • Анна Куликова
  • Алексей Курков
  • Данил Куров
  • Мария Кутай
  • Евгений Кутай
  • Иван Кычкин
  • Антон Ладыгин
  • Дмитрий Лапин
  • Борис Левянт
  • Илья Левянт
  • Катерина Левянт
  • Валерий Лукомский
  • Антон Лукомский
  • Екатерина Ляпунова
  • Иса Магомедов
  • Сергей Марков
  • Елена Мерцалова
  • Николай Миловидов
  • Станислав Михаловский
  • Сергей Мичурин
  • Олеся Могилевская
  • Филипп Никандров
  • Мария Николаева
  • Дмитрий Овчаров
  • Сергей Пергаев
  • Виктор Перов
  • Алексей Полищук
  • Роман Пономарёв
  • Валерия Преображенская
  • Виктория Раубо
  • Василий Рыбаков
  • Николай Рыбаков
  • Мария Салех
  • Александр Стариков
  • Илья Уткин
  • Елисей Чакан
  • Евгения Чернышева
  • Бориша Чорович
  • Олег Шурыгин
  • Дмитрий Шурыгин

Проект из каталога (случайный выбор)

Банк Баррикады
Владислав Платонов, 1993 – 1993
Банк Баррикады

Постройки и проекты (новые записи):

  • Гостиница в Чите
  • ЖК Квартал 64
  • Деловое пространство «ПЛЭЙН»
  • Конкурсный проект ФИЦ / ТПО «Резерв»
  • Porta
  • Детский сад на 200 мест в Жилино-1
  • Архитектурная концепция кластера Ломоносов-2
  • Клубный дом в 1-м Казачьем переулке
  • Частный дом в Ленинградской области

Новости российской архитектуры:

Друзья по крыше
14.05.2026

Друзья по крыше

Евгений Новосадюк, Никита Явейн
На воскресной электричке
14.05.2026

На воскресной электричке

Михаэль Бабаев
Идеалы модернизма
13.05.2026

Идеалы модернизма

Эдуард Моро