RSS
Храм в честь св. Николая Японского в Ижевске
© Artemia

Храм в честь св. Николая Японского в Ижевске

информация:

  • статус
    проект
  • даты
    11.2023
  • region= area= address=ул. Милиционная country_t=Россия city_t=Ижевск
    место
    Ижевск ул. Милиционная
  • координаты
    56.856815, 53.194992
  • функция
    Культовый / Церковь
  • теги
    send.project
  • общая площадь
    1 670 м2
  • высота
    42
  • этажность
    3
  • Площадь пространства для молящихся – 330 м2
    Площадь алтаря – 62 м2

     
Алиса Фазиахметова
Россия

авторский коллектив

Алиса Фазиахметова  
Научный консультант: Проф. Кафедры Храмовое зодчество МАрхИ А.И. Макаров 

награды:

    Серебряный знак фестиваля Зодчество в номинации студенческих работ. 2023 г.
Храм в честь св. Николая Японского в Ижевске
© Artemia
Храм в честь св. Николая Японского в Ижевске
© Artemia

история проекта:

В 2022 году я поступила МАРХИ  на кафедру Храмовое зодчество, с целью организовать свое время для проектирования собственных архитектурных произведений. До этого я работала только в соавторстве и с другими архитекторами и бюро. Этот храм – второй из трех проектов практической части моей магистерской работы на тему «Контекстуальный подход к проектированию православных храмов в
исторической архитектурно-ландшафтной среде»

описание:

Храм располагается на улице Милиционная в г. Ижевск. Своим западным фасадом он выходит на набережную, обустроенную под отдых и досуг горожан. Существующий участок на данный момент не благоустроен, имеет рельеф, плавно повышающийся от Ижевского пруда в сторону улицы Милиционной.

Формирование панорамы города:
Храм решает важную градостроительную задачу – формирует силуэт города, открывающийся с транспортной зоны набережной и водной глади. Этот вид одна из важнейших визитных карточек Ижевска, существующий в сознании ижевчан и формирующих облик города у гостей и туристов.


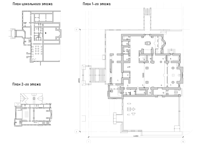
Внутреннее устройство:
Храм имеет 3 уровня. В 1ом этаже располагаются храмовые пространства: молельный зал на 600 человек и крестильный придел. Храм и придел соединены друг с другом в западной части, таким образом во время праздничного многолюдного богослужения прихожане могут использовать всю полезную площадь этажа максимально эффективно.

2 ярус – балкон для хора, зал собраний,  кабинет настоятеля.

В стилобате размещаются культурно-досуговые помещения: кафе,  церковная лавка,  кухня, санузлы, помещения инженерного оборудования, паркинг.

Все 3 яруса соединяет лестница и лифт, располагающиеся  в колокольне.
 
Колокольня.
Колокольня играет роль обзорной площадки, с отдельным входом внизу и возможностью подняться на лифте на верхний ярус звона, для обозрения красот ижевского пейзажа. Так архитектурное произведение включается в досуговую программу горожан.

Стоит отметить, что образ колокольни вдохновлен миссией св. Николая Японского, который, будучи один, как перст, имел смелость отправиться в далекую страну Японию служить и проповедовать в чуждой культуре, день за днем создавая православную общину. Порой колокольня рождает образы горящей свечи, или сложенных в молитве рук (крыша), навевает одиночество и тоску по Богу.
 
Стиль:
Храм выполнен в стиле модерн, в современной его интерпретации.  Форма храма свободна от мелкого декора. Композиция выделяется щипцовыми кровлями, придающими зданию острый, динамичный силуэт и пластичными сложно-изогнутыми линиями куполов, кровель четверика и колокольни. Храм украшают резьбовые композиции с образами святых и христианской символикой. В цветовых сочетаниях используется 3 цвета:  белый (камень), зеленый (кровля) и золотой (купола).
Храм в честь св. Николая Японского в Ижевске
© Artemia
Храм в честь св. Николая Японского в Ижевске
© Artemia
Храм в честь св. Николая Японского в Ижевске
© Artemia
Храм в честь св. Николая Японского в Ижевске
© Artemia
Храм в честь св. Николая Японского в Ижевске
© Artemia
Храм в честь св. Николая Японского в Ижевске
© Artemia
Храм в честь св. Николая Японского в Ижевске
© Artemia
Храм в честь св. Николая Японского в Ижевске
© Artemia

Архитекторы – партнеры Архи.ру:

  • Юлия Солдатенкова
  • Игорь Шварцман
  • Юлия Тряскина
  • Евгений Новосадюк
  • Марина Егорова
  • Александра Кузьмина
  • Полина Воеводина
  • Ростислав Цайзер
  • Ерлан Бекмухамедов
  • Николай Переслегин
  • Всеволод Медведев
  • Михаил Давыдов
  • Екатерина Кузнецова
  • Энди Сноу
  • Андрей Асадов
  • Александр Скокан
  • Александр Котенков
  • Станислав Белых
  • Валерий Каняшин
  • Татьяна Зульхарнеева
  • Вера Бутко
  • Павел Андреев
  • Константин Ходнев
  • Зураб Басария
  • Юлий Борисов
  • Дмитрий Ликин
  • Евгений Подгорнов
  • Антон Надточий
  • Владимир Плоткин
  • Илья Машков
  • Александр Асадов
  • Наталия Шилова
  • Юлиана Княжевская
  • Сергей Переслегин
  • Андрей Чуйков
  • Сергей Чобан
  • Елена Пучкова
  • Василий Крапивин
  • Даниил Лоренц
  • Александр Самарин
  • Алексей Гинзбург
  • Андрей Михайлов
  • Георгий Трофимов
  • Дмитрий Остроумов
  • Раис Баишев
  • Николай Кикава
  • Степан Липгарт
  • Олег Мединский
  • Владислав Андреев
  • Дмитрий Сухов
  • Андрей Романов
  • Дмитрий Буш
  • Виталий Лутц
  • Григорий Мустафин
  • Евгений Зеленов
  • Сергей Труханов
  • Андрей Гнездилов
  • Иван Кожин
  • Григориос Гавалидис
  • Наталья Сидорова
  • Михаил Канунников
  • Антон Яр-Скрябин
  • Анна Иванова
  • Алексей Орлов
  • Игорь Членов
  • Олег Шапиро
  • Сергей Скуратов
  • Сергей Никешкин
  • Никита Явейн
  • Роман Леонидов
  • Анастасия Абашева
  • Сергей Кузнецов
  • Тимур Абдуллаев
  • Екатерина Абдуллаева
  • Маргарита Авдышева
  • Левон Айрапетов
  • Александр Аношкин
  • Алексей Афоничкин
  • Владислав Бек-Булатов
  • Антон Белов
  • Татьяна Бузулукова
  • Петр Васильев
  • Алина Георгиевская
  • Павел Гордеев
  • Илья Гринберг
  • Никита Демидов
  • Никита Дергунов
  • Наталья Жилкина
  • Алексей Зародов
  • Екатерина Зырина
  • Алексей Ильин
  • Дарья Ильина
  • Олег Карлсон
  • Алексей Кибкало
  • Денис Кувшинников
  • Анна Куликова
  • Алексей Курков
  • Алексей Курков
  • Данил Куров
  • Евгений Кутай
  • Мария Кутай
  • Антон Ладыгин
  • Антон Ладыгин
  • Дмитрий Лапин
  • Борис Левянт
  • Катерина Левянт
  • Илья Левянт
  • Антон Лукомский
  • Валерий Лукомский
  • Екатерина Ляпунова
  • Сергей Марков
  • Николай Миловидов
  • Станислав Михаловский
  • Олеся Могилевская
  • Мария Николаева
  • Виктор Перов
  • Алексей Полищук
  • Роман Пономарёв
  • Валерия Преображенская
  • Виктория Раубо
  • Николай Рыбаков
  • Василий Рыбаков
  • Мария Салех
  • Александр Стариков
  • Илья Уткин
  • Дмитрий Шурыгин
  • Олег Шурыгин

Проект из каталога (случайный выбор)

Постройки и проекты (новые записи):

  • Общежития Новосибирского государственного университета (НГУ)
  • Детский сад в квартале «СЕТ»
  • Клубный дом на Садовнической, 10
  • Торговый центр в ЖК «Одинбург»
  • Концепция системы строительного ограждения для клубного дома K7/11
  • Многофункциональный комплекс «Тушино»
  • Omni Tower
  • ОМ Ботанический
  • ЖК Амарант

Новости российской архитектуры:

Симфония воды и кирпича
25.03.2026

Симфония воды и кирпича

Степан Липгарт
Дом-Пингвин
24.03.2026

Дом-Пингвин

Александр Скокан, Валерий Каняшин
Волна и вертикаль
23.03.2026

Волна и вертикаль

Григориос Гавалидис, Андрей Сорокин, Мартин Казаков