RSS
Деловой центр
© Студия 44

Деловой центр

информация:

  • статус
    проект
  • даты
    2026
  • region= area= address=площадь Конституции, дом 1-3 country_t=Россия city_t=Санкт-Петербург
    место
    Санкт-Петербург площадь Конституции, дом 1-3
  • координаты
    59.850605, 30.304640
  • функция
    Административно-офисный / деловой центр
  • площадь участка
    1,0537 га
  • общая площадь
    108 069 м2

  • Площадь ВРИ «Деловое управление» – 89 562 м2
    Площадь ВРИ «Служебные гаражи» – 9 290,91 м2
    Площадь подземного гаража – 9 215,67 м2
    Количество вело мест – 880
    Площадь озеленения 1 630
  • кол-во машиномест
    1280
Никита Явейн
Студия 44

авторский коллектив

Никита Явейн, Вера Бурмистрова

Деловой центр
© Студия 44

Архи.ру об этом объекте:

27.02.2026

Алёна Кузнецова. Площадь угасшей звезды

«Студия 44» представила на Градостроительном совете проект развития бизнес-центра Leader Tower, известного как первый небоскреб Санкт-Петербурга. Площадь Конституции, где располагается комплекс, в 1930-е годы задумывалась как важный городской ансамбль, но не была завершена, получив достаточно хаотичный облик. Попытка восстановить целостность и сбить масштаб застройки встретила преимущественно одобрение экспертов.

Никита Явейн начал доклад с истории места, которая для проекта имеет определяющее значение. Площадь Конституции появилась в первом генеральном плане Ленинграда, который создавался под руководством Владимира Витмана и Льва Ильина, в 1935 году: тогда г...   читать дальше
Деловой центр
© Студия 44
Деловой центр
© Студия 44
Деловой центр
© Студия 44
Деловой центр
© Студия 44
Деловой центр
© Студия 44
Деловой центр
© Студия 44
Деловой центр
© Студия 44
Деловой центр
© Студия 44
Деловой центр
© Студия 44
Деловой центр
© Студия 44
Деловой центр
© Студия 44
Деловой центр
© Студия 44
Деловой центр
© Студия 44
Деловой центр
© Студия 44
Деловой центр
© Студия 44
Деловой центр. Проект общественного центра Ленинграда
© архитектор Н.В. Баранов (1940) / предоставлено Студия 44
Деловой центр. Проект ансамбля южной части общегородского центра у Дома Советов на Московском шоссе
© Н.В. Баранов, Е.И Катонов, А.И. Наумов, А.А. Афонченко / предоставлено Студия 44
Деловой центр. Ансамбль площади Конституции 1968 г
Предоставлено Студия 44
Деловой центр. Ситуационный план
© Студия 44
Деловой центр. Фасад с площади Конституции
© Студия 44
Деловой центр. Фасад со стороны двора
© Студия 44
Деловой центр. Схема планируемого местоположения объекта на земельном участке
© Студия 44
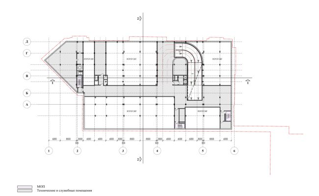
Деловой центр. Схема плана -1 этажа
© Студия 44
Деловой центр. Схема плана 1 этажа
© Студия 44
Деловой центр. Схема плана 2 этажа
© Студия 44
Деловой центр. Схема плана 3 этажа
© Студия 44
Деловой центр. Схема плана 4 этажа
© Студия 44
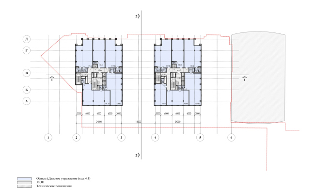
Деловой центр. Схема плана 5-10 этажей
© Студия 44
Деловой центр. Схема плана 11-12 этажей
© Студия 44
Деловой центр. Схема плана 13 этажа
© Студия 44
Деловой центр. Схема плана 14-22 этажа
© Студия 44
Деловой центр. Разрез 1-1
© Студия 44

Архитекторы – партнеры Архи.ру:

  • Борис Воскобойников
  • Николай Переслегин
  • Всеволод Медведев
  • Сергей Чобан
  • Алексей Орлов
  • Григориос Гавалидис
  • Зураб Басария
  • Павел Андреев
  • Андрей Асадов
  • Наталия Шилова
  • Сергей Труханов
  • Виталий Лутц
  • Татьяна Зульхарнеева
  • Дмитрий Остроумов
  • Александр Котенков
  • Андрей Гнездилов
  • Энди Сноу
  • Григорий Мустафин
  • Андрей Романов
  • Александр Асадов
  • Олег Мединский
  • Михаил Давыдов
  • Вера Бутко
  • Никита Явейн
  • Владимир Плоткин
  • Евгений Зеленов
  • Игорь Членов
  • Елена Пучкова
  • Марина Егорова
  • Константин Ходнев
  • Сергей Скуратов
  • Антон Надточий
  • Владислав Андреев
  • Михаил Канунников
  • Степан Липгарт
  • Евгений Подгорнов
  • Дмитрий Ликин
  • Дмитрий Сухов
  • Сергей Никешкин
  • Николай Кикава
  • Игорь Шварцман
  • Александр Самарин
  • Александра Кузьмина
  • Юлия Солдатенкова
  • Раис Баишев
  • Даниил Лоренц
  • Станислав Белых
  • Мария Ахременкова
  • Георгий Трофимов
  • Ерлан Бекмухамедов
  • Иван Кожин
  • Юлий Борисов
  • Илья Машков
  • Валерий Каняшин
  • Евгений Новосадюк
  • Василий Крапивин
  • Анастасия Абашева
  • Екатерина Кузнецова
  • Полина Воеводина
  • Юлия Тряскина
  • Антон Яр-Скрябин
  • Андрей Михайлов
  • Александр Скокан
  • Юлиана Княжевская
  • Дмитрий Буш
  • Сергей Переслегин
  • Олег Шапиро
  • Ростислав Цайзер
  • Сергей Кузнецов
  • Наталья Сидорова
  • Тимур Абдуллаев
  • Екатерина Абдуллаева
  • Маргарита Авдышева
  • Левон Айрапетов
  • Александр Аношкин
  • Алексей Афоничкин
  • Владислав Бек-Булатов
  • Антон Белов
  • Татьяна Бузулукова
  • Петр Васильев
  • Данило Вукосавлевич
  • Алина Георгиевская
  • Павел Гордеев
  • Илья Гринберг
  • Никита Демидов
  • Никита Дергунов
  • Наталья Жилкина
  • Алексей Зародов
  • Екатерина Зырина
  • Алексей Ильин
  • Дарья Ильина
  • Олег Карлсон
  • Алексей Кибкало
  • Денис Кувшинников
  • Анна Куликова
  • Алексей Курков
  • Данил Куров
  • Мария Кутай
  • Евгений Кутай
  • Иван Кычкин
  • Антон Ладыгин
  • Дмитрий Лапин
  • Борис Левянт
  • Илья Левянт
  • Катерина Левянт
  • Валерий Лукомский
  • Антон Лукомский
  • Екатерина Ляпунова
  • Иса Магомедов
  • Сергей Марков
  • Елена Мерцалова
  • Николай Миловидов
  • Станислав Михаловский
  • Сергей Мичурин
  • Олеся Могилевская
  • Филипп Никандров
  • Мария Николаева
  • Дмитрий Овчаров
  • Сергей Пергаев
  • Виктор Перов
  • Алексей Полищук
  • Роман Пономарёв
  • Валерия Преображенская
  • Виктория Раубо
  • Василий Рыбаков
  • Николай Рыбаков
  • Мария Салех
  • Александр Стариков
  • Илья Уткин
  • Елисей Чакан
  • Евгения Чернышева
  • Бориша Чорович
  • Олег Шурыгин
  • Дмитрий Шурыгин

Проект из каталога (случайный выбор)

Малая сцена «Электротеатра Станиславский»
Дмитрий Ликин, Олег Шапиро, 2014 – 2017
Малая сцена «Электротеатра Станиславский»

Постройки и проекты (новые записи):

  • Гостиница в Чите
  • ЖК Квартал 64
  • Деловое пространство «ПЛЭЙН»
  • Конкурсный проект ФИЦ / ТПО «Резерв»
  • Porta
  • Детский сад на 200 мест в Жилино-1
  • Архитектурная концепция кластера Ломоносов-2
  • Клубный дом в 1-м Казачьем переулке
  • Частный дом в Ленинградской области

Новости российской архитектуры:

Развитие и поддержка
20.05.2026

Развитие и поддержка

Евгений Волков, Михаил Онучин, Николай Пищукевич
Скрытый источник
18.05.2026

Скрытый источник

Артем Зайцев
Друзья по крыше
14.05.2026

Друзья по крыше

Евгений Новосадюк, Никита Явейн