RSS
Интерьер холла 3 этажа БЦ Симонов Плаза
Фотография © Илья Готлиб, Rokot Studio

Интерьер холла 3 этажа БЦ Симонов Плаза

информация:

  • статус
    реализовано
  • даты
    2025 / 2025
  • region= area= address=ул. Ленинская Слобода, 26, стр. 5 country_t=Россия city_t=Москва
    место
    Москва ул. Ленинская Слобода, 26, стр. 5
  • координаты
    55.711316, 37.652777
  • функция
    Административно-офисный / бизнес-центр
    Новый объем двух переговорных комнат и зона отдыха в холле бизнес центра
  • теги
    send.project
  • общая площадь
    110 м2
Россия

авторский коллектив

Илья Дмитриевич Готлиб

Интерьер холла 3 этажа БЦ Симонов Плаза
Фотография © Илья Готлиб, Rokot Studio
Интерьер холла 3 этажа БЦ Симонов Плаза
Фотография © Илья Готлиб, Rokot Studio

описание:

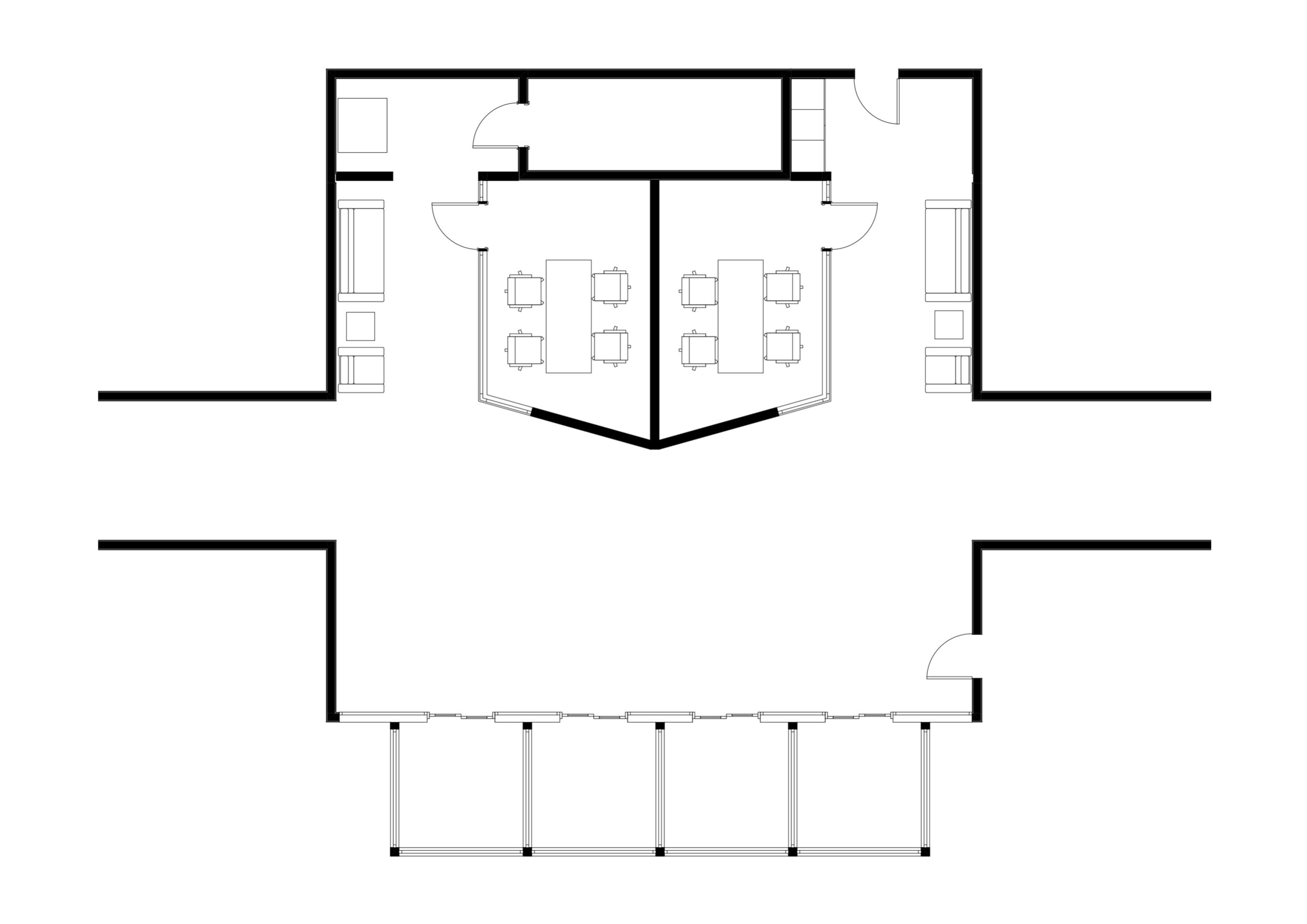
Проект интеграции нового объема переговорных комнат в существующий лифтовой холл бизнес центра «Симонов Плаза». Две новые переговорные комнаты предназначены для проведения совещаний и предоставления этих переговорных в пользование арендаторам и посетителям центра.
 
В центральном пространстве холла возводится новый объем, который симметрично разделяется на две переговорные комнаты. По обе стороны от нового объема, вдоль боковых стен, организуются небольшие мягкие зоны отдыха. Вход в переговорные осуществляется  из этих  зон.
 
Боковые стены нового объема, связанные с зонами отдыха, выполнены из полупрозрачного сатинированного стекла. Эти стеклянные перегородки заворачиваются на фронтальную сторону возводимого объема. Этот фронт, выходящий к лифтам, имеет угловатую выступающую вперед форму. Эта форма подчеркивается падающими тенями.
Интерьер холла 3 этажа БЦ Симонов Плаза
Фотография © Илья Готлиб, Rokot Studio
Интерьер холла 3 этажа БЦ Симонов Плаза
Фотография © Илья Готлиб, Rokot Studio
Интерьер холла 3 этажа БЦ Симонов Плаза
Фотография © Илья Готлиб, Rokot Studio
Интерьер холла 3 этажа БЦ Симонов Плаза
Фотография © Илья Готлиб, Rokot Studio
Интерьер холла 3 этажа БЦ Симонов Плаза
Фотография © Илья Готлиб, Rokot Studio
Интерьер холла 3 этажа БЦ Симонов Плаза
Фотография © Илья Готлиб, Rokot Studio
Интерьер холла 3 этажа БЦ Симонов Плаза
Фотография © Илья Готлиб, Rokot Studio
Интерьер холла 3 этажа БЦ Симонов Плаза. Аксонометрия
© Rokot Studio
Интерьер холла 3 этажа БЦ Симонов Плаза. План холла
© Rokot Studio
Интерьер холла 3 этажа БЦ Симонов Плаза. Фронтальная развертка
© Rokot Studio
Интерьер холла 3 этажа БЦ Симонов Плаза
© Rokot Studio
Интерьер холла 3 этажа БЦ Симонов Плаза
© Rokot Studio

Архитекторы – партнеры Архи.ру:

  • Илья Машков
  • Александра Кузьмина
  • Антон Надточий
  • Дмитрий Ликин
  • Дмитрий Сухов
  • Юлиана Княжевская
  • Алексей Орлов
  • Наталия Шилова
  • Ростислав Цайзер
  • Дмитрий Остроумов
  • Василий Крапивин
  • Всеволод Медведев
  • Раис Баишев
  • Евгений Подгорнов
  • Марина Егорова
  • Екатерина Кузнецова
  • Игорь Членов
  • Сергей Никешкин
  • Андрей Михайлов
  • Антон Яр-Скрябин
  • Георгий Трофимов
  • Григорий Мустафин
  • Константин Ходнев
  • Вера Бутко
  • Николай Кикава
  • Николай Переслегин
  • Григориос Гавалидис
  • Татьяна Зульхарнеева
  • Ерлан Бекмухамедов
  • Андрей Асадов
  • Олег Мединский
  • Сергей Чобан
  • Александр Самарин
  • Александр Скокан
  • Владислав Андреев
  • Даниил Лоренц
  • Юлий Борисов
  • Энди Сноу
  • Игорь Шварцман
  • Юлия Тряскина
  • Евгений Зеленов
  • Дмитрий Буш
  • Юлия Солдатенкова
  • Анастасия Абашева
  • Евгений Новосадюк
  • Наталья Сидорова
  • Андрей Романов
  • Зураб Басария
  • Валерий Каняшин
  • Елена Пучкова
  • Алексей Гинзбург
  • Сергей Скуратов
  • Александр Котенков
  • Сергей Переслегин
  • Сергей Труханов
  • Михаил Канунников
  • Станислав Белых
  • Виталий Лутц
  • Александр Асадов
  • Владимир Плоткин
  • Иван Кожин
  • Павел Андреев
  • Сергей Кузнецов
  • Андрей Гнездилов
  • Степан Липгарт
  • Олег Шапиро
  • Михаил Давыдов
  • Полина Воеводина
  • Никита Явейн
  • Тимур Абдуллаев
  • Екатерина Абдуллаева
  • Маргарита Авдышева
  • Левон Айрапетов
  • Александр Аношкин
  • Алексей Афоничкин
  • Владислав Бек-Булатов
  • Антон Белов
  • Татьяна Бузулукова
  • Петр Васильев
  • Данило Вукосавлевич
  • Алина Георгиевская
  • Павел Гордеев
  • Илья Гринберг
  • Никита Демидов
  • Никита Дергунов
  • Наталья Жилкина
  • Алексей Зародов
  • Екатерина Зырина
  • Алексей Ильин
  • Дарья Ильина
  • Олег Карлсон
  • Алексей Кибкало
  • Денис Кувшинников
  • Анна Куликова
  • Алексей Курков
  • Данил Куров
  • Мария Кутай
  • Евгений Кутай
  • Иван Кычкин
  • Антон Ладыгин
  • Дмитрий Лапин
  • Илья Левянт
  • Катерина Левянт
  • Борис Левянт
  • Валерий Лукомский
  • Антон Лукомский
  • Екатерина Ляпунова
  • Сергей Марков
  • Елена Мерцалова
  • Николай Миловидов
  • Станислав Михаловский
  • Олеся Могилевская
  • Мария Николаева
  • Дмитрий Овчаров
  • Виктор Перов
  • Алексей Полищук
  • Роман Пономарёв
  • Валерия Преображенская
  • Виктория Раубо
  • Василий Рыбаков
  • Николай Рыбаков
  • Мария Салех
  • Александр Стариков
  • Илья Уткин
  • Елисей Чакан
  • Дмитрий Шурыгин
  • Олег Шурыгин

Проект из каталога (случайный выбор)

Железнодорожный вокзал в Астане
Иван Кожин, Никита Явейн, 2011 – 2010
Железнодорожный вокзал в Астане

Постройки и проекты (новые записи):

  • Навесы Ленинградского вокзала
  • Общежития Новосибирского государственного университета (НГУ)
  • Детский сад в квартале «СЕТ»
  • Клубный дом на Садовнической, 10
  • Торговый центр в ЖК «Одинбург»
  • Многофункциональный комплекс «Тушино»
  • Omni Tower
  • ОМ Ботанический
  • ЖК Амарант

Новости российской архитектуры:

Сезонные настроения
04.04.2026

Сезонные настроения

Кристина Лазарева, Надежда Голубева