RSS
Ресторан Relict
Фотография © Сергей Ананьев / предоставлена LEFTdesign

Ресторан Relict

информация:

Россия

авторский коллектив

Геннадий Дежурных, Анна Гавричкова

Ресторан Relict
Фотография © Сергей Ананьев / предоставлена LEFTdesign

Архи.ру об этом объекте:

13.02.2026

Елена Петухова. Первобытная мощь, или назад в будущее

Говорящее название ресторана «Реликт» вдохновило архитекторов бюро LEFT design на создание необычного интерьера – брутального и немного фантазийного. Представив, как выглядел бы мир спустя годы после исчезновения человечества, они соединили природную эстетику и постапокалиптический дизайн в харизматичный ансамбль.

От редакцииАссоциативные ряды бесконечный источник образов, которые можно трансформировать в дизайнерские решения: приемы, объекты, материалы и цвета. И в этом отношении дизайн интерьеров ресторанов находится в привилегированном положении, так как...   читать дальше
Ресторан Relict
Фотография © Сергей Ананьев / предоставлена LEFTdesign

история проекта:

Самая основная задача, от которой мы отталкиваемся в своей работе – продолжить и раскрыть концепцию заведения, создав целостный эмоционально наполненный проект.

Relict – ресторан современной авторской кухни на основе локальных продуктов регионов, где гости могут насладиться специалитетами из разных уголков страны. Нам предстояло отразить идею нетронутой природы в интерьере пространства с панорамными окнами, расположенного в самом сердце мегаполиса: органично «вписать» реликтовый лес в урбанистическую «коробку».

описание:

Relict – ресторан современной авторской кухни на основе локальных продуктов регионов страны, где гости могут насладиться специалитетами из разных уголков страны.

Нетронутый цивилизацией лес во всем его великолепии лег в основу концепции заведения и ярко раскрывается в интерьере проекта. По задумке авторов проекта ресторан представляет собой картину далекого будущего, в котором природа отвоевала у индустриальной Москвы частичку пространства. В элементах декора и предметах мебели можно уловить авторское прочтение русского стиля. В интерьере можно увидеть множество принтов, паттернов и других декоративных решений в стиле мезенской росписи – русского народного промысла конца 19 в., зародившегося в деревне на берегу реки Мезени, считавшейся центром росписи по дереву. Отсылки в проекте к мезенской культуре обусловлены тем, что именно там, в республике Коми,находится самый крупный реликтовый лес Евразийского континента. Паттерны, выполненные в стиле традиционного ремесла народов севера России, обретают глубокий смысл и выступают в интерьере связующим элементом. Это авторская интерпретация реликта, символизирующаялокальную и культурную идентичность, и в то же время отсылающая к локации природного заповедника.
Ресторан Relict
Фотография © Сергей Ананьев / предоставлена LEFTdesign
Ресторан Relict
Фотография © Сергей Ананьев / предоставлена LEFTdesign
Ресторан Relict
Фотография © Сергей Ананьев / предоставлена LEFTdesign
Ресторан Relict
Фотография © Сергей Ананьев / предоставлена LEFTdesign
Ресторан Relict
Фотография © Сергей Ананьев / предоставлена LEFTdesign
Ресторан Relict
Фотография © Сергей Ананьев / предоставлена LEFTdesign
Ресторан Relict
Фотография © Сергей Ананьев / предоставлена LEFTdesign
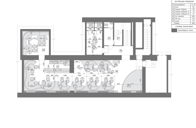
План -1 этажа
© LEFTdesign
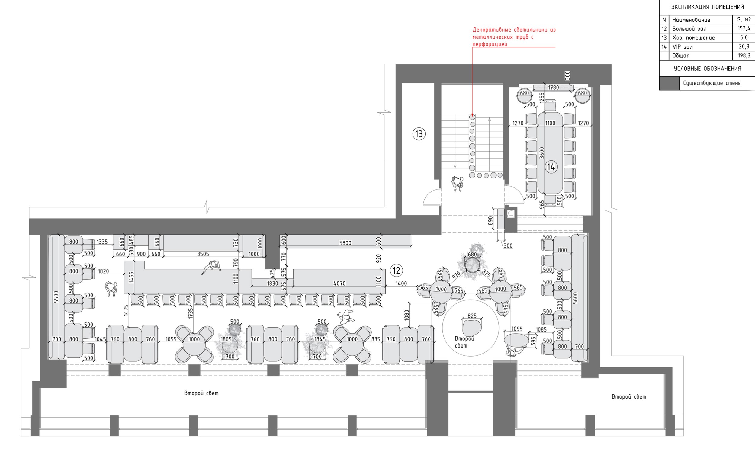
План 1 этажа
© LEFTdesign
План 2 этажа
© LEFTdesign

Архитекторы – партнеры Архи.ру:

  • Александра Кузьмина
  • Даниил Лоренц
  • Валерий Каняшин
  • Александр Котенков
  • Илья Машков
  • Екатерина Кузнецова
  • Евгений Зеленов
  • Дмитрий Остроумов
  • Иван Кожин
  • Виталий Лутц
  • Николай Кикава
  • Юлия Солдатенкова
  • Станислав Белых
  • Ерлан Бекмухамедов
  • Алексей Орлов
  • Татьяна Зульхарнеева
  • Анастасия Абашева
  • Павел Андреев
  • Константин Ходнев
  • Евгений Новосадюк
  • Анна Иванова
  • Василий Крапивин
  • Владислав Андреев
  • Михаил Канунников
  • Елена Пучкова
  • Сергей Скуратов
  • Владимир Плоткин
  • Полина Воеводина
  • Олег Мединский
  • Андрей Асадов
  • Зураб Басария
  • Георгий Трофимов
  • Наталья Сидорова
  • Николай Переслегин
  • Дмитрий Буш
  • Андрей Романов
  • Олег Шапиро
  • Андрей Гнездилов
  • Сергей Никешкин
  • Александр Самарин
  • Антон Яр-Скрябин
  • Раис Баишев
  • Сергей Кузнецов
  • Андрей Михайлов
  • Юлия Тряскина
  • Всеволод Медведев
  • Андрей Чуйков
  • Сергей Чобан
  • Сергей Переслегин
  • Степан Липгарт
  • Александр Скокан
  • Сергей Труханов
  • Юлий Борисов
  • Ростислав Цайзер
  • Дмитрий Сухов
  • Дмитрий Ликин
  • Марина Егорова
  • Григорий Мустафин
  • Никита Явейн
  • Игорь Членов
  • Михаил Давыдов
  • Евгений Подгорнов
  • Александр Асадов
  • Наталия Шилова
  • Игорь Шварцман
  • Юлиана Княжевская
  • Энди Сноу
  • Вера Бутко
  • Роман Леонидов
  • Антон Надточий
  • Григориос Гавалидис
  • Алексей Гинзбург
  • Тимур Абдуллаев
  • Екатерина Абдуллаева
  • Маргарита Авдышева
  • Левон Айрапетов
  • Александр Аношкин
  • Алексей Афоничкин
  • Владислав Бек-Булатов
  • Антон Белов
  • Татьяна Бузулукова
  • Петр Васильев
  • Алина Георгиевская
  • Павел Гордеев
  • Илья Гринберг
  • Никита Демидов
  • Никита Дергунов
  • Наталья Жилкина
  • Алексей Зародов
  • Екатерина Зырина
  • Алексей Ильин
  • Дарья Ильина
  • Олег Карлсон
  • Алексей Кибкало
  • Денис Кувшинников
  • Анна Куликова
  • Алексей Курков
  • Алексей Курков
  • Данил Куров
  • Евгений Кутай
  • Мария Кутай
  • Антон Ладыгин
  • Антон Ладыгин
  • Дмитрий Лапин
  • Катерина Левянт
  • Илья Левянт
  • Борис Левянт
  • Антон Лукомский
  • Валерий Лукомский
  • Екатерина Ляпунова
  • Сергей Марков
  • Николай Миловидов
  • Станислав Михаловский
  • Олеся Могилевская
  • Мария Николаева
  • Виктор Перов
  • Алексей Полищук
  • Роман Пономарёв
  • Валерия Преображенская
  • Виктория Раубо
  • Николай Рыбаков
  • Василий Рыбаков
  • Мария Салех
  • Александр Стариков
  • Илья Уткин
  • Олег Шурыгин
  • Дмитрий Шурыгин

Проект из каталога (случайный выбор)

Постройки и проекты (новые записи):

  • ЖК Лесное ожерелье
  • Клубный дом «Хамовники 12»
  • Усадьба «Павлово»
  • Проект общественно-делового комплекса у станции метро «Ботанический Сад» / Genpro
  • Проект общественно-делового комплекса у станции метро «Ботанический Сад» / UNK
  • Бизнес-центр «Триград»
  • БЦ в Раменках
  • Бизнес-центр (на месте ТЦ «Старт»)
  • DELO HOUSE 3.2 с флигелем

Новости российской архитектуры:

Орел или решка
05.03.2026

Орел или решка

Ксения Караваева, Мурат Гукетлов
Стены помогают
04.03.2026

Стены помогают

Андрей Михайлов, Сергей Никешкин
Лодка, раскрой паруса
03.03.2026

Лодка, раскрой паруса

Юлий Борисов
Карельский разлом
02.03.2026

Карельский разлом

Евгений Задорожний
Обзор проектов 23-28 февраля
01.03.2026

Обзор проектов 23-28 февраля

Евгений Герасимов, Марко Казамонти