RSS
Ponte Veccio
© СИВИЛ

Ponte Veccio

информация:

  • статус
    проект
  • даты
    2024
  • region= area= address=ул. Касаткина country_t=Россия city_t=Москва
    место
    Москва ул. Касаткина
  • функция
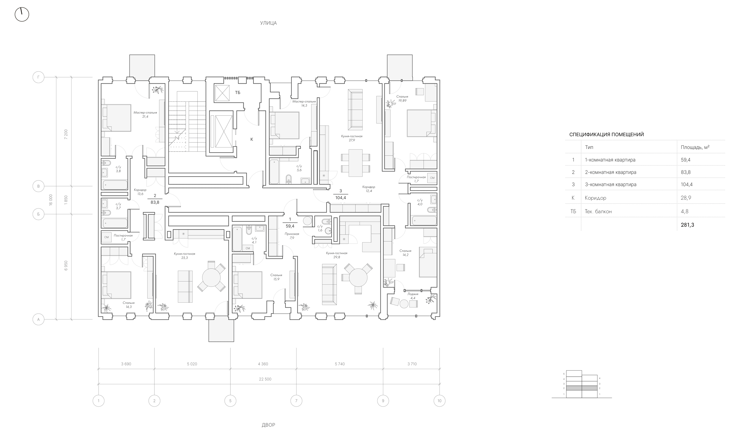
    Жилой / апартаменты длительного проживания
  • площадь застройки
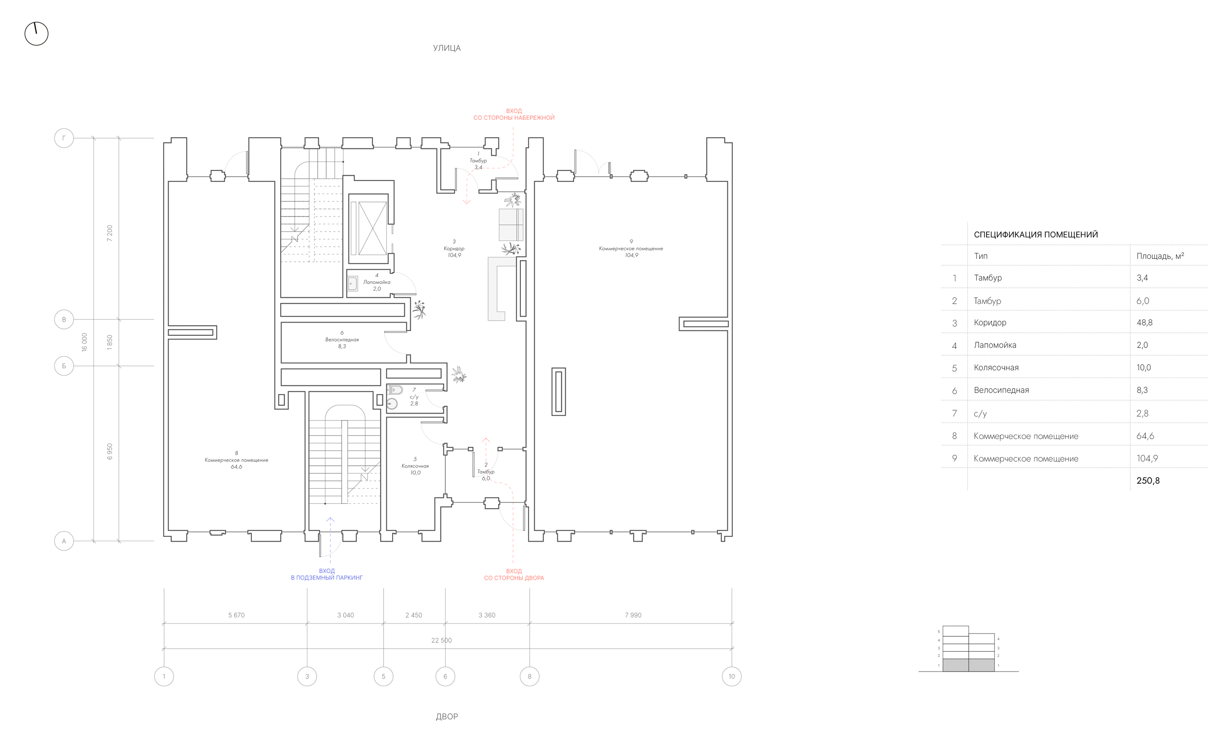
    360,3 м2
  • этажность
    5
Данил Куров
СИВИЛ

авторский коллектив

Руководители бюро СИВИЛ – Данил Куров, Марк Хорев; архитекторы – Данил Куров, Мария Огородникова

партнеры, заказчики, смежники

Заказчик: FORMA
Ponte Veccio
© СИВИЛ
Ponte Veccio
© СИВИЛ

описание:

Ponte Vecchio [понте векью]

Бюро СИВИЛ участвовало в конкурсе на разработку архитектурной концепции урбан-блока. Девелопер FORMA распределил секции комплекса апартаментов между несколькими бюро, чтобы каждая команда представила своё видение в рамках общей концепции.

Перед архитекторами стояла задача создать апартаменты с панорамными окнами и террасами, продумать объёмные решения и сформировать непрерывный фронт вдоль воды. В проекте должны были появиться возможные отступы на верхних этажах, лоджии, французские балконы, разнообразные дворовые фасады и скрытая интеграция инженерных элементов.

Команда СИВИЛ предложила концепцию Ponte Vecchio – образ, вдохновлённый арочным силуэтом Ростокинского акведука, линией набережной и итальянскими городами, где мосты становятся частью повседневной городской ткани. Апартаменты были задуманы как связующее звено между разными частями квартала, как городской «переход», в котором соединяются жилая функция и ощущение близости реки.

Небольшая этажность и панорамные окна, ориентированные на набережную, создают лёгкое туристическое настроение, а строгая пластика фасадов подчеркивает приверженность бюро минимализму. Так рождается культурная отсылка к одноимённому флорентийскому мосту – настроение повседневной городской поэзии: позднее утро у воды, свет, просачивающийся сквозь ткань штор, запах кофе и цветов, тишина, в которой слышен лёгкий скрип старого проигрывателя.

Ponte Veccio
© СИВИЛ
Ponte Veccio
© СИВИЛ
Ponte Veccio
© СИВИЛ
Ponte Veccio
© СИВИЛ
Ponte Veccio
© СИВИЛ
Ponte Veccio
© СИВИЛ
Ponte Veccio
© СИВИЛ
Ponte Veccio
© СИВИЛ
Ponte Veccio. Схема массинга
© СИВИЛ
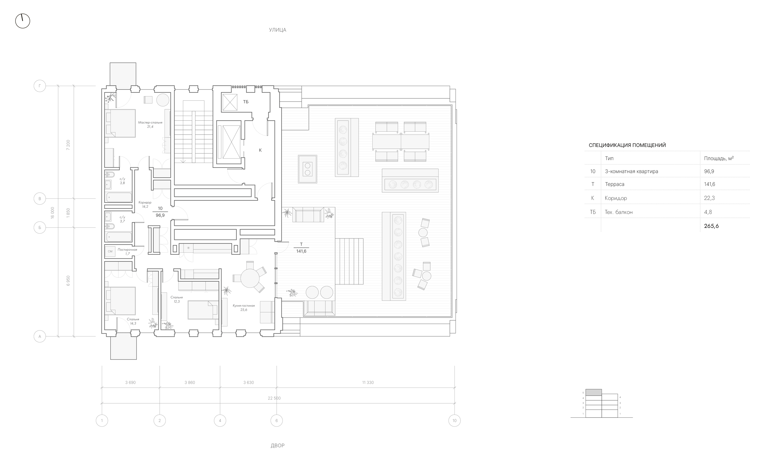
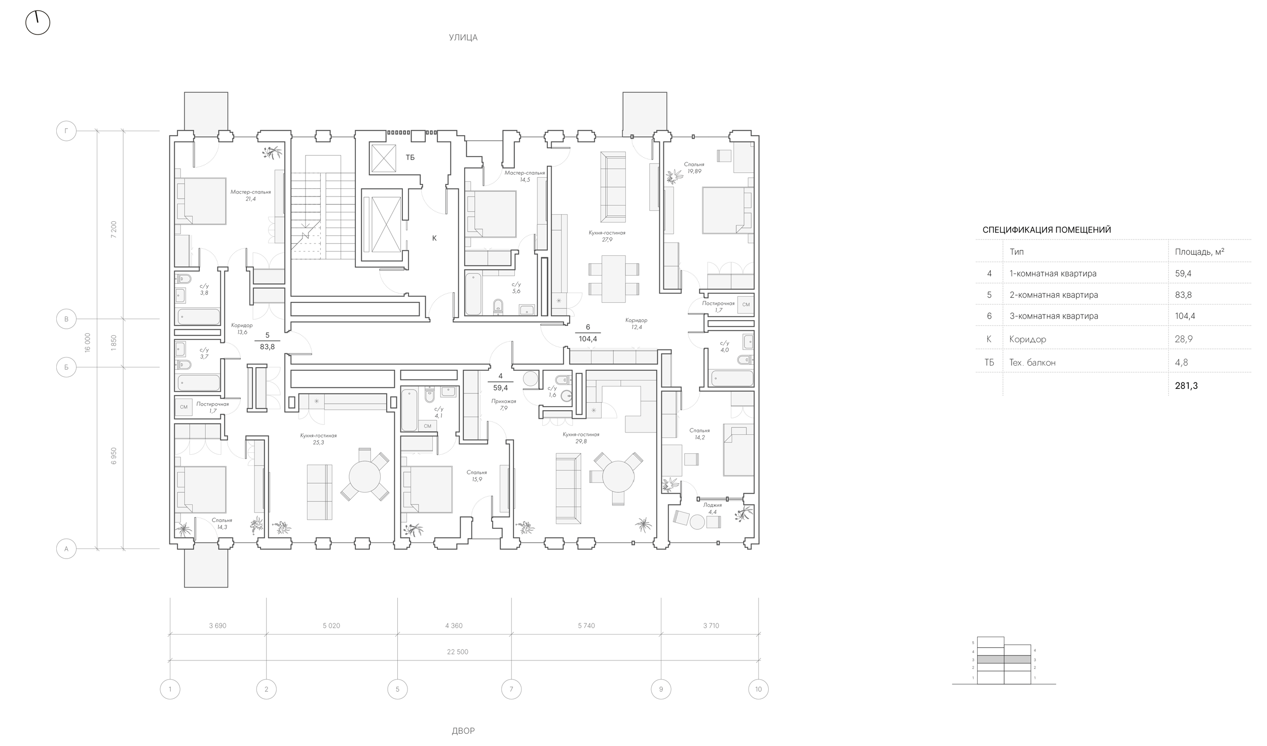
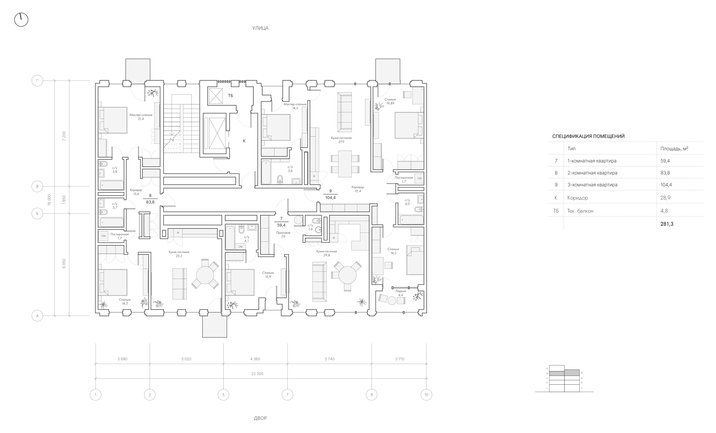
Ponte Veccio. План 1этажа
© СИВИЛ
Ponte Veccio. План 2 этажа
© СИВИЛ
Ponte Veccio. План 3 этажа
© СИВИЛ
Ponte Veccio. План 4 этажа
© СИВИЛ
Ponte Veccio. План 5 этажа
© СИВИЛ
Ponte Veccio. Фасадные решения
© СИВИЛ
Ponte Veccio. Фасадные решения
© СИВИЛ
Ponte Veccio
© СИВИЛ

Архитекторы – партнеры Архи.ру:

  • Антон Надточий
  • Дмитрий Остроумов
  • Анастасия Абашева
  • Андрей Романов
  • Сергей Переслегин
  • Антон Яр-Скрябин
  • Владимир Плоткин
  • Сергей Никешкин
  • Алексей Орлов
  • Игорь Членов
  • Сергей Труханов
  • Григорий Мустафин
  • Владислав Андреев
  • Юлия Тряскина
  • Вера Бутко
  • Александр Самарин
  • Сергей Чобан
  • Раис Баишев
  • Евгений Зеленов
  • Андрей Гнездилов
  • Никита Явейн
  • Александр Котенков
  • Павел Андреев
  • Александр Асадов
  • Дмитрий Ликин
  • Станислав Белых
  • Григориос Гавалидис
  • Екатерина Кузнецова
  • Игорь Шварцман
  • Виталий Лутц
  • Илья Машков
  • Николай Переслегин
  • Даниил Лоренц
  • Ростислав Цайзер
  • Дмитрий Сухов
  • Олег Мединский
  • Василий Крапивин
  • Елена Пучкова
  • Евгений Подгорнов
  • Александр Скокан
  • Юлиана Княжевская
  • Константин Ходнев
  • Валерий Каняшин
  • Анна Иванова
  • Дмитрий Буш
  • Наталья Сидорова
  • Сергей Скуратов
  • Юлия Солдатенкова
  • Полина Воеводина
  • Наталия Шилова
  • Ерлан Бекмухамедов
  • Евгений Новосадюк
  • Андрей Асадов
  • Андрей Михайлов
  • Юлий Борисов
  • Марина Егорова
  • Энди Сноу
  • Роман Леонидов
  • Татьяна Зульхарнеева
  • Николай Кикава
  • Сергей Кузнецов
  • Александра Кузьмина
  • Михаил Канунников
  • Олег Шапиро
  • Иван Кожин
  • Георгий Трофимов
  • Степан Липгарт
  • Зураб Басария
  • Всеволод Медведев
  • Михаил Давыдов
  • Андрей Чуйков
  • Алексей Гинзбург
  • Тимур Абдуллаев
  • Екатерина Абдуллаева
  • Маргарита Авдышева
  • Левон Айрапетов
  • Александр Аношкин
  • Алексей Афоничкин
  • Владислав Бек-Булатов
  • Антон Белов
  • Татьяна Бузулукова
  • Петр Васильев
  • Алина Георгиевская
  • Павел Гордеев
  • Илья Гринберг
  • Никита Демидов
  • Никита Дергунов
  • Наталья Жилкина
  • Алексей Зародов
  • Екатерина Зырина
  • Алексей Ильин
  • Дарья Ильина
  • Олег Карлсон
  • Алексей Кибкало
  • Денис Кувшинников
  • Анна Куликова
  • Алексей Курков
  • Алексей Курков
  • Данил Куров
  • Евгений Кутай
  • Мария Кутай
  • Антон Ладыгин
  • Антон Ладыгин
  • Дмитрий Лапин
  • Борис Левянт
  • Катерина Левянт
  • Илья Левянт
  • Антон Лукомский
  • Валерий Лукомский
  • Екатерина Ляпунова
  • Сергей Марков
  • Николай Миловидов
  • Станислав Михаловский
  • Олеся Могилевская
  • Мария Николаева
  • Виктор Перов
  • Алексей Полищук
  • Роман Пономарёв
  • Валерия Преображенская
  • Виктория Раубо
  • Николай Рыбаков
  • Василий Рыбаков
  • Мария Салех
  • Александр Стариков
  • Илья Уткин
  • Дмитрий Шурыгин
  • Олег Шурыгин

Проект из каталога (случайный выбор)

Жилой дом в Московской области
Олег Карлсон, 1999 – 1999
Жилой дом в Московской области

Постройки и проекты (новые записи):

  • ЖК Лесное ожерелье
  • Клубный дом «Хамовники 12»
  • Проект общественно-делового комплекса у станции метро «Ботанический Сад» / Genpro
  • Проект общественно-делового комплекса у станции метро «Ботанический Сад» / UNK
  • Бизнес-центр «Триград»
  • БЦ в Раменках
  • Бизнес-центр (на месте ТЦ «Старт»)
  • DELO HOUSE 3.2 с флигелем
  • Благотворительный фонд им. Алены Петровой

Новости российской архитектуры:

Лодка, раскрой паруса
03.03.2026

Лодка, раскрой паруса

Юлий Борисов
Карельский разлом
02.03.2026

Карельский разлом

Евгений Задорожний
Обзор проектов 23-28 февраля
01.03.2026

Обзор проектов 23-28 февраля

Евгений Герасимов, Марко Казамонти
Памяти Валерия Каняшина
01.03.2026

Памяти Валерия Каняшина

Валерий Каняшин