RSS
Дом Евангелия
© СИВИЛ

Дом Евангелия

информация:

  • статус
    проект
  • даты
    06.2024 — 02.2025
  • region= area= address=ул. 24-я линия Васильевского острова, д.3-7, лит. А country_t=Россия city_t=Санкт-Петербург
    место
    Санкт-Петербург ул. 24-я линия Васильевского острова, д.3-7, лит. А
  • координаты
    59.931071, 30.263406
  • функция
    Культовый / Церковь
  • общая площадь
    3 025 м2
  • высота
    19
  • этажность
    4
Данил Куров
СИВИЛ

авторский коллектив

Руководители бюро СИВИЛ – Данил Куров, Марк Хорев; архитекторы – Данил Куров, Елена Парникова, Дарья Седова

партнеры, заказчики, смежники

Заказчик: Санкт-Петербургская церковь Евангельских христиан-баптистов
Дом Евангелия
© СИВИЛ
Дом Евангелия
© СИВИЛ

описание:

Дом Евангелия: проект ревитализации

Дом Евангелия на 24-й линии Васильевского острова – один из первых молитвенных домов евангельских христиан в России, построенный в 1910–1911 годах на месте фабрики «Пальке». После войны здесь размещался госпиталь, в 1917 году здание конфисковали, а в начале 1930-х прекратили богослужения и передали объект государственным организациям. В последующие десятилетия дом использовали как подсобное и производственное помещение. В 2024 году здание было возвращено Объединению Церквей евангельских христиан-баптистов Санкт-Петербурга и Ленинградской области.

Проект ревитализации предполагает восстановление исторического двора и создание новых элементов благоустройства. Архитекторы СИВИЛ предлагают вернуть композицию ограды и кованую надпись над воротами, обозначить вход колоннами-пропилеями с подсветкой и открыть территорию для посещения в любое время суток.

Лёгкая колокольня из тонких металлических трубок формирует новую вертикальную доминанту ансамбля. На соседнем брандмауэре планируется разместить мурал со строками из книги пророка Исаии, подчеркивающий тему света, надежды и покоя в окружении индустриальной застройки.

Перед главным фасадом создаётся небольшой амфитеатр для публичных выступлений и городских встреч. Новая организация двора объединяет пешеходное пространство, функциональные зоны и летнюю веранду кафе Фетлера.

Световая среда – многослойная: восстановленные вывески, архитектурная подсветка фасада и мурала, внутреннее свечение колокольни создают цельный образ пространства.

Новые городские функции – кафе, букстор, коворкинг и небольшой музей – связаны с историей Дома Евангелия и фигурой проповедника Вильгельма Фетлера. Кафе напоминает о кондитерской фабрике, некогда находившейся на этом месте, букстор продолжает традицию дореволюционного издательского дома, а коворкинг ФЕТЛЕР символически отсылает к созидательному труду Фетлера.

Восстановленные вывески «Дом Евангелия» и «Бог есть Любовь», колонны-пропилеи и продуманная подсветка формируют цельный, почти сакральный образ пространства. Главная задача проекта – бережно приспособить Дом Евангелия к современным городским сценариям. Обновлённая территория сможет жить активной жизнью и вне церковных событий, становясь открытой площадкой для широкой программы мероприятий.

Дом Евангелия
© СИВИЛ
Дом Евангелия
© СИВИЛ
Дом Евангелия
© СИВИЛ
Дом Евангелия
© СИВИЛ
Дом Евангелия
© СИВИЛ
Дом Евангелия
© СИВИЛ
Дом Евангелия
© СИВИЛ
Дом Евангелия
© СИВИЛ
Дом Евангелия
© СИВИЛ
Дом Евангелия
© СИВИЛ
Дом Евангелия
© СИВИЛ
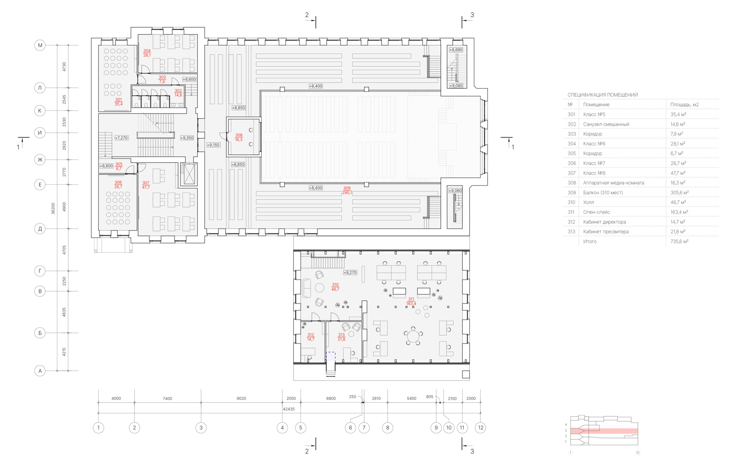
Дом Евангелия. План 1 этажа
© СИВИЛ
Дом Евангелия. План 2 этажа
© СИВИЛ
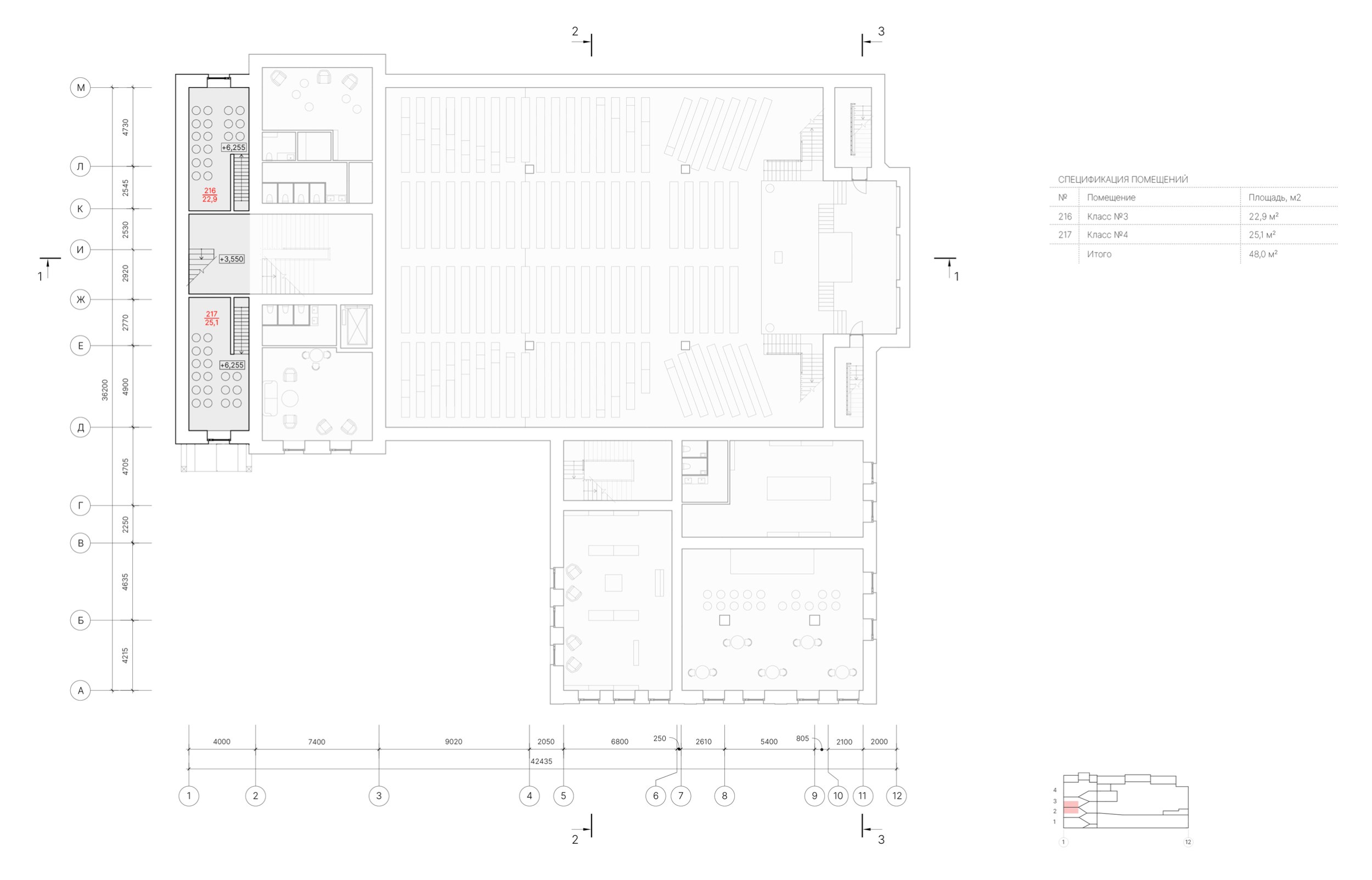
Дом Евангелия. План на отметке +3,550
© СИВИЛ
Дом Евангелия. План 3 этажа
© СИВИЛ
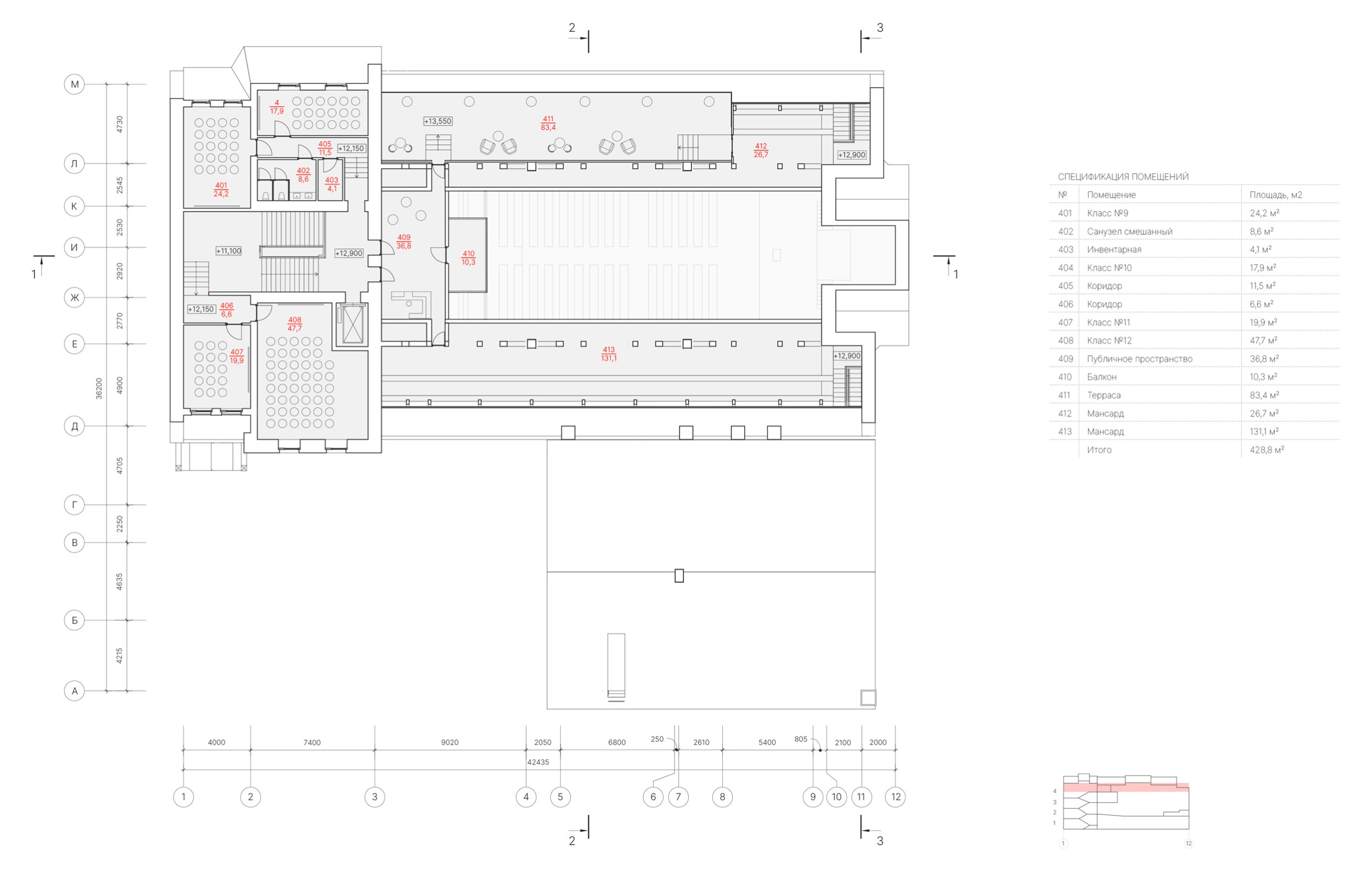
Дом Евангелия. План 4 этажа
© СИВИЛ
Дом Евангелия. Разрез 1-1
© СИВИЛ
Дом Евангелия. Разрез 2-2
© СИВИЛ
Дом Евангелия. Разрез 3-3
© СИВИЛ

Архитекторы – партнеры Архи.ру:

  • Антон Надточий
  • Дмитрий Остроумов
  • Анастасия Абашева
  • Андрей Романов
  • Сергей Переслегин
  • Антон Яр-Скрябин
  • Владимир Плоткин
  • Сергей Никешкин
  • Алексей Орлов
  • Игорь Членов
  • Сергей Труханов
  • Григорий Мустафин
  • Владислав Андреев
  • Юлия Тряскина
  • Вера Бутко
  • Александр Самарин
  • Сергей Чобан
  • Раис Баишев
  • Евгений Зеленов
  • Андрей Гнездилов
  • Никита Явейн
  • Александр Котенков
  • Павел Андреев
  • Александр Асадов
  • Дмитрий Ликин
  • Станислав Белых
  • Григориос Гавалидис
  • Екатерина Кузнецова
  • Игорь Шварцман
  • Виталий Лутц
  • Илья Машков
  • Николай Переслегин
  • Даниил Лоренц
  • Ростислав Цайзер
  • Дмитрий Сухов
  • Олег Мединский
  • Василий Крапивин
  • Елена Пучкова
  • Евгений Подгорнов
  • Александр Скокан
  • Юлиана Княжевская
  • Константин Ходнев
  • Валерий Каняшин
  • Анна Иванова
  • Дмитрий Буш
  • Наталья Сидорова
  • Сергей Скуратов
  • Юлия Солдатенкова
  • Полина Воеводина
  • Наталия Шилова
  • Ерлан Бекмухамедов
  • Евгений Новосадюк
  • Андрей Асадов
  • Андрей Михайлов
  • Юлий Борисов
  • Марина Егорова
  • Энди Сноу
  • Роман Леонидов
  • Татьяна Зульхарнеева
  • Николай Кикава
  • Сергей Кузнецов
  • Александра Кузьмина
  • Михаил Канунников
  • Олег Шапиро
  • Иван Кожин
  • Георгий Трофимов
  • Степан Липгарт
  • Зураб Басария
  • Всеволод Медведев
  • Михаил Давыдов
  • Андрей Чуйков
  • Алексей Гинзбург
  • Тимур Абдуллаев
  • Екатерина Абдуллаева
  • Маргарита Авдышева
  • Левон Айрапетов
  • Александр Аношкин
  • Алексей Афоничкин
  • Владислав Бек-Булатов
  • Антон Белов
  • Татьяна Бузулукова
  • Петр Васильев
  • Алина Георгиевская
  • Павел Гордеев
  • Илья Гринберг
  • Никита Демидов
  • Никита Дергунов
  • Наталья Жилкина
  • Алексей Зародов
  • Екатерина Зырина
  • Алексей Ильин
  • Дарья Ильина
  • Олег Карлсон
  • Алексей Кибкало
  • Денис Кувшинников
  • Анна Куликова
  • Алексей Курков
  • Алексей Курков
  • Данил Куров
  • Евгений Кутай
  • Мария Кутай
  • Антон Ладыгин
  • Антон Ладыгин
  • Дмитрий Лапин
  • Борис Левянт
  • Катерина Левянт
  • Илья Левянт
  • Антон Лукомский
  • Валерий Лукомский
  • Екатерина Ляпунова
  • Сергей Марков
  • Николай Миловидов
  • Станислав Михаловский
  • Олеся Могилевская
  • Мария Николаева
  • Виктор Перов
  • Алексей Полищук
  • Роман Пономарёв
  • Валерия Преображенская
  • Виктория Раубо
  • Николай Рыбаков
  • Василий Рыбаков
  • Мария Салех
  • Александр Стариков
  • Илья Уткин
  • Дмитрий Шурыгин
  • Олег Шурыгин

Проект из каталога (случайный выбор)

Жилой дом в Московской области
Олег Карлсон, 1999 – 1999
Жилой дом в Московской области

Постройки и проекты (новые записи):

  • ЖК Лесное ожерелье
  • Клубный дом «Хамовники 12»
  • Проект общественно-делового комплекса у станции метро «Ботанический Сад» / Genpro
  • Проект общественно-делового комплекса у станции метро «Ботанический Сад» / UNK
  • Бизнес-центр «Триград»
  • БЦ в Раменках
  • Бизнес-центр (на месте ТЦ «Старт»)
  • DELO HOUSE 3.2 с флигелем
  • Благотворительный фонд им. Алены Петровой

Новости российской архитектуры:

Лодка, раскрой паруса
03.03.2026

Лодка, раскрой паруса

Юлий Борисов
Карельский разлом
02.03.2026

Карельский разлом

Евгений Задорожний
Обзор проектов 23-28 февраля
01.03.2026

Обзор проектов 23-28 февраля

Евгений Герасимов, Марко Казамонти
Памяти Валерия Каняшина
01.03.2026

Памяти Валерия Каняшина

Валерий Каняшин