RSS
Жилой квартал в Екатеринбурге
© KPLN («Крупный план»)

Жилой квартал в Екатеринбурге

информация:

  • статус
    проект
  • даты
    2025
  • region= area= address=ул.Восточная, 33 country_t=Россия city_t=Екатеринбург
    место
    Екатеринбург ул.Восточная, 33
  • координаты
    56.822556, 60.639842
  • функция
    Жилой / жилой комплекс
Сергей Никешкин

авторский коллектив

Сергей Никешкин, Евгений Железко, Сергей Махновецкий, Татьяна Когутяк, Саид Гулиев, Дарья Калугина

партнеры, заказчики, смежники

Девелопер: Девелоперская компания «Люди»
Жилой квартал в Екатеринбурге
© KPLN («Крупный план»)

Архи.ру об этом объекте:

04.02.2026

Алёна Кузнецова. Веретено и нить

Концепцию жилого комплекса «Вэйвер» в Екатеринбурге питает прошлое Паркового района: чтобы сохранить память о льнопрядильной фабрике конца XIX века, бюро KPLN (Крупный план) обращается к теме текстиля и ткацкого ремесла. Главным выразительным приемом стали ленты из перфорированной атмосферостойкой стали – в российских жилых проектах материал в таких объемах, пожалуй, еще не использовался.

Жилой комплекс Вэйвер планируют строить в микрорайоне Парковый. Сегодня эта часть города считается скорее центральной, но проложенная в XIX веке улица Восточная обозначала предел Екатеринбурга. Квартал, с которым работает бюро KPLN, располагается ...   читать дальше
Жилой квартал в Екатеринбурге
© KPLN («Крупный план»)

описание:

Жилой квартал в Екатеринбурге по улице Восточной – диалог истории и современности. В основе проекта лежит наследие Льнопрядильной фабрики братьев Макаровых, построенной в 1898 году, чьи краснокирпичные корпуса частично сохранились до сих пор.

Архитекторы KPLN переосмыслили текстильную тему через эстетику фасадов: металлическая лента из кортена с перфорацией, оплетающая блоки кондиционирования, напоминает переплетение нитей – отсылка к ткацкому прошлому. Терракотовые вставки под клинкерный кирпич связывают комплекс с историей и дореволюционной застройкой.
Сложная пластика фасадов и 100-метровая башня придают проекту доминантный и неповторимый вид.

В основе благоустройства жилого квартала также считывается концепция «переплетения нитей». Геопластика создает мягкий волнообразный рельеф, напоминающий складки ткани. Проект сохраняет дух места, превращая индустриальное наследие в комфортную и привлекательную среду.
Жилой квартал в Екатеринбурге
© KPLN («Крупный план»)
Жилой квартал в Екатеринбурге
© KPLN («Крупный план»)
Жилой квартал в Екатеринбурге
© KPLN («Крупный план»)
Жилой квартал в Екатеринбурге
© KPLN («Крупный план»)
Жилой квартал в Екатеринбурге
© KPLN («Крупный план»)
Жилой квартал в Екатеринбурге
© KPLN («Крупный план»)
Жилой квартал в Екатеринбурге. Генплан
© KPLN («Крупный план»)
Схема плана 2 этажа, секция 2
© KPLN («Крупный план»)
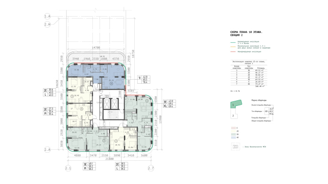
Схема плана 10 этажа, секция 2
© KPLN («Крупный план»)
Схема плана 13-14 этажей, секция 1
© KPLN («Крупный план»)
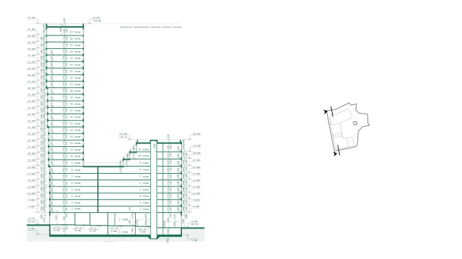
Схема разреза 1-1
© KPLN («Крупный план»)
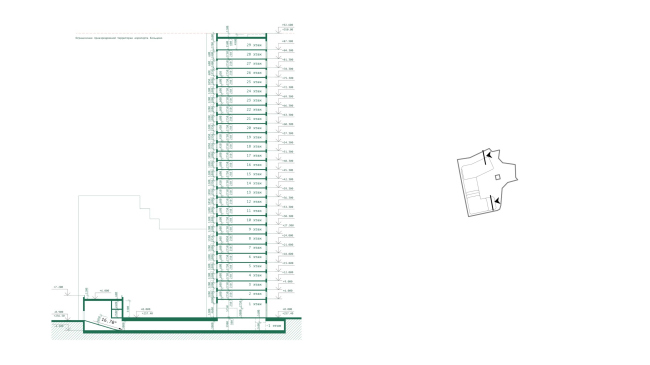
Схема разреза 2-2
© KPLN («Крупный план»)
Схема разреза 3-3
© KPLN («Крупный план»)

Архитекторы – партнеры Архи.ру:

  • Всеволод Медведев
  • Никита Явейн
  • Сергей Чобан
  • Александр Котенков
  • Николай Кикава
  • Владислав Андреев
  • Олег Шапиро
  • Татьяна Зульхарнеева
  • Сергей Труханов
  • Георгий Трофимов
  • Николай Переслегин
  • Андрей Гнездилов
  • Ерлан Бекмухамедов
  • Марина Егорова
  • Александр Асадов
  • Василий Крапивин
  • Олег Мединский
  • Борис Воскобойников
  • Евгений Зеленов
  • Дмитрий Сухов
  • Степан Липгарт
  • Игорь Членов
  • Виталий Лутц
  • Александр Самарин
  • Антон Яр-Скрябин
  • Екатерина Кузнецова
  • Раис Баишев
  • Вера Бутко
  • Михаил Давыдов
  • Андрей Романов
  • Михаил Канунников
  • Сергей Скуратов
  • Андрей Асадов
  • Антон Надточий
  • Сергей Переслегин
  • Юлия Солдатенкова
  • Григориос Гавалидис
  • Наталия Шилова
  • Юлиана Княжевская
  • Наталья Сидорова
  • Мария Ахременкова
  • Ростислав Цайзер
  • Андрей Михайлов
  • Григорий Мустафин
  • Зураб Басария
  • Владимир Плоткин
  • Александр Скокан
  • Дмитрий Буш
  • Илья Машков
  • Александра Кузьмина
  • Энди Сноу
  • Игорь Шварцман
  • Юлий Борисов
  • Константин Ходнев
  • Даниил Лоренц
  • Станислав Белых
  • Евгений Новосадюк
  • Сергей Кузнецов
  • Дмитрий Остроумов
  • Валерий Каняшин
  • Иван Кожин
  • Полина Воеводина
  • Елена Пучкова
  • Сергей Никешкин
  • Алексей Орлов
  • Юлия Тряскина
  • Евгений Подгорнов
  • Павел Андреев
  • Дмитрий Ликин
  • Анастасия Абашева
  • Тимур Абдуллаев
  • Екатерина Абдуллаева
  • Маргарита Авдышева
  • Левон Айрапетов
  • Александр Аношкин
  • Алексей Афоничкин
  • Владислав Бек-Булатов
  • Антон Белов
  • Татьяна Бузулукова
  • Петр Васильев
  • Данило Вукосавлевич
  • Андрей Вырва
  • Алина Георгиевская
  • Павел Гордеев
  • Илья Гринберг
  • Никита Демидов
  • Никита Дергунов
  • Наталья Жилкина
  • Алексей Зародов
  • Екатерина Зырина
  • Алексей Ильин
  • Дарья Ильина
  • Олег Карлсон
  • Алексей Кибкало
  • Денис Кувшинников
  • Анна Куликова
  • Алексей Курков
  • Данил Куров
  • Мария Кутай
  • Евгений Кутай
  • Иван Кычкин
  • Антон Ладыгин
  • Дмитрий Лапин
  • Илья Левянт
  • Катерина Левянт
  • Борис Левянт
  • Валерий Лукомский
  • Антон Лукомский
  • Екатерина Ляпунова
  • Иса Магомедов
  • Сергей Марков
  • Елена Мерцалова
  • Николай Миловидов
  • Станислав Михаловский
  • Сергей Мичурин
  • Олеся Могилевская
  • Филипп Никандров
  • Мария Николаева
  • Дмитрий Овчаров
  • Сергей Пергаев
  • Виктор Перов
  • Алексей Полищук
  • Роман Пономарёв
  • Валерия Преображенская
  • Виктория Раубо
  • Василий Рыбаков
  • Николай Рыбаков
  • Мария Салех
  • Александр Стариков
  • Илья Уткин
  • Елисей Чакан
  • Евгения Чернышева
  • Бориша Чорович
  • Олег Шурыгин
  • Дмитрий Шурыгин

Проект из каталога (случайный выбор)

Постройки и проекты (новые записи):

  • Павильон  Идеал
  • Флагманская кофейня Дринкит
  • Гостиница в Чите
  • ЖК Квартал 64
  • Деловое пространство «ПЛЭЙН»
  • Конкурсный проект ФИЦ / ТПО «Резерв»
  • Porta
  • Детский сад на 200 мест в Жилино-1
  • Архитектурная концепция кластера Ломоносов-2

Новости российской архитектуры:

Красная карточка за авторское право
25.05.2026

Красная карточка за авторское право

Алексей Орлов, Дмитрий Буш, Ерлан Бекмухамедов
Новая коллекция МАФов
25.05.2026

Новая коллекция МАФов

Сергей Пергаев
Хвост кометы
22.05.2026

Хвост кометы

Андрей Волынцев, Анна Волынцева
На глубине 101
22.05.2026

На глубине 101

Дарья Белякова