RSS
Офис музея «Коллекция» в ЗилАрте
Фотография © Сергей Красюк / предоставлена Бюро .dpt

Офис музея «Коллекция» в ЗилАрте

информация:

Россия

авторский коллектив

Сооснователи, авторы концепции – Ксения Караваева, Мурат Гукетлов

партнеры, заказчики, смежники

Заказчик: Музей «Коллекция»
Офис музея «Коллекция» в ЗилАрте
Фотография © Сергей Красюк / предоставлена Бюро .dpt

Архи.ру об этом объекте:

14.10.2025

Живопись и графика

Недавно построенный в Москве музей «Коллекция» интересен не только своей концепцией, архитектурой от бюро СПИЧ и впечатляющей программой выставок, но и интерьером офиса, созданного бюро .dpt, вдохновлявшегося произведениями искусства.

От редакцииКто-то сравнивает архитектуру с музыкой, кому-то ближе ассоциации с произведениями скульптуры или графики в зависимости от того, насколько пластично или лаконично построено здание. С живописью архитектуру сравнивают редко и еще реже вдо...   читать дальше
Офис музея «Коллекция» в ЗилАрте
Фотография © Сергей Красюк / предоставлена Бюро .dpt

история проекта:

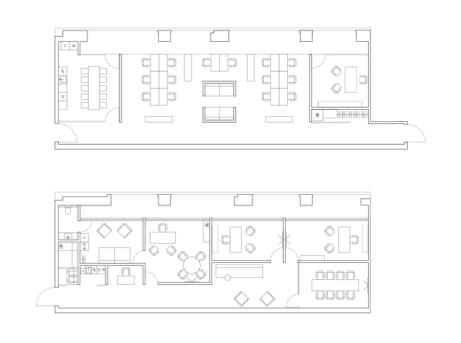
Заказ поступил от дирекции частного музея «Коллекция», размещенного в музейно-выставочном центре на территории жилого комплекса «ЗилАрт». Архитекторам поступил запрос на проектирование офисных помещений для дирекции и департаментов музея. Основное пожелание – отказ от использования меди, которая активно применяется в архитектуре здания.

описание:

Архитектурное бюро .dpt спроектировало офис музея «Коллекция», расположенный в музейно-выставочном центре на территории жилого комплекса «ЗилАрт». Интерьер занимает два уровня – третий этаж и антресоль – общей площадью 300 м². Проект был запущен в августе 2023 года, а завершен летом 2025. Пространство зонировано на рабочие зоны, кабинеты дирекции, кухню и переговорную. Основным пожеланием заказчика стало полное исключение меди в отделке. В ответ на это архитекторы выстроили сдержанную палитру серых и бежевых оттенков, проходящих через проект в отделке, мебели и стеклянных деталях. Бетонные стены и наливной пол остались нетронутыми. Большое внимание уделено инженерным системам: из-за невысоких потолков все основные коммуникации собраны в лаконичный потолочный короб. Центральным элементом стал объемный куб с лаунж-зоной, обшитый акустическими панелями. Почти вся мебель создана по индивидуальному проекту, включая рабочие столы со съемными крышками для коммуникаций и металлические стеллажи, разделяющие open space. Это первый офисный проект бюро в подобном формате, и он стал важным опытом работы с корпоративным заказом.
Офис музея «Коллекция» в ЗилАрте
Фотография © Сергей Красюк / предоставлена Бюро .dpt
Офис музея «Коллекция» в ЗилАрте
Фотография © Сергей Красюк / предоставлена Бюро .dpt
Офис музея «Коллекция» в ЗилАрте
Фотография © Сергей Красюк / предоставлена Бюро .dpt
Офис музея «Коллекция» в ЗилАрте
Фотография © Сергей Красюк / предоставлена Бюро .dpt
Офис музея «Коллекция» в ЗилАрте
Фотография © Сергей Красюк / предоставлена Бюро .dpt
Офис музея «Коллекция» в ЗилАрте
Фотография © Сергей Красюк / предоставлена Бюро .dpt
Офис музея «Коллекция» в ЗилАрте
Фотография © Сергей Красюк / предоставлена Бюро .dpt
Офис музея «Коллекция» в ЗилАрте
Фотография © Сергей Красюк / предоставлена Бюро .dpt
Офис музея «Коллекция» в ЗилАрте
Фотография © Сергей Красюк / предоставлена Бюро .dpt
Офис музея «Коллекция» в ЗилАрте
Фотография © Сергей Красюк / предоставлена Бюро .dpt
Офис музея «Коллекция» в ЗилАрте
Фотография © Сергей Красюк / предоставлена Бюро .dpt
Офис музея «Коллекция» в ЗилАрте
Фотография © Сергей Красюк / предоставлена Бюро .dpt
Офис музея «Коллекция» в ЗилАрте
Фотография © Сергей Красюк / предоставлена Бюро .dpt
Офис музея «Коллекция» в ЗилАрте
Фотография © Сергей Красюк / предоставлена Бюро .dpt
Офис музея «Коллекция» в ЗилАрте
Фотография © Сергей Красюк / предоставлена Бюро .dpt
Офис музея «Коллекция» в ЗилАрте
Фотография © Сергей Красюк / предоставлена Бюро .dpt
Офис музея «Коллекция» в ЗилАрте
Фотография © Сергей Красюк / предоставлена Бюро .dpt
Офис музея «Коллекция» в ЗилАрте
Фотография © Сергей Красюк / предоставлена Бюро .dpt
Офис музея «Коллекция» в ЗилАрте
Фотография © Сергей Красюк / предоставлена Бюро .dpt
Офис музея «Коллекция» в ЗилАрте
Фотография © Сергей Красюк / предоставлена Бюро .dpt
Офис музея «Коллекция» в ЗилАрте
Фотография © Сергей Красюк / предоставлена Бюро .dpt
Офис музея «Коллекция» в ЗилАрте
Фотография © Сергей Красюк / предоставлена Бюро .dpt
Офис музея «Коллекция» в ЗилАрте
Фотография © Сергей Красюк / предоставлена Бюро .dpt
Офис музея «Коллекция» в ЗилАрте
Фотография © Сергей Красюк / предоставлена Бюро .dpt
Офис музея «Коллекция» в ЗилАрте
Фотография © Сергей Красюк / предоставлена Бюро .dpt
Офис музея «Коллекция» в ЗилАрте
Фотография © Сергей Красюк / предоставлена Бюро .dpt
Офис музея «Коллекция» в ЗилАрте
Фотография © Сергей Красюк / предоставлена Бюро .dpt
Офис музея «Коллекция» в ЗилАрте
Фотография © Сергей Красюк / предоставлена Бюро .dpt
Офис музея «Коллекция» в ЗилАрте
Фотография © Сергей Красюк / предоставлена Бюро .dpt
Офис музея «Коллекция» в ЗилАрте
Фотография © Сергей Красюк / предоставлена Бюро .dpt
Офис музея «Коллекция» в ЗилАрте
Фотография © Сергей Красюк / предоставлена Бюро .dpt
Офис музея «Коллекция» в ЗилАрте
Фотография © Сергей Красюк / предоставлена Бюро .dpt
Офис музея «Коллекция» в ЗилАрте
Фотография © Сергей Красюк / предоставлена Бюро .dpt
Офис музея «Коллекция» в ЗилАрте
© Бюро .dpt
Офис музея «Коллекция» в ЗилАрте
© Бюро .dpt

Архитекторы – партнеры Архи.ру:

  • Дмитрий Сухов
  • Станислав Белых
  • Владислав Андреев
  • Дмитрий Буш
  • Александр Котенков
  • Николай Переслегин
  • Александр Асадов
  • Павел Андреев
  • Андрей Гнездилов
  • Даниил Лоренц
  • Полина Воеводина
  • Энди Сноу
  • Григорий Мустафин
  • Андрей Михайлов
  • Наталия Шилова
  • Евгений Зеленов
  • Юлия Солдатенкова
  • Юлия Тряскина
  • Сергей Кузнецов
  • Алексей Орлов
  • Раис Баишев
  • Мария Ахременкова
  • Иван Кожин
  • Ростислав Цайзер
  • Юлиана Княжевская
  • Андрей Романов
  • Елена Пучкова
  • Илья Машков
  • Евгений Новосадюк
  • Олег Мединский
  • Борис Воскобойников
  • Василий Крапивин
  • Георгий Трофимов
  • Всеволод Медведев
  • Наталья Сидорова
  • Антон Надточий
  • Антон Яр-Скрябин
  • Сергей Чобан
  • Григориос Гавалидис
  • Екатерина Кузнецова
  • Виталий Лутц
  • Олег Шапиро
  • Дмитрий Остроумов
  • Татьяна Зульхарнеева
  • Вера Бутко
  • Николай Кикава
  • Зураб Басария
  • Игорь Членов
  • Евгений Подгорнов
  • Никита Явейн
  • Юлий Борисов
  • Сергей Никешкин
  • Сергей Труханов
  • Ерлан Бекмухамедов
  • Валерий Каняшин
  • Михаил Канунников
  • Степан Липгарт
  • Андрей Асадов
  • Александр Самарин
  • Александра Кузьмина
  • Марина Егорова
  • Александр Скокан
  • Игорь Шварцман
  • Константин Ходнев
  • Анастасия Абашева
  • Сергей Переслегин
  • Владимир Плоткин
  • Михаил Давыдов
  • Дмитрий Ликин
  • Сергей Скуратов
  • Тимур Абдуллаев
  • Екатерина Абдуллаева
  • Маргарита Авдышева
  • Левон Айрапетов
  • Александр Аношкин
  • Алексей Афоничкин
  • Владислав Бек-Булатов
  • Антон Белов
  • Татьяна Бузулукова
  • Петр Васильев
  • Данило Вукосавлевич
  • Алина Георгиевская
  • Павел Гордеев
  • Илья Гринберг
  • Никита Демидов
  • Никита Дергунов
  • Наталья Жилкина
  • Алексей Зародов
  • Екатерина Зырина
  • Алексей Ильин
  • Дарья Ильина
  • Олег Карлсон
  • Алексей Кибкало
  • Денис Кувшинников
  • Анна Куликова
  • Алексей Курков
  • Данил Куров
  • Мария Кутай
  • Евгений Кутай
  • Иван Кычкин
  • Антон Ладыгин
  • Дмитрий Лапин
  • Илья Левянт
  • Катерина Левянт
  • Борис Левянт
  • Валерий Лукомский
  • Антон Лукомский
  • Екатерина Ляпунова
  • Иса Магомедов
  • Сергей Марков
  • Елена Мерцалова
  • Николай Миловидов
  • Станислав Михаловский
  • Сергей Мичурин
  • Олеся Могилевская
  • Филипп Никандров
  • Мария Николаева
  • Дмитрий Овчаров
  • Сергей Пергаев
  • Виктор Перов
  • Алексей Полищук
  • Роман Пономарёв
  • Валерия Преображенская
  • Виктория Раубо
  • Василий Рыбаков
  • Николай Рыбаков
  • Мария Салех
  • Александр Стариков
  • Илья Уткин
  • Елисей Чакан
  • Бориша Чорович
  • Дмитрий Шурыгин
  • Олег Шурыгин

Проект из каталога (случайный выбор)

Постройки и проекты (новые записи):

  • Детский сад на 200 мест в Жилино-1
  • Архитектурная концепция кластера Ломоносов-2
  • Клубный дом в 1-м Казачьем переулке
  • Частный дом в Ленинградской области
  • IT-кластер TravelLine в Йошкар-Оле
  • Гостиничный комплекс Cosmos Selection Derbent 5
  • Офис компании АльфаСтрахование
  • Офис компании Kept
  • Дом Спорта

Новости российской архитектуры:

Баня по-царски
07.05.2026

Баня по-царски

Ольга Смоленская
«Заря» над волнами
07.05.2026

«Заря» над волнами

Дарья Виноградова
Белый конгломерат
07.05.2026

Белый конгломерат

Александр Томашенко, Андрей Горелов, Василий Сошников, Иван Колманок, Николай Фугаров, Владимир Плоткин
Между фантазией и реальностью: ПАСП & РОСТ
06.05.2026

Между фантазией и реальностью: ПАСП & РОСТ

Андрей Тютерев, Владимир Плоткин