RSS
FØRST. Главное лобби
Фотография © Никита Субботин / предоставлена WALL

FØRST. Главное лобби

информация:

Айк Навасардян
Рубен Аракелян
WALL / Россия

авторский коллектив

Рубен Аракелян, Айк Навасардян, Вячеслав Разиньков, Кристина Аракелян 

партнеры, заказчики, смежники

Заказчик: FORMA
FØRST. Главное лобби
Фотография © Никита Субботин / предоставлена WALL

Архи.ру об этом объекте:

01.08.2025

Изначальная материя

В интерьерах лобби жилого комплекса FØRST бюро WALL смогло развернуть общую концепцию в неожиданном направлении: через соединение брутальных ортогональных форм с природными материалами, создав ассоциации с северной природой, скалами и сосновым лесом.

От редакции Каждый случай, когда архитекторы, проектировавшие большой жилой комплекс, получают возможность сделать также интерьеры общественных зон, это уникальная возможность развить замысел и представить его во всей полноте, от макромасштаба ге...   читать дальше
FØRST. Главное лобби
Фотография © Даниил Анненков / предоставлена WALL

описание:

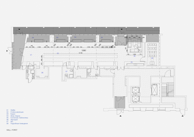
Архитектурное бюро WALL, помимо авторства архитектурного решения жилого комплекса FØRST, выступило автором интерьеров общественных зон.

Сюжетная линия строится на контрасте внешнего и внутреннего восприятия. Снаружи образ отсылает к скандинавским фьордам, внутри создается атмосфера традиционного загородного дома с камином и библиотекой.

Главное лобби высотой 8 метров по своей природе и пропорциям отсылает скорее к крытой площади. Эффект усиливается окнами второго этажа, выходящими в сторону лобби. Тем самым создается визуальный диалог на разных уровнях.

В отделке применены натуральные материалы – в частности, дерево и натуральный сланец.

FØRST. Главное лобби
Фотография © Никита Субботин / предоставлена WALL
FØRST. Главное лобби
Фотография © Даниил Анненков / предоставлена WALL
FØRST. Главное лобби
Фотография © Даниил Анненков / предоставлена WALL
FØRST. Главное лобби
Фотография © Даниил Анненков / предоставлена WALL
FØRST. Главное лобби
Фотография © Анастасия Самойлова / предоставлена WALL
FØRST. Главное лобби
Фотография © Анастасия Самойлова / предоставлена WALL
FØRST. Главное лобби
Фотография © Даниил Анненков / предоставлена WALL
FØRST. Главное лобби
Фотография © Анастасия Самойлова / предоставлена WALL
FØRST. Главное лобби
Фотография © Никита Субботин / предоставлена WALL
FØRST. Главное лобби
Фотография © Никита Субботин / предоставлена WALL
FØRST. Главное лобби
© WALL
FØRST. Главное лобби
© WALL
FØRST. Главное лобби
© WALL

Архитекторы – партнеры Архи.ру:

  • Олег Шапиро
  • Сергей Переслегин
  • Владислав Андреев
  • Георгий Трофимов
  • Юлия Тряскина
  • Григориос Гавалидис
  • Дмитрий Сухов
  • Александра Кузьмина
  • Михаил Канунников
  • Василий Крапивин
  • Сергей Скуратов
  • Николай Кикава
  • Вера Бутко
  • Владимир Плоткин
  • Игорь Членов
  • Никита Явейн
  • Энди Сноу
  • Алексей Орлов
  • Виталий Лутц
  • Раис Баишев
  • Валерий Каняшин
  • Андрей Михайлов
  • Николай Переслегин
  • Сергей Никешкин
  • Константин Ходнев
  • Евгений Зеленов
  • Анастасия Абашева
  • Андрей Чуйков
  • Сергей Кузнецов
  • Зураб Басария
  • Григорий Мустафин
  • Михаил Давыдов
  • Сергей Чобан
  • Ерлан Бекмухамедов
  • Екатерина Кузнецова
  • Иван Кожин
  • Степан Липгарт
  • Наталья Сидорова
  • Игорь Шварцман
  • Антон Надточий
  • Юлий Борисов
  • Марина Егорова
  • Александр Скокан
  • Татьяна Зульхарнеева
  • Всеволод Медведев
  • Полина Воеводина
  • Дмитрий Остроумов
  • Андрей Гнездилов
  • Алексей Гинзбург
  • Елена Пучкова
  • Андрей Асадов
  • Дмитрий Ликин
  • Евгений Подгорнов
  • Павел Андреев
  • Даниил Лоренц
  • Александр Самарин
  • Станислав Белых
  • Анна Иванова
  • Илья Машков
  • Роман Леонидов
  • Сергей Труханов
  • Андрей Романов
  • Юлиана Княжевская
  • Наталия Шилова
  • Александр Асадов
  • Дмитрий Буш
  • Антон Яр-Скрябин
  • Ростислав Цайзер
  • Евгений Новосадюк
  • Олег Мединский
  • Александр Котенков
  • Юлия Солдатенкова
  • Тимур Абдуллаев
  • Екатерина Абдуллаева
  • Маргарита Авдышева
  • Левон Айрапетов
  • Александр Аношкин
  • Алексей Афоничкин
  • Владислав Бек-Булатов
  • Антон Белов
  • Татьяна Бузулукова
  • Петр Васильев
  • Алина Георгиевская
  • Павел Гордеев
  • Илья Гринберг
  • Никита Демидов
  • Никита Дергунов
  • Наталья Жилкина
  • Алексей Зародов
  • Екатерина Зырина
  • Алексей Ильин
  • Дарья Ильина
  • Олег Карлсон
  • Алексей Кибкало
  • Денис Кувшинников
  • Анна Куликова
  • Алексей Курков
  • Алексей Курков
  • Данил Куров
  • Евгений Кутай
  • Мария Кутай
  • Антон Ладыгин
  • Антон Ладыгин
  • Дмитрий Лапин
  • Борис Левянт
  • Катерина Левянт
  • Илья Левянт
  • Антон Лукомский
  • Валерий Лукомский
  • Екатерина Ляпунова
  • Сергей Марков
  • Николай Миловидов
  • Станислав Михаловский
  • Олеся Могилевская
  • Мария Николаева
  • Виктор Перов
  • Алексей Полищук
  • Роман Пономарёв
  • Валерия Преображенская
  • Виктория Раубо
  • Василий Рыбаков
  • Мария Салех
  • Александр Стариков
  • Илья Уткин
  • Дмитрий Шурыгин
  • Олег Шурыгин

Проект из каталога (случайный выбор)

Многоэтажный жилой дом «Белый дом»
Дмитрий Петров, 2006 – 2007
Многоэтажный жилой дом «Белый дом»

Постройки и проекты (новые записи):

  • Проект общественно-делового комплекса у станции метро «Ботанический Сад» / UNK
  • Дворец бильярда в Мневниковской пойме
  • БЦ в Раменках
  • Бизнес-центр (на месте ТЦ «Старт»)
  • DELO HOUSE 3.2 с флигелем
  • Ледовый дворец Navka Arena
  • Благоустройство территории ЖК Holms Residence
  • Игровое пространство у театра им. Г.К. Камала
  • Вторая ось

Новости российской архитектуры:

Визуальная чистота
20.02.2026

Визуальная чистота

Александр Жидков, Михаил Гуманков
Кирпичная вуаль
20.02.2026

Кирпичная вуаль

Айк Навасардян, Рубен Аракелян
Иглы созерцания горизонта
19.02.2026

Иглы созерцания горизонта

Николай Переслегин, Георгий Трофимов, Сергей Переслегин
Отель у озера
18.02.2026

Отель у озера

Тимур Абдуллаев, Екатерина Абдуллаева