Концепция комплексного развития территории. Строительство жилого комплекса в Потаповском переулке
© Сергей Скуратов ARCHITECTS
Концепция комплексного развития территории. Строительство жилого комплекса в Потаповском переулке
информация:

Сергей Скуратов
Sergey Skuratov / РоссияСергей Скуратов ARCHITECTS
Sergey Skuratov architects / Россияавторский коллектив
Главный архитекор бюро: А.В. Панёв
Я. Ю. Ковальчук, А.И. Чалов, В.А. Колосова, Я.В. Акимов
Концепция комплексного развития территории. Строительство жилого комплекса в Потаповском переулке
© Сергей Скуратов ARCHITECTS
Концепция комплексного развития территории. Строительство жилого комплекса в Потаповском переулке
© Сергей Скуратов ARCHITECTS
описание:
Градостроительный контекст.
Участок расположен в Басманном районе, внутри Бульварного кольца, на углу Потаповского и Архангельского переулков. На окружающей территории хорошо сохранилась историческая застройка, среди которой много объектов культурного наследия. Территория участка входит в объединённую охранную зону объектов культурного наследия, однако требования к градостроительным регламентам в данной зоне не установлены. В пешей доступности от участка проходят такие оживлённые улицы, как Покровка, Маросейка, Мясницкая и Чистопрудный бульвар, однако непосредственно вокруг участка находятся тихие переулки и кварталы, застроенные преимущественно жилыми и офисными зданиями высотой до пяти–семи этажей. Главной высотной доминантой в окружающей застройке является «Меньшикова башня» – колокольня церкви Архангела Гавриила. Это яркий пример архитектуры московского барокко. Колокольня и церковь будут хорошо видны из окон северного фасада проектируемого дома.
Площадь участка составляет 0.773 га.
История места.
Первые домовладения и жилые дома на территории участка проектирования появляются в конце XVII века. До этого здесь были сады, принадлежавшие Гавриловской Патриаршей слободе. В разное время здесь жили княгиня Екатерина Ивановна Нарышкина, генерал-майор Пётр Петрович Яковлев, профессор Карл Лангер, статс-секретарь Екатерины II Григорий Никитич Теплов, князь Александр Николаевич Волконский и другие.
В 1861 году разрозненные участки были скуплены и объединены Дмитрием Осиповичем Миловановым – купцом-старообрядцем, владельцем крупнейших кирпичных заводов в Москве и Подмосковье. В 1865 году по проекту архитектора А.Д. Никольского строится трёхэтажный доходный дом по Архангельскому переулку (надстроен в 1953 году), и перестраиваются двухэтажные дома по Потаповскому. В глубине участка были построены склады. Все здания предназначались для сдачи в аренду.
В советское время в центральной части участка были построены 2–3-этажные жилые дома, но впоследствии большинство из них было снесено, как и некоторые из складов, построенных Миловановым. К настоящему времени границы участка и застройка сохранились почти без изменений с 1865 года – и это уникальная ситуация для центра Москвы.
Наследие династии Миловановых – это важная часть идентичности места, и это не только постройки, а традиции предпринимательства, производства кирпича и кирпичного строительства в Москве. Новый кирпичный дом на участке должен создать диалог между прошлым и будущим и соединить в себе традиции кирпичного строительства с современной архитектурой.
Расположение на участке.
Планировочная организация участка основана на традиционных принципах организации городской усадьбы: дом стоит в глубине участка, перед ним находится зелёный двор, устроенный как небольшой партерный парк. Исторические двухэтажные здания в Потаповском переулке становятся флигелями, фланкирующими главную ось. При этом планировка двора и фасад дома не симметричны – они сделаны в современном минималистском стиле. Перед домом создаётся небольшой пруд, как это делалось в исторических усадьбах.
Транспортное обслуживание.
Двор перед домом полностью пешеходный. Автомобильный проезд проходит за домом, вдоль дальней границы участка. Въезды и выезды организованы из Потаповского и Архангельского переулков.
В подвальном этаже находится паркинг на 30 машиномест, в том числе: 22 машиноместа для жителей дома и гостевая парковка на 8 машиномест.
В пешеходной доступности находится общественный транспорт: станция метро «Чистые пруды», остановки трамвая на Чистопрудном бульваре, автобусные остановки на Мясницкой улице и Покровке.
Объёмно-планировочные решения.
Дом решён как прямоугольный объём со сложной пластикой фасадов, выполненных из кирпича. Форма и размер здания соразмерны окружающей застройке, но деталировка полностью современная и не имитирует исторические формы.
На первом этаже находятся общественные и клубные помещения для жильцов здания: большой вестибюль, тренажёрный зал, косметический кабинет и другие. Кроме того, здесь предусмотрены технические и подсобные помещения.
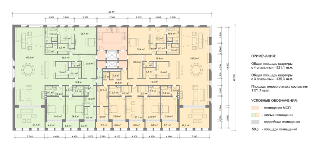
На 2–5 этажах находятся по две квартиры, каждая из которых имеет парадный вход из основного лифта и служебный вход из второго лифта. Входы в лифты также отделены друг от друга на первом этаже.
В квартирах выделены различные зоны:
- Общее пространство гостиной и столовой в торцах дома с окнами на три стороны;
- Главная спальня с отдельными гардеробными и санузлами. Их окна выходят на север, откуда открываются лучшие виды;
- Детские с гардеробными и санузлами. Окна выходят на юг, и каждая комната имеет отдельную лоджию;
- Служебная зона со спальней горничной, кладовой-постирочной и подсобными помещениями.
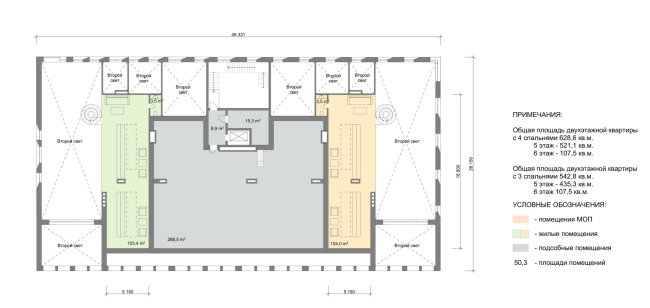
В квартирах пятого этажа предусмотрены антресоли, открытые в гостиную. В них запланированы библиотеки. Гостиные вместе с библиотеками образуют двусветное пространство высотой 6 метров.
Строительная высота первого этажа составляет 5.1 метра.
Строительная высота типовых этажей – 3.75 метра.
Строительная высота пятого этажа – от 3.75 до 7.35 метра.
Концепция комплексного развития территории. Строительство жилого комплекса в Потаповском переулке. Расположение в городе
© Сергей Скуратов ARCHITECTS
Концепция комплексного развития территории. Строительство жилого комплекса в Потаповском переулке. Расположение в районе
© Сергей Скуратов ARCHITECTS
Концепция комплексного развития территории. Строительство жилого комплекса в Потаповском переулке. Фотофиксация местности
© Сергей Скуратов ARCHITECTS
Концепция комплексного развития территории. Строительство жилого комплекса в Потаповском переулке. Генеральный план и благоустройство
© Сергей Скуратов ARCHITECTS
Концепция комплексного развития территории. Строительство жилого комплекса в Потаповском переулке. Транспортная схема
© Сергей Скуратов ARCHITECTS
Концепция комплексного развития территории. Строительство жилого комплекса в Потаповском переулке. Схема пешеходного движения
© Сергей Скуратов ARCHITECTS
Концепция комплексного развития территории. Строительство жилого комплекса в Потаповском переулке. План -1 этажа
© Сергей Скуратов ARCHITECTS
Концепция комплексного развития территории. Строительство жилого комплекса в Потаповском переулке. План 1 этажа
© Сергей Скуратов ARCHITECTS
Концепция комплексного развития территории. Строительство жилого комплекса в Потаповском переулке. План типового этажа
© Сергей Скуратов ARCHITECTS
Концепция комплексного развития территории. Строительство жилого комплекса в Потаповском переулке. План 5 этажа
© Сергей Скуратов ARCHITECTS
Концепция комплексного развития территории. Строительство жилого комплекса в Потаповском переулке. План 6, мансардного этажа
© Сергей Скуратов ARCHITECTS
Концепция комплексного развития территории. Строительство жилого комплекса в Потаповском переулке. Северный фасад
© Сергей Скуратов ARCHITECTS
Концепция комплексного развития территории. Строительство жилого комплекса в Потаповском переулке. Западный фасад
© Сергей Скуратов ARCHITECTS
Концепция комплексного развития территории. Строительство жилого комплекса в Потаповском переулке. Южный фасад
© Сергей Скуратов ARCHITECTS
Концепция комплексного развития территории. Строительство жилого комплекса в Потаповском переулке. Восточный фасад
© Сергей Скуратов ARCHITECTS
Концепция комплексного развития территории. Строительство жилого комплекса в Потаповском переулке. Разрез 1-1
© Сергей Скуратов ARCHITECTS
Концепция комплексного развития территории. Строительство жилого комплекса в Потаповском переулке. Разрез 2-2
© Сергей Скуратов ARCHITECTS
Архитекторы – партнеры Архи.ру:
Проект из каталога (случайный выбор)
