Офис компании Albione и MezzaTorre
Фотография © Василий Буланов / предоставлена MNdesign
Офис компании Albione и MezzaTorre
информация:
-
статус
реализовано -
даты
— 2021 / — 2022 -
место
Москва ул. Рочдельская, дом 15, строение 23 -
координаты
55.754948, 37.561625 -
функция
Административно-офисный / интерьер офиса -
теги
send.project -
общая площадь
184 м2 -
ссылки:

Михаил Новинский
Россия
Марк Гришин
Россия
Полина Литомина
РоссияMNdesign
Россияавторский коллектив
Михаил Новинский, Полина Литомина, Марк Гришин, Елизавета Подуст
партнеры, заказчики, смежники
Заказчик: ДЕКТА
Офис компании Albione и MezzaTorre
Фотография © Василий Буланов / предоставлена MNdesign
Архи.ру об этом объекте:
01.07.2025
Респектабельная неформальность
Как скомбинировать шоурум и рабочее пространство? Как объединить гедонизм и нонконформизмом? Как превратить меньше 200 м2 в целый мир фешн-индустрии? Архитекторы студии MNdesign справились с этими непростыми задачами, создав интерьер офиса компании Albione и MezzaTorre.
От редакции Множество старых промышленных объектов получили счастливый билет и пропуск в новую жизнь благодаря креативным индустриям. Это классический сценарий преображения каких-нибудь обветшавших кирпичных корпусов: сначала в пристанище художник... читать дальшеОфис компании Albione и MezzaTorre
Фотография © Василий Буланов / предоставлена MNdesign
история проекта:
Знали заказчика давно. «В интерьере офиса производителя премиальной одежды Albione и MezzaTorre мы хотели передать свободолюбивый и несколько хулиганский дух мира моды».
описание:
В интерьере офиса производителя премиальной одежды Albione и MezzaTorre мы хотели
передать свободолюбивый и несколько хулиганский дух мира моды.
Офисное пространство представляет собой open-space с антресолью, на которой размещена зона отдыха. Отдельными помещениями выполнены только кабинет руководителя и переговорная, а внутреннее зонирование происходит за счет специально разработанной нами модульной мебельной системы.
Яркий декор «на грани фола» завершает «панковскую» атмосферу офиса.
В этом офисе мало рабочих мест, много света и живых цветов. Сдержанная цветовая гамма и красный кирпич создают атмосферу, а яркие картины, ковры и подушки разбавляют интерьер Albione – бренд мужских костюмов, появившийся на рынке около 20 лет назад. Сейчас в ассортименте есть и джинсы с футболками, но на первой странице сайта в основном представлены образы в стиле smart casual.
MezzaTorre – бренд женской одежды в стиле smart и smart casual, существующий на рынке уже 10 лет. В 2023 году оба бренда сотрудничали со студентами НИУ ВШЭ, которые придумывали принты для футболок.
передать свободолюбивый и несколько хулиганский дух мира моды.
Офисное пространство представляет собой open-space с антресолью, на которой размещена зона отдыха. Отдельными помещениями выполнены только кабинет руководителя и переговорная, а внутреннее зонирование происходит за счет специально разработанной нами модульной мебельной системы.
Яркий декор «на грани фола» завершает «панковскую» атмосферу офиса.
В этом офисе мало рабочих мест, много света и живых цветов. Сдержанная цветовая гамма и красный кирпич создают атмосферу, а яркие картины, ковры и подушки разбавляют интерьер Albione – бренд мужских костюмов, появившийся на рынке около 20 лет назад. Сейчас в ассортименте есть и джинсы с футболками, но на первой странице сайта в основном представлены образы в стиле smart casual.
MezzaTorre – бренд женской одежды в стиле smart и smart casual, существующий на рынке уже 10 лет. В 2023 году оба бренда сотрудничали со студентами НИУ ВШЭ, которые придумывали принты для футболок.
Офис компании Albione и MezzaTorre
Фотография © Василий Буланов / предоставлена MNdesign
Офис компании Albione и MezzaTorre
Фотография © Василий Буланов / предоставлена MNdesign
Офис компании Albione и MezzaTorre
Фотография © Василий Буланов / предоставлена MNdesign
Офис компании Albione и MezzaTorre
Фотография © Василий Буланов / предоставлена MNdesign
Офис компании Albione и MezzaTorre
Фотография © Василий Буланов / предоставлена MNdesign
Офис компании Albione и MezzaTorre
Фотография © Василий Буланов / предоставлена MNdesign
Офис компании Albione и MezzaTorre
Фотография © Василий Буланов / предоставлена MNdesign
Офис компании Albione и MezzaTorre
Фотография © Василий Буланов / предоставлена MNdesign
Офис компании Albione и MezzaTorre
Фотография © Василий Буланов / предоставлена MNdesign
Офис компании Albione и MezzaTorre
Фотография © Василий Буланов / предоставлена MNdesign
Офис компании Albione и MezzaTorre
Фотография © Василий Буланов / предоставлена MNdesign
Офис компании Albione и MezzaTorre
Фотография © Василий Буланов / предоставлена MNdesign
Офис компании Albione и MezzaTorre
Фотография © Василий Буланов / предоставлена MNdesign
Офис компании Albione и MezzaTorre
Фотография © Василий Буланов / предоставлена MNdesign
Офис компании Albione и MezzaTorre
Фотография © Василий Буланов / предоставлена MNdesign
Офис компании Albione и MezzaTorre
Фотография © Василий Буланов / предоставлена MNdesign
Офис компании Albione и MezzaTorre
Фотография © Василий Буланов / предоставлена MNdesign
Офис компании Albione и MezzaTorre
Фотография © Василий Буланов / предоставлена MNdesign
Офис компании Albione и MezzaTorre
Фотография © Василий Буланов / предоставлена MNdesign
Офис компании Albione и MezzaTorre
Фотография © Василий Буланов / предоставлена MNdesign
Офис компании Albione и MezzaTorre
Фотография © Василий Буланов / предоставлена MNdesign
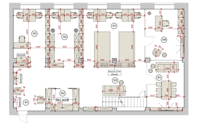
План офиса компании Albione и MezzaTorre
© MNdesign
Архитекторы – партнеры Архи.ру:
Проект из каталога (случайный выбор)

Наринэ Тютчева, 2017 – 2021
Музей Павла и Сергея Третьяковых в 1-м Голутвинском переулке: реставрация, приспособление и дизайн экспозиции
Постройки и проекты (новые записи):
Новости российской архитектуры:
22.10.2025
Острова и ножки
21.10.2025
Кто в Сити, кто в горы?
Сергей Скуратов21.10.2025