Офис на Кременчугской
Фотография © Иван Сорокин / предоставлена Background studio
Офис на Кременчугской
информация:
-
статус
реализовано -
даты
01.2022 / 05.2022 — 06.2023 -
место
Санкт-Петербург Кременчугская улица -
функция
Административно-офисный / интерьер офиса -
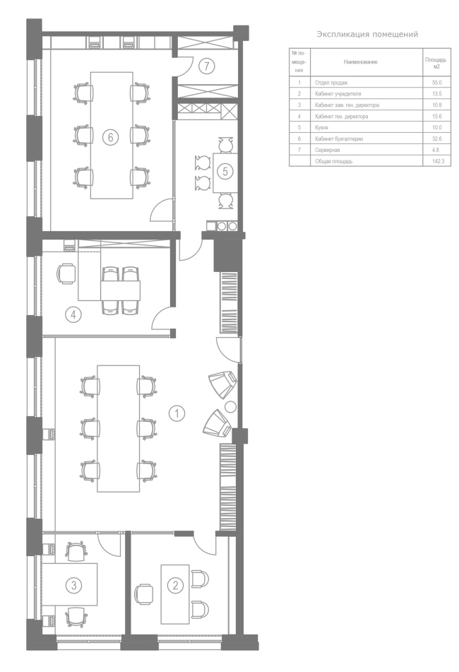
общая площадь
150 м2
Екатерина Игнатова
РоссияНана Кобахидзе
РоссияBackground studio
Россияавторский коллектив
Нана Кобахидзе, Екатерина Игнатова
партнеры, заказчики, смежники
Закачик: Сантехсервис
награды:
- VI международный фестиваль Дом на Брестской 2023
Специальный диплом дома на Брестской, раздел «Реализация»
Офис на Кременчугской
Фотография © Иван Сорокин / предоставлена Background studio
Офис на Кременчугской
Фотография © Иван Сорокин / предоставлена Background studio
история проекта:
Наша основная специализация – жилые интерьеры. Спустя несколько реализованных объектов, как правило, клиенты приходят и за проектами для своих компаний. Так в нашем портфолио появляются офисы. Кременчугская один из таких примеров.
описание:
Необходимо было создать современное, максимально свободное пространство для комфортной работы разных по направлению деятельности отделов. Поэтому нужны были как изолированные кабинеты, так и частично или полностью открытые. Мы использовали стеклянные перегородки в сочетании с глухими стенами: где-то стекло в перегородках матовое, а где-то прозрачное. Так мы закрыли вопрос звукоизоляции и видимости, оставляя помещения максимально цельными визуально. На руку сыграло и большое количество окон, что позволило сделать все кабинеты хорошо освещенными, а возле входа организовать многофункциональное пространство, выполняющее роль лобби и рабочей зоны одновременно.
Все встроенные столярные изделия в проекте были изготовлены на заказ по нашим эскизам, причем ряд решений разрабатывался под конкретные задачи. Так, в одной из секций подвесного шкафа под окнами скрыты шредеры, поэтому механизм открывания дверцы подбирался так, чтобы удобно было пользоваться оргтехникой. Только на разработку чертежей ушло около полугода, тогда как вся работа над проектом заняла полтора года.
Мебель, в первую очередь столы и кресла, приобрели у зарубежных брендов. Кресла для посетителей и журнальный столик выбрали у Cassina. Стол в кабинете учредителя от Rimadesio. Для сотрудников подобрали кресла Interstuhl и Actiu, а также столы Actiu. Внимание уделили и освещению – бра в кабинете генерального директора от Artemide, люстра на кухне от Flos.
Все встроенные столярные изделия в проекте были изготовлены на заказ по нашим эскизам, причем ряд решений разрабатывался под конкретные задачи. Так, в одной из секций подвесного шкафа под окнами скрыты шредеры, поэтому механизм открывания дверцы подбирался так, чтобы удобно было пользоваться оргтехникой. Только на разработку чертежей ушло около полугода, тогда как вся работа над проектом заняла полтора года.
Мебель, в первую очередь столы и кресла, приобрели у зарубежных брендов. Кресла для посетителей и журнальный столик выбрали у Cassina. Стол в кабинете учредителя от Rimadesio. Для сотрудников подобрали кресла Interstuhl и Actiu, а также столы Actiu. Внимание уделили и освещению – бра в кабинете генерального директора от Artemide, люстра на кухне от Flos.
Офис на Кременчугской
Фотография © Иван Сорокин / предоставлена Background studio
Офис на Кременчугской
Фотография © Иван Сорокин / предоставлена Background studio
Офис на Кременчугской
Фотография © Иван Сорокин / предоставлена Background studio
Офис на Кременчугской
Фотография © Иван Сорокин / предоставлена Background studio
Офис на Кременчугской
Фотография © Иван Сорокин / предоставлена Background studio
Офис на Кременчугской
Фотография © Иван Сорокин / предоставлена Background studio
Офис на Кременчугской
Фотография © Иван Сорокин / предоставлена Background studio
Офис на Кременчугской
Фотография © Иван Сорокин / предоставлена Background studio
Офис на Кременчугской
Фотография © Иван Сорокин / предоставлена Background studio
Офис на Кременчугской
Фотография © Иван Сорокин / предоставлена Background studio
Офис на Кременчугской
Фотография © Иван Сорокин / предоставлена Background studio
Офис на Кременчугской
Фотография © Иван Сорокин / предоставлена Background studio
Офис на Кременчугской
Фотография © Иван Сорокин / предоставлена Background studio
Офис на Кременчугской
Фотография © Иван Сорокин / предоставлена Background studio
Офис на Кременчугской
Фотография © Иван Сорокин / предоставлена Background studio
Офис на Кременчугской
Фотография © Иван Сорокин / предоставлена Background studio
Офис на Кременчугской
© Background studio
Архитекторы – партнеры Архи.ру:
Проект из каталога (случайный выбор)

Валерия Преображенская, Левон Айрапетов, 2013 – 2013
Конкурсная концепция фасадов нового здания Третьяковской галереи. Вариант 2
Постройки и проекты (новые записи):
Новости российской архитектуры:
13.10.2025
Два московских ЖК включены в сборник лучших жилых комплексов мира.
Николоз Джапаридзе, Антон Хмельницкий, Анна Андреева13.10.2025
Сила линий
Владимир Плоткин13.10.2025
Зеленая гостиная
13.10.2025