RSS
Дизайн проект внутреннего пространства ДОУ №3V1 «Река Битца». Групповая
© HEADS Group

Дизайн проект внутреннего пространства ДОУ №3V1 «Река Битца»

информация:

Арсен Хаиров
Владислав Куликовский

авторский коллектив

Руководитель авторского коллектива: Арсен Хаиров, Владислав Куликовский
ГАП: Кристина Калинина, Юрий Капник 
Архитекторы: Александр Малыгин, Алексей Смирнов, Надежда Абдрашитова, Полина Киселева, Юлия Кудымова

партнеры, заказчики, смежники

Заказик: ФСК Девелопмент
Дизайн проект внутреннего пространства ДОУ №3V1 «Река Битца». Групповая
© HEADS Group
Дизайн проект внутреннего пространства ДОУ №3V1 «Река Битца». Групповая
© HEADS Group

описание:

В основу концепции легла река Битца, которая является ключевым элементом сохранения и развития природной и культурной среды региона, а также человека. Мы решили сопоставить течение жизни детей в детском саду с течением реки, выделив три стадии развития:

  • Верхнее течение (исток) – дети до 4 лет (ясельные и младшие группы).
  • Среднее течение – дети от 4 до 5 лет (средняя группа).
  • Нижнее течение – дети от 5 до 7 лет (старшая и подготовительная к школе группы).

Внутренние решения были вдохновлены, например, сказками и окружающей природой. Так, в первом зале первого этажа появилась помпезность усадьбы Знаменское-Садки. Тем самым мы не только отсылаем к сформированной среде региона, но и отражаем культурную ценность, сложившуюся за многовековую историю территории.

Коридор символизирует течение реки, поэтому авторы подобрали предварительное аналоговое решение для оформления холла и коридора.

В детских групповых ячейках использованы разные подходы. Например, необычные сочетания, напоминающие Бутовский лесопарк, или загадочный лесной массив, вызывающий ассоциации с картинами сказок Ивана Билибина.

Дизайн проект внутреннего пространства ДОУ №3V1 «Река Битца». Спальня
© HEADS Group
Дизайн проект внутреннего пространства ДОУ №3V1 «Река Битца». Музыкальный зал
© HEADS Group
Дизайн проект внутреннего пространства ДОУ №3V1 «Река Битца». Музыкальный зал
© HEADS Group
Дизайн проект внутреннего пространства ДОУ №3V1 «Река Битца». Спортивный зал
© HEADS Group
Дизайн проект внутреннего пространства ДОУ №3V1 «Река Битца». Спортивный зал
© HEADS Group
Дизайн проект внутреннего пространства ДОУ №3V1 «Река Битца». Раздевалка
© HEADS Group
Дизайн проект внутреннего пространства ДОУ №3V1 «Река Битца». Буфет
© HEADS Group
Дизайн проект внутреннего пространства ДОУ №3V1 «Река Битца». Вестибюль
© HEADS Group
Дизайн проект внутреннего пространства ДОУ №3V1 «Река Битца». Коридо
© HEADS Group
Дизайн проект внутреннего пространства ДОУ №3V1 «Река Битца». Коридор
© HEADS Group
Дизайн проект внутреннего пространства ДОУ №3V1 «Река Битца». Санузел
© HEADS Group
Дизайн проект внутреннего пространства ДОУ №3V1 «Река Битца». Концепция пространства
© HEADS Group
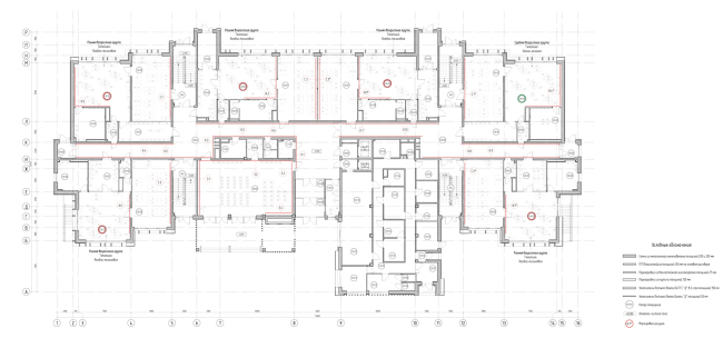
Дизайн проект внутреннего пространства ДОУ №3V1 «Река Битца». Плна 1 этажа
© HEADS Group
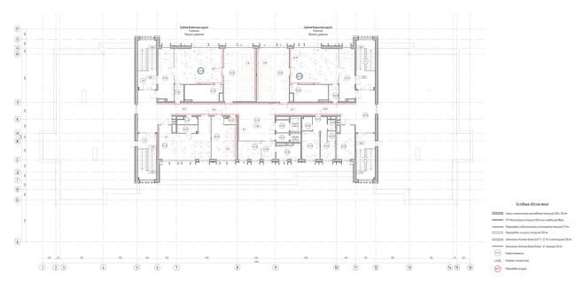
Дизайн проект внутреннего пространства ДОУ №3V1 «Река Битца». План 2 этажа
© HEADS Group
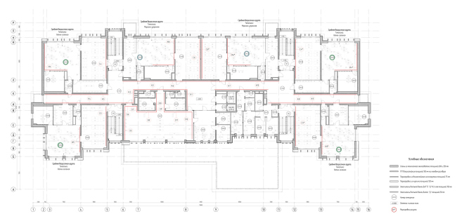
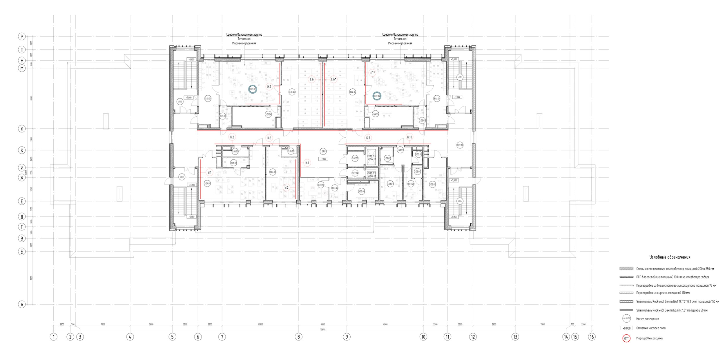
Дизайн проект внутреннего пространства ДОУ №3V1 «Река Битца». План 3 этажа
© HEADS Group

Архитекторы – партнеры Архи.ру:

  • Игорь Членов
  • Евгений Зеленов
  • Василий Крапивин
  • Никита Явейн
  • Елена Пучкова
  • Евгений Подгорнов
  • Екатерина Кузнецова
  • Сергей Никешкин
  • Сергей Кузнецов
  • Александра Кузьмина
  • Георгий Трофимов
  • Константин Ходнев
  • Степан Липгарт
  • Владислав Андреев
  • Сергей Переслегин
  • Григориос Гавалидис
  • Валерий Каняшин
  • Зураб Басария
  • Юлиана Княжевская
  • Виталий Лутц
  • Владимир Плоткин
  • Антон Яр-Скрябин
  • Александр Котенков
  • Александр Скокан
  • Даниил Лоренц
  • Андрей Гнездилов
  • Андрей Михайлов
  • Андрей Романов
  • Михаил Канунников
  • Игорь Шварцман
  • Анастасия Абашева
  • Марина Егорова
  • Антон Надточий
  • Андрей Асадов
  • Александр Асадов
  • Наталья Сидорова
  • Вера Бутко
  • Николай Кикава
  • Олег Шапиро
  • Раис Баишев
  • Сергей Труханов
  • Наталия Шилова
  • Полина Воеводина
  • Ростислав Цайзер
  • Григорий Мустафин
  • Юлия Солдатенкова
  • Дмитрий Ликин
  • Сергей Чобан
  • Олег Мединский
  • Николай Переслегин
  • Дмитрий Сухов
  • Всеволод Медведев
  • Энди Сноу
  • Дмитрий Остроумов
  • Алексей Орлов
  • Евгений Новосадюк
  • Павел Андреев
  • Ерлан Бекмухамедов
  • Александр Самарин
  • Иван Кожин
  • Михаил Давыдов
  • Станислав Белых
  • Юлия Тряскина
  • Татьяна Зульхарнеева
  • Илья Машков
  • Сергей Скуратов
  • Дмитрий Буш
  • Юлий Борисов
  • Тимур Абдуллаев
  • Екатерина Абдуллаева
  • Маргарита Авдышева
  • Левон Айрапетов
  • Александр Аношкин
  • Алексей Афоничкин
  • Владислав Бек-Булатов
  • Антон Белов
  • Татьяна Бузулукова
  • Петр Васильев
  • Данило Вукосавлевич
  • Алина Георгиевская
  • Павел Гордеев
  • Илья Гринберг
  • Никита Демидов
  • Никита Дергунов
  • Наталья Жилкина
  • Алексей Зародов
  • Екатерина Зырина
  • Алексей Ильин
  • Дарья Ильина
  • Олег Карлсон
  • Алексей Кибкало
  • Денис Кувшинников
  • Анна Куликова
  • Алексей Курков
  • Данил Куров
  • Мария Кутай
  • Евгений Кутай
  • Иван Кычкин
  • Антон Ладыгин
  • Дмитрий Лапин
  • Илья Левянт
  • Катерина Левянт
  • Борис Левянт
  • Валерий Лукомский
  • Антон Лукомский
  • Екатерина Ляпунова
  • Иса Магомедов
  • Сергей Марков
  • Елена Мерцалова
  • Николай Миловидов
  • Станислав Михаловский
  • Сергей Мичурин
  • Олеся Могилевская
  • Мария Николаева
  • Дмитрий Овчаров
  • Сергей Пергаев
  • Виктор Перов
  • Алексей Полищук
  • Роман Пономарёв
  • Валерия Преображенская
  • Виктория Раубо
  • Василий Рыбаков
  • Николай Рыбаков
  • Мария Салех
  • Александр Стариков
  • Илья Уткин
  • Елисей Чакан
  • Бориша Чорович
  • Олег Шурыгин
  • Дмитрий Шурыгин

Проект из каталога (случайный выбор)

Постройки и проекты (новые записи):

  • Архитектурная концепция кластера Ломоносов-2
  • Клубный дом в 1-м Казачьем переулке
  • Частный дом в Ленинградской области
  • Гостиничный комплекс Cosmos Selection Derbent 5
  • Офис компании АльфаСтрахование
  • MIDITI
  • Офис компании Kept
  • Дом Спорта
  • ЖК Camelia

Новости российской архитектуры:

Всматриваясь вдаль
21.04.2026

Всматриваясь вдаль

Иван Казадаев
«Лотус» над пустыней
21.04.2026

«Лотус» над пустыней

Бориша Чорович, Данило Вукосавлевич, Елисей Чакан
Гипербола в кирпиче
17.04.2026

Гипербола в кирпиче

Олег Беляев