ЖК MIKHÁILOVSKY
© Дмитрий Стрюков / предоставлено архитектурное бюро «Кубика»
ЖК MIKHÁILOVSKY
информация:
-
статус
в процессе реализации -
даты
2021 — 2022 / 2022 -
место
Ижевск ул. Бородина -
координаты
56.850197, 53.208830 -
функция
Жилой / жилой комплекс -
теги
send.project -
площадь застройки
1 644,5 м2 -
общая площадь
21 526,3 м2 -
высота
31,85 -
этажность
8 -
строительный объем
95 742,25 м3

Игорь Алексеев
Россия
Елена Буланкина
РоссияАрхитектурное бюро «Кубика»
Cubica / Россияавторский коллектив
Инженеры: Дмитрий Абаев, Сергей Субботин, Роман Копотев, Роман Коротков, Ольга Киселева, Наталья Кожокарь
ГАП: Ольга Солнцева, Игорь Королев
ГИП: Юрий Федоров, Константин Васьков
Руководитель авторского коллектива: Игорь Алексеев, Елена Буланкина
Дизайнер интерьера: Мария Ляпунова
Визуализатор: Дмитрий Стрюков
партнеры, заказчики, смежники
Заказчик: группа компаний КОМОССТРОЙ
другие названия проекта
поставщики, технологии
награды:
- Победитель в номинации «Лучший жилой комплекс бизнес-класса ПФО и ЦФО» премии Urban Awards 2023
ЖК MIKHÁILOVSKY
Фотография предоставлена КОМОССТРОЙ
ЖК MIKHÁILOVSKY
Фотография предоставлена КОМОССТРОЙ
описание:
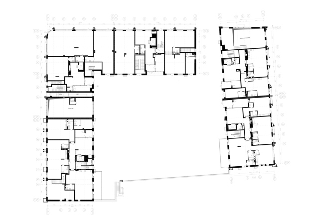
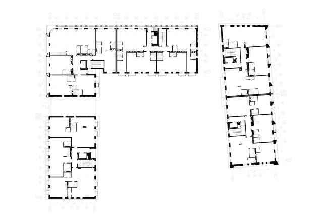
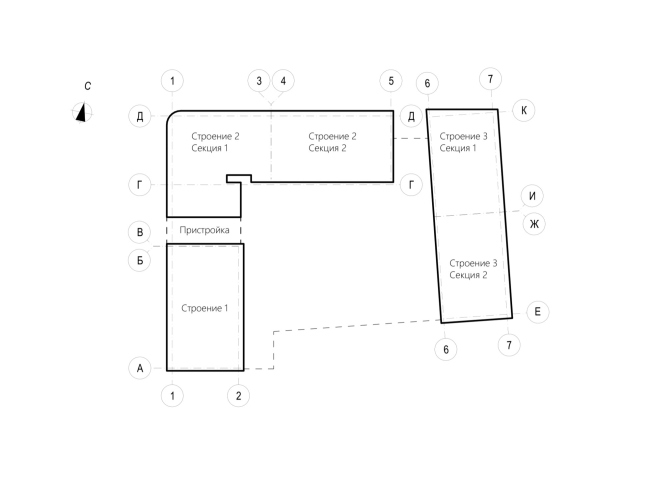
Жилой комплекс «Михайловский» расположен в Октябрьском районе г. Ижевска, в непосредственной близости от Михаило-Архангельского собора, музея Михаила Тимофеевича Калашникова и Центральной площади города. Комплекс представляет собой жилое здание П-образной формы, раскрывающееся на южную сторону пространством двора. Участок ограничен улицами Сивкова, Бородина, Свободы и имеет выраженный рельеф с уклоном с севера на юг, благодаря чему подземный паркинг поднимается над уровнем земли и образует естественное ограждение для закрытого двора, что обеспечивает более высокий уровень безопасности и приватности.
В состав комплекса входит один дом, выполненный в виде трёх взаимосвязанных строений переменной этажности. Вместе они формируют комфортное камерное пространство внутри двора, скрытое от автомобильных дорог и пешеходных улиц. Внешний облик здания – это восемь жилых этажей и три этажа в стилобатной части, объединённые между собой архитектурным поясом, стилизованным под общую визуальную эстетику фасада и передающим тектоничность образа. Входные группы каждого строения выходят в общее дворовое пространство, первый этаж второго строения предусмотрен для коммерции и ориентирован на общественное пространство (ул. Бородина).
Архитектурный облик объекта сложился на основе образов, навеянных расположением участка. Арочные окна, отделочные материалы и архитектурные элементы, использованные в дизайне комплекса, имеют символическое значение и отсылают к купеческой архитектуре исторической части города и русскому классицизму – стилю, характерному для Свято-Михайловского собора. Таким образом, облик жилого комплекса грамотно интегрирован в существующую застройку, является её неотъемлемой частью и логичным продолжением.
Изюминка комплекса – панорамные ламинированные окна высотой 2,80 метра от пола. Такое архитектурное решение визуально разгружает фасад и вносит современное звучание в контекст исторической застройки.
ЖК MIKHÁILOVSKY
Фотография предоставлена КОМОССТРОЙ
здесь использованы материалы и технологии:
Богандинский кирпичный завод
Фасады жилого комплекса выполнены с использованием двух видов кирпича ручной формовки – «Шампайн WF» и «Лозьер WF», что подчеркивает архитектурную связь с исторической застройкой города и «купеческим» стилем. Кирпич имеет бело-серый оттенок и формат 210x100x50 мм. Марка прочности М125-150 и морозостойкость F50 обеспечивают долговечность и устойчивость к климатическим воздействиям, а водопоглощение на уровне 14% гарантирует защиту от влаги. Кирпич ручной формовки удачно дополняет облик комплекса, создавая уникальную фактуру и цветовую палитру «под старину». Оба вида кирпича обладают высокой прочностью, устойчивостью к растрескиванию и деформации, а также отличной паропроницаемостью.