Логистический хаб Eskimo Plaza
Фотография предоставлена Миторра
Логистический хаб Eskimo Plaza
информация:
-
статус
реализовано -
даты
2018 — 2019 / 2018 — 2022 -
место
Санкт-Петербург ул. Мебельная, д. 9 -
координаты
59.993005, 30.234355 -
функция
Многофункциональный комплекс / Многофункциональный комплекс -
теги
send.project -
площадь участка
0,7123 га -
площадь застройки
2 611,7 м2 -
общая площадь
5 981,09 м2 -
высота
25,5 -
этажность
6

Дмитрий Кутузов
РоссияМиторра
Россияавторский коллектив
ГИП: Игорь Герасимчук
Инженер-конструктор: Михаил Голубев
партнеры, заказчики, смежники
Заказчик: Классик М
поставщики, технологии
Логистический хаб Eskimo Plaza
Фотография предоставлена Миторра
Логистический хаб Eskimo Plaza
© Миторра
история проекта:
«Миторра» была выбрана в результате тендера. Цель проекта – реконструкция существующего здания склада в Приморском районе Санкт-Петербурга.
описание:
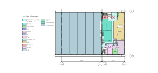
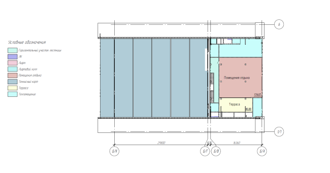
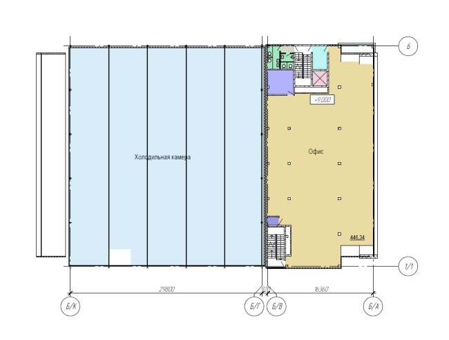
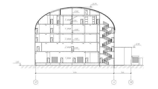
Заказчик проекта, производитель мороженого, планировал расширение существующего промышленного здания. «Миторра» предложила нестандартную конфигурацию обновленного здания в виде эскимо с «мостом» длиной 25 м, под которым теперь скрывается склад. В результате реконструкции появился яркий многофункциональный объект, вмещающий морозильный склад, теннисный корт, тренажёрный зал, несколько гостевых квартир с видом на Лахта-центр, а также офисные площади.
Здание привлекает внимание к бренду компании, улучшая панораму улиц и городской среды.
С инженерной точки зрения здание является уникальным строительным объектом, в котором использованы сложные технические и архитектурные решения: консоли длиной 5,5 метра с обоих торцов здания, мост длиной 25 метров, теннисный корт над помещением холодильного склада.
Проект полностью выполнен в среде BIM-моделирования с предоставлением заказчику информационной 3D-модели.