RSS
Квартал Шолохов парк
Квартал Шолохов парк
Фотография © Владимир Задумин / предоставлена План Б

Квартал Шолохов парк

информация:

  • статус
    в процессе реализации
  • даты
    20172021 / 2019
  • region= area= address=ул. Шолохова, 2 country_t=Россия city_t=Екатеринбург
    место
    Екатеринбург ул. Шолохова, 2
  • координаты
    56.807999, 60.718433
  • функция
    Жилой / жилой комплекс
  • теги
    send.project
  • 1 очередь
    Высота – 63,1 м
    Этажность – 19 этажей
    Общая площадь -11 000 м2
    Строительный объем – 42 950 м3
      
    2 очередь
    Высота – 47,6 м
    Этажность – 15 этажей
    Общая площадь – 11 203 м2
    Строительный объем – 43 540м3
Ксения Серебрякова
Россия

авторский коллектив

​Руководители авторского коллектива: Ксения Серебрякова, Антонина Савилова 
Главный архитектор: Елизавета Швердина 
Решения генерального плана: Елизавета Швердина, Дарья Македонская 
Главный инженер: Владимир Матвеев 
Архитекторы: Кудрина Елена, Белоусова Ольга 
Конструкторы: Максим Сметанин, Степан Кибанов 
Руководитель инженерной группы: Василий Зорин 

партнеры, заказчики, смежники

Проектирование железобетонного каркаса: Геотехпроект

Заказчик: Астра-Девелопмент
Квартал Шолохов парк
Фотография © Максим Лоскутов / предоставлена План Б
Квартал Шолохов парк
Фотография © Максим Лоскутов / предоставлена План Б

история проекта:

Жилой комплекс на улице Шолохова состоит из нескольких домов и находится в квартале улиц Шолохова, Лагерной и Сибирского тракта.

Наше бюро начало работать с этим проектом ещё на стадии общей концепции планировки территории. Позже по нашей концепции был сделан проект планировки территории для этого участка. Задача, которую ставил перед нами заказчик, заключалась в том, чтобы создать в этом доме максимально разнообразную типологию квартир. Часть участка была занята аварийными жилыми домами. Застройщик расселял их жителей, и некоторые из них пожелали остаться в этом же районе и получить квартиры в новом ЖК.

Всего в доме получилось 166 квартир 32 различных типов (7 типов однокомнатных, 17 типов двухкомнатных, 8 типов трехкомнатных). Это самая широкая квартирография, которую нам приходилось делать в одном доме.

У дома первой очереди фактически нет типового этажа. Повторяются планы только со 2-го по 6-й этаж, а все остальные этажи имеют разную планировку. Такая разнообразная квартирография и сформировала особенность дома, определив его объемно-пространственную композицию.

описание:

Проектируя этот дом, мы представляли себе образ дерева или грозового облака. У здания есть основной ствол, который одинаков по всей высоте дома, но с шестого этажа дом начинает ветвиться и разрастаться в стороны. Из него как будто выдвигаются ящики, он раскладывается в пространстве.

Нам было очень важно создать эту сложную форму и сделать это качественно, поэтому для работы над некоторыми разделами рабочего проекта мы наняли внешних конструкторов. С нами работала фирма «Геотехпроект» под руководством Максима Сметанина, а главным конструктором проекта стал Степан Кибанов.

Это был серьезный вызов для конструкторов: на верхних этажах у здания всё больше выступают перекрытия, а за ними – лоджии. В доме много консолей. Была проведена сложная работа по обеспечению утепления и гидроизоляции выступающих объемов. Благодаря индивидуальной работе конструкторов в доме есть консоли, которые не опираются на нижние этажи, а, наоборот, висят на конструкциях, находящихся выше.

В целом площадь этажа увеличивается кверху. Самые большие квартиры находятся на последних этажах, откуда открывается потрясающий вид.

Этот дом находится внутри квартала, поэтому он полностью жилой, без офисных и торговых помещений.

Вторая очередь имеет контрастное по сравнению с первой архитектурное решение – это абсолютно прямоугольный минималистичный дом. Все его этажи, кроме первого, одинаковы. Лифтовые холлы освещены естественным светом.

Третья очередь повторяет архитектурный прием первой – разрастается вверх. В результате получилось два сложных, активных дома и один минималистичный, который их объединяет. На первых двух этажах третьей очереди будет поликлиника, которая займет эти помещения, покинув свое старое здание.

У всего комплекса спроектирован большой двор. Он закрыт для машин: проезд предусмотрен только для спецслужб и, например, выгрузки мебели.

Для благоустройства детских площадок мы применили малые архитектурные формы (МАФы) фирмы «Наш двор», которые производятся в Первоуральске. Эти элементы выполнены из натурального дерева, но обычно окрашиваются в яркие цвета составами, скрывающими его текстуру. Мы договорились с производителем, что для нашего проекта они не будут окрашивать игровые комплексы, а применят покрытие, сохраняющее естественную фактуру дерева. Это не привело к значительному удорожанию, но значительно повысило их эстетические качества.

Квартал Шолохов парк
Фотография © Максим Лоскутов / предоставлена План Б
Квартал Шолохов парк
Фотография © Максим Лоскутов / предоставлена План Б
Квартал Шолохов парк
Фотография © Максим Лоскутов / предоставлена План Б
Квартал Шолохов парк
Фотография © Максим Лоскутов / предоставлена План Б
Квартал Шолохов парк
Фотография © Максим Лоскутов / предоставлена План Б
Квартал Шолохов парк
Фотография © Максим Лоскутов / предоставлена План Б
Квартал Шолохов парк
Фотография © Максим Лоскутов / предоставлена План Б
Квартал Шолохов парк
Фотография © Максим Лоскутов / предоставлена План Б
Квартал Шолохов парк
Фотография © Максим Лоскутов / предоставлена План Б
Квартал Шолохов парк
Фотография © Максим Лоскутов / предоставлена План Б
Квартал Шолохов парк
Фотография © Максим Лоскутов / предоставлена План Б
Квартал Шолохов парк
Фотография © Максим Лоскутов / предоставлена План Б
Квартал Шолохов парк
Фотография © Максим Лоскутов / предоставлена План Б
Квартал Шолохов парк
Фотография © Максим Лоскутов / предоставлена План Б
Квартал Шолохов парк
Фотография © Максим Лоскутов / предоставлена План Б
Квартал Шолохов парк
Фотография © Максим Лоскутов / предоставлена План Б
Квартал Шолохов парк
Фотография © Максим Лоскутов / предоставлена План Б
Квартал Шолохов парк
Фотография © Максим Лоскутов / предоставлена План Б
Квартал Шолохов парк
Фотография © Максим Лоскутов / предоставлена План Б
Квартал Шолохов парк
Фотография © Владимир Задумин / предоставлена План Б
Квартал Шолохов парк
Фотография © Максим Лоскутов / предоставлена План Б
Квартал Шолохов парк
Фотография © Максим Лоскутов / предоставлена План Б
Квартал Шолохов парк
Фотография © Максим Лоскутов / предоставлена План Б
Квартал Шолохов парк
Фотография © Максим Лоскутов / предоставлена План Б
Квартал Шолохов парк. Генплан
© План Б
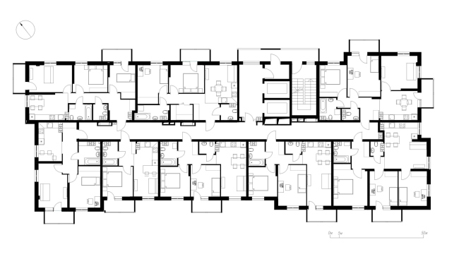
Квартал Шолохов парк. План 1 этажа
© План Б
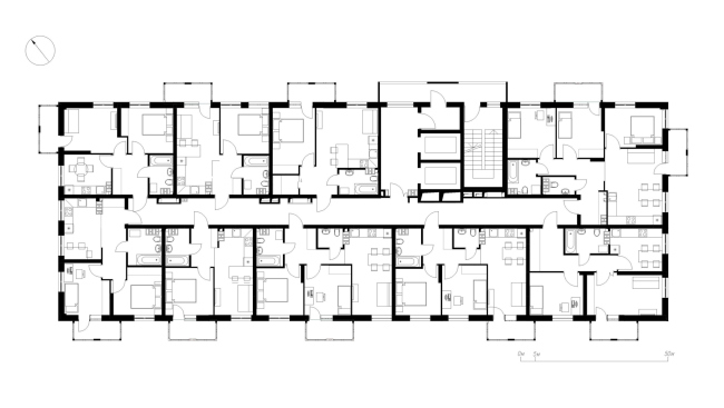
Квартал Шолохов парк. План 2 этажа
© План Б
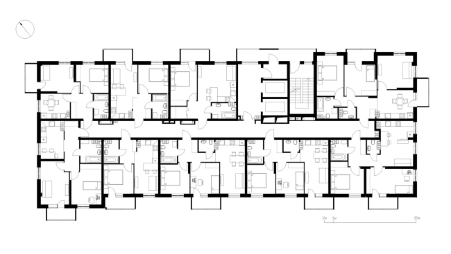
Квартал Шолохов парк. План 6 этажа
© План Б
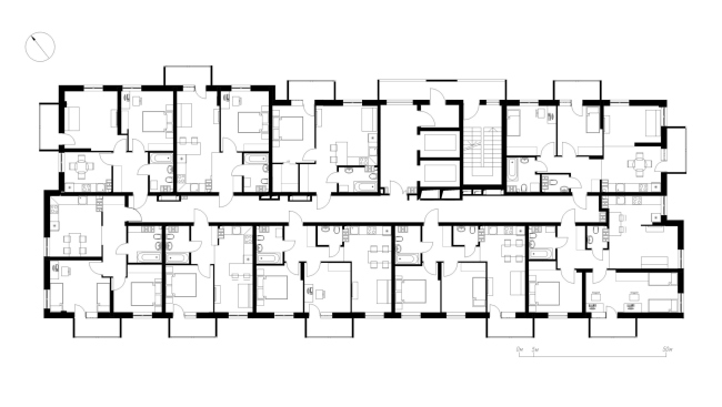
Квартал Шолохов парк. План 12 этажа
© План Б
Квартал Шолохов парк. План 17 этажа
© План Б

Архитекторы – партнеры Архи.ру:

  • Дмитрий Остроумов
  • Зураб Басария
  • Анастасия Абашева
  • Андрей Асадов
  • Борис Воскобойников
  • Александр Асадов
  • Полина Воеводина
  • Михаил Давыдов
  • Всеволод Медведев
  • Александра Кузьмина
  • Олег Шапиро
  • Георгий Трофимов
  • Сергей Чобан
  • Раис Баишев
  • Андрей Михайлов
  • Виталий Лутц
  • Юлия Солдатенкова
  • Никита Явейн
  • Григориос Гавалидис
  • Степан Липгарт
  • Василий Крапивин
  • Станислав Белых
  • Ерлан Бекмухамедов
  • Сергей Скуратов
  • Вера Бутко
  • Михаил Канунников
  • Даниил Лоренц
  • Антон Надточий
  • Дмитрий Сухов
  • Энди Сноу
  • Александр Скокан
  • Марина Егорова
  • Иван Кожин
  • Андрей Романов
  • Валерий Каняшин
  • Владислав Андреев
  • Юлия Тряскина
  • Александр Котенков
  • Дмитрий Буш
  • Татьяна Зульхарнеева
  • Юлий Борисов
  • Алексей Орлов
  • Илья Машков
  • Сергей Труханов
  • Николай Кикава
  • Наталия Шилова
  • Елена Пучкова
  • Евгений Новосадюк
  • Владимир Плоткин
  • Александр Самарин
  • Андрей Гнездилов
  • Григорий Мустафин
  • Наталья Сидорова
  • Антон Яр-Скрябин
  • Константин Ходнев
  • Сергей Никешкин
  • Евгений Подгорнов
  • Юлиана Княжевская
  • Павел Андреев
  • Евгений Зеленов
  • Сергей Кузнецов
  • Сергей Переслегин
  • Ростислав Цайзер
  • Игорь Шварцман
  • Дмитрий Ликин
  • Екатерина Кузнецова
  • Мария Ахременкова
  • Олег Мединский
  • Николай Переслегин
  • Игорь Членов
  • Тимур Абдуллаев
  • Екатерина Абдуллаева
  • Маргарита Авдышева
  • Левон Айрапетов
  • Александр Аношкин
  • Алексей Афоничкин
  • Владислав Бек-Булатов
  • Антон Белов
  • Татьяна Бузулукова
  • Петр Васильев
  • Данило Вукосавлевич
  • Алина Георгиевская
  • Павел Гордеев
  • Илья Гринберг
  • Никита Демидов
  • Никита Дергунов
  • Наталья Жилкина
  • Алексей Зародов
  • Екатерина Зырина
  • Алексей Ильин
  • Дарья Ильина
  • Олег Карлсон
  • Алексей Кибкало
  • Денис Кувшинников
  • Анна Куликова
  • Алексей Курков
  • Данил Куров
  • Мария Кутай
  • Евгений Кутай
  • Иван Кычкин
  • Антон Ладыгин
  • Дмитрий Лапин
  • Илья Левянт
  • Катерина Левянт
  • Борис Левянт
  • Валерий Лукомский
  • Антон Лукомский
  • Екатерина Ляпунова
  • Иса Магомедов
  • Сергей Марков
  • Елена Мерцалова
  • Николай Миловидов
  • Станислав Михаловский
  • Сергей Мичурин
  • Олеся Могилевская
  • Филипп Никандров
  • Мария Николаева
  • Дмитрий Овчаров
  • Сергей Пергаев
  • Виктор Перов
  • Алексей Полищук
  • Роман Пономарёв
  • Валерия Преображенская
  • Виктория Раубо
  • Василий Рыбаков
  • Николай Рыбаков
  • Мария Салех
  • Александр Стариков
  • Илья Уткин
  • Елисей Чакан
  • Бориша Чорович
  • Олег Шурыгин
  • Дмитрий Шурыгин

Проект из каталога (случайный выбор)

Благоустройство территории ЖК «Юнион-парк»
Дмитрий Онищенко, Сергей Курдюков , 2007 – 2008
Благоустройство территории ЖК «Юнион-парк»

Постройки и проекты (новые записи):

  • Архитектурная концепция кластера Ломоносов-2
  • Клубный дом в 1-м Казачьем переулке
  • Частный дом в Ленинградской области
  • IT-кластер TravelLine в Йошкар-Оле
  • Гостиничный комплекс Cosmos Selection Derbent 5
  • Офис компании АльфаСтрахование
  • MIDITI
  • Офис компании Kept
  • Дом Спорта

Новости российской архитектуры:

Звенья одной цепи
30.04.2026

Звенья одной цепи

Александр Федотов, Глеб Кожевников, Бокейхан Камза, Евгений Волков
IAD Awards 2026
29.04.2026

IAD Awards 2026