RSS
Жилой дом mART
Фотография © Максим Лоскутов / предоставлена План Б

Жилой дом mART

информация:

  • статус
    реализовано
  • даты
    20172020 / — 2021
  • region= area= address=ул. Большакова, 147 country_t=Россия city_t=Екатеринбург
    место
    Екатеринбург ул. Большакова, 147
  • координаты
    56.816075, 60.593558
  • функция
    Жилой / многоквартирный дом
  • общая площадь
    14 912 м2
  • высота
    99,3
  • этажность
    30
  • строительный объем
    73 000 м3
Ксения Серебрякова
Россия

авторский коллектив

​Руководители авторского коллектива: Ксения Серебрякова, Савилова Антонина
Главный архитектор: Ксения Серебрякова 
Решения генерального плана: Ксения Серебрякова, Дарья Македонская 
Архитекторы: Ксения Серебрякова, Павел Логинов, Михаил Княжев, Антонина Савилова 
Конструкторы: Марина Габзалилова 
Руководитель инженерной группы: Василий Зорин 

партнеры, заказчики, смежники

Заказчик: Астра-Девелопмент
Жилой дом mART
Фотография © Максим Лоскутов / предоставлена План Б
Жилой дом mART
Фотография © Максим Лоскутов / предоставлена План Б

история проекта:

Нашей задачей было спроектировать жилой дом в сложившейся городской застройке. Существующая застройка этого места довольно неоднородна: с одной стороны – район пятиэтажных позднесоветских жилых домов, плотно посаженных друг к другу, так называемых хрущёвок. С другой стороны, напротив, через улицу Большакова, находится огромный Дворец спорта «Уралец» и масштабное открытое пространство аллеи перед ним.

Мы ставили перед собой задачу найти баланс между двумя сторонами улицы Большакова, создать объект, соразмерный Дворцу спорта. Нам было важно спроектировать жилое здание, которое по архитектуре было бы ближе к общественному и стало бы вертикалью, подчёркивающей монолитную горизонталь Дворца спорта. Нам нужно было, чтобы новый дом не перенимал мелкие членения окружающей застройки, не смотрелся как такой же домик с квадратными окошками, только растянутый вверх на 30 этажей.

Мы хотели уйти от привычного для жилых домов членения фасадов к сложной, динамичной композиции, напоминающей ткань, которая оборачивает весь объём, делая его единым. Мы стремились к тому, чтобы он выглядел не как жилой дом, а как арт-объект Христо Явашева.

описание:

Главной обзорной точкой для этого здания являются перспективы улицы Большакова. Мы сделали здание пятиугольным в плане, чтобы оно хорошо смотрелось с боковых ракурсов. Эта форма также делает здание более изящным и вытянутым вверх.

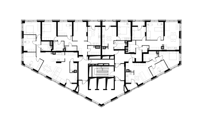
Из-за пятиугольного плана внутри здания возникли планировки, построенные на неортогональной геометрии. И это стало конкурентным преимуществом – оказалось, что существует большой спрос на нетиповые квартиры с углами, отличными от прямых.

Особенностью работы над этим проектом стало то, что дом проектировался по специальным техническим условиям. Спецтехусловия непросто получить, но они позволяют создавать архитектуру, не опираясь на жёсткие нормы, а делать что-то необычное и нетиповое.

Например, благодаря спецтехусловиям можно строить высотные здания без переходной лоджии на эвакуационной лестнице. По пожарным нормам эвакуационная лестница должна выходить на фасад, а лифтовые холлы, как правило, убирают внутрь здания, лишая их естественного освещения. Мы воспользовались возможностью, которую давали нам спецтехусловия, и разместили лестницу внутри дома, освободив фасад от переходных лоджий. Вместо них появились панорамные окна лифтовых холлов с великолепным видом на город.

Необычного проектного решения требовал и двор этого жилого дома. Мы спроектировали его как камерные пространства, отделённые друг от друга и от внешнего мира. Про себя мы назвали их «комнаты». Наш двор состоит из нескольких таких комнат: это пространство с песочницей для совсем маленьких детей и их родителей, детская площадка для детей постарше, спортивная площадка для жителей любого возраста и «гостиная» – зона со столом и беседкой.

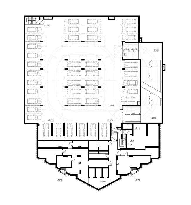
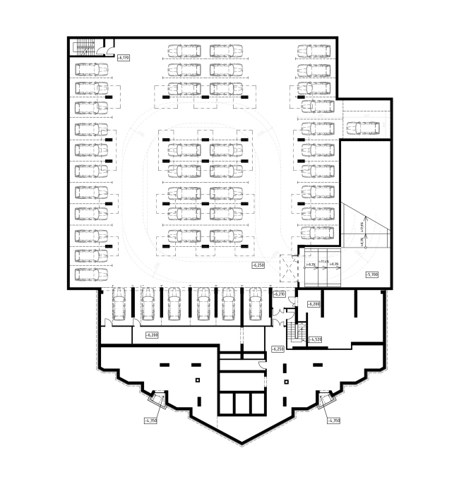
Под двором и зданием находится подземный паркинг. Он является нашей отдельной гордостью, потому что нам удалось сделать его абсолютно прямоугольным и удобным, с ровным, комфортным въездом.

Архитекторы уделяют много времени тому, чтобы квартиры были удобными и понятными. А вот к плану паркинга почему-то не подходят с такой же скрупулёзностью, хотя удобный паркинг – это тоже очень важно. Ещё один важный момент удобства – паркинг соединён с жилым домом. Вы можете подняться в квартиру прямо из машины, не выходя на улицу. Это потребовало разработки отдельного инженерного решения, но для нас этот вопрос был принципиально важен.

Для нас этот проект стал уникальным опытом проектирования с разработкой и получением специальных технических условий, позволивших реализовать нетиповые решения и создать уникальную архитектуру.

Жилой дом mART
Фотография © Максим Лоскутов / предоставлена План Б
Жилой дом mART
Фотография © Максим Лоскутов / предоставлена План Б
Жилой дом mART
Фотография © Максим Лоскутов / предоставлена План Б
Жилой дом mART
Фотография © Максим Лоскутов / предоставлена План Б
Жилой дом mART
Фотография © Максим Лоскутов / предоставлена План Б
Жилой дом mART
Фотография © Максим Лоскутов / предоставлена План Б
Жилой дом mART
Фотография © Максим Лоскутов / предоставлена План Б
Жилой дом mART
Фотография © Максим Лоскутов / предоставлена План Б
Жилой дом mART
Фотография © Максим Лоскутов / предоставлена План Б
Жилой дом mART
Фотография © Максим Лоскутов / предоставлена План Б
Жилой дом mART
Фотография © Максим Лоскутов / предоставлена План Б
Жилой дом mART
Фотография © Максим Лоскутов / предоставлена План Б
Жилой дом mART
Фотография © Максим Лоскутов / предоставлена План Б
Жилой дом mART
Фотография © Максим Лоскутов / предоставлена План Б
Жилой дом mART
Фотография © Максим Лоскутов / предоставлена План Б
Жилой дом mART
Фотография © Максим Лоскутов / предоставлена План Б
Жилой дом mART. Генплан
© План Б
Жилой дом mART. Западный фасад
© План Б
Жилой дом mART. Северный фасад
© План Б
Жилой дом mART. Южный фасад
© План Б
Жилой дом mART
© План Б
Жилой дом mART. План -2 этажа
© План Б
Жилой дом mART. План -1 этажа
© План Б
Жилой дом mART. План 1 этажа
© План Б
Жилой дом mART. План 2 этажа
© План Б
Жилой дом mART. План 3-17 этажа
© План Б
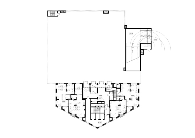
Жилой дом mART. План 18 этажа
© План Б
Жилой дом mART. Палн 19-25 этажа
© План Б

Архитекторы – партнеры Архи.ру:

  • Юлия Солдатенкова
  • Мария Ахременкова
  • Игорь Шварцман
  • Юлия Тряскина
  • Юлий Борисов
  • Василий Крапивин
  • Владислав Андреев
  • Наталья Сидорова
  • Андрей Романов
  • Константин Ходнев
  • Екатерина Кузнецова
  • Евгений Зеленов
  • Елена Пучкова
  • Николай Переслегин
  • Вера Бутко
  • Олег Шапиро
  • Сергей Переслегин
  • Андрей Гнездилов
  • Станислав Белых
  • Алексей Орлов
  • Борис Воскобойников
  • Игорь Членов
  • Илья Машков
  • Александра Кузьмина
  • Ростислав Цайзер
  • Александр Скокан
  • Сергей Чобан
  • Дмитрий Остроумов
  • Юлиана Княжевская
  • Сергей Никешкин
  • Александр Асадов
  • Дмитрий Сухов
  • Виталий Лутц
  • Полина Воеводина
  • Владимир Плоткин
  • Андрей Михайлов
  • Зураб Басария
  • Сергей Скуратов
  • Энди Сноу
  • Григорий Мустафин
  • Никита Явейн
  • Степан Липгарт
  • Даниил Лоренц
  • Олег Мединский
  • Антон Надточий
  • Андрей Асадов
  • Михаил Давыдов
  • Дмитрий Ликин
  • Дмитрий Буш
  • Николай Кикава
  • Ерлан Бекмухамедов
  • Раис Баишев
  • Александр Котенков
  • Анастасия Абашева
  • Валерий Каняшин
  • Антон Яр-Скрябин
  • Сергей Кузнецов
  • Евгений Подгорнов
  • Павел Андреев
  • Александр Самарин
  • Наталия Шилова
  • Марина Егорова
  • Всеволод Медведев
  • Татьяна Зульхарнеева
  • Иван Кожин
  • Григориос Гавалидис
  • Георгий Трофимов
  • Евгений Новосадюк
  • Сергей Труханов
  • Михаил Канунников
  • Тимур Абдуллаев
  • Екатерина Абдуллаева
  • Маргарита Авдышева
  • Левон Айрапетов
  • Александр Аношкин
  • Алексей Афоничкин
  • Владислав Бек-Булатов
  • Антон Белов
  • Татьяна Бузулукова
  • Петр Васильев
  • Данило Вукосавлевич
  • Алина Георгиевская
  • Павел Гордеев
  • Илья Гринберг
  • Никита Демидов
  • Никита Дергунов
  • Наталья Жилкина
  • Алексей Зародов
  • Екатерина Зырина
  • Алексей Ильин
  • Дарья Ильина
  • Олег Карлсон
  • Алексей Кибкало
  • Денис Кувшинников
  • Анна Куликова
  • Алексей Курков
  • Данил Куров
  • Мария Кутай
  • Евгений Кутай
  • Иван Кычкин
  • Антон Ладыгин
  • Дмитрий Лапин
  • Борис Левянт
  • Илья Левянт
  • Катерина Левянт
  • Валерий Лукомский
  • Антон Лукомский
  • Екатерина Ляпунова
  • Иса Магомедов
  • Сергей Марков
  • Елена Мерцалова
  • Николай Миловидов
  • Станислав Михаловский
  • Сергей Мичурин
  • Олеся Могилевская
  • Филипп Никандров
  • Мария Николаева
  • Дмитрий Овчаров
  • Сергей Пергаев
  • Виктор Перов
  • Алексей Полищук
  • Роман Пономарёв
  • Валерия Преображенская
  • Виктория Раубо
  • Василий Рыбаков
  • Николай Рыбаков
  • Мария Салех
  • Александр Стариков
  • Илья Уткин
  • Елисей Чакан
  • Бориша Чорович
  • Олег Шурыгин
  • Дмитрий Шурыгин

Проект из каталога (случайный выбор)

Индивидуальный жилой дом «Путь к реке»
Арсений Леонович, Никита Токарев, 2004
Индивидуальный жилой дом «Путь к реке»

Постройки и проекты (новые записи):

  • Деловое пространство «ПЛЭЙН»
  • Конкурсный проект ФИЦ / ТПО «Резерв»
  • Porta
  • Детский сад на 200 мест в Жилино-1
  • Архитектурная концепция кластера Ломоносов-2
  • Клубный дом в 1-м Казачьем переулке
  • Частный дом в Ленинградской области
  • IT-кластер TravelLine в Йошкар-Оле
  • Гостиничный комплекс Cosmos Selection Derbent 5

Новости российской архитектуры:

КиноГолограмма
12.05.2026

КиноГолограмма

Николай Переслегин, Сергей Переслегин, Георгий Трофимов
Форма как метод: ТПО «Резерв»
12.05.2026

Форма как метод: ТПО «Резерв»

Владимир Плоткин
Консервация как комментарий
12.05.2026

Консервация как комментарий

Наринэ Тютчева