Офис продаж ЖК «Мангазея на Речном»
Фотография © Дмитрий Цыренщиков / предоставлена MORS ARCHITECTS
Офис продаж ЖК «Мангазея на Речном»
информация:
-
статус
реализовано -
даты
— 2024 / — 2024 -
место
Москва Ленинградское ш., 57 -
координаты
55.855021, 37.464172 -
функция
Административно-офисный / офисное здание -
теги
send.project -
общая площадь
272,4 м2 -
этажность
2

Виталий Землянский
Россия
Дмитрий Макеенко
РоссияMORS ARCHITECTS
Россияавторский коллектив
Генеральный директор: Виталий Землянский
Главный архитектор и партнер: Дмитрий Макеенко
Главный архитектор: Ника Арутюнов
Ведущий архитектор, BIM проектировщик: Татьяна Калекина
Главный архитектор и партнер: Дмитрий Макеенко
Главный архитектор: Ника Арутюнов
Ведущий архитектор, BIM проектировщик: Татьяна Калекина
партнеры, заказчики, смежники
Заказчик: Мангазея
Офис продаж ЖК «Мангазея на Речном»
Фотография © Дмитрий Цыренщиков / предоставлена MORS ARCHITECTS
Архи.ру об этом объекте:
29.01.2025
Присутствие реки
Офис продаж московского жилого комплекса «Мангазея на Речном», построенный по проекту MORS ARCHITECTS, подчеркивает главные ценности объекта, который он репрезентует: городской комфорт и возможность контактировать с природой благодаря близости реки и нескольких парков.
Описание предоставлено архитекторами Офис продаж расположился в непосредственной близости от площадки строительства, в окружении зелени парка, рядом с рекой. В основе концепции образ спокойных речных вод, что перекликается с решением жилого компле... читать дальшеОфис продаж ЖК «Мангазея на Речном»
Фотография © Дмитрий Цыренщиков / предоставлена MORS ARCHITECTS
описание:
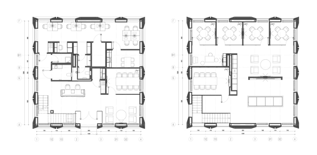
Архитектурное бюро MORS ARCHITECTS разработа ло проект для офиса продаж «Мангазея на Речном» от девелопера «Мангазея». Объект площадью 272,4 кв.м расположился в непосредственной близости от площадки строительства проекта и в зеленом окружении парка, рядом с рекой. Площадь первого этажа составила 139,4 кв.м, площадь второго этажа – 133 кв.м.
В основе концепции офиса продаж – образ спокойных речных вод, перекликающийся с концептуальным решением всего жилого проекта. В качестве основного материала были выбраны фасадные панели двух типов – моноцветные и с рисунком состаренной меди. Их дополнили металлическими вставками.
«Центральный вход офиса продаж выходит на набережную: посетители могут видеть прогулочные суда, отправляющиеся с Речного вокзала, а пассажиры катеров, в свою очередь, первым при отправлении увидят именно здание офиса продаж. Вывеску объекта выполнили на стекле изумрудного оттенка, подчеркнув связь с водой», – отметили в компании «Мангазея».
В дизайне интерьеров основу выбора составили приглушенные, мягкие оттенки северной природы. Вдохновением для выбора такой палитры стало спокойное и солнечное северное утро. Доминантой интерьера стала стойка ресепшен: ее выполнили из архбетона по индивидуальному проекту, в форме, имитирующей природный валун. Внутреннее пространство офиса составила комфортная зона презентации проекта и переговорные комнаты.
«Важную роль в формировании архитектуры офиса продаж для «Мангазеи на Речном» сыграло освещение: благодаря ему объект заметен в вечерние часы и приобретает особенную геометрию. Фасады разделены вертикальными линиями со встроенной подсветкой в теплых тонах, что визуально выигрышно вытягивает здание по высоте. На уровне верхнего ограждения мы предусмотрели рассеянную архитектурную подсветку, а зону с металлом, имитирующим водную рябь, подсветили прожекторами с уровня земли. Таким образом удалось подчеркнуть рельеф и игру света во входной группе», – поделился партнер и главный архитектор бюро MORS ARCHITECTS Дмитрий Макеенко.
«Мангазея на Речном» – проект площадью 14 га от девелопера «Мангазея». MORS ARCHITECTS та кже разработали интерьеры общественных пространств, которые появятся в составе второй очереди.
В основе концепции офиса продаж – образ спокойных речных вод, перекликающийся с концептуальным решением всего жилого проекта. В качестве основного материала были выбраны фасадные панели двух типов – моноцветные и с рисунком состаренной меди. Их дополнили металлическими вставками.
«Центральный вход офиса продаж выходит на набережную: посетители могут видеть прогулочные суда, отправляющиеся с Речного вокзала, а пассажиры катеров, в свою очередь, первым при отправлении увидят именно здание офиса продаж. Вывеску объекта выполнили на стекле изумрудного оттенка, подчеркнув связь с водой», – отметили в компании «Мангазея».
В дизайне интерьеров основу выбора составили приглушенные, мягкие оттенки северной природы. Вдохновением для выбора такой палитры стало спокойное и солнечное северное утро. Доминантой интерьера стала стойка ресепшен: ее выполнили из архбетона по индивидуальному проекту, в форме, имитирующей природный валун. Внутреннее пространство офиса составила комфортная зона презентации проекта и переговорные комнаты.
«Важную роль в формировании архитектуры офиса продаж для «Мангазеи на Речном» сыграло освещение: благодаря ему объект заметен в вечерние часы и приобретает особенную геометрию. Фасады разделены вертикальными линиями со встроенной подсветкой в теплых тонах, что визуально выигрышно вытягивает здание по высоте. На уровне верхнего ограждения мы предусмотрели рассеянную архитектурную подсветку, а зону с металлом, имитирующим водную рябь, подсветили прожекторами с уровня земли. Таким образом удалось подчеркнуть рельеф и игру света во входной группе», – поделился партнер и главный архитектор бюро MORS ARCHITECTS Дмитрий Макеенко.
«Мангазея на Речном» – проект площадью 14 га от девелопера «Мангазея». MORS ARCHITECTS та
Офис продаж ЖК «Мангазея на Речном»
Фотография © Дмитрий Цыренщиков / предоставлена MORS ARCHITECTS
Офис продаж ЖК «Мангазея на Речном»
Фотография © Дмитрий Цыренщиков / предоставлена MORS ARCHITECTS
Офис продаж ЖК «Мангазея на Речном»
Фотография © Дмитрий Цыренщиков / предоставлена MORS ARCHITECTS
Офис продаж ЖК «Мангазея на Речном»
Фотография © Дмитрий Цыренщиков / предоставлена MORS ARCHITECTS
Офис продаж ЖК «Мангазея на Речном»
Фотография © Дмитрий Цыренщиков / предоставлена MORS ARCHITECTS
Офис продаж ЖК «Мангазея на Речном»
Фотография © Дмитрий Цыренщиков / предоставлена MORS ARCHITECTS
Офис продаж ЖК «Мангазея на Речном»
Фотография © Дмитрий Цыренщиков / предоставлена MORS ARCHITECTS
Офис продаж ЖК «Мангазея на Речном»
Фотография © Дмитрий Цыренщиков / предоставлена MORS ARCHITECTS
Офис продаж ЖК «Мангазея на Речном»
Фотография © Дмитрий Цыренщиков / предоставлена MORS ARCHITECTS
Офис продаж ЖК «Мангазея на Речном». Генплан
© MORS ARCHITECTS
Офис продаж ЖК «Мангазея на Речном»
© MORS ARCHITECTS
Архитекторы – партнеры Архи.ру:
Проект из каталога (случайный выбор)
Постройки и проекты (новые записи):
Новости российской архитектуры:
26.09.2025
Падел на взморье
Антон Цветков, Виктория Ревякина, Иванов Константин25.09.2025
Эндорфиновый всплеск
Филипп Бабошкин24.09.2025