RSS
Образовательный комплекс ЖК «Крылья»
© ИМАГО

Образовательный комплекс ЖК «Крылья»

информация:

  • статус
    проект
  • даты
    20232024
  • region= area= address=Лобачевского, влд. 120 country_t=Россия city_t=Москва
    место
    Москва Лобачевского, влд. 120
  • координаты
    55.695401, 37.470579
  • функция
    Образование и наука / Образовательный комплекс
  • площадь участка
    1,4 га
  • площадь застройки
    3 357 м2
  • общая площадь
    11 500 м2
  • этажность
    3-4
  • строительный объем
    59 367 м3
  • Школа – 450 мест
    ДОУ – 175 мест
  • другие объекты
    2022
    ЖК «Крылья»
Россия

авторский коллектив

Сергей Остроух, Анна Градович, Анатолий Воронин, Розалия Терзиян, Тамара Пастухова, Диана Чалоян, Юлия Блюдник, Светлана Щербакова, Зубкова Анна, Соколова Екатерина, Карина Гилязетдинова, Антон Каширин

партнеры, заказчики, смежники

Заказчик: Эталон
Образовательный комплекс ЖК «Крылья» 2025
© ИМАГО / предоставлено пресс-службой Москомархитектуры
Образовательный комплекс ЖК «Крылья» 2025
© ИМАГО / предоставлено пресс-службой Москомархитектуры

описание:

Предоставлено пресс-службой Москомархитектуры. 02.06.2025

Согласован проект образовательного комплекса на 625 мест, который планируют построить в Раменках. Здание выполнят в теплых оттенках, а на часть фасадов нанесут абстрактный узор. Об этом сообщил главный архитектор столицы, первый заместитель председателя Комитета по архитектуре и градостроительству (Москомархитектура), входящего в Комплекс градостроительной политики и строительства города Москвы, Сергей Кузнецов.

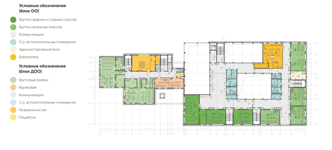
Проект будет включать современную школу на 450 мест и детский сад на 175 мест. Общая площадь образовательного комплекса составит 11,5 тысячи квадратных метров.

«Визуально здание представляет собой два смежных прямоугольных блока высотой в три и четыре этажа. Для оформления фасадов были выбраны нейтральные бежевые оттенки и современные долговечные материалы: хризотилцементные панели с фотопечатью, матовый керамогранит контрастных оттенков с фактурой под камень, кассеты серо-белого цвета. Входные группы оформят металлическими панелями и декоративными колоннами цвета латуни», – отметил Сергей Кузнецов.

За счет широкого использования витражных конструкций образовательный комплекс будет пронизан солнечным светом. Например, блок спортивного зала будет полностью остеклен. При этом на окнах с внутренней стороны по проекту предусмотрены защитные сетчатые экраны.

При выборе колористического решения фасадов архитекторы ГК «ИМАГО» ориентировались, в первую очередь, на окружающую застройку. Необходимо было сформировать стилистически нейтральный образ, который бы гармонично сочетался с близлежащим жилым комплексом, имеющим бионические формы. Кроме того, требовалось разместить объект на ограниченной территории в 1,4 гектара. В итоге удалось создать компактный и функциональный план, который включает детские и спортивные площадки, вписанные в общую концепцию района.

На прилегающей территории для дошкольников сделают семь игровых и две спортивные площадки. Школьникам предусмотрены зоны отдыха с игровыми комплексами, а также полноценный физкультурный блок с беговой дорожкой на четыре полосы. Здесь также у школьников появится поле для мини-футбола, совмещенное с волейбольной площадкой, площадка для игры в стритбол и для прыжков в длину. Помимо этого, прилегающая территория будет комплексно благоустроена.

Образовательный комплекс возведут в составе ЖК «Крылья» по адресу: улица Лобачевского, земельный участок 120/1. Девелопером выступает Группа «Эталон».

«Ключевая особенность объекта – смелые и эффективные планировочные решения. Например, между находящимися рядом многофункциональном многосветным пространством и обеденным залом предусмотрены раздвижные перегородки, благодаря которым можно объединить эти два пространства и получить многофункциональную площадку для проведения разнообразных мероприятий. Размещение школы и детского сада в едином образовательном комплексе позволило не дублировать такие функции, как пищеблок полного технологического цикла и медицинский блок, за счет чего удалось оптимизировать пространство», – отметил генеральный директор бюро Сергей Остроух.

Возведение в Москве социальных объектов соответствует целям и инициативам национального проекта «Инфраструктура для жизни».



 


Жилой комплекс бизнес-класса «Крылья» находится в районе Раменки на западе Москвы. Район считается престижным, благодаря сочетанию современной инфраструктуры, зеленых зон и близости к центру города. Новая образовательная инфраструктура стала важной частью программы развития района. Она включает школу на 450 мест и детский сад на 175 мест. Площадь комплекса – 11,5 тыс. кв. м, размещение на участке 1,4 га, с разноуровневыми зданиями высотой 3–4 этажа.

Образовательный комплекс в ЖК «Крылья» признан Союзом московских архитекторов лучшим решением по благоустройству для создания комфортной среды для детей на выставке Build School 2024. Концепция проекта Концепция генерального плана заключалась в том, чтобы объединить функциональность и различные эстетические стили окружающих районов. Это включало сочетание архитектуры ЖК «Крылья» с его биообъемами, и парковой зоной, а также хаотичным обликом уже сложившейся застройки.

ГК ИМАГО разработала проект, включая все его составляющие: от посадки здания до согласования, проработки внутренних планировок и защиты проекта в госэкспертизе. Архитекторы ГК ИМАГО также проектировали интерьеры образовательного комплекса. Основные архитектурные приемы Интеграция образовательного комплекса в существующую городскую среду Главный вызов проекта состоял в том, чтобы разместить все необходимые функциональные элементы на ограниченной территории. Жилой комплекс окружен уже существующей застройкой, новыми современными жилыми комплексами и парковой зоной. 

Специалисты архитектурного бюро ИМАГО разработали компактный план, который позволил органично вписать спортивные и детские площадки, сохранив при этом функциональность и удобство использования пространства.

Органично вписать объект в существующую застройку удалось благодаря использованию нейтральной архитектуры, ставшей «шарниром», соединяющим несколько элементов района. Несмотря на выразительные ребра фасадов ЖК «Крылья», объект выполняет роль связующего звена – объединяет разные стилистические решения застройки и создает целостный архитектурный ансамбль.

Архитектурное решение также предусматривало разные объемы между зданием школы и детского сада, что обеспечивало функциональную разницу между объектами, но с сохранением общей стилистической концепции.

Для того чтобы решить проблему инсоляции специалисты архитектурного бюро ИМАГО немного изменили расположение, чтобы минимизировать влияние тени. Разработка инновационной модели спортивного ядра Сложность проекта заключалась не только в архитектуре, но и в организации спортивных объектов. Обычное спортядро не помещалось на ограниченной территории, поэтому было предложено укороченное решение, согласованное с Департаментом образования города Москвы. Это решение стало стандартом для других проектов в Москве. Экономическая эффективность  
Несмотря на ограниченное пространство, архитектурное бюро ИМАГО смогло разместить на участке всю необходимую инфраструктуру, обеспечив не только функциональность комплекса, но и эффективное использование средств девелопера и инвесторов.
Образовательный комплекс ЖК «Крылья» 2025
© ИМАГО / предоставлено пресс-службой Москомархитектуры
Образовательный комплекс ЖК «Крылья» 2025
© ИМАГО / предоставлено пресс-службой Москомархитектуры
Образовательный комплекс ЖК «Крылья» 2025
© ИМАГО / предоставлено пресс-службой Москомархитектуры
Образовательный комплекс ЖК «Крылья»
© ИМАГО
Образовательный комплекс ЖК «Крылья»
© ИМАГО
Образовательный комплекс ЖК «Крылья»
© ИМАГО
Образовательный комплекс ЖК «Крылья»
© ИМАГО
Образовательный комплекс ЖК «Крылья». Ситуационный план
© ИМАГО
Образовательный комплекс ЖК «Крылья». Генеральный план
© ИМАГО
Образовательный комплекс ЖК «Крылья»
© ИМАГО
Образовательный комплекс ЖК «Крылья». Фасады 1-25 и 25-1
© ИМАГО
Образовательный комплекс ЖК «Крылья». Фасады А-Р и Р-А
© ИМАГО
Образовательный комплекс ЖК «Крылья». Функциональная поэтажная схема
© ИМАГО
Образовательный комплекс ЖК «Крылья». План 1 этажа
© ИМАГО
Образовательный комплекс ЖК «Крылья». План 2 этажа
© ИМАГО
Образовательный комплекс ЖК «Крылья». План 3 этажа
© ИМАГО
Образовательный комплекс ЖК «Крылья». План 4 этажа
© ИМАГО
Образовательный комплекс ЖК «Крылья». Разрез 1-1
© ИМАГО
Образовательный комплекс ЖК «Крылья». Разрез 2-2
© ИМАГО

Архитекторы – партнеры Архи.ру:

  • Илья Машков
  • Сергей Чобан
  • Ростислав Цайзер
  • Сергей Переслегин
  • Валерий Каняшин
  • Юлия Тряскина
  • Дмитрий Буш
  • Алексей Орлов
  • Василий Крапивин
  • Татьяна Зульхарнеева
  • Андрей Асадов
  • Юлиана Княжевская
  • Владислав Андреев
  • Александр Котенков
  • Андрей Гнездилов
  • Михаил Канунников
  • Игорь Членов
  • Владимир Плоткин
  • Станислав Белых
  • Зураб Басария
  • Дмитрий Остроумов
  • Вера Бутко
  • Антон Надточий
  • Степан Липгарт
  • Григориос Гавалидис
  • Ерлан Бекмухамедов
  • Григорий Мустафин
  • Александр Самарин
  • Виталий Лутц
  • Павел Андреев
  • Марина Егорова
  • Юлий Борисов
  • Анастасия Абашева
  • Сергей Скуратов
  • Евгений Зеленов
  • Константин Ходнев
  • Мария Ахременкова
  • Николай Кикава
  • Никита Явейн
  • Георгий Трофимов
  • Олег Шапиро
  • Николай Переслегин
  • Елена Пучкова
  • Андрей Михайлов
  • Антон Яр-Скрябин
  • Наталия Шилова
  • Иван Кожин
  • Сергей Кузнецов
  • Евгений Подгорнов
  • Борис Воскобойников
  • Евгений Новосадюк
  • Сергей Труханов
  • Михаил Давыдов
  • Дмитрий Ликин
  • Раис Баишев
  • Екатерина Кузнецова
  • Наталья Сидорова
  • Игорь Шварцман
  • Полина Воеводина
  • Александр Скокан
  • Сергей Никешкин
  • Всеволод Медведев
  • Александр Асадов
  • Даниил Лоренц
  • Андрей Романов
  • Дмитрий Сухов
  • Александра Кузьмина
  • Юлия Солдатенкова
  • Олег Мединский
  • Энди Сноу
  • Тимур Абдуллаев
  • Екатерина Абдуллаева
  • Маргарита Авдышева
  • Левон Айрапетов
  • Александр Аношкин
  • Алексей Афоничкин
  • Владислав Бек-Булатов
  • Антон Белов
  • Татьяна Бузулукова
  • Петр Васильев
  • Данило Вукосавлевич
  • Алина Георгиевская
  • Павел Гордеев
  • Илья Гринберг
  • Никита Демидов
  • Никита Дергунов
  • Наталья Жилкина
  • Алексей Зародов
  • Екатерина Зырина
  • Алексей Ильин
  • Дарья Ильина
  • Олег Карлсон
  • Алексей Кибкало
  • Денис Кувшинников
  • Анна Куликова
  • Алексей Курков
  • Данил Куров
  • Мария Кутай
  • Евгений Кутай
  • Иван Кычкин
  • Антон Ладыгин
  • Дмитрий Лапин
  • Борис Левянт
  • Илья Левянт
  • Катерина Левянт
  • Валерий Лукомский
  • Антон Лукомский
  • Екатерина Ляпунова
  • Иса Магомедов
  • Сергей Марков
  • Елена Мерцалова
  • Николай Миловидов
  • Станислав Михаловский
  • Сергей Мичурин
  • Олеся Могилевская
  • Филипп Никандров
  • Мария Николаева
  • Дмитрий Овчаров
  • Сергей Пергаев
  • Виктор Перов
  • Алексей Полищук
  • Роман Пономарёв
  • Валерия Преображенская
  • Виктория Раубо
  • Василий Рыбаков
  • Николай Рыбаков
  • Мария Салех
  • Александр Стариков
  • Илья Уткин
  • Елисей Чакан
  • Бориша Чорович
  • Олег Шурыгин
  • Дмитрий Шурыгин

Проект из каталога (случайный выбор)

Постройки и проекты (новые записи):

  • Деловое пространство «ПЛЭЙН»
  • Конкурсный проект ФИЦ / ТПО «Резерв»
  • Porta
  • Детский сад на 200 мест в Жилино-1
  • Архитектурная концепция кластера Ломоносов-2
  • Клубный дом в 1-м Казачьем переулке
  • Частный дом в Ленинградской области
  • IT-кластер TravelLine в Йошкар-Оле
  • Гостиничный комплекс Cosmos Selection Derbent 5

Новости российской архитектуры:

КиноГолограмма
12.05.2026

КиноГолограмма

Николай Переслегин, Сергей Переслегин, Георгий Трофимов
Форма как метод: ТПО «Резерв»
12.05.2026

Форма как метод: ТПО «Резерв»

Владимир Плоткин
Консервация как комментарий
12.05.2026

Консервация как комментарий

Наринэ Тютчева