Дом прощания
© DIALECT Architects
Дом прощания
информация:
-
статус
проект -
даты
— 2024 -
место
Свердловская обл. Белоярский городской округ -
координаты
56.638231, 61.227230 -
функция
Мемориальный / Дом прощания
Дом прощания и ресторан с административным блоком -
теги
send.project -
площадь участка
2 га -
общая площадь
3 500 м2 -
этажность
1-2

Денис Шурыгин
РоссияDIALECT Architects
Россияавторский коллектив
Денис Шурыгин, Андрей Коротаев, Анна Шурыгина
Дом прощания
© DIALECT Architects
Архи.ру об этом объекте:
26.12.2024
Дом прощания
Бюро DIALECT Architects спроектировало для кладбища недалеко от Екатеринбурга комплекс построек, который помогает провести ритуал прощания. Авторы стремились найти подходящий функции тон, для чего обратились к образу неугасающего пламени, использовали светлые материалы, а также силу воздействия ландшафта и зеркала воды.
Описание предоставлено архитекторами Участок проектирования находится в Свердловской области, в Белоярском городском округе, в 40 километрах от Екатеринбурга, рядом с Большебруснянским кладбищем. Половина участка попадает под ограничение от придорож... читать дальшеДом прощания
© DIALECT Architects
описание:
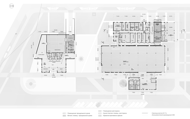
1. Участок проектирования находится в Свердловской
области, в Белоярском городском округе, в 40 км. от г. Екатеринбурга, рядом с Большебруснянским кладбищем. Половина участка попадает под ограничение от придорожной полосы автомобильной дороги общего пользования Федерального значения Р-354. Таким образом в северной части участка появляется парковка, в южной части участка проектируемые здания. Задача заключалась в проектировании двух зданий: Дом прощания, ресторан с кухней и административным блоком. Изначально был поиск баланса тэпов, необходимой формы и компоновки зданий на участке.
2. Анализируя существующие дома прощания в стране, и понимая специфику темы, с первых эскизов было понятно что окружающий ландшафт должен дополнять и поддерживать формируемую среду. Мы предусмотрели по всей территории небольшой парк, с искусственными водоемами, вода, отражая в себе небо и здания делает их невесомыми и символизирует переход из одного мира в другой.
3. Главное здание – скульптура.
Внешняя оболочка слегка приоткрыта, и напоминает образ пламени свечи – это метафора, пламя свечи теперь горит непрерывно, символизируя вечность жизни...
Тёплый терракотовый оттенок фасада с тактильным материалом камня, создает атмосферу спокойствия и уважения к памяти усопших.
Внутри здания потоки людей разделены, чтобы избежать пересечения различных процессий. В вестибюле есть спокойные места с закрытым внешним фронтом для адаптации родственников, и с открытым – витражом который перетекает в окружающий ландшафт.
4. Здание ресторана и административный блок состоят из трех белых лаконичных объемов со сдвижкой относительно друг друга, образуя многоплановую композицию.
Комплекс формирует гуманную, тихую среду.
области, в Белоярском городском округе, в 40 км. от г. Екатеринбурга, рядом с Большебруснянским кладбищем. Половина участка попадает под ограничение от придорожной полосы автомобильной дороги общего пользования Федерального значения Р-354. Таким образом в северной части участка появляется парковка, в южной части участка проектируемые здания. Задача заключалась в проектировании двух зданий: Дом прощания, ресторан с кухней и административным блоком. Изначально был поиск баланса тэпов, необходимой формы и компоновки зданий на участке.
2. Анализируя существующие дома прощания в стране, и понимая специфику темы, с первых эскизов было понятно что окружающий ландшафт должен дополнять и поддерживать формируемую среду. Мы предусмотрели по всей территории небольшой парк, с искусственными водоемами, вода, отражая в себе небо и здания делает их невесомыми и символизирует переход из одного мира в другой.
3. Главное здание – скульптура.
Внешняя оболочка слегка приоткрыта, и напоминает образ пламени свечи – это метафора, пламя свечи теперь горит непрерывно, символизируя вечность жизни...
Тёплый терракотовый оттенок фасада с тактильным материалом камня, создает атмосферу спокойствия и уважения к памяти усопших.
Внутри здания потоки людей разделены, чтобы избежать пересечения различных процессий. В вестибюле есть спокойные места с закрытым внешним фронтом для адаптации родственников, и с открытым – витражом который перетекает в окружающий ландшафт.
4. Здание ресторана и административный блок состоят из трех белых лаконичных объемов со сдвижкой относительно друг друга, образуя многоплановую композицию.
Комплекс формирует гуманную, тихую среду.
Дом прощания
© DIALECT Architects
Дом прощания
© DIALECT Architects
Дом прощания
© DIALECT Architects
Дом прощания
© DIALECT Architects
Дом прощания
© DIALECT Architects
Дом прощания
© DIALECT Architects
Дом прощания
© DIALECT Architects
Дом прощания
© DIALECT Architects
Дом прощания
© DIALECT Architects
Дом прощания
© DIALECT Architects
Дом прощания
© DIALECT Architects
Дом прощания
© DIALECT Architects
Дом прощания
© DIALECT Architects
Дом прощания
© DIALECT Architects
Дом прощания
© DIALECT Architects
Дом прощания
© DIALECT Architects
Дом прощания
© DIALECT Architects
Дом прощания
© DIALECT Architects
Дом прощания
© DIALECT Architects
Архитекторы – партнеры Архи.ру:
Проект из каталога (случайный выбор)
Постройки и проекты (новые записи):
Новости российской архитектуры:
21.10.2025
Кто в Сити, кто в горы?
Сергей Скуратов21.10.2025
На династической тропе
Сергей Никешкин20.10.2025
Крылья Маяковского
Алексей Гуров20.10.2025