Загородный отель Джемете. От старого к новому
Фотография © Кирилл Cавостиков /предоставлена zta
Загородный отель Джемете. От старого к новому
информация:
-
статус
реализовано -
даты
2021 — 2024 / 12.2023 — 07.2024 -
место
Анапа Пионерский, 103 -
координаты
44.948053, 37.301243 -
функция
Туризм/здравоохранение / Отель -
теги
send.project -
площадь участка
4,6 га -
площадь подземная
393,1 м2 -
общая площадь
430.7 м2 -
высота
6,9 -
этажность
2 -
строительный объем
3833,2 м3

Заурбек Тотров
Россия
Марк Журавлев
РоссияZTA
Россияавторский коллектив
ГАП: Марк Журавлев
ГИП: Галина Семенова
партнеры, заказчики, смежники
Загородный отель Джемете. От старого к новому
Фотография © Кирилл Cавостиков /предоставлена zta
Архи.ру об этом объекте:
Белая гряда
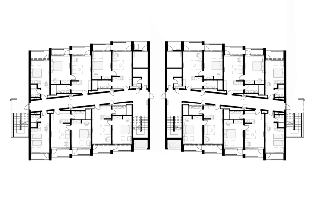
Для первого этапа реконцепции территории советского пансионата в Анапе бюро ZTA предложило типовой корпус, ритм и пластика которого навеяна рисунками, оставленными ветром на песке. Небольшое смещение ячеек номеров обеспечивает приватность и хороший обзор.
Описание предоставлено архитекторами Заказчик обратился с задачей реконцепции гостиничного комплекса площадью 4,5 га, на территории которого располагались здания советского периода. На первом этапе был запроектирован типовой корпус. Авторы предло... читать дальшеЗагородный отель Джемете. От старого к новому
Фотография © Кирилл Cавостиков /предоставлена zta
история проекта:
В 2021г. нами было выполнено реконцепция всей территории комплекса курортного отеля «Джемете» площадью 4,6 Га. Основная цель проекта состояла в переосмыслении и создание современного комфортного круглогодичного гостиничного комплекса с различным функциональным наполнением на территории с существующими зданиями советской эпохи. Часть зданий было принято решение сохранить и далее реконструировать, остальные же демонтировать. В части первой очереди реализации концепции и были выполнены 2 новых гостиничных корпуса в 2023-2024 гг.
описание:
Первый этап строительства заключался в проектировании типового корпуса, который должен был быть одновременно экономичным в строительстве и оригинальным в архитектурном решении. Мы предложили концепцию двух идентичных, но зеркально отражённых двухэтажных корпусов, которые органично вписываются в ландшафт. Вдохновением для данной идеи послужил уникальный рисунок песка, оставленный ветром на барханах – символ плавных и природных форм. Корпуса были спроектированы с небольшой асимметрией, что добавляет объемам динамичности и легкости. Пластичность композиции подчёркнута смещением блоков номеров относительно друг друга, создавая атмосферу уединения и приватности для каждого гостя. Особенностью конструкции является арка на два этажа, которая придаёт корпусам чёткость и структурированность, а диагональные коридоры позволяют разместить номера с двух сторон, улучшая их освещенность и обеспечивая свободный доступ к каждому помещению.
Этот проект стал не только шагом вперёд в обновлении комплекса, но и примером гармоничного сочетания функциональности и эстетики, вдохновлённого природными формами и современными архитектурными трендами.