RSS
Дом Scout 130. Главный фасад
Фотография © ScoutHouse

Дом Scout 130

информация:

  • статус
    реализовано
  • даты
    11.2023 — 01.2024 / 02.2024
  • region= area= address=коттеджный поселок "Грин Лаундж", домостроение 64 country_t=Россия city_t=Якунино
    место
    Якунино коттеджный поселок "Грин Лаундж", домостроение 64
  • координаты
    56.060655, 36.754323
  • функция
    Жилой / индивидуальный жилой дом
    Выставочный дом
  • теги
    send.project
  • общая площадь
    130 м2
  • площадь жилая
    91 м2
Нияз Гараев
Россия

авторский коллектив

ГАП: Нияз Гараев
ГИП: Иван Самойленко
Главный технолог производства: Максим Попов
Дизайнер, декоратор: Мадина Булатова

Соовторы – отдел проектирования ScoutHouse.
Главный конструктор: Иван Самойленко
Конструктор: Полина Гайфетдинова
Главный технолог: Максим Попов
Технолог: Александр Песков
Дизайнер, декоратор: Мадина Булатова
 

партнеры, заказчики, смежники

Заказчик: ScoutHouse
Дом Scout 130. Общий вид на участок
Фотография © ScoutHouse
Дом Scout 130. Вход со стороны кухни
Фотография © ScoutHouse

история проекта:

ScoutHouse – компания, которая производит модульные дома. Мы решили участвовать на выставке OpenVillage. Это такая ежегодная олимпиада на рынке ИЖС. Все соревнуются кто круче. Ну и мы захотели)

Многие до сих пор думают, что модульный дом это набор бытовок, мелкая дачная постройка или типа того. Поэтому нам важно было задрать планку и показать что хороший модульный дом не отличить от того, что построен на участке. При этом он сохранит тебе кучу нервов и на выходе ты получишь ровно то, на что рассчитывал. 

описание:

Модульный дом Scout. Создан для тех, кто мог бы построить любой дом, но выбрал жизнь, а не стройку. Предприниматели, руководители, IT-специалисты – все те, кто каждый день отдается работе. И меньше всего хотел бы провести на стройке редкие выходные и праздники. Семья, друзья, хобби, а не ругань со строителями, выбор сантехники и «подвезите саморезы».

Выбрал, оплатил, через 150 дней принял дом. Все. Сантехнику, электрику, воду, канализацию – все сделали за тебя. Линейка модульных домов Scout разработана одной из самых опытных команд модульного домостроения России.

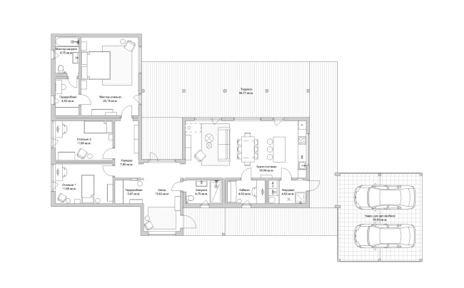
Дубовая паркетная доска, деревянные окна и двери, утепление безопасным закрытоячеистым пенополиуретаном (Г2), защита от протечек, потолки 2.7 метра, 2 гардеробные, мастер-спальня с санузлом, кабинет, кладовая при кухне, парадный вход.
Кстати, еще есть отдельный вход для питомцев с трапом для мытья лап, 100-метровая терраса и навес для 2х автомобилей. А еще гарантия, сервисная служба и опыт более чем 500 произведенных домов.
Дом Scout 130. Вид на мастер-спальню
Фотография © ScoutHouse
Дом Scout 130. Вид с веранды гостевого домика
Фотография © ScoutHouse
Дом Scout 130. Навес для автомобилей
Фотография © ScoutHouse
Дом Scout 130. Детская
Фотография © ScoutHouse
Дом Scout 130. Веранда
Фотография © ScoutHouse
Дом Scout 130. Ванна при мастер-спальне
Фотография © ScoutHouse
Дом Scout 130. Печь-камин в гостиной
Фотография © ScoutHouse
Дом Scout 130. Прихожая
Фотография © ScoutHouse
Дом Scout 130. Мастер-спальня
Фотография © ScoutHouse
Дом Scout 130. Кухня-гостиная
Фотография © ScoutHouse
Дом Scout 130. Детская
Фотография © ScoutHouse
Дом Scout 130. Комната интроверта
Фотография © ScoutHouse
Дом Scout 130
© ScoutHouse
Дом Scout 130
© ScoutHouse
Дом Scout 130
© ScoutHouse

Архитекторы – партнеры Архи.ру:

  • Александр Котенков
  • Даниил Лоренц
  • Игорь Шварцман
  • Антон Яр-Скрябин
  • Антон Надточий
  • Дмитрий Сухов
  • Александр Асадов
  • Наталья Сидорова
  • Николай Переслегин
  • Дмитрий Ликин
  • Наталия Шилова
  • Дмитрий Буш
  • Сергей Переслегин
  • Сергей Чобан
  • Олег Мединский
  • Марина Егорова
  • Иван Кожин
  • Владислав Андреев
  • Сергей Кузнецов
  • Михаил Канунников
  • Георгий Трофимов
  • Всеволод Медведев
  • Юлия Тряскина
  • Андрей Гнездилов
  • Григориос Гавалидис
  • Станислав Белых
  • Андрей Романов
  • Сергей Скуратов
  • Раис Баишев
  • Григорий Мустафин
  • Виталий Лутц
  • Ростислав Цайзер
  • Валерий Каняшин
  • Павел Андреев
  • Олег Шапиро
  • Екатерина Кузнецова
  • Александр Скокан
  • Елена Пучкова
  • Илья Машков
  • Полина Воеводина
  • Евгений Зеленов
  • Михаил Давыдов
  • Дмитрий Остроумов
  • Николай Кикава
  • Анастасия Абашева
  • Константин Ходнев
  • Алексей Гинзбург
  • Энди Сноу
  • Александр Самарин
  • Андрей Асадов
  • Степан Липгарт
  • Александра Кузьмина
  • Никита Явейн
  • Ерлан Бекмухамедов
  • Андрей Михайлов
  • Евгений Подгорнов
  • Зураб Басария
  • Владимир Плоткин
  • Игорь Членов
  • Юлиана Княжевская
  • Юлия Солдатенкова
  • Евгений Новосадюк
  • Юлий Борисов
  • Вера Бутко
  • Сергей Труханов
  • Василий Крапивин
  • Алексей Орлов
  • Татьяна Зульхарнеева
  • Сергей Никешкин
  • Тимур Абдуллаев
  • Екатерина Абдуллаева
  • Маргарита Авдышева
  • Левон Айрапетов
  • Александр Аношкин
  • Алексей Афоничкин
  • Владислав Бек-Булатов
  • Антон Белов
  • Татьяна Бузулукова
  • Петр Васильев
  • Данило Вукосавлевич
  • Алина Георгиевская
  • Павел Гордеев
  • Илья Гринберг
  • Никита Демидов
  • Никита Дергунов
  • Наталья Жилкина
  • Алексей Зародов
  • Екатерина Зырина
  • Алексей Ильин
  • Дарья Ильина
  • Олег Карлсон
  • Алексей Кибкало
  • Денис Кувшинников
  • Анна Куликова
  • Алексей Курков
  • Данил Куров
  • Мария Кутай
  • Евгений Кутай
  • Иван Кычкин
  • Антон Ладыгин
  • Дмитрий Лапин
  • Борис Левянт
  • Илья Левянт
  • Катерина Левянт
  • Валерий Лукомский
  • Антон Лукомский
  • Екатерина Ляпунова
  • Сергей Марков
  • Елена Мерцалова
  • Николай Миловидов
  • Станислав Михаловский
  • Олеся Могилевская
  • Мария Николаева
  • Дмитрий Овчаров
  • Виктор Перов
  • Алексей Полищук
  • Роман Пономарёв
  • Валерия Преображенская
  • Виктория Раубо
  • Василий Рыбаков
  • Николай Рыбаков
  • Мария Салех
  • Александр Стариков
  • Илья Уткин
  • Елисей Чакан
  • Олег Шурыгин
  • Дмитрий Шурыгин

Проект из каталога (случайный выбор)

Посольство Республики Йемен
Александр Асадов, Андрей Асадов, 2000
Посольство Республики Йемен

Постройки и проекты (новые записи):

  • Навесы Ленинградского вокзала
  • Общежития Новосибирского государственного университета (НГУ)
  • Детский сад в квартале «СЕТ»
  • Клубный дом на Садовнической, 10
  • Торговый центр в ЖК «Одинбург»
  • Многофункциональный комплекс «Тушино»
  • Omni Tower
  • ОМ Ботанический
  • ЖК Амарант

Новости российской архитектуры:

Сезонные настроения
04.04.2026

Сезонные настроения

Кристина Лазарева, Надежда Голубева