RSS
Дом на Большом Сампсониевском проспекте. Вариант 2, 2025 г.
© А2, Архитектурная мастерская А.А. Столярчука

Дом на Большом Сампсониевском проспекте

информация:

  • статус
    проект
  • даты
    — 11.2024
  • region= area= address=Большой Сампсониевский проспект, дом 30, корп. 2, литер А country_t=Россия city_t=Санкт-Петербург
    место
    Санкт-Петербург Большой Сампсониевский проспект, дом 30, корп. 2, литер А
  • координаты
    59.966143, 30.339778
  • функция
    Жилой / жилой комплекс
  • площадь участка
    0,5258 га
  • площадь застройки
    1 805 м2
  • общая площадь
    10 516,96 м2
  • площадь жилая
    10 456,6 м2
  • высота
    33
  • этажность
    11
  • кол-во машиномест
    105
Россия
​Anatoly Stolyarchuk Architectural Studio / Россия

авторский коллектив

Проектировщик: А2
при участии: архитектурная мастерская Столярчука

партнеры, заказчики, смежники

Заказчик: СЗ Проект
Дом на Большом Сампсониевском проспекте. Вариант 2, 2025 г.
© А2, Архитектурная мастерская А.А. Столярчука

Архи.ру об этом объекте:

17.04.2025

Алёна Кузнецова. Вторая итерация

Градсовет Петербурга повторно рассмотрел проект дома, который повлияет на панорамы Большой Невки. Бюро «А2» прислушлось к рекомендациям и поработало с ритмом, торцами и верхним террасированным уровнем. Эксперты поддержали улучшения и признали проект удачным.

Дом на Большом Сампсониевском проспекте Градостроительный совет рассматривал в конце прошлого года, в обзоре мы довольно подробно описали особенности расположения здания и его влияние на окружение не значительное, но весомое. Тогда большая часть эк...   читать дальше

другие тексты Архи.ру:

Дом на Большом Сампсониевском проспекте. Вариант 2, 2025 г.
© А2, Архитектурная мастерская А.А. Столярчука
Дом на Большом Сампсониевском проспекте. Вариант 2, 2025 г.
© А2, Архитектурная мастерская А.А. Столярчука
Дом на Большом Сампсониевском проспекте. Вариант 2, 2025 г.
© А2, Архитектурная мастерская А.А. Столярчука
Дом на Большом Сампсониевском проспекте. Вариант 2, 2025 г.
© А2, Архитектурная мастерская А.А. Столярчука
Дом на Большом Сампсониевском проспекте. Вариант 2, 2025 г.
© А2, Архитектурная мастерская А.А. Столярчука
Дом на Большом Сампсониевском проспекте. Вариант 2, 2025 г. Панорама с Гренадерского моста
© А2, Архитектурная мастерская А.А. Столярчука
Дом на Большом Сампсониевском проспекте. Вариант 2, 2025 г. Вид с Выборгской набережной
© А2, Архитектурная мастерская А.А. Столярчука
Дом на Большом Сампсониевском проспекте. Вариант 2, 2025 г.
© А2, Архитектурная мастерская А.А. Столярчука
Дом на Большом Сампсониевском проспекте. Вариант 2, 2025 г.
© А2, Архитектурная мастерская А.А. Столярчука
Дом на Большом Сампсониевском проспекте
© А2, Архитектурная мастерская А.А. Столярчука
Дом на Большом Сампсониевском проспекте
© А2, Архитектурная мастерская А.А. Столярчука
Дом на Большом Сампсониевском проспекте
© А2, Архитектурная мастерская А.А. Столярчука
Дом на Большом Сампсониевском проспекте
© А2, Архитектурная мастерская А.А. Столярчука
Дом на Большом Сампсониевском проспекте
© А2, Архитектурная мастерская А.А. Столярчука
Дом на Большом Сампсониевском проспекте
© А2, Архитектурная мастерская А.А. Столярчука
Дом на Большом Сампсониевском проспекте. Панорама с Петроградской набережной
© А2, Архитектурная мастерская А.А. Столярчука
Дом на Большом Сампсониевском проспекте
© А2, Архитектурная мастерская А.А. Столярчука
Дом на Большом Сампсониевском проспекте
© А2, Архитектурная мастерская А.А. Столярчука
Дом на Большом Сампсониевском проспекте
© А2, Архитектурная мастерская А.А. Столярчука
Дом на Большом Сампсониевском проспекте
© А2, Архитектурная мастерская А.А. Столярчука
Дом на Большом Сампсониевском проспекте. Ситуационный план
© А2, Архитектурная мастерская А.А. Столярчука
Дом на Большом Сампсониевском проспекте. Современная окружающая архитектурв
© А2, Архитектурная мастерская А.А. Столярчука
Дом на Большом Сампсониевском проспекте. Развертка фасадов
© А2, Архитектурная мастерская А.А. Столярчука
Дом на Большом Сампсониевском проспекте. Вариант 2, 2025 г. Развертка по Большому Сампсониевскому проспекту
© А2, Архитектурная мастерская А.А. Столярчука
Дом на Большом Сампсониевском проспекте. Развертка фасадов
© А2, Архитектурная мастерская А.А. Столярчука
Дом на Большом Сампсониевском проспекте. Вариант 2, 2025 г. Развертка по улице Фокина
© А2, Архитектурная мастерская А.А. Столярчука
Дом на Большом Сампсониевском проспекте. Фасад в осях 8-1
© А2, Архитектурная мастерская А.А. Столярчука
Дом на Большом Сампсониевском проспекте. Вариант 2, 2025 г. Фасад в осях 8-1
© А2, Архитектурная мастерская А.А. Столярчука
Дом на Большом Сампсониевском проспекте. Фасад в осях 8-1
© А2, Архитектурная мастерская А.А. Столярчука
Дом на Большом Сампсониевском проспекте. Вариант 2, 2025 г. Фасад в осях 8-1
© А2, Архитектурная мастерская А.А. Столярчука
Дом на Большом Сампсониевском проспекте. Фасад в осях Д-А, А-Д
© А2, Архитектурная мастерская А.А. Столярчука
Дом на Большом Сампсониевском проспекте. Вариант 2, 2025 г. Фасад в осях Д-А, А-Д
© А2, Архитектурная мастерская А.А. Столярчука
Дом на Большом Сампсониевском проспекте. План подвального этажа
© А2, Архитектурная мастерская А.А. Столярчука
Дом на Большом Сампсониевском проспекте. Вариант 2, 2025 г.. План подвального этажа
© А2, Архитектурная мастерская А.А. Столярчука
Дом на Большом Сампсониевском проспекте. План 1 этажа
© А2, Архитектурная мастерская А.А. Столярчука
Дом на Большом Сампсониевском проспекте. Вариант 2, 2025 г. План 1 этажа
© А2, Архитектурная мастерская А.А. Столярчука
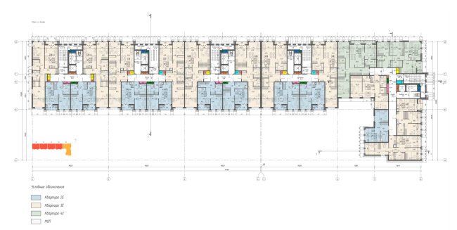
Дом на Большом Сампсониевском проспекте. План 2 этажа
© А2, Архитектурная мастерская А.А. Столярчука
Дом на Большом Сампсониевском проспекте. Вариант 2, 2025 г. План 2 этажа
© А2, Архитектурная мастерская А.А. Столярчука
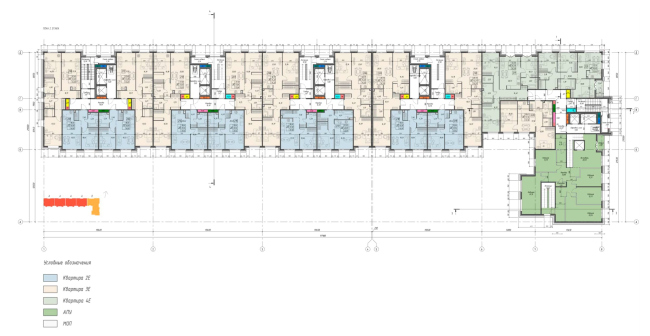
Дом на Большом Сампсониевском проспекте. План 3 этажа
© А2, Архитектурная мастерская А.А. Столярчука
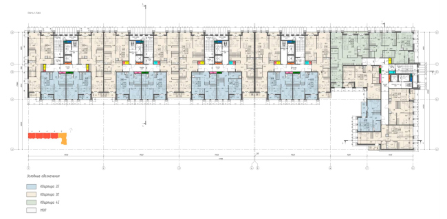
Дом на Большом Сампсониевском проспекте. План 4-5 этажа
© А2, Архитектурная мастерская А.А. Столярчука
Дом на Большом Сампсониевском проспекте. План 6-9 этажа
© А2, Архитектурная мастерская А.А. Столярчука
Дом на Большом Сампсониевском проспекте. Вариант 2, 2025 г. План типового этажа
© А2, Архитектурная мастерская А.А. Столярчука
Дом на Большом Сампсониевском проспекте. План 10 этажа
© А2, Архитектурная мастерская А.А. Столярчука
Дом на Большом Сампсониевском проспекте. Вариант 2, 2025 г. План 10 этажа
© А2, Архитектурная мастерская А.А. Столярчука
Дом на Большом Сампсониевском проспекте
© А2, Архитектурная мастерская А.А. Столярчука
Дом на Большом Сампсониевском проспекте
© А2, Архитектурная мастерская А.А. Столярчука
Дом на Большом Сампсониевском проспекте. Вариант 2, 2025 г.
© А2, Архитектурная мастерская А.А. Столярчука
Дом на Большом Сампсониевском проспекте. Вариант 2, 2025 г.
© А2, Архитектурная мастерская А.А. Столярчука

Архитекторы – партнеры Архи.ру:

  • Раис Баишев
  • Николай Переслегин
  • Михаил Давыдов
  • Анастасия Абашева
  • Дмитрий Сухов
  • Илья Машков
  • Марина Егорова
  • Валерий Каняшин
  • Наталия Шилова
  • Олег Мединский
  • Александра Кузьмина
  • Сергей Никешкин
  • Даниил Лоренц
  • Александр Котенков
  • Николай Кикава
  • Зураб Басария
  • Никита Явейн
  • Дмитрий Буш
  • Антон Надточий
  • Олег Шапиро
  • Евгений Подгорнов
  • Михаил Канунников
  • Юлия Солдатенкова
  • Юлиана Княжевская
  • Сергей Труханов
  • Александр Асадов
  • Александр Самарин
  • Григориос Гавалидис
  • Игорь Членов
  • Борис Воскобойников
  • Андрей Михайлов
  • Андрей Асадов
  • Владимир Плоткин
  • Татьяна Зульхарнеева
  • Сергей Переслегин
  • Андрей Романов
  • Василий Крапивин
  • Мария Ахременкова
  • Игорь Шварцман
  • Юлия Тряскина
  • Энди Сноу
  • Евгений Новосадюк
  • Ерлан Бекмухамедов
  • Ростислав Цайзер
  • Евгений Зеленов
  • Павел Андреев
  • Алексей Орлов
  • Дмитрий Ликин
  • Сергей Скуратов
  • Владислав Андреев
  • Константин Ходнев
  • Степан Липгарт
  • Полина Воеводина
  • Дмитрий Остроумов
  • Сергей Кузнецов
  • Андрей Гнездилов
  • Георгий Трофимов
  • Сергей Чобан
  • Всеволод Медведев
  • Григорий Мустафин
  • Юлий Борисов
  • Вера Бутко
  • Антон Яр-Скрябин
  • Екатерина Кузнецова
  • Наталья Сидорова
  • Виталий Лутц
  • Александр Скокан
  • Станислав Белых
  • Иван Кожин
  • Елена Пучкова
  • Тимур Абдуллаев
  • Екатерина Абдуллаева
  • Маргарита Авдышева
  • Левон Айрапетов
  • Александр Аношкин
  • Алексей Афоничкин
  • Владислав Бек-Булатов
  • Антон Белов
  • Татьяна Бузулукова
  • Петр Васильев
  • Данило Вукосавлевич
  • Андрей Вырва
  • Алина Георгиевская
  • Павел Гордеев
  • Илья Гринберг
  • Никита Демидов
  • Никита Дергунов
  • Наталья Жилкина
  • Алексей Зародов
  • Екатерина Зырина
  • Алексей Ильин
  • Дарья Ильина
  • Олег Карлсон
  • Алексей Кибкало
  • Денис Кувшинников
  • Анна Куликова
  • Алексей Курков
  • Данил Куров
  • Мария Кутай
  • Евгений Кутай
  • Иван Кычкин
  • Антон Ладыгин
  • Дмитрий Лапин
  • Илья Левянт
  • Катерина Левянт
  • Борис Левянт
  • Валерий Лукомский
  • Антон Лукомский
  • Екатерина Ляпунова
  • Иса Магомедов
  • Сергей Марков
  • Елена Мерцалова
  • Николай Миловидов
  • Станислав Михаловский
  • Сергей Мичурин
  • Олеся Могилевская
  • Филипп Никандров
  • Мария Николаева
  • Дмитрий Овчаров
  • Сергей Пергаев
  • Виктор Перов
  • Алексей Полищук
  • Роман Пономарёв
  • Валерия Преображенская
  • Виктория Раубо
  • Василий Рыбаков
  • Николай Рыбаков
  • Мария Салех
  • Александр Стариков
  • Илья Уткин
  • Елисей Чакан
  • Евгения Чернышева
  • Бориша Чорович
  • Олег Шурыгин
  • Дмитрий Шурыгин

Проект из каталога (случайный выбор)

Поселок «Графские пруды»
Алексей Иванов,
Поселок «Графские пруды»

Постройки и проекты (новые записи):

  • Павильон  Идеал
  • Флагманская кофейня Дринкит
  • Гостиница в Чите
  • ЖК Квартал 64
  • Деловое пространство «ПЛЭЙН»
  • Конкурсный проект ФИЦ / ТПО «Резерв»
  • Porta
  • Детский сад на 200 мест в Жилино-1
  • Архитектурная концепция кластера Ломоносов-2

Новости российской архитектуры:

Деловой круг
26.05.2026

Деловой круг

Олафур Элиассон
Красная карточка за авторское право
25.05.2026

Красная карточка за авторское право

Алексей Орлов, Дмитрий Буш, Ерлан Бекмухамедов
Новая коллекция МАФов
25.05.2026

Новая коллекция МАФов

Сергей Пергаев
Хвост кометы
22.05.2026

Хвост кометы

Андрей Волынцев, Анна Волынцева