RSS
Банный комплекс «Архыз». Входной холл
© AGE architects

Банный комплекс «Архыз»

информация:

  • статус
    проект
  • даты
    12.2023 — 08.2024
  • region= area= address=Посёлок Романтик country_t=Россия city_t=Архыз
    место
    Архыз Посёлок Романтик
  • координаты
    43.542078, 41.184486
  • функция
    Туризм/здравоохранение / Бани
  • теги
    send.project
  • общая площадь
    858 м2
  • высота
    3.2
Россия

авторский коллектив

Руководитель авторского коллектива: Саид-Магомед Альмурзаев
Денис Лычко
Дизайнер интерьеров: Евгения Молчанова

Разработка разделов рабочей документации АР, ВК, ОВ, ЭОМ: Карбонит

партнеры, заказчики, смежники

Заказчик: «Архыз»
Банный комплекс «Архыз». Входной холл
© AGE architects
Банный комплекс «Архыз». Входной холл
© AGE architects

описание:

Как спроектировать просторный банный комплекс в условиях значительных конструктивных и инженерных ограничений? Как гармонично сочетать дикую природу с эстетикой премиального дизайна? Эти задачи легли в основу нашего дизайн-проекта банного комплекса «Архыз».

Концепция ограничения как источник вдохновения
Комплекс занимает крыло шестого этажа пятизвездочного отеля. Множество колонн и инженерных шахт, расположенных в неудачных местах и под непрямым углом к наружным стенам, значительно усложнили формирование эргономичной планировки. Мы использовали два принципа для решения этой проблемы: 1 маскирование: колонны и шахты скрыли в толще стен или расположили в технических помещениях; 2 акцентирование: превратили проблемные элементы в ключевые объекты, ставшие преимуществами, а не недостатками планировки. Так, например, вокруг вентиляционного короба во входном холле мы создали декоративную скалу. Она отделила входы в технические помещения и стала частью композиции, направляющей потоки гостей в сердце комплекса.

Функциональное наполнение
Комплекс состоит из пяти аутентичных банных сьютов с уникальным дизайном и атмосферой. Каждый сьют – это приватная зона для банных процедур с пар мастером, включающая комнату отдыха, раздевалки, помывочную с бассейном и купелями, парную, а также сенной лаундж и массажный кабинет. Для качественного сервиса предусмотрены все необходимые помещения для персонала и администрации. В зоне сьютов также имеется лифт для доставки блюд из ресторана на первом этаже отеля.
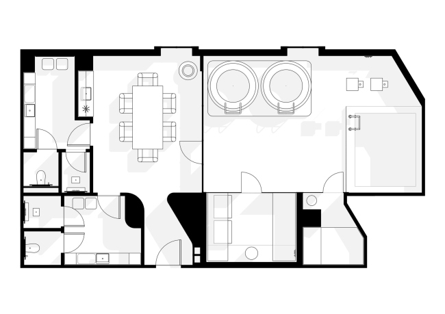
Банный комплекс «Архыз». Планировочное решение комплекса
© AGE architects
Банный комплекс «Архыз». Сьют 1
© AGE architects
Банный комплекс «Архыз». Сьют 1
© AGE architects
Банный комплекс «Архыз». Сьют 1
© AGE architects
Банный комплекс «Архыз». Сьют 1
© AGE architects
Банный комплекс «Архыз». Сьют 1
© AGE architects
Банный комплекс «Архыз». Сьют 1
© AGE architects
Банный комплекс «Архыз». Сьют 1
© AGE architects
Банный комплекс «Архыз». Сьют 2
© AGE architects
Банный комплекс «Архыз». Сьют 2
© AGE architects
Банный комплекс «Архыз». Сьют 2
© AGE architects
Банный комплекс «Архыз». Сьют 2
© AGE architects
Банный комплекс «Архыз». Сьют 2
© AGE architects
Банный комплекс «Архыз». Сьют 2
© AGE architects
Банный комплекс «Архыз». Сьют 2
© AGE architects
Банный комплекс «Архыз». Сьют 2
© AGE architects
Банный комплекс «Архыз». Сьют 2
© AGE architects
Банный комплекс «Архыз». Сьют 3
© AGE architects
Банный комплекс «Архыз». Сьют 3
© AGE architects
Банный комплекс «Архыз». Сьют 3
© AGE architects
Банный комплекс «Архыз». Сьют 3
© AGE architects
Банный комплекс «Архыз». Сьют 4
© AGE architects
Банный комплекс «Архыз». Сьют 4
© AGE architects
Банный комплекс «Архыз». Сьют 4
© AGE architects
Банный комплекс «Архыз». Сьют 4
© AGE architects
Банный комплекс «Архыз». Сьют 5
© AGE architects
Банный комплекс «Архыз». Сьют 5
© AGE architects
Банный комплекс «Архыз». Сьют 5
© AGE architects
Банный комплекс «Архыз». Сьют 5
© AGE architects
Банный комплекс «Архыз». Сьют 5
© AGE architects
Банный комплекс «Архыз». Парная
© AGE architects
Банный комплекс «Архыз». Парная
© AGE architects
Банный комплекс «Архыз». Сенной лаундж
© AGE architects
Банный комплекс «Архыз». Массажный кабинет
© AGE architects
Банный комплекс «Архыз». Массажный кабинет
© AGE architects
Банный комплекс «Архыз». Массажный кабинет
© AGE architects
Банный комплекс «Архыз». Раздевалка
© AGE architects
Банный комплекс «Архыз». Раздевалка
© AGE architects
Банный комплекс «Архыз». Санузел
© AGE architects
Банный комплекс «Архыз». Душевая
© AGE architects

Архитекторы – партнеры Архи.ру:

  • Алексей Гинзбург
  • Александр Котенков
  • Андрей Михайлов
  • Александра Кузьмина
  • Всеволод Медведев
  • Ерлан Бекмухамедов
  • Владислав Андреев
  • Павел Андреев
  • Марина Егорова
  • Александр Асадов
  • Григорий Мустафин
  • Роман Леонидов
  • Сергей Труханов
  • Антон Яр-Скрябин
  • Энди Сноу
  • Анна Иванова
  • Екатерина Кузнецова
  • Сергей Кузнецов
  • Дмитрий Остроумов
  • Станислав Белых
  • Евгений Новосадюк
  • Юлий Борисов
  • Георгий Трофимов
  • Дмитрий Ликин
  • Вера Бутко
  • Ростислав Цайзер
  • Степан Липгарт
  • Олег Мединский
  • Андрей Гнездилов
  • Виталий Лутц
  • Зураб Басария
  • Антон Надточий
  • Иван Кожин
  • Олег Шапиро
  • Александр Самарин
  • Юлия Тряскина
  • Сергей Чобан
  • Юлиана Княжевская
  • Никита Явейн
  • Григориос Гавалидис
  • Константин Ходнев
  • Елена Пучкова
  • Николай Переслегин
  • Наталья Сидорова
  • Евгений Подгорнов
  • Даниил Лоренц
  • Дмитрий Буш
  • Раис Баишев
  • Татьяна Зульхарнеева
  • Николай Кикава
  • Полина Воеводина
  • Дмитрий Сухов
  • Илья Машков
  • Евгений Зеленов
  • Андрей Чуйков
  • Михаил Канунников
  • Алексей Орлов
  • Юлия Солдатенкова
  • Андрей Романов
  • Андрей Асадов
  • Василий Крапивин
  • Михаил Давыдов
  • Сергей Никешкин
  • Сергей Скуратов
  • Александр Скокан
  • Валерий Каняшин
  • Игорь Шварцман
  • Владимир Плоткин
  • Анастасия Абашева
  • Игорь Членов
  • Сергей Переслегин
  • Наталия Шилова
  • Тимур Абдуллаев
  • Екатерина Абдуллаева
  • Маргарита Авдышева
  • Левон Айрапетов
  • Александр Аношкин
  • Алексей Афоничкин
  • Владислав Бек-Булатов
  • Антон Белов
  • Татьяна Бузулукова
  • Петр Васильев
  • Алина Георгиевская
  • Павел Гордеев
  • Илья Гринберг
  • Никита Демидов
  • Никита Дергунов
  • Наталья Жилкина
  • Алексей Зародов
  • Екатерина Зырина
  • Алексей Ильин
  • Дарья Ильина
  • Олег Карлсон
  • Алексей Кибкало
  • Денис Кувшинников
  • Анна Куликова
  • Алексей Курков
  • Алексей Курков
  • Данил Куров
  • Евгений Кутай
  • Мария Кутай
  • Антон Ладыгин
  • Антон Ладыгин
  • Дмитрий Лапин
  • Борис Левянт
  • Катерина Левянт
  • Илья Левянт
  • Антон Лукомский
  • Валерий Лукомский
  • Екатерина Ляпунова
  • Сергей Марков
  • Николай Миловидов
  • Станислав Михаловский
  • Олеся Могилевская
  • Мария Николаева
  • Виктор Перов
  • Алексей Полищук
  • Роман Пономарёв
  • Валерия Преображенская
  • Виктория Раубо
  • Василий Рыбаков
  • Мария Салех
  • Александр Стариков
  • Илья Уткин
  • Дмитрий Шурыгин
  • Олег Шурыгин

Проект из каталога (случайный выбор)

VIP-зал ресторана Sky Lounge
Роман Леонидов, – 2012
VIP-зал ресторана Sky Lounge

Постройки и проекты (новые записи):

  • Проект общественно-делового комплекса у станции метро «Ботанический Сад» / Genpro
  • Проект общественно-делового комплекса у станции метро «Ботанический Сад» / UNK
  • Дворец бильярда в Мневниковской пойме
  • БЦ в Раменках
  • Бизнес-центр (на месте ТЦ «Старт»)
  • DELO HOUSE 3.2 с флигелем
  • Ледовый дворец Navka Arena
  • Благоустройство территории ЖК Holms Residence
  • Игровое пространство у театра им. Г.К. Камала

Новости российской архитектуры:

Потенциальные примечательности. Обзор проектов 16–22 февраля 2026
22.02.2026

Потенциальные примечательности. Обзор проектов 16–22 февраля 2026

Евгений Зеленов, Юлий Борисов, Амир Идиатулин, Николай Гордюшин, Александр Аношкин, Мария Салех, Никита Дергунов
Визуальная чистота
20.02.2026

Визуальная чистота

Александр Жидков, Михаил Гуманков
Кирпичная вуаль
20.02.2026

Кирпичная вуаль

Айк Навасардян, Рубен Аракелян
Иглы созерцания горизонта
19.02.2026

Иглы созерцания горизонта

Николай Переслегин, Георгий Трофимов, Сергей Переслегин