Детский сад в ЖК MOD. Входная группа
© NF studio
Детский сад в ЖК MOD
информация:
-
статус
проект -
даты
— 2024 -
место
Москва ул. 4-я Марьиной рощи, з.у 12 -
координаты
55.797590, 37.624509 -
функция
Образование и наука / Детский сад -
теги
send.project -
общая площадь
2 138,7 м2 -
другие объекты
2026Жилой комплекс MOD

Надежда Федотова
Россия
Наталия Каурова
РоссияNF studio
Россияавторский коллектив
Разработка технологии и интерьеров: Архитектурная студия NF
Н. Федотова, Н. Каурова, А. Петухова, А. Шулякова, Е. Щербакова, М. Каширская, Е. Петренко, О. Доронина, Е. Солдаткина, Н. Павлов, Н. Чарушин, Д. Гаспарян, А. Сороковых, Е. Ковалева
Н. Федотова, Н. Каурова, А. Петухова, А. Шулякова, Е. Щербакова, М. Каширская, Е. Петренко, О. Доронина, Е. Солдаткина, Н. Павлов, Н. Чарушин, Д. Гаспарян, А. Сороковых, Е. Ковалева
партнеры, заказчики, смежники
Архитектурная концепция: Kleinewelt Architekten
Заказчик: МР Групп
Заказчик: МР Групп
Детский сад в ЖК MOD. Многофункциональная групповая
© NF studio
Детский сад в ЖК MOD. Многофункциональный спротивный зал
© NF studio
описание:
Информация о проекте: заказчик MR Group, оператор Magic Castle Education (MCE)
Описание проекта: Детский сад располагается в шестом корпусе жилого комплекса МOD, на двух первых уровнях семиэтажного корпуса Jansson.
Главная идея концепции интерьеров данного объекта – создание просторных, светлых многофункциональных пространств, в которых одна функция гармонично перетекает в другую. Для создания уютной атмосферы внутри каждого из пространств мы разработали несколько сценариев освещения и использовали оттенки светлого дуба в отделке.
Первый этаж разнообразен по функции – здесь находятся главные общие пространства: входная зона, гардероб, медицинский блок, столовая с пищеблоком, амфитеатр, а также групповые. На втором этаже располагаются кружковые, групповые, кабинеты логопеда и психолога и многофункциональный спортивный зал.
Для нас было важно создать детский сад, наполненный светом и радостью, и мы отразили это в концепции интерьеров, тщательно подбирая материалы отделки, решения по освещению и мебель.
Еще одна задача, которую мы поставили перед собой – это эффективное использование каждого метра проекта, поэтому мы функционально насыщали по максимуму каждое пространство. При этом они не ощущаются перегруженными, давящящими за счет концепции отделки, где светлые минималистичные интерьеры выступают в роли фона для происходящих в школе процессов.
Описание проекта: Детский сад располагается в шестом корпусе жилого комплекса МOD, на двух первых уровнях семиэтажного корпуса Jansson.
Главная идея концепции интерьеров данного объекта – создание просторных, светлых многофункциональных пространств, в которых одна функция гармонично перетекает в другую. Для создания уютной атмосферы внутри каждого из пространств мы разработали несколько сценариев освещения и использовали оттенки светлого дуба в отделке.
Первый этаж разнообразен по функции – здесь находятся главные общие пространства: входная зона, гардероб, медицинский блок, столовая с пищеблоком, амфитеатр, а также групповые. На втором этаже располагаются кружковые, групповые, кабинеты логопеда и психолога и многофункциональный спортивный зал.
Для нас было важно создать детский сад, наполненный светом и радостью, и мы отразили это в концепции интерьеров, тщательно подбирая материалы отделки, решения по освещению и мебель.
Еще одна задача, которую мы поставили перед собой – это эффективное использование каждого метра проекта, поэтому мы функционально насыщали по максимуму каждое пространство. При этом они не ощущаются перегруженными, давящящими за счет концепции отделки, где светлые минималистичные интерьеры выступают в роли фона для происходящих в школе процессов.
Детский сад в ЖК MOD. Амфитеатр
© NF studio
Детский сад в ЖК MOD. Общий гардероб
© NF studio
Детский сад в ЖК MOD. Столовая
© NF studio
Детский сад в ЖК MOD
© NF studio
Детский сад в ЖК MOD. Медкабинет
© NF studio
Детский сад в ЖК MOD
© NF studio
Детский сад в ЖК MOD
© NF studio
Детский сад в ЖК MOD. Ситуационный план
© NF studio
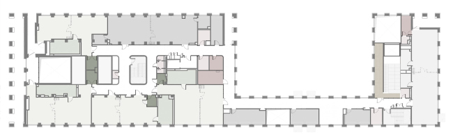
Детский сад в ЖК MOD. План 1 этажа
© NF studio
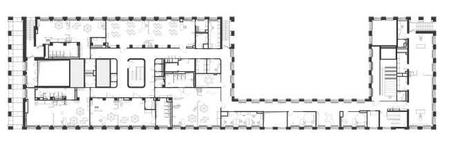
Детский сад в ЖК MOD. План 2 этажа
© NF studio
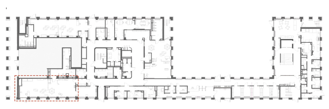
Детский сад в ЖК MOD. План расстовки мебели 1 этаж
© NF studio
Детский сад в ЖК MOD. План расстановки мебели 2 этаж
© NF studio
Архитекторы – партнеры Архи.ру:
Проект из каталога (случайный выбор)
Постройки и проекты (новые записи):
Новости российской архитектуры:
13.10.2025
Сила линий
Владимир Плоткин13.10.2025
Зеленая гостиная
13.10.2025
Отзовись, Атлантида!
12.10.2025