GINO PIZZA BAR
Фотография © Ольга Мелекесцева / предоставлена Студия дизайна MODGI Group
GINO PIZZA BAR
информация:
-
статус
реализовано -
даты
— 2024 -
место
Санкт-Петербург ул. Салова д. 61 -
координаты
59.884991, 30.367998 -
функция
Торгово-коммерческий / кафе -
теги
send.project -
общая площадь
62 м2
Студия дизайна MODGI Group
Россияавторский коллектив
MODGI Group
GINO PIZZA BAR
Фотография © Ольга Мелекесцева / предоставлена Студия дизайна MODGI Group
Архи.ру об этом объекте:
18.02.2025
Ретро-пиццерия
По проекту cтудии дизайна MODGI Group на территории апарт-отеля VALO в Санкт-Петербурге открылась компактная пиццерия в ретро-стиле. Теплую и сочную цветовую гамму дополняет винтажная мебель и свет, а одним из главных предметов декора стали конверты для виниловых пластинок.
Описание предоставлено архитекторами Пиццерия расположена на территории апарт-отеля VALO в Санкт-Петербурге. Концепция заведения вдохновлена предпочтениями владельца: пиццерия в пригороде Италии, артефакты прошлого, мягкий звук виниловых пластинок. ... читать дальшеGINO PIZZA BAR
Фотография © Ольга Мелекесцева / предоставлена Студия дизайна MODGI Group
описание:
Итальянское бистро GINO PIZZA BAR: гастрономическая лаборатория с эстетикой винила
«Не ©только про еду» – именно такое кодовое название команда MODGI присвоила пиццерии на территории апарт-отеля VALO в Санкт-Петербурге. На концепцию этого заведения нас натолкнули предпочтения владельца. Эстетика винтажной пиццерии или кафе где-то в пригороде Италии, атмосфера современных интерьеров с артефактами прошлого и вкрадчивые мелодии с виниловых пластинок – все эти детали мы свели в интерьерную композицию фуд-пространства GINO.
О стилистике
Вдохновляясь настроением, которое обычно царит в итальянских кафе, и экспрессивным характером местных жителей, мы определили концепцию этого интерьера. В основу пространства заложили философию свободы, где нет места перегруженности и избытку декора. А в качестве намёка на наследие винтажной Италии использовали микс из ретро-акцентов.
Оптимистичную и свободолюбивую эстетику прошлой эпохи выразили за счёт жизнеутверждающей палитры. Яркий оранжевый и лимонный, горчичный и терракотовый, насыщенный винный и оливковый оттенки мы ввели в интерьер, чтобы оживить его нейтральную базу из светлой плитки, штукатурки под старину и металла.
Будучи главным приёмом декорирования, эти цветовые акценты позволили иначе воспринимать в интерьере такие материалы, как дерево и металл. Обычно мы представляем их в традиционной гамме от шоколадно-кофейных оттенков до серебра, золота и латуни. Здесь же потолочные трубы, светильники и часть стульев выглядят смело и несколько футуристично именно из-за цвета.
Другой стилеобразующей доминантой в заведении стали мебель, светильники и бра. О связи с винтажным прошлым намекает их форма. Круглые и шарообразные плафоны, конусообразные элементы подстолья у барного стола и чуть развёдённые в стороны ножки стульев – всё это свойственно ретро-направлению и уместно в реалиях культурной столицы.
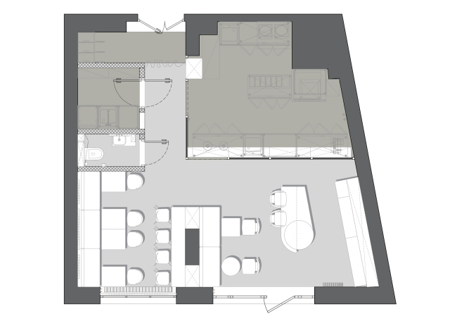
Особенности планировки и рассадка
Поскольку площадь под будущую пиццерию была компактной, за основу планировки мы взяли идеи open-space пространства. Чтобы не сокращать объём помещения и не лишать его воздуха, мы отказались от глухих стен в пользу перегородок и тематической рассадки.
Кухню мы сделали частью основного пространства, слегка скрыв её за каркасом из рифлёного стекла и нержавеющего металла под сталь. Напоминая со стороны научную лабораторию, где хранятся исследовательские приборы и оборудование, она отсылает воображение к производственным цехам крупных предприятий.
Но эта образная ассоциация – не единственное преимущество кухни. Наблюдая, как шеф-повар готовит тесто и ингредиенты для пиццы, каждый посетитель здесь может почувствовать себя участником кулинарного процесса. А это ещё сильнее будоражит вкусовые рецепторы и аппетит.
Объём этой кухни с одной стороны плавно перетекает в барную зону, где установлены кофемашина, приборы, всевозможные сиропы, соусы и специи. Здесь же расположена первая посадочная зона в виде барной стойки и ярко-оранжевых светильников, которые опускаются над ней словно светодиодные лампы-прожекторы в научных цехах.
В противоположной стороне от бара предусмотрена мягкая диванная посадка с небольшими столиками и раскладными стульями напротив. Разная форма столов при этом создаёт в интерьере ощущение лёгкой небрежности и расслабленности – так, будто посетитель сам организовал это место.
Также неподалёку от входной группы есть свободные столики на двоих и полубарная зона, где также можно разместиться с ноутбуком для работы.
Стилеобразующие детали
Был бы завершённым этот интерьер с уловимым ретро-флёром, если бы не декор? Конечно же, нет.
Винил-зона с проигрывателем здесь – главная винтажная локация. И она функциональна. Каждый посетитель может сделать здесь атмосферный снимок для соцсетей, перебрать коллекцию пластинок и выбрать музыкальное сопровождение на время своего пребывания в пиццерии.
Настенные картины и красочные обложки винила использовали здесь в качестве арт-объектов. Иллюстрации на последних отдалённо напоминают об искусстве поп-арта или демонстрируют портреты музыкальных исполнителей прошлого.
Кроме этого, в интерьере прослеживается чёткая закономерность в виде геометрических форм разного размера. Перфорация на торцах корпусной мебели и стен также намекает на стремление к открытости пространства. А таблички с меню и стиль вывески на входе стали здесь напоминанием о графическом дизайне, который был популярен в прошлом.
«Не ©только про еду» – именно такое кодовое название команда MODGI присвоила пиццерии на территории апарт-отеля VALO в Санкт-Петербурге. На концепцию этого заведения нас натолкнули предпочтения владельца. Эстетика винтажной пиццерии или кафе где-то в пригороде Италии, атмосфера современных интерьеров с артефактами прошлого и вкрадчивые мелодии с виниловых пластинок – все эти детали мы свели в интерьерную композицию фуд-пространства GINO.
О стилистике
Вдохновляясь настроением, которое обычно царит в итальянских кафе, и экспрессивным характером местных жителей, мы определили концепцию этого интерьера. В основу пространства заложили философию свободы, где нет места перегруженности и избытку декора. А в качестве намёка на наследие винтажной Италии использовали микс из ретро-акцентов.
Оптимистичную и свободолюбивую эстетику прошлой эпохи выразили за счёт жизнеутверждающей палитры. Яркий оранжевый и лимонный, горчичный и терракотовый, насыщенный винный и оливковый оттенки мы ввели в интерьер, чтобы оживить его нейтральную базу из светлой плитки, штукатурки под старину и металла.
Будучи главным приёмом декорирования, эти цветовые акценты позволили иначе воспринимать в интерьере такие материалы, как дерево и металл. Обычно мы представляем их в традиционной гамме от шоколадно-кофейных оттенков до серебра, золота и латуни. Здесь же потолочные трубы, светильники и часть стульев выглядят смело и несколько футуристично именно из-за цвета.
Другой стилеобразующей доминантой в заведении стали мебель, светильники и бра. О связи с винтажным прошлым намекает их форма. Круглые и шарообразные плафоны, конусообразные элементы подстолья у барного стола и чуть развёдённые в стороны ножки стульев – всё это свойственно ретро-направлению и уместно в реалиях культурной столицы.
Особенности планировки и рассадка
Поскольку площадь под будущую пиццерию была компактной, за основу планировки мы взяли идеи open-space пространства. Чтобы не сокращать объём помещения и не лишать его воздуха, мы отказались от глухих стен в пользу перегородок и тематической рассадки.
Кухню мы сделали частью основного пространства, слегка скрыв её за каркасом из рифлёного стекла и нержавеющего металла под сталь. Напоминая со стороны научную лабораторию, где хранятся исследовательские приборы и оборудование, она отсылает воображение к производственным цехам крупных предприятий.
Но эта образная ассоциация – не единственное преимущество кухни. Наблюдая, как шеф-повар готовит тесто и ингредиенты для пиццы, каждый посетитель здесь может почувствовать себя участником кулинарного процесса. А это ещё сильнее будоражит вкусовые рецепторы и аппетит.
Объём этой кухни с одной стороны плавно перетекает в барную зону, где установлены кофемашина, приборы, всевозможные сиропы, соусы и специи. Здесь же расположена первая посадочная зона в виде барной стойки и ярко-оранжевых светильников, которые опускаются над ней словно светодиодные лампы-прожекторы в научных цехах.
В противоположной стороне от бара предусмотрена мягкая диванная посадка с небольшими столиками и раскладными стульями напротив. Разная форма столов при этом создаёт в интерьере ощущение лёгкой небрежности и расслабленности – так, будто посетитель сам организовал это место.
Также неподалёку от входной группы есть свободные столики на двоих и полубарная зона, где также можно разместиться с ноутбуком для работы.
Стилеобразующие детали
Был бы завершённым этот интерьер с уловимым ретро-флёром, если бы не декор? Конечно же, нет.
Винил-зона с проигрывателем здесь – главная винтажная локация. И она функциональна. Каждый посетитель может сделать здесь атмосферный снимок для соцсетей, перебрать коллекцию пластинок и выбрать музыкальное сопровождение на время своего пребывания в пиццерии.
Настенные картины и красочные обложки винила использовали здесь в качестве арт-объектов. Иллюстрации на последних отдалённо напоминают об искусстве поп-арта или демонстрируют портреты музыкальных исполнителей прошлого.
Кроме этого, в интерьере прослеживается чёткая закономерность в виде геометрических форм разного размера. Перфорация на торцах корпусной мебели и стен также намекает на стремление к открытости пространства. А таблички с меню и стиль вывески на входе стали здесь напоминанием о графическом дизайне, который был популярен в прошлом.
GINO PIZZA BAR
Фотография © Ольга Мелекесцева / предоставлена Студия дизайна MODGI Group
GINO PIZZA BAR
Фотография © Ольга Мелекесцева / предоставлена Студия дизайна MODGI Group
GINO PIZZA BAR
Фотография © Ольга Мелекесцева / предоставлена Студия дизайна MODGI Group
GINO PIZZA BAR
Фотография © Ольга Мелекесцева / предоставлена Студия дизайна MODGI Group
GINO PIZZA BAR
Фотография © Ольга Мелекесцева / предоставлена Студия дизайна MODGI Group
GINO PIZZA BAR
Фотография © Ольга Мелекесцева / предоставлена Студия дизайна MODGI Group
GINO PIZZA BAR
Фотография © Ольга Мелекесцева / предоставлена Студия дизайна MODGI Group
GINO PIZZA BAR
Фотография © Ольга Мелекесцева / предоставлена Студия дизайна MODGI Group
GINO PIZZA BAR
Фотография © Ольга Мелекесцева / предоставлена Студия дизайна MODGI Group
GINO PIZZA BAR
Фотография © Ольга Мелекесцева / предоставлена Студия дизайна MODGI Group
GINO PIZZA BAR
Фотография © Ольга Мелекесцева / предоставлена Студия дизайна MODGI Group
GINO PIZZA BAR
Фотография © Ольга Мелекесцева / предоставлена Студия дизайна MODGI Group
GINO PIZZA BAR
Фотография © Ольга Мелекесцева / предоставлена Студия дизайна MODGI Group
GINO PIZZA BAR
Фотография © Ольга Мелекесцева / предоставлена Студия дизайна MODGI Group
GINO PIZZA BAR
Фотография © Ольга Мелекесцева / предоставлена Студия дизайна MODGI Group
GINO PIZZA BAR
Фотография © Ольга Мелекесцева / предоставлена Студия дизайна MODGI Group
GINO PIZZA BAR
Фотография © Ольга Мелекесцева / предоставлена Студия дизайна MODGI Group
GINO PIZZA BAR
Фотография © Ольга Мелекесцева / предоставлена Студия дизайна MODGI Group
GINO PIZZA BAR
© Студия дизайна MODGI Group
GINO PIZZA BAR
© Студия дизайна MODGI Group
Архитекторы – партнеры Архи.ру:
Проект из каталога (случайный выбор)
Постройки и проекты (новые записи):
Новости российской архитектуры:
26.09.2025
Падел на взморье
Антон Цветков, Виктория Ревякина, Иванов Константин25.09.2025
Эндорфиновый всплеск
Филипп Бабошкин24.09.2025