Лобби ЖК «Дом на Зорге»
© MORS ARCHITECTS
Лобби ЖК «Дом на Зорге»
информация:
- 
							статусв процессе реализации
- 
							даты06.2023 / 2024
- 
                                                    
							местоМосква ул. Зорге
- 
							координаты55.791995, 37.504294
- 
							функцияЖилой / жилой комплекс
- 
            
             тегиsend.project
- 
							общая площадь322 м2
- 
						 ссылки:
 
                                          
    					  Виталий Землянский
Россия 
                                          
    					  Дмитрий Макеенко
РоссияMORS ARCHITECTS
Россияавторский коллектив
Главный архитектор/партнер: Дмитрий Макеенко 
Генеральный директор/партнер: Виталий Землянский
Архитекторы: Татьяна Калекина, Екатерина Епифанова
Генеральный директор/партнер: Виталий Землянский
Архитекторы: Татьяна Калекина, Екатерина Епифанова
партнеры, заказчики, смежники
Заказчик: ГК «А101»
                                                
                     			        
                                       Лобби ЖК «Дом на Зорге»
© MORS ARCHITECTS
Лобби ЖК «Дом на Зорге»
© MORS ARCHITECTS
описание:
«Дом на Зорге» – новый проект бизнес-класса в престижном районе Сокол вблизи центра Москвы. Его архитектуру отличает строгий классический облик. Поэтому для концепции интерьеров архитекторы предложили контрастный светлый дизайн в концепции «березовая роща», которая ассоциируется с русским лесом и его красотой. Концепцию подсказывает локация проекта: поблизости расположен парк «Березовая роща», а все пространство формируется в гармонии с природой.
 
Архитектурные элементы пространства с высокими потолками отсылают к силуэтам деревьев и «водной глади». Весь интерьер с помощью освещения, рисунка деревянных панелей, орнамента пола и потолка вытягивается по высоте и визуально увеличивает пространство. Большую роль в этом играет форма освещения.
 
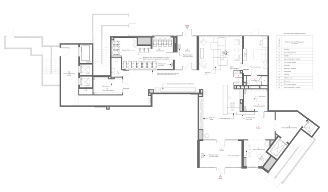
В функционал лобби и общественных зон площадью 322 кв.м войдут места ожидания и ресепшен, почтовая комната, комната для хранения колясок и велосипедов, пункт охраны, лапомойка, а также коворкинг и лаунж с библиотекой. Вспомогательные помещения зонируются с помощью светопрозрачных конструкций.
 
Стены общественных зон оформлены шпонированными панелями и декоративной штукатуркой: выбранные материалы дополняют тактильные ощущения. В лобби и лифтовом холле жителей будет встречать обилие поверхностей с фактурой, интересной наощупь. Стены и пол будут оформлены ультратонкой керамикой. Мягкое, но при этом строгое и лаконичное пространство станет точкой притяжения жителей и будет выполнять функцию буферной зоны между оживленным городом и уютным домом.
                                 
                                 
                                 
				Архитектурные элементы пространства с высокими потолками отсылают к силуэтам деревьев и «водной глади». Весь интерьер с помощью освещения, рисунка деревянных панелей, орнамента пола и потолка вытягивается по высоте и визуально увеличивает пространство. Большую роль в этом играет форма освещения.
В функционал лобби и общественных зон площадью 322 кв.м войдут места ожидания и ресепшен, почтовая комната, комната для хранения колясок и велосипедов, пункт охраны, лапомойка, а также коворкинг и лаунж с библиотекой. Вспомогательные помещения зонируются с помощью светопрозрачных конструкций.
Стены общественных зон оформлены шпонированными панелями и декоративной штукатуркой: выбранные материалы дополняют тактильные ощущения. В лобби и лифтовом холле жителей будет встречать обилие поверхностей с фактурой, интересной наощупь. Стены и пол будут оформлены ультратонкой керамикой. Мягкое, но при этом строгое и лаконичное пространство станет точкой притяжения жителей и будет выполнять функцию буферной зоны между оживленным городом и уютным домом.
 
          
          
          
          
          
          
          
          
          
          
          
          
          
          
          
          
          
         