Стоматология на улице Крылова в Екатеринбурге
© CNTR Architects
Стоматология на улице Крылова в Екатеринбурге
информация:
-
статус
проект -
даты
2021 — 2022 -
место
Екатеринбург в границах улиц Крауля - Крылова - А. Барбюса - Пирогова -
координаты
56.830994, 60.570040 -
функция
Туризм/здравоохранение / Медицинский центр -
площадь участка
0,0836 га -
общая площадь
3 344 м2 -
этажность
5 -
строительный объем
12 546,9 м3

Андрей Чуйков
РоссияCNTR Architects
Россияавторский коллектив
Андрей Чуйков, Олег Гаврилов, Наталья Яландина
другие названия проекта
Проект стоматологической клиники в Екатеринбурге
Стоматология на улице Крылова в Екатеринбурге
© CNTR Architects
Архи.ру об этом объекте:
20.11.2024
Алёна Кузнецова. Золотая коронка
Концепцию стоматологической клиники в Екатеринбурге бюро CNTR обозначило как mouth full of gold: белоснежные стены из керамогранита оттеняют матовые латунные детали. Чтобы отсылка не стала слишком прямолинейной, архитекторы сосредоточились на пропорциях здания, лавируя между инсоляционными и пожарными ограничениями.
Стоматологическая клиника на улице Крылова станет самой большой в городе: она вместит 200 сотрудников, детское и взрослое отделения, операционный блок, а также лаборатории и административные помещения. Заметным здание сделает не только масштаб, но и ... читать дальшеСтоматология на улице Крылова в Екатеринбурге
© CNTR Architects
история проекта:
Заказ напрямую от инвесторов из сферы медицины
описание:
Проект многопрофильной стоматологической клиники с детским и взрослым отделениями, операционным блоком и этажом администрации, собственным кафе и лабораторией. В самой большой стоматологии Екатеринбурга планируется разместить более 200 сотрудников.
Здание обладает уникальной формой, летними помещениями и фасадными решениями, отсылающими к здоровой улыбке. Мы добавили немного блеска золота, как ироничный намёк на древнейший стоматологический материал.
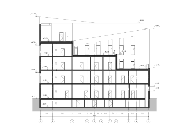
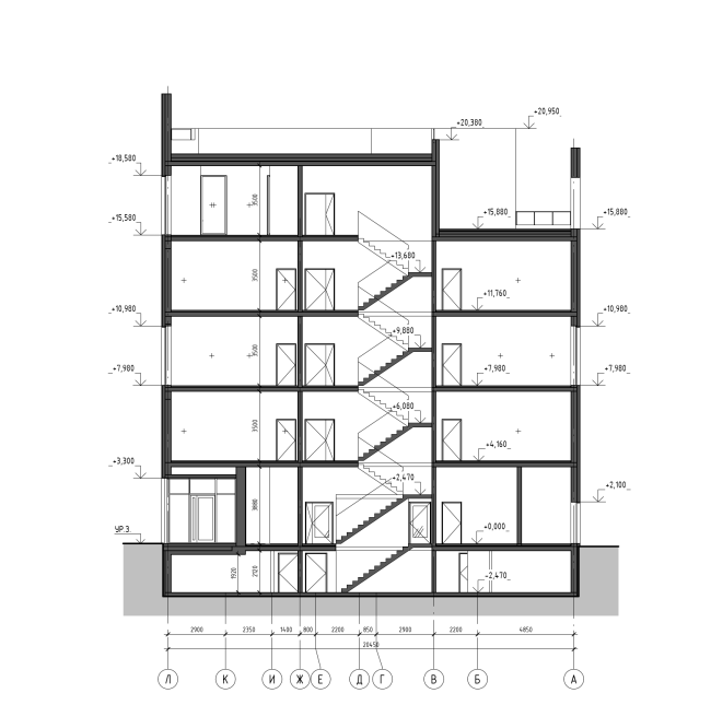
Объект спроектирован на небольшом участке в сердце Екатеринбурга, в окружении плотной застройки с устоявшимися пешеходными связями. Первоначально разработанная концепция предполагала 7 этажей, которые в угоду экономической модели были оптимизированы до 5 (с техническим подземным этажом). В уровне первого этажа на углах здания сформированы подсечки. На пересечении улиц Крылова и Анри Барбюса образован главный вход с угловым витражным остеклением. Подрезка угла со стороны 3-этажного жилого дома позволяет обеспечить комфортную траекторию транзитного движения пешеходов по тротуару вдоль улицы Анри Барбюса.
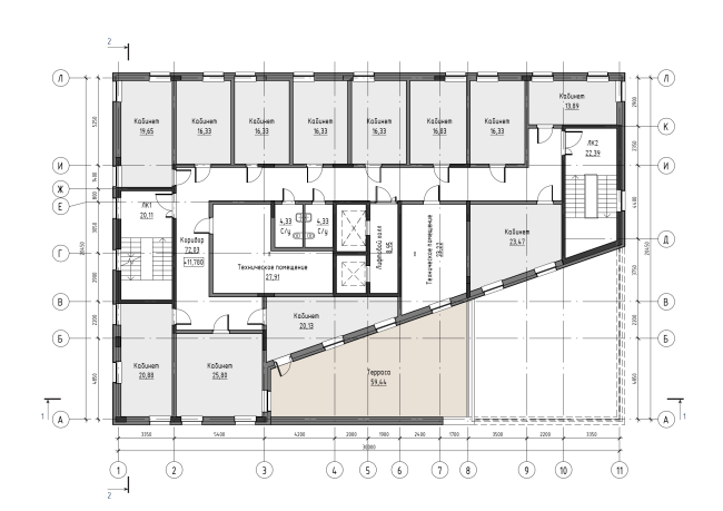
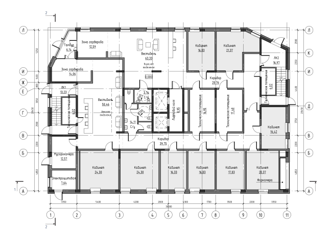
Первые три этажа доступны для гостей клиники, последние приватны и служат базой для лаборатории и административного блока.
Концепция отсылает к здоровой улыбке: архитекторы восприняли пространство как полотно и наполнили его соответствующими элементами, напоминающими ряд зубов с отблеском «золотых коронок» латуни.
Ряд ограничений по инсоляции, расположению инженерных сетей и пешеходных маршрутов послужили толчком для формообразования. Так, здание получило скошенную кровлю и эксплуатируемые летние помещения. На террасах могут отдыхать пациенты и сотрудники отделений.
Художественной доминантой фасадов являются латунные панели и оформление в этом оттенке оконных проемов.
Фасадное решение минималистично, основано на сочетании белых поверхностей из крупноформатного
керамогранита и мелкоформатной плитки с металлическими деталями латунного цвета.
В качестве дополнительного элемента выразительности был использован нерегулярный паттерн из витражей, имеющих вертикально вытянутые пропорции, что позволило визуально добавить изящности зданию.
Здание обладает уникальной формой, летними помещениями и фасадными решениями, отсылающими к здоровой улыбке. Мы добавили немного блеска золота, как ироничный намёк на древнейший стоматологический материал.
Объект спроектирован на небольшом участке в сердце Екатеринбурга, в окружении плотной застройки с устоявшимися пешеходными связями. Первоначально разработанная концепция предполагала 7 этажей, которые в угоду экономической модели были оптимизированы до 5 (с техническим подземным этажом). В уровне первого этажа на углах здания сформированы подсечки. На пересечении улиц Крылова и Анри Барбюса образован главный вход с угловым витражным остеклением. Подрезка угла со стороны 3-этажного жилого дома позволяет обеспечить комфортную траекторию транзитного движения пешеходов по тротуару вдоль улицы Анри Барбюса.
Первые три этажа доступны для гостей клиники, последние приватны и служат базой для лаборатории и административного блока.
Концепция отсылает к здоровой улыбке: архитекторы восприняли пространство как полотно и наполнили его соответствующими элементами, напоминающими ряд зубов с отблеском «золотых коронок» латуни.
Ряд ограничений по инсоляции, расположению инженерных сетей и пешеходных маршрутов послужили толчком для формообразования. Так, здание получило скошенную кровлю и эксплуатируемые летние помещения. На террасах могут отдыхать пациенты и сотрудники отделений.
Художественной доминантой фасадов являются латунные панели и оформление в этом оттенке оконных проемов.
Фасадное решение минималистично, основано на сочетании белых поверхностей из крупноформатного
керамогранита и мелкоформатной плитки с металлическими деталями латунного цвета.
В качестве дополнительного элемента выразительности был использован нерегулярный паттерн из витражей, имеющих вертикально вытянутые пропорции, что позволило визуально добавить изящности зданию.
Стоматология на улице Крылова в Екатеринбурге
© CNTR Architects
Стоматология на улице Крылова в Екатеринбурге
© CNTR Architects
Стоматология на улице Крылова в Екатеринбурге
© CNTR Architects
Стоматология на улице Крылова в Екатеринбурге
© CNTR Architects
Стоматология на улице Крылова в Екатеринбурге
© CNTR Architects
Стоматология на улице Крылова в Екатеринбурге
© CNTR Architects
Стоматология на улице Крылова в Екатеринбурге
© CNTR Architects
Стоматология на улице Крылова в Екатеринбурге
© CNTR Architects
Стоматология на улице Крылова в Екатеринбурге
© CNTR Architects
Стоматология на улице Крылова в Екатеринбурге
© CNTR Architects
Стоматология на улице Крылова в Екатеринбурге. План 1 этажа
© CNTR Architects
Стоматология на улице Крылова в Екатеринбурге. План 4 этажа
© CNTR Architects
Стоматология на улице Крылова в Екатеринбурге. План подвала
© CNTR Architects
Стоматология на улице Крылова в Екатеринбурге. Разрез 1-1
© CNTR Architects
Стоматология на улице Крылова в Екатеринбурге. Разрез 2-2
© CNTR Architects
Архитекторы – партнеры Архи.ру:
Проект из каталога (случайный выбор)
Постройки и проекты (новые записи):
Новости российской архитектуры:
09.10.2025
Курорт на Каме
09.10.2025
Модель многоуровневой жизни
09.10.2025
Снос Энтузиаста
08.10.2025