Жилой комплекс Warmstone
© MAYAK Architects
Жилой комплекс Warmstone
информация:
-
статус
проект -
даты
10.2022 -
место
Зеленогорск -
координаты
60.197880, 29.659996 -
функция
Жилой / жилой комплекс -
теги
send.project -
общая площадь
8 700 м2 -
высота
15 -
этажность
3/4 -
строительный объем
15 950 м3

Лиза Бриллиантова
Россия
Александр Мешин
РоссияMAYAK Architects
MAYAK Architects / Россияавторский коллектив
Лиза Бриллиантова, Александр Мешин, Александра Молодцова, Кантемир Езиев
партнеры, заказчики, смежники
Заказчик: ООО «Лазурный берег»
Жилой комплекс Warmstone
© MAYAK Architects
Архи.ру об этом объекте:
21.09.2023
Алёна Кузнецова. Согретый камень
Жилой комплекс в Зеленогорске архитектурное бюро «Маяк» интерпретирует как россыпь камней. Нестандартный абрис пятиугольных в плане домов не только помог с образной частью проекта, но и во многом облегчил работу с плотностью застройки и инсоляцией квартир.
Жилой комплекс Warmstone на прошлой неделе получил премию петербургского Архитектона как лучший проект жилой функции. Любопытно, что подавляющее большинство номинантов было представлено средне- и малоэтажной застройкой. В случае Warmstone высотность ... читать дальшеЖилой комплекс Warmstone
© MAYAK Architects
описание:
Основной идеей проект обязан в первую очередь своему расположению. Он вдохновлен северным нравом финского залива: симбиозом воды, камня, дюн и хвойного леса.
Протагонист проекта – Человек, стремящийся облагородить дикую природу.
Внутренняя драматургия проекта – одухотворение необтесанных валунов с песчаных берегов финского залива, покрытых мхом и патиной времени. Валуны можно очистить, согреть теплом рук и высечь из грубой формы то, что обретет ценность – стены любимого дома, внутри которого будет создан очаг, который станет смысловым фундаментом дома.
Образ россыпи камней пронизывает проект красной нитью и является своего рода соединительной тканью для всех запроектированных элементов.
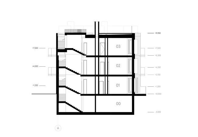
Территория проектирования расположена в Зеленогорске и представляет собой участок площадью почти 2 Га. Участок расположен в зоне регулирования застройки и, конечно, имеет ряд ограничений. Одним из основных ограничений является регулирование максимальной площади пятна застройки одного здания. В связи с этим ограничением на участке было размещено 17 трехэтажных жилых блоков и один четырехэтажный коммерческий.
По периметру участка расположены парковочные места, а в центре – большой двор с детскими площадками, зонами для отдыха и прогулок. Благодаря тому, что блоки домов собраны в сложную композицию, на участке образуется множество живописных и сложных прогулочных маршрутов, подобных коротким, но ёмким интерлюдиям между значимыми объемами зданий.
Осознанный отказ от стандартной конфигурации зданий в пользу импульсивных и многогранных абрисов помог не только с идеологической точки зрения, потому что стал отсылкой к работе с природными формами, но и во многом облегчил работу с плотностью застройки и с инсоляцией квартир.
Уникальность проекта заключается в том, что с самого первого дня работа велась не только над характером архитектурного облика, но и над продуктом в целом. Совместно с заказчиком формировалась квартирография, портрет целевого клиента, понимание того, какими должны быть места общего пользования, дворы и так далее. В определенный момент к проекту подключились маркетологи, кое-что было доработано, но глобального переосмысления не произошло. Все члены команды подхватывали идею и способствовали ее развитию и росту.
Пластика фасадов обыграна ригельным кирпичом с градиентом оттенка от темного снизу к почти белоснежного сверху. Градиент является отсылкой к работе с камнем. Светлые фасады наглядно иллюстрируют свою резистентность контрастному оттенку темного смарагдового леса, а большие окна квартир задают элегическую интонацию проекту и транслируют окружению тепло Человеческого очага.
Протагонист проекта – Человек, стремящийся облагородить дикую природу.
Внутренняя драматургия проекта – одухотворение необтесанных валунов с песчаных берегов финского залива, покрытых мхом и патиной времени. Валуны можно очистить, согреть теплом рук и высечь из грубой формы то, что обретет ценность – стены любимого дома, внутри которого будет создан очаг, который станет смысловым фундаментом дома.
Образ россыпи камней пронизывает проект красной нитью и является своего рода соединительной тканью для всех запроектированных элементов.
Территория проектирования расположена в Зеленогорске и представляет собой участок площадью почти 2 Га. Участок расположен в зоне регулирования застройки и, конечно, имеет ряд ограничений. Одним из основных ограничений является регулирование максимальной площади пятна застройки одного здания. В связи с этим ограничением на участке было размещено 17 трехэтажных жилых блоков и один четырехэтажный коммерческий.
По периметру участка расположены парковочные места, а в центре – большой двор с детскими площадками, зонами для отдыха и прогулок. Благодаря тому, что блоки домов собраны в сложную композицию, на участке образуется множество живописных и сложных прогулочных маршрутов, подобных коротким, но ёмким интерлюдиям между значимыми объемами зданий.
Осознанный отказ от стандартной конфигурации зданий в пользу импульсивных и многогранных абрисов помог не только с идеологической точки зрения, потому что стал отсылкой к работе с природными формами, но и во многом облегчил работу с плотностью застройки и с инсоляцией квартир.
Уникальность проекта заключается в том, что с самого первого дня работа велась не только над характером архитектурного облика, но и над продуктом в целом. Совместно с заказчиком формировалась квартирография, портрет целевого клиента, понимание того, какими должны быть места общего пользования, дворы и так далее. В определенный момент к проекту подключились маркетологи, кое-что было доработано, но глобального переосмысления не произошло. Все члены команды подхватывали идею и способствовали ее развитию и росту.
Пластика фасадов обыграна ригельным кирпичом с градиентом оттенка от темного снизу к почти белоснежного сверху. Градиент является отсылкой к работе с камнем. Светлые фасады наглядно иллюстрируют свою резистентность контрастному оттенку темного смарагдового леса, а большие окна квартир задают элегическую интонацию проекту и транслируют окружению тепло Человеческого очага.
Жилой комплекс Warmstone
© MAYAK Architects
Жилой комплекс Warmstone
© MAYAK Architects
Жилой комплекс Warmstone
© MAYAK Architects
Жилой комплекс Warmstone
© MAYAK Architects
Жилой комплекс Warmstone
© MAYAK Architects
Жилой комплекс Warmstone
© MAYAK Architects
Жилой комплекс Warmstone. Ситуационный план
© MAYAK Architects
Жилой комплекс Warmstone. Ситуационный план
© MAYAK Architects
Жилой комплекс Warmstone. Ситуационный план
© MAYAK Architects
Жилой комплекс Warmstone. Генплан
© MAYAK Architects
Жилой комплекс Warmstone. Аксонометрия
© MAYAK Architects
Жилой комплекс Warmstone
© MAYAK Architects
Жилой комплекс Warmstone
© MAYAK Architects
Жилой комплекс Warmstone. План 1 этажа
© MAYAK Architects
Жилой комплекс Warmstone. План 1 этажа
© MAYAK Architects
Жилой комплекс Warmstone. План 2 этажа
© MAYAK Architects
Жилой комплекс Warmstone. План 3 этажа
© MAYAK Architects
Жилой комплекс Warmstone. План кровли
© MAYAK Architects
Жилой комплекс Warmstone
© MAYAK Architects
Жилой комплекс Warmstone
© MAYAK Architects
Жилой комплекс Warmstone
© MAYAK Architects
Жилой комплекс Warmstone
© MAYAK Architects
Жилой комплекс Warmstone
© MAYAK Architects
Жилой комплекс Warmstone
© MAYAK Architects
Архитекторы – партнеры Архи.ру:
Проект из каталога (случайный выбор)

Артем Укропов, Дарья Листопад, Кирилл Губернаторов, 2017 – 2018
Концепция развития туристического бренда Дрезны
Постройки и проекты (новые записи):
Новости российской архитектуры:
21.10.2025
На династической тропе
Сергей Никешкин20.10.2025
Крылья Маяковского
Алексей Гуров20.10.2025
Новый путь
Сергей Скуратов19.10.2025