Офис компании Cloud: полет в будущее
Фотография © Вячеслав Флеор / предоставлена Синтаксис
Офис компании Cloud: полет в будущее
информация:
-
статус
реализовано -
даты
11.2020 — 09.2021 / 06.2022 -
место
Москва 2-ая Звенигородская ул. д.28 -
координаты
55.762885, 37.557026 -
функция
Административно-офисный / интерьер офиса -
теги
send.project -
общая площадь
4 470 м2

Алексей Зародов
Россия
Александр Стариков
РоссияSyntaxis
Syntaxis / Россияавторский коллектив
Команда проекта: А. Зародов, А. Стариков, В. Дворникова, Д. Анциферов, А. Радзинская, Н. Вылков, А. Малышев, И. Стебунов, Э. Узбекова, А. Павлов
партнеры, заказчики, смежники
Строительный подрядчик: «Спутник»
Заказчик: Cloud
Заказчик: Cloud
Офис компании Cloud: полет в будущее
Фотография © Вячеслав Флеор / предоставлена Синтаксис
Офис компании Cloud: полет в будущее
Фотография © Вячеслав Флеор / предоставлена Синтаксис
описание:
Бизнес-задача
Цель проекта – создать технологически продвинутое деловое пространство для динамично развивающейся российской IT-компании. Сloud – один из крупнейших в стране провайдеров облачных услуг. Новый офис структуры расположен в бизнес-центре многофункционального кластера Lucky в центре Москвы. Решить задачу по разработке интерьеров офиса с броским и узнаваемым дизайном поручили архитектурному бюро Syntaxis.
Организация пространства:
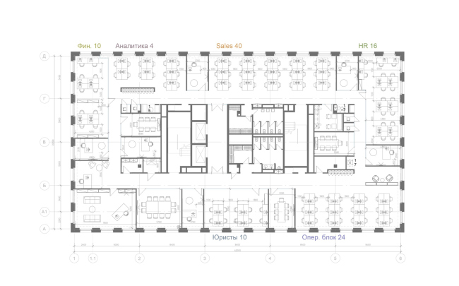
Офис общей площадью 4470 кв. м расположен в пятиэтажном бизнес-центре Lucky на 2-ой Звенигородской улице. Деловой комплекс – часть одноименного многофункционального кластера, возводимого столичным девелопером Vesper. Жилые корпуса в нем соседствуют с деловым комплексом класса А. Такая синергия в будущем сделает данную локацию одной из городских точек притяжения. При этом все части квартала скреплены единой архитектурной концепцией.
Последний год Сloud активно растет и компании понадобился более просторный офис, отвечающий современным техническим требованиями и наглядно отражающий философию IT-компании. Перед архитекторами была поставлена задача создать комфортную среду с гибкой возможностью менеджмента рабочих мест, так как значительная часть сотрудников работает в удаленном режиме, но периодически приезжает в офис. По форме здание бизнес-центра приближено к прямоугольнику, внутри которого удобно расположено центральное ядро. Вокруг него рассредоточены основные рабочие, общественные и рекреационные зоны. Центральное ядро функционирует в качестве коммуникационного хаба, доступ к которому есть из всех точек офиса. Такое интерьерное решение не только позволяет упростить навигацию передвижения сотрудников, но и ускоряет корпоративные процессы, улучшает коммуникации между сотрудниками. Каждая локация для отдыха спроектирована так, чтобы сотрудник в любое время мог перенастроить ее под деловые нужды.
Внутри офиса создано несколько зеленых оазисов-стеллажей с живыми растениями и с интегрированными магнитно-маркерными досками. Они не только разделяют open-space на автономные сектора, но и являются акустическими барьерами. Возле каждого мини-кластера оборудованы места для индивидуальной работы и локеры для хранения личных вещей.
Дизайн-идея
Cloud действует в секторе высоких технологий, облачных платформ и сервисов, остается одним из лидеров в данной отрасли России. За основу дизайн-кода был взят стиль глассморфизм, активно используемый при разработке цифровых интерфейсов. В IT-сфере данный тренд характеризуется созданием эффекта матового стекла и размытием фона, плавающими объектами, яркими цветовыми акцентами и тонкими границами. Эти идеи нашли отражение в интерьерах офиса через активную работу со стеклом и зрительными эффектами на матовых поверхностях.
Каждый из четырех этажей и навигация на них отражают одну из перспективных технологий, которые будут определять будущее. Первый этаж – территория-хаб без маркера времени, где расположились основные коммуникационные и общественные зоны здания: ресепшен, столовая, компактный open-space и вестибюль. Здесь же оборудован трансформируемый конференц-зал с мобильными перегородками из двойного стекла высотой в 4 метра, что обеспечивает комфортную звукоизоляцию.
Второй этаж – «2020» – отражает настоящее время, а дизайн-код сосредоточен на ассоциациях с технологиями Блокчейн и 3D-печати. Они отображены в виде минималистичных светящихся арт-объектов, рассредоточенных по пространству.
На третьем этаже, получившем название «2030», оборудованы переговорные под названием AI и Space Robots, VR и AR. Именно эти технологии планируется динамично развивать в следующем десятилетии.
Заглядывая в будущее еще на 10 лет, на следующем этаже архитекторы представили в интерьере аллюзии на образы орбитальных солнечных электростанций и космических кораблей. На четвертом этаже дизайнеры стремились продемонстрировать, как образы научной фантастики могут стать частью повседневной жизни.
На пятом этаже под названием «2050» появились переговорные Teleport и Smart dust, отсылающие к идее перехода к новым способам перемещения материи и информации в пространстве.
Идея дополняется через серию из 33 арт-объектов, созданных и воплощенных в жизнь архитекторами проекта. Каждый из них является отсылкой к названию переговорной или зоны, где он расположен.
За счет применения минималистичных и абстрактных форм, различных материалов и текстур, все части офиса по-своему уникальны, а навигация стала более запоминающейся и понятной. Так, объект Space Robots по форме напоминает часть космического корабля или деталь робота, а круглые части за счет технологии Infinity Mirror создают впечатление, что мы смотрим в бесконечность космоса.
Поддерживают концепцию также и особенности отделки интерьеров в разных частях бизнес-центра. Так, на каждом уровне здания посетитель, выходя из лифтового холла, попадает в уникальное офисное ядро с собственной дизайн-подтемой и цветовой палитрой. Чем выше поднимается посетитель, тем футуристичнее выглядит отделка пространства. На пятом этаже гостя встречают светящиеся матовые белые стены и почти стерильная атмосфера в духе «Космической одиссеи» Кубрика.
Попадая на четвертый этаж здания, посетитель понимает, что оказался где-то в будущем за счет впечатляющих градиентных объемов в виде переговорных, расположенных прямо напротив лифтового холла. Дополнительным цветом навигации данного этажа служит красная охра, проходящая тонкой линией матирования через пространство. Большое количество светящихся арт-объектов подчеркивают футуристичность пространства.
Аналогично реализованы интерьеры на втором и третьем этажах, но с другим насыщением светящихся элементов, материалами и цветовыми акцентами. Например, «2030» выполнен в голубых оттенках с дополнительным терракотовым цветом, а «2020» оранжевых, кирпичных оттенках с элементами черного цвета.
Кабинет главы компании и смежная переговорная выполнены в нейтральном и более классическом стиле, но также оформлены авторскими арт-объектами из керамики и дерева.
Общей целью архитекторов было создание достаточно минималистичных и очень светлых интерьеров с яркими локальными акцентами, интуитивно понятной тематической навигацией.
«Начиная работу по созданию данного проекта, мы сразу отбросили любые консервативные идеи. Дизайн офиса и характер оформления его пространства в полной мере отражают инновационность деятельность компании, взгляд в будущее, которое ждет нас в ближайшие десятилетия. Одновременно с этим офис получился крайне гибким, комфортным как для организации корпоративных процессов, так и неформального общения или отдыха. А навигация при всей своей необычности легко считывается в любой точке даже человеком, впервые попавшим в бизнес-центр».
Производители и поставщики:
Мебель: Vitra, Hay, Ahrend, Actiu, Poltrona Frau, Cattelan Italia, Ditre Italia
Освещение: Lighthouse
Перегородки, двери, изделия на заказ: Syntera
Напольные покрытия: Interface, Bloq, Coswick
Цель проекта – создать технологически продвинутое деловое пространство для динамично развивающейся российской IT-компании. Сloud – один из крупнейших в стране провайдеров облачных услуг. Новый офис структуры расположен в бизнес-центре многофункционального кластера Lucky в центре Москвы. Решить задачу по разработке интерьеров офиса с броским и узнаваемым дизайном поручили архитектурному бюро Syntaxis.
Организация пространства:
Офис общей площадью 4470 кв. м расположен в пятиэтажном бизнес-центре Lucky на 2-ой Звенигородской улице. Деловой комплекс – часть одноименного многофункционального кластера, возводимого столичным девелопером Vesper. Жилые корпуса в нем соседствуют с деловым комплексом класса А. Такая синергия в будущем сделает данную локацию одной из городских точек притяжения. При этом все части квартала скреплены единой архитектурной концепцией.
Последний год Сloud активно растет и компании понадобился более просторный офис, отвечающий современным техническим требованиями и наглядно отражающий философию IT-компании. Перед архитекторами была поставлена задача создать комфортную среду с гибкой возможностью менеджмента рабочих мест, так как значительная часть сотрудников работает в удаленном режиме, но периодически приезжает в офис. По форме здание бизнес-центра приближено к прямоугольнику, внутри которого удобно расположено центральное ядро. Вокруг него рассредоточены основные рабочие, общественные и рекреационные зоны. Центральное ядро функционирует в качестве коммуникационного хаба, доступ к которому есть из всех точек офиса. Такое интерьерное решение не только позволяет упростить навигацию передвижения сотрудников, но и ускоряет корпоративные процессы, улучшает коммуникации между сотрудниками. Каждая локация для отдыха спроектирована так, чтобы сотрудник в любое время мог перенастроить ее под деловые нужды.
Внутри офиса создано несколько зеленых оазисов-стеллажей с живыми растениями и с интегрированными магнитно-маркерными досками. Они не только разделяют open-space на автономные сектора, но и являются акустическими барьерами. Возле каждого мини-кластера оборудованы места для индивидуальной работы и локеры для хранения личных вещей.
Дизайн-идея
Cloud действует в секторе высоких технологий, облачных платформ и сервисов, остается одним из лидеров в данной отрасли России. За основу дизайн-кода был взят стиль глассморфизм, активно используемый при разработке цифровых интерфейсов. В IT-сфере данный тренд характеризуется созданием эффекта матового стекла и размытием фона, плавающими объектами, яркими цветовыми акцентами и тонкими границами. Эти идеи нашли отражение в интерьерах офиса через активную работу со стеклом и зрительными эффектами на матовых поверхностях.
Каждый из четырех этажей и навигация на них отражают одну из перспективных технологий, которые будут определять будущее. Первый этаж – территория-хаб без маркера времени, где расположились основные коммуникационные и общественные зоны здания: ресепшен, столовая, компактный open-space и вестибюль. Здесь же оборудован трансформируемый конференц-зал с мобильными перегородками из двойного стекла высотой в 4 метра, что обеспечивает комфортную звукоизоляцию.
Второй этаж – «2020» – отражает настоящее время, а дизайн-код сосредоточен на ассоциациях с технологиями Блокчейн и 3D-печати. Они отображены в виде минималистичных светящихся арт-объектов, рассредоточенных по пространству.
На третьем этаже, получившем название «2030», оборудованы переговорные под названием AI и Space Robots, VR и AR. Именно эти технологии планируется динамично развивать в следующем десятилетии.
Заглядывая в будущее еще на 10 лет, на следующем этаже архитекторы представили в интерьере аллюзии на образы орбитальных солнечных электростанций и космических кораблей. На четвертом этаже дизайнеры стремились продемонстрировать, как образы научной фантастики могут стать частью повседневной жизни.
На пятом этаже под названием «2050» появились переговорные Teleport и Smart dust, отсылающие к идее перехода к новым способам перемещения материи и информации в пространстве.
Идея дополняется через серию из 33 арт-объектов, созданных и воплощенных в жизнь архитекторами проекта. Каждый из них является отсылкой к названию переговорной или зоны, где он расположен.
За счет применения минималистичных и абстрактных форм, различных материалов и текстур, все части офиса по-своему уникальны, а навигация стала более запоминающейся и понятной. Так, объект Space Robots по форме напоминает часть космического корабля или деталь робота, а круглые части за счет технологии Infinity Mirror создают впечатление, что мы смотрим в бесконечность космоса.
Поддерживают концепцию также и особенности отделки интерьеров в разных частях бизнес-центра. Так, на каждом уровне здания посетитель, выходя из лифтового холла, попадает в уникальное офисное ядро с собственной дизайн-подтемой и цветовой палитрой. Чем выше поднимается посетитель, тем футуристичнее выглядит отделка пространства. На пятом этаже гостя встречают светящиеся матовые белые стены и почти стерильная атмосфера в духе «Космической одиссеи» Кубрика.
Попадая на четвертый этаж здания, посетитель понимает, что оказался где-то в будущем за счет впечатляющих градиентных объемов в виде переговорных, расположенных прямо напротив лифтового холла. Дополнительным цветом навигации данного этажа служит красная охра, проходящая тонкой линией матирования через пространство. Большое количество светящихся арт-объектов подчеркивают футуристичность пространства.
Аналогично реализованы интерьеры на втором и третьем этажах, но с другим насыщением светящихся элементов, материалами и цветовыми акцентами. Например, «2030» выполнен в голубых оттенках с дополнительным терракотовым цветом, а «2020» оранжевых, кирпичных оттенках с элементами черного цвета.
Кабинет главы компании и смежная переговорная выполнены в нейтральном и более классическом стиле, но также оформлены авторскими арт-объектами из керамики и дерева.
Общей целью архитекторов было создание достаточно минималистичных и очень светлых интерьеров с яркими локальными акцентами, интуитивно понятной тематической навигацией.
«Начиная работу по созданию данного проекта, мы сразу отбросили любые консервативные идеи. Дизайн офиса и характер оформления его пространства в полной мере отражают инновационность деятельность компании, взгляд в будущее, которое ждет нас в ближайшие десятилетия. Одновременно с этим офис получился крайне гибким, комфортным как для организации корпоративных процессов, так и неформального общения или отдыха. А навигация при всей своей необычности легко считывается в любой точке даже человеком, впервые попавшим в бизнес-центр».
Производители и поставщики:
Мебель: Vitra, Hay, Ahrend, Actiu, Poltrona Frau, Cattelan Italia, Ditre Italia
Освещение: Lighthouse
Перегородки, двери, изделия на заказ: Syntera
Напольные покрытия: Interface, Bloq, Coswick
Офис компании Cloud: полет в будущее
Фотография © Вячеслав Флеор / предоставлена Синтаксис
Офис компании Cloud: полет в будущее
Фотография © Вячеслав Флеор / предоставлена Синтаксис
Офис компании Cloud: полет в будущее
Фотография © Вячеслав Флеор / предоставлена Синтаксис
Офис компании Cloud: полет в будущее
Фотография © Вячеслав Флеор / предоставлена Синтаксис
Офис компании Cloud: полет в будущее
Фотография © Вячеслав Флеор / предоставлена Синтаксис
Офис компании Cloud: полет в будущее
Фотография © Вячеслав Флеор / предоставлена Синтаксис
Офис компании Cloud: полет в будущее
Фотография © Вячеслав Флеор / предоставлена Синтаксис
Офис компании Cloud: полет в будущее
Фотография © Екатерина Поляшова / предоставлена Синтаксис
Офис компании Cloud: полет в будущее
Фотография © Екатерина Поляшова / предоставлена Синтаксис
Офис компании Cloud: полет в будущее
Фотография © Екатерина Поляшова / предоставлена Синтаксис
Офис компании Cloud: полет в будущее
Фотография © Екатерина Поляшова / предоставлена Синтаксис
Офис компании Cloud: полет в будущее
Фотография © Екатерина Поляшова / предоставлена Синтаксис
Офис компании Cloud: полет в будущее
Фотография © Екатерина Поляшова / предоставлена Синтаксис
Офис компании Cloud: полет в будущее
Фотография © Екатерина Поляшова / предоставлена Синтаксис
Офис компании Cloud: полет в будущее
Фотография © Екатерина Поляшова / предоставлена Синтаксис
Офис компании Cloud: полет в будущее
Фотография © Екатерина Поляшова / предоставлена Синтаксис
Офис компании Cloud: полет в будущее
Фотография © Екатерина Поляшова / предоставлена Синтаксис
Офис компании Cloud: полет в будущее
Фотография © Екатерина Поляшова / предоставлена Синтаксис
Офис компании Cloud: полет в будущее
Фотография © Екатерина Поляшова / предоставлена Синтаксис
Офис компании Cloud: полет в будущее
Фотография © Екатерина Поляшова / предоставлена Синтаксис
Офис компании Cloud: полет в будущее
Фотография © Екатерина Поляшова / предоставлена Синтаксис
Офис компании Cloud: полет в будущее
Фотография © Екатерина Поляшова / предоставлена Синтаксис
Офис компании Cloud: полет в будущее
Фотография © Екатерина Поляшова / предоставлена Синтаксис
Офис компании Cloud: полет в будущее
Фотография © Екатерина Поляшова / предоставлена Синтаксис
Офис компании Cloud: полет в будущее
Фотография © Екатерина Поляшова / предоставлена Синтаксис
Офис компании Cloud: полет в будущее
Фотография © Вячеслав Флеор / предоставлена Синтаксис
Офис компании Cloud: полет в будущее
Фотография © Екатерина Поляшова / предоставлена Синтаксис
Офис компании Cloud: полет в будущее
Фотография © Вячеслав Флеор / предоставлена Синтаксис
Офис компании Cloud: полет в будущее. BIG IDEA
© Синтаксис
Офис компании Cloud: полет в будущее. Аксонометрия 2 этажа
© Синтаксис
Офис компании Cloud: полет в будущее. Аксонометрия 3 этажа
© Синтаксис
Офис компании Cloud: полет в будущее. Аксонометрия 4 этажа
© Синтаксис
Офис компании Cloud: полет в будущее. Аксонометрия 5 этажа
© Синтаксис
Офис компании Cloud: полет в будущее. План 1 этажа
© Синтаксис
Офис компании Cloud: полет в будущее. План 2 этажа
© Синтаксис
Офис компании Cloud: полет в будущее. План 3 этажа
© Синтаксис
Офис компании Cloud: полет в будущее. План 4 этажа
© Синтаксис
Офис компании Cloud: полет в будущее. План 5 этажа
© Синтаксис
Архитекторы – партнеры Архи.ру:
Проект из каталога (случайный выбор)
Постройки и проекты (новые записи):
Новости российской архитектуры:
09.10.2025
Курорт на Каме
09.10.2025
Модель многоуровневой жизни
09.10.2025
Снос Энтузиаста
08.10.2025