RSS
Аэропортовый комплекс «Мирный»
© АБ «Верста»

Аэропортовый комплекс «Мирный»

информация:

  • статус
    проект
  • даты
    05.2021 — 08.2022
  • region=Республика Саха area= address= country_t=Россия city_t=Мирный
    место
    Мирный Республика Саха
  • координаты
    62.545989, 114.087902
  • функция
    Транспортный / аэропорт
  • теги
    send.project
  • площадь застройки
    5 347,6 м2
  • общая площадь
    7 886,5 м2
  • этажность
    3
  • строительный объем
    53 383,8 м3
  • Сблокированное здание служебно-производственного комплекса:
    Строительный объем с галереей: 38 395,0 м3
    Общая площадь: 4 950,0 м2
    Площадь навеса для спецавтотранспорта: 1 731,8 м2
    Площадь застройки: 6 086,0 м2
    Количество этажей: 2
     
    КПП грузового терминала с автовесовой:
    Строительный объем с галереей: 3 117,8 м3
    Общая площадь: 430,5 м2
    Площадь застройки: 513,4 м2
    Количество этажей: 1
     
    Здание грузового терминала:
    Строительный объем с галереей: 12 607,3 м3
    Общая площадь: 1 828,0 м2
    Площадь застройки: 1 540,8 м2
    Количество этажей: 2
     
    Ангарный комплекс:
    Строительный объем с галереей: 37 555,0 м3
    Общая площадь: 5 223,0 м2
    Площадь застройки: 3 224,0 м2
    Количество этажей: 2
Денис Юдин
Россия
Россия

авторский коллектив

ГИП: Илья Исаченко 
Ведущий архитектор: Варвара Ямпольская  
Архитектор: Инна Зубова, Елизавета Гаврилина, Елена Маркова 
Инженер-конструктор: Полина Караковская, Арсен Мануков, Павел Крючков
Инженер-проектировщик технологических решений: Екатерина Белоусова
Ведущий инженер-проектировщик систем теплоснабжения: Ирина Бойко
Ведущий инженер-проектировщик систем вентиляции, кондиционирования и холодоснабжения: Александра Игнатьева, Маленко Павел 
Инженер-проектировщик систем водоснабжения и водоотведения: Кристина Митракова, Анна Суркова
Инженер-проектировщик слаботочных систем: Антон Елисеев, Алексей Плотников
Визуализатор: Булат Хайрутдинов

партнеры, заказчики, смежники

Разработка концепции: Акционерное общество «Проектно-изыскательский и научно исследовательский институт воздушного транспорта «Ленаэропроект» (АО «ПИиНИИ ВТ «Ленаэропроект») 

Заказчик: АК «АЛРОСА»
Аэропортовый комплекс «Мирный»
© АБ «Верста»
Аэропортовый комплекс «Мирный»
© АБ «Верста»

история проекта:

Ранее работали над проектом АО «ПИиНИИ ВТ «Ленаэропроект»

описание:

В настоящее время аэропорт «Мирный» расположен непосредственно на окраине города. В силу своего географического расположения, выполняет важную функцию запасного аэродрома на трансконтинентальных маршрутах, а также на пути из Северной Америки в Азию. Аэропорт обслуживает только внутренние рейсы по России, как регулярные, так и чартерные.
 
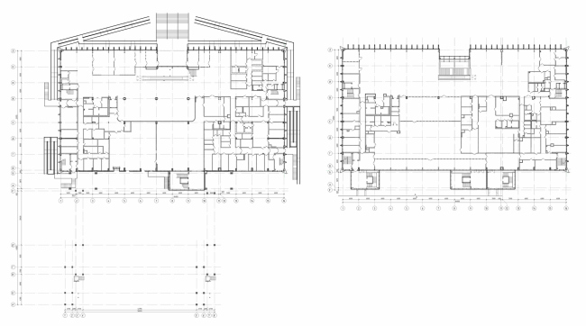
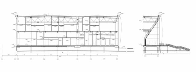
Проект предполагает создание нового аэропортового комплекса, который будет располагаться в 3 км от действующего терминала для обеспечения возможности приема современных воздушных судов и большего пассажиропотока в соответствии с современными требованиями обслуживания авиаперевозок. Пропускная способность аэровокзального комплекса – 300 пассажиров в час.
 
Объемно-планировочное решение аэровокзала сформировано проектно-изыскательским и научно-исследовательским институтом воздушного транспорта «Ленаэропроект» на основе идентичности места: город Мирный своим существованием обязан открытию в 1955 году кимберлитовой трубки «Мир» – месторождением, ставшим вторым коренным месторождением алмазов в Якутии. В проекте были развиты и усовершенствованы решения, основанные на образах, связанных с местной спецификой и наиболее узнаваемыми символами Якутии: мерзлота, бриллианты и уникальные ландшафты.
 
Архитекторы бюро «Верста» работали не только над аэровокзалом, но и над комплексом других административных и обслуживающих корпусов: в проект вошли также сблокированное здание служебно-производственного комплекса, КПП грузового терминала с автовесовой, здание грузового терминала и ангарный комплекс. В процессе работы были усовершенствованы и оптимизированы планировочные решения, а также проработаны интерьеры залов ожидания.
 
В разработке проекта применены BIM-технологии, которые обеспечили полную координацию архитектуры и смежных разделов. 
Аэропортовый комплекс «Мирный»
© АБ «Верста»
Аэропортовый комплекс «Мирный»
© АБ «Верста»
Аэропортовый комплекс «Мирный»
© АБ «Верста»
Аэропортовый комплекс «Мирный»
© АБ «Верста»

Архитекторы – партнеры Архи.ру:

  • Андрей Михайлов
  • Олег Шапиро
  • Георгий Трофимов
  • Станислав Белых
  • Иван Кожин
  • Вера Бутко
  • Антон Надточий
  • Марина Егорова
  • Павел Андреев
  • Дмитрий Сухов
  • Зураб Басария
  • Елена Пучкова
  • Александр Котенков
  • Антон Яр-Скрябин
  • Ерлан Бекмухамедов
  • Сергей Кузнецов
  • Сергей Чобан
  • Александра Кузьмина
  • Евгений Зеленов
  • Сергей Переслегин
  • Михаил Давыдов
  • Александр Самарин
  • Степан Липгарт
  • Сергей Труханов
  • Андрей Асадов
  • Юлиана Княжевская
  • Игорь Членов
  • Мария Ахременкова
  • Екатерина Кузнецова
  • Евгений Подгорнов
  • Борис Воскобойников
  • Олег Мединский
  • Григорий Мустафин
  • Энди Сноу
  • Юлия Тряскина
  • Михаил Канунников
  • Андрей Гнездилов
  • Юлия Солдатенкова
  • Николай Кикава
  • Владимир Плоткин
  • Анастасия Абашева
  • Василий Крапивин
  • Никита Явейн
  • Дмитрий Ликин
  • Всеволод Медведев
  • Константин Ходнев
  • Александр Асадов
  • Александр Скокан
  • Дмитрий Буш
  • Григориос Гавалидис
  • Наталья Сидорова
  • Андрей Романов
  • Николай Переслегин
  • Полина Воеводина
  • Сергей Скуратов
  • Валерий Каняшин
  • Ростислав Цайзер
  • Раис Баишев
  • Сергей Никешкин
  • Виталий Лутц
  • Евгений Новосадюк
  • Владислав Андреев
  • Игорь Шварцман
  • Илья Машков
  • Татьяна Зульхарнеева
  • Наталия Шилова
  • Дмитрий Остроумов
  • Алексей Орлов
  • Юлий Борисов
  • Даниил Лоренц
  • Тимур Абдуллаев
  • Екатерина Абдуллаева
  • Маргарита Авдышева
  • Левон Айрапетов
  • Александр Аношкин
  • Алексей Афоничкин
  • Владислав Бек-Булатов
  • Антон Белов
  • Татьяна Бузулукова
  • Петр Васильев
  • Данило Вукосавлевич
  • Алина Георгиевская
  • Павел Гордеев
  • Илья Гринберг
  • Никита Демидов
  • Никита Дергунов
  • Наталья Жилкина
  • Алексей Зародов
  • Екатерина Зырина
  • Алексей Ильин
  • Дарья Ильина
  • Олег Карлсон
  • Алексей Кибкало
  • Денис Кувшинников
  • Анна Куликова
  • Алексей Курков
  • Данил Куров
  • Мария Кутай
  • Евгений Кутай
  • Иван Кычкин
  • Антон Ладыгин
  • Дмитрий Лапин
  • Борис Левянт
  • Илья Левянт
  • Катерина Левянт
  • Валерий Лукомский
  • Антон Лукомский
  • Екатерина Ляпунова
  • Иса Магомедов
  • Сергей Марков
  • Елена Мерцалова
  • Николай Миловидов
  • Станислав Михаловский
  • Сергей Мичурин
  • Олеся Могилевская
  • Филипп Никандров
  • Мария Николаева
  • Дмитрий Овчаров
  • Сергей Пергаев
  • Виктор Перов
  • Алексей Полищук
  • Роман Пономарёв
  • Валерия Преображенская
  • Виктория Раубо
  • Василий Рыбаков
  • Николай Рыбаков
  • Мария Салех
  • Александр Стариков
  • Илья Уткин
  • Елисей Чакан
  • Евгения Чернышева
  • Бориша Чорович
  • Олег Шурыгин
  • Дмитрий Шурыгин

Проект из каталога (случайный выбор)

Проект здания диспетчерского центра в г. Аксу, Казахстан
Алексей Горяинов, Михаил Крымов, 2010 – 2010
Проект здания диспетчерского центра в г. Аксу, Казахстан

Постройки и проекты (новые записи):

  • Гостиница в Чите
  • ЖК Квартал 64
  • Деловое пространство «ПЛЭЙН»
  • Конкурсный проект ФИЦ / ТПО «Резерв»
  • Porta
  • Детский сад на 200 мест в Жилино-1
  • Архитектурная концепция кластера Ломоносов-2
  • Клубный дом в 1-м Казачьем переулке
  • Частный дом в Ленинградской области

Новости российской архитектуры:

Друзья по крыше
14.05.2026

Друзья по крыше

Евгений Новосадюк, Никита Явейн
На воскресной электричке
14.05.2026

На воскресной электричке

Михаэль Бабаев
Идеалы модернизма
13.05.2026

Идеалы модернизма

Эдуард Моро
Мембрана для мысли: IND
13.05.2026

Мембрана для мысли: IND

Амир Идиатулин