Комплекс апартаментов Саввинская 27 от Level
© ODA, Проектное бюро АПЕКС
Комплекс апартаментов Саввинская 27 от Level
информация:
-
статус
в процессе реализации -
даты
03.2021 — 10.2022 / 05.2022 — 06.2025 -
место
Москва Саввинская набережная, 27 -
координаты
55.730680, 37.557976 -
функция
Жилой / апартаменты длительного проживания -
площадь участка
0,4350 га -
площадь подземная
7464,2 м2 -
общая площадь
22487,2 м2 -
площадь жилая
11697,2 м2 -
высота
25 -
этажность
6 -
строительный объем
103608,7 м3 -
Подземных ярусов: 3
Площадь лотов: 11697,2 м2
Количество лотов: 61 -
кол-во машиномест
91 -
другие объекты
2024Благоустройство Савинской набережной

Эран Чен
Eran Chen / Россия
Светлана Леонтюк
Svetlana Leontuk / РоссияODA
ODA / СШАПроектное бюро АПЕКС
APEX Project Bureau / Россияавторский коллектив
Авторы концепции – ODA: Eran Chen AIA, Michael Unsicker AIA, Keith Sagliocca, Michelle Le, Mohammad Askarzadeh
Генеральный проектировщик – APEX: ГАП – Светлана Леонтюк; руководители группы архитекторов: Елизавета Черникевич, Наталья Стоялова; ведущие архитекторы: Мария Щукина, Денис Гридасов-Новиков; архитекторы: Ангелина Каминская, Екатерина Филонова, Василий Горохов
Генеральный проектировщик – APEX: ГАП – Светлана Леонтюк; руководители группы архитекторов: Елизавета Черникевич, Наталья Стоялова; ведущие архитекторы: Мария Щукина, Денис Гридасов-Новиков; архитекторы: Ангелина Каминская, Екатерина Филонова, Василий Горохов
партнеры, заказчики, смежники
Заказчик: Level Group
Комплекс апартаментов Саввинская 27 от Level. Вверху: концепция ODA; внизу, слева направо концепции от бюро de Architekten Cie, Arch(e)type, UNK
© ODA, Проектное бюро АПЕКС
Архи.ру об этом объекте:
10.04.2025
Юлия Тарабарина. Механика цветения стеклянного леса
Комплекс апартаментов Саввинская 27 от Level, строительство которого сейчас уже подходит к концу на вытянутом вдоль реки протяженном участке рядом с Новодевичьим монастырем, – обладает очень смелой для Москвы пластикой. Визуально он похож на результат работы стеклодува в соавторстве со скульптором, этакие стеклянно-бетонные джунгли, ритмизованные, но растущие энергично и живописно. Воплотить такую идею – не так-то просто. Рассказываем о концепции ODA и о методах, использованных архитекторами компании АПЕКС для ее реализации. Показываем узлы.
Участок, на котором сейчас строится клубный дом Саввинская 27 от Level для премиального жилья прямо-таки находка. Он вытянут вдоль набережной с видом на реку, а торцом выходит к Новодевичьему проезду, где сразу же начинается знаменитый парк с пруда... читать дальшеКомплекс апартаментов Саввинская 27 от Level
© ODA, Проектное бюро АПЕКС
история проекта:
Концепция ODA победила в конкурсе, затем предложение APEX на адаптацию и ПД победило в тендере
описание:
Инфорамция от Москомархитектуры. 07.09.2022
Москомархитектура согласовала комплекс на Саввинской набережной, 27 в районе Хамовники. Основные элементы фасадов можно назвать «лепестками» или чашами, которые отсылают к силуэту Новодевичьего монастыря, а также подчеркивают близость к реке и природе. Об этом рассказал главный архитектор Москвы Сергей Кузнецов.Концепция комплекса на Саввинской набережной разработана бюро ODA, в качестве генерального проектировщика выступает бюро APEX. Проект отличает уникальная ритмика балконов и эркеров, контраст стекла и меди, игра света в панорамных окнах.
«Фасады представляют собой сочетание стекла, теплого металла и светлого материала – камня или фибробетона. Причудливые формы-«чаши» – аллюзия к золоту куполов Новодевичьего монастыря и к его мягким, полукруглым очертаниям. Их бионические формы также напоминают лепестки растений, будто растущих из воды. Проект прошел экспертизу и получил положительное заключение Москомархитектуры», – отметил Сергей Кузнецов.
Для отделки используют металлические кассеты с декоративным покрытием, крупноформатные элементы из стеклофибробетона. Общая площадь шестиэтажного комплекса составит 22 400 кв.м.
Для будущих жильцов предусмотрен спа-комплекс с 25-метровым бассейном, на первом этаже разместится библиотека, бизнес-лаундж с отдельными переговорными, зимний сад, а также ресторан с открытой террасой. Кровлю планируется сделать эксплуатируемой. В подземном уровне предусмотрен паркинг.
В проект также вписана сохраненная стена завода «Борец» с изображением писателя Германа Гессе. Популярный стрит-арт – одна из первых работ всемирно известного уличного художника Алешандре Фарту. Компания Level Group совместно с реставраторами, строителями и проектировщиками разработали специальную технологию по сохранению и переносу на новое место фрагмента стены.
Комплекс апартаментов Саввинская 27 от Level
© ODA, Проектное бюро АПЕКС
Комплекс апартаментов Саввинская 27 от Level
© ODA, Проектное бюро АПЕКС
Комплекс апартаментов Саввинская 27 от Level
© ODA, Проектное бюро АПЕКС / предоставлено пресс-службой Москомархитектуры
Комплекс апартаментов Саввинская 27 от Level
© ODA, Проектное бюро АПЕКС
Комплекс апартаментов Саввинская 27 от Level
© ODA, Проектное бюро АПЕКС / предоставлено пресс-службой Москомархитектуры
Комплекс апартаментов Саввинская 27 от Level. Узел подшивки эркера
© ODA, Проектное бюро АПЕКС
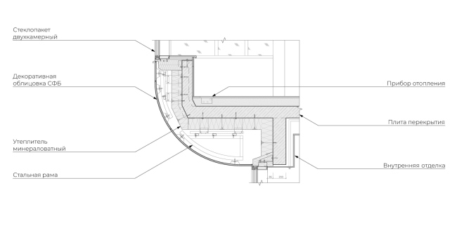
Комплекс апартаментов Саввинская 27 от Level. Узел стыковки балкона и эркера
© ODA, Проектное бюро АПЕКС
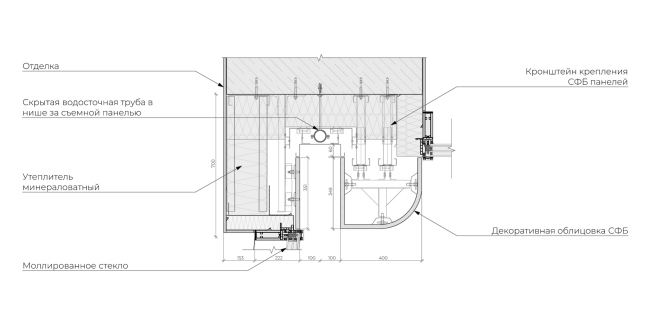
Комплекс апартаментов Саввинская 27 от Level. Узел водостока
© ODA, Проектное бюро АПЕКС
Комплекс апартаментов Саввинская 27 от Level. План подземного этажа
© ODA, Проектное бюро АПЕКС
Комплекс апартаментов Саввинская 27 от Level. План 1 этажа
© ODA, Проектное бюро АПЕКС
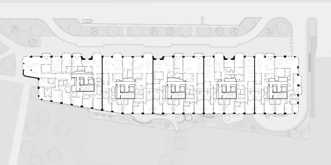
Комплекс апартаментов Саввинская 27 от Level. План жилого этажа
© ODA, Проектное бюро АПЕКС
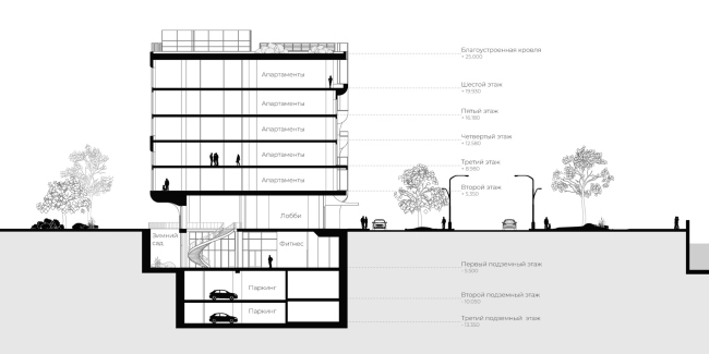
Комплекс апартаментов Саввинская 27 от Level. Поперечный разрез
© ODA, Проектное бюро АПЕКС
Архитекторы – партнеры Архи.ру:
Проект из каталога (случайный выбор)

Алексей Горяинов, Михаил Крымов, 2015 – 2015
Концепция реконструкции спортивно-оздоровительного комплекса «PRO-Здоровье»
Постройки и проекты (новые записи):
Новости российской архитектуры:
05.10.2025
Главный экспонат
04.10.2025
Архитектура дипломатии
Евгений Леонов02.10.2025