RSS
Загородный дом у воды
© METAarchitects

Загородный дом у воды

информация:

  • статус
    реализовано
  • даты
    2015 / 20152020
  • region= area= address= country_t=Россия city_t=Всеволожск
    место
    Всеволожск
  • функция
    Жилой / индивидуальный жилой дом
  • общая площадь
    493 м2
  • этажность
    2
Россия

авторский коллектив

​Автор и исполнитель: А. Сарафанов
Визуализация: Д. Рудников 

Загородный дом у воды
© METAarchitects
Загородный дом у воды
© METAarchitects

описание:

Сложность здесь заключалась не столько в близости водоёма, сколько в характеристиках рельефа. Перед нами стояла задача спроектировать дом, который должен был разместиться на склоне

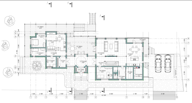
Главный фасад дома обратили в сторону водоёма. В этом же направлении разместили две террасы, открытый внутренний дворик и береговая линия, к которым плавно опускается лестница. Терраса – консольного типа, в самой дальней точке она вынесена от дома на 4 метра, что призвано создать впечатление близости водоёма.

С обратной стороны дома расположили навес для стоянки автомобилей и центральный вход.

Войдя в дом, мы попадаем в прихожую, откуда через остекленный фасад сразу же открывается вид на водоём. Фасад также служит в качестве прохода между основной и гостевой частью дома.

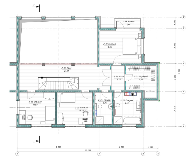
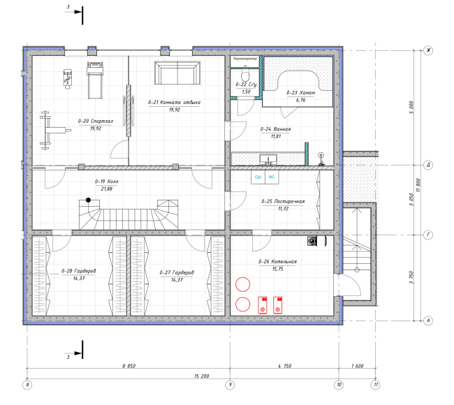
Дом имеет два этажа, не считая цокольного. В цоколь вынесены все технические помещения, гардероб и кладовые. Гостиная, кабинет и кухня расположились на первом этаже, спальные комнаты – на втором. Этажи связаны между собой открытым лестничным пролётом.
Загородный дом у воды
© METAarchitects
Загородный дом у воды
© METAarchitects
Загородный дом у воды
© METAarchitects
Загородный дом у воды
© METAarchitects
Загородный дом у воды
© METAarchitects
Загородный дом у воды
© METAarchitects
Загородный дом у воды
© METAarchitects
Загородный дом у воды
© METAarchitects
Загородный дом у воды
© METAarchitects
Загородный дом у воды
© METAarchitects
Загородный дом у воды
© METAarchitects
Загородный дом у воды
© METAarchitects
Конструкция навеса. Загородный дом у воды
© METAarchitects
Возведение стен каркаса. Загородный дом у воды
© METAarchitects
Армирование стен цоколя. Загородный дом у воды
© METAarchitects
Отделка фасада. Загородный дом у воды
© METAarchitects
Загородный дом у воды
© METAarchitects
Загородный дом у воды
© METAarchitects
Загородный дом у воды
© METAarchitects
Загородный дом у воды
© METAarchitects
План 1-го этажа. Загородный дом у воды
© METAarchitects
План 2-го этажа. Загородный дом у воды
© METAarchitects
План цоколя. Загородный дом у воды
© METAarchitects
Разрез 1-1. Загородный дом у воды
© METAarchitects

Архитекторы – партнеры Архи.ру:

  • Михаил Канунников
  • Владимир Плоткин
  • Анастасия Абашева
  • Иван Кожин
  • Елена Пучкова
  • Дмитрий Буш
  • Григорий Мустафин
  • Сергей Никешкин
  • Николай Кикава
  • Наталия Шилова
  • Евгений Зеленов
  • Александр Котенков
  • Валерий Каняшин
  • Дмитрий Сухов
  • Александра Кузьмина
  • Андрей Асадов
  • Михаил Давыдов
  • Александр Самарин
  • Павел Андреев
  • Всеволод Медведев
  • Зураб Басария
  • Игорь Шварцман
  • Даниил Лоренц
  • Евгений Подгорнов
  • Андрей Гнездилов
  • Юлия Солдатенкова
  • Екатерина Кузнецова
  • Антон Яр-Скрябин
  • Татьяна Зульхарнеева
  • Никита Явейн
  • Дмитрий Остроумов
  • Василий Крапивин
  • Марина Егорова
  • Андрей Романов
  • Вера Бутко
  • Алексей Орлов
  • Степан Липгарт
  • Константин Ходнев
  • Андрей Михайлов
  • Александр Асадов
  • Виталий Лутц
  • Юлия Тряскина
  • Раис Баишев
  • Николай Переслегин
  • Владислав Андреев
  • Георгий Трофимов
  • Олег Шапиро
  • Сергей Труханов
  • Сергей Скуратов
  • Наталья Сидорова
  • Дмитрий Ликин
  • Евгений Новосадюк
  • Григориос Гавалидис
  • Ерлан Бекмухамедов
  • Юлий Борисов
  • Антон Надточий
  • Юлиана Княжевская
  • Александр Скокан
  • Полина Воеводина
  • Илья Машков
  • Станислав Белых
  • Сергей Чобан
  • Энди Сноу
  • Олег Мединский
  • Ростислав Цайзер
  • Игорь Членов
  • Сергей Переслегин
  • Сергей Кузнецов
  • Тимур Абдуллаев
  • Екатерина Абдуллаева
  • Маргарита Авдышева
  • Левон Айрапетов
  • Александр Аношкин
  • Алексей Афоничкин
  • Владислав Бек-Булатов
  • Антон Белов
  • Татьяна Бузулукова
  • Петр Васильев
  • Данило Вукосавлевич
  • Алина Георгиевская
  • Павел Гордеев
  • Илья Гринберг
  • Никита Демидов
  • Никита Дергунов
  • Наталья Жилкина
  • Алексей Зародов
  • Екатерина Зырина
  • Алексей Ильин
  • Дарья Ильина
  • Олег Карлсон
  • Алексей Кибкало
  • Денис Кувшинников
  • Анна Куликова
  • Алексей Курков
  • Данил Куров
  • Мария Кутай
  • Евгений Кутай
  • Иван Кычкин
  • Антон Ладыгин
  • Дмитрий Лапин
  • Илья Левянт
  • Катерина Левянт
  • Борис Левянт
  • Валерий Лукомский
  • Антон Лукомский
  • Екатерина Ляпунова
  • Сергей Марков
  • Елена Мерцалова
  • Николай Миловидов
  • Станислав Михаловский
  • Сергей Мичурин
  • Олеся Могилевская
  • Мария Николаева
  • Дмитрий Овчаров
  • Сергей Пергаев
  • Виктор Перов
  • Алексей Полищук
  • Роман Пономарёв
  • Валерия Преображенская
  • Виктория Раубо
  • Василий Рыбаков
  • Николай Рыбаков
  • Мария Салех
  • Александр Стариков
  • Илья Уткин
  • Елисей Чакан
  • Бориша Чорович
  • Олег Шурыгин
  • Дмитрий Шурыгин

Проект из каталога (случайный выбор)

Коттеджный поселок «Барвиха-village»
Александр Асадов, Андрей Асадов, 2008 – 2008
Коттеджный поселок «Барвиха-village»

Постройки и проекты (новые записи):

  • ЖК Ленинский проспект 59
  • MIDITI
  • Дом Спорта
  • Ежон Алтай
  • Freeform Home Design Challenge
  • Навесы Ленинградского вокзала
  • МФК Лотус
  • Общежития Новосибирского государственного университета (НГУ)
  • Детский сад в квартале «СЕТ»

Новости российской архитектуры:

Жизнерадостный декаданс
14.04.2026

Жизнерадостный декаданс

Валерий Лизунов, Екатерина Агеева, Елизавета Трушина
Я в домике
14.04.2026

Я в домике

Юлий Борисов
Под знаком красного
14.04.2026

Под знаком красного

Дмитрий Овчаров, Елена Мерцалова
Приближение таинства
14.04.2026

Приближение таинства

Иван Земляков
Легкая степень брутализма