RSS
Апартаменты на Дмитровском шоссе © АБ «А-ГА»

Апартаменты на Дмитровском шоссе

информация:

  • статус
    проект
  • даты
    2016
  • region= area= address=Дмитровское ш. мкр.9, СВАО пересечение Долгопрудненского шоссе и с Пр.проездом 239 country_t=Россия city_t=Москва
    место
    Москва Дмитровское ш. мкр.9, СВАО пересечение Долгопрудненского шоссе и с Пр.проездом 239
  • функция
    Жилой / жилой комплекс
  • площадь участка
    0,6 га
Иван Рубежанский
A-GA / Россия
ATOM ga / Россия
Mosproekt / Россия

авторский коллектив

ОАО «Моспроект», мастерская №22 ( Стадии П, Р, Авторский надзор)
Е.Л. Серов – начальник мастерской №22, М.Б. Ерохин – ГАП, Рубежанский И.И. – архитектор, В.Д. Побегуц – архитектор, Д.А. Емельянов – ГИП

Апартаменты на Дмитровском шоссе © А-ГА
Апартаменты на Дмитровском шоссе © АБ «А-ГА»

описание:

Участок под строительство здания апартаментов располагается в северной части города Москвы, за пределами МКАД, в новом районе «внутригородское муниципальное образование Северное» по Дмитровскому шоссе, мкр.9, СВАО.

C севера от земельного участка расположен жилой микрорайон, с запада – здание наземной открытой 5-ти этажной автостоянки, с юга – проезд к Долгопрудненскому шоссе, с востока эстакада Дмитровского шоссе. Перепад рельефа по участку с севера на юг около 1 м. Участок свободен от строений и зеленых насаждений. Геологические и гидрогеологические условия приняты по результатам инженерных изысканий.

Въезд на территорию запроектирован с 2-х сторон: проезда к Долгопрудненскому шоссе и с Пр.проезда 239, выезд – в сторону Пр.проезда 239. Вокруг здания предусмотрен пожарный объезд. Обеспечено необходимое количество наземных парковочных мест – 44 м/м (по ГПЗУ не менее 42 м/м), в том числе, 3 м/места для парковки инвалидов. Предусмотрен круговой пожарный проезд шириной не менее 4,2 м.

Здание сориентировано таким образом, чтобы обеспечить все номера хорошим видом и освещенностью.

Главный вход в здание апартаментов предусмотрен со стороны внутреннего двора. Одноэтажная, стилобатная часть с помещениями кафе расположена вдоль Долгопрудненского шоссе, создавая защитный экран для внутренней (дворовой) зоны участка. Загрузка кафе и помещений торговли осуществляется со стороны въезда на территорию гостиницы на максимальном расстоянии от окон жилых номеров.
По периметру участка вдоль пожарного проезда спланирована наземная парковка. Помимо застройки, проездов и тротуаров имеется территория под зеленые насаждения. В составе мероприятий по благоустройству территории предполагается разбивка газонов сцветочным оформлением и высадка кустов.

Для удобного пешеходного сообщения в здании на первом этаже предусмотрены арочные проходы. Предусмотрены мероприятия, обеспечивающие ориентацию и безопасное передвижение на территории объекта инвалидов и маломобильных групп населения.

Недалеко от участка на дублере Дмитровского шоссе находятся остановки общественного транспорта. На противоположную сторону шоссе можно попасть по подземному пешеходному переходу, расположенному в 50 метрах с восточной стороны нашего участка.

В соответствии с ГПЗУ и Техническим заданием данным проектом предусматривается строительство 11-ти этажного здания с подземным этажом. Основной объем представляет собой 10-ти этажный Г-образный корпус жилой части гостиницы, расположенный на одноэтажном П-образном стилобате, в котором размещены помещения общего пользования.

Первый этаж расположен на уровне земли и открыт для города, имеет панорамное остекление.

Для эвакуации людей жилая 10–ти этажная часть здания имеет две незадымляемые лестницы, а также лифт для пожарных подразделений. Для эвакуации подземного этажа используются три лестницы с выходом непосредственно наружу. Связь между вестибюлем и жилыми этажами осуществляется тремя пассажирскими лифтами.

Предусмотрена возможность сообщения жилых этажей и кафе по лестнице со второго
этажа.

Связь между первым этажом и подвалом, где располагаются служебные и складские
помещения кафе и магазина, осуществляется двумя технологическими лестницами и
тремя подъемниками.

В здании гостиницы выполнено требование норм о доступности для
маломобильных групп населения в соответствии с техническим заданием и обеспечение
эвакуации маломобильных групп граждан в зоны безопасности.

Принимая во внимание размещение здания на свободном участке в окружении
невыразительной застройки, состоящей из бетонной многоуровневой автостоянки,
панельных 17-ти этажных жилых домов, двух автомагистралей, а также ограничения
высотной отметки – фасады проектируемого здания выполнены таким образом, чтобы
избежать привязки к окружению. Выбранный архитектурный стиль – внемасштабный с
элементом хаотичности и пестроты (лоскутности) и контраста. Решение фасадов в
сочетании со спокойным лаконичным объемно-планировочным решением создают
образное скульптурное сооружение, которое играет роль форпоста расположенного
следом жилого микрорайона и начала Долгопрудненского шоссе.
 
Апартаменты на Дмитровском шоссе. Фасад © АБ «А-ГА»
Апартаменты на Дмитровском шоссе. Фасад © АБ «А-ГА»
Апартаменты на Дмитровском шоссе. Фасад © АБ «А-ГА»
Апартаменты на Дмитровском шоссе. Фасад © АБ «А-ГА»
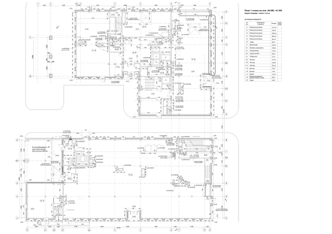
Апартаменты на Дмитровском шоссе. План 1 этажа © АБ «А-ГА»
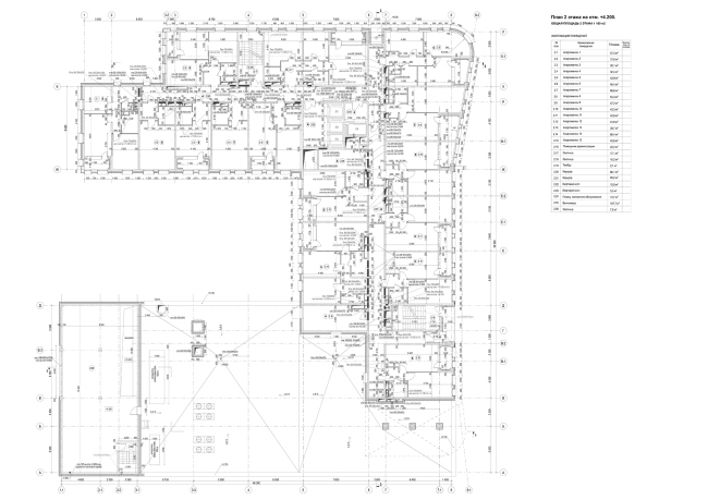
Апартаменты на Дмитровском шоссе. План 2 этажа © АБ «А-ГА»
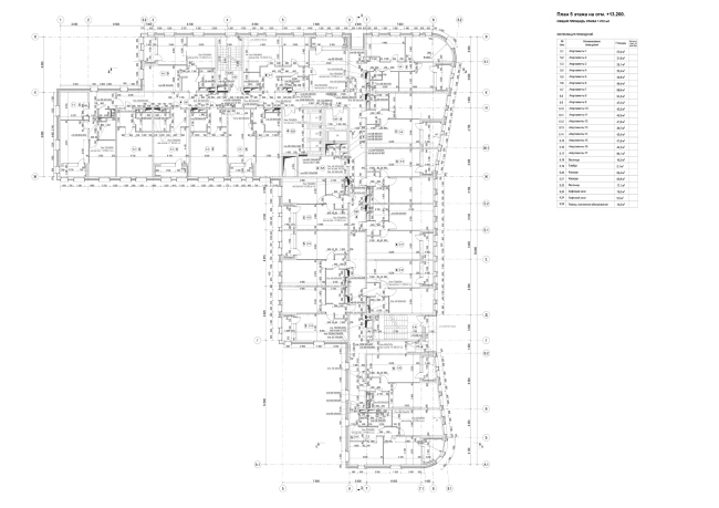
Апартаменты на Дмитровском шоссе. План типового этажа © АБ «А-ГА»
Апартаменты на Дмитровском шоссе. Разрез © АБ «А-ГА»
Апартаменты на Дмитровском шоссе. Разрез 2 © АБ «А-ГА»
Апартаменты на Дмитровском шоссе. Генплан © АБ «А-ГА»

Архитекторы – партнеры Архи.ру:

  • Андрей Романов
  • Константин Ходнев
  • Сергей Чобан
  • Антон Лукомский
  • Дмитрий Буш
  • Всеволод Медведев
  • Анастасия Абашева
  • Евгений Новосадюк
  • Сергей Переслегин
  • Александр Самарин
  • Евгений Подгорнов
  • Анна Иванова
  • Владимир Плоткин
  • Иван Кожин
  • Николай Кикава
  • Степан Липгарт
  • Николай Переслегин
  • Энди Сноу
  • Антон Яр-Скрябин
  • Татьяна Зульхарнеева
  • Василий Крапивин
  • Андрей Асадов
  • Никита Явейн
  • Алексей Орлов
  • Михаил Давыдов
  • Роман Леонидов
  • Наталия Шилова
  • Павел Андреев
  • Александра Кузьмина
  • Полина Воеводина
  • Сергей Труханов
  • Михаил Канунников
  • Алексей Гинзбург
  • Наталья Сидорова
  • Игорь Членов
  • Андрей Гнездилов
  • Дмитрий Сухов
  • Андрей Чуйков
  • Олег Шапиро
  • Сергей Кузнецов
  • Марина Егорова
  • Андрей Михайлов
  • Евгений Зеленов
  • Владислав Андреев
  • Зураб Басария
  • Олег Мединский
  • Григорий Мустафин
  • Валерий Каняшин
  • Екатерина Кузнецова
  • Сергей Скуратов
  • Сергей Никешкин
  • Григориос Гавалидис
  • Илья Машков
  • Георгий Трофимов
  • Станислав Белых
  • Александр Скокан
  • Антон Надточий
  • Елена Пучкова
  • Игорь Шварцман
  • Александр Котенков
  • Валерий Лукомский
  • Дмитрий Остроумов
  • Ерлан Бекмухамедов
  • Виталий Лутц
  • Александр Асадов
  • Юлий Борисов
  • Татьяна Гук
  • Даниил Лоренц
  • Ростислав Цайзер
  • Юлия Тряскина
  • Юлия Солдатенкова
  • Дмитрий Ликин
  • Вера Бутко
  • Раис Баишев
  • Тимур Абдуллаев
  • Екатерина Абдуллаева
  • Маргарита Авдышева
  • Левон Айрапетов
  • Александр Аношкин
  • Алексей Афоничкин
  • Владислав Бек-Булатов
  • Антон Белов
  • Александр Бровкин
  • Татьяна Бузулукова
  • Петр Васильев
  • Алина Георгиевская
  • Павел Гордеев
  • Илья Гринберг
  • Никита Демидов
  • Никита Дергунов
  • Наталья Жилкина
  • Алексей Зародов
  • Екатерина Зырина
  • Алексей Ильин
  • Дарья Ильина
  • Олег Карлсон
  • Алексей Кибкало
  • Анна Куликова
  • Алексей Курков
  • Евгений Кутай
  • Мария Кутай
  • Антон Ладыгин
  • Дмитрий Лапин
  • Борис Левянт
  • Екатерина Ляпунова
  • Николай Макаров
  • Сергей Марков
  • Станислав Михаловский
  • Олеся Могилевская
  • Мария Николаева
  • Виктор Перов
  • Алексей Полищук
  • Роман Пономарёв
  • Валерия Преображенская
  • Виктория Раубо
  • Василий Рыбаков
  • Мария Салех
  • Александр Стариков
  • Илья Уткин
  • Дмитрий Шурыгин
  • Олег Шурыгин

Проект из каталога (случайный выбор)

Жилой квартал  R1 в поселке Рублёво-Архангельское
Игорь Шварцман, Сергей Киселев, 2008 – 2009
Жилой квартал R1 в поселке Рублёво-Архангельское

Постройки и проекты (новые записи):

  • Вторая ось
  • Бизнес-центр на улице Лужники
  • Концепция проекта храмового комплекса в Куркино, Москва
  • Пять часовен
  • Концепция экспозиционного проекта «Русский логос» в культурно-просветительском центре «Башня»
  • Музей Царской семьи на станции Дно Псковской области
  • Новый облик кампуса РАНХиГС, конкурсный проект
  • Погодинская
  • ЖК Капранова, 3

Новости российской архитектуры:

На берегу
29.12.2025

На берегу

Андрей Анисимов
Медийность как стиль
28.12.2025

Медийность как стиль

Влад Сергеев
Тонкая настройка
27.12.2025

Тонкая настройка

Яна Сушкова
Яркое, народное
26.12.2025

Яркое, народное

Дмитрий Ликин, Олег Шапиро