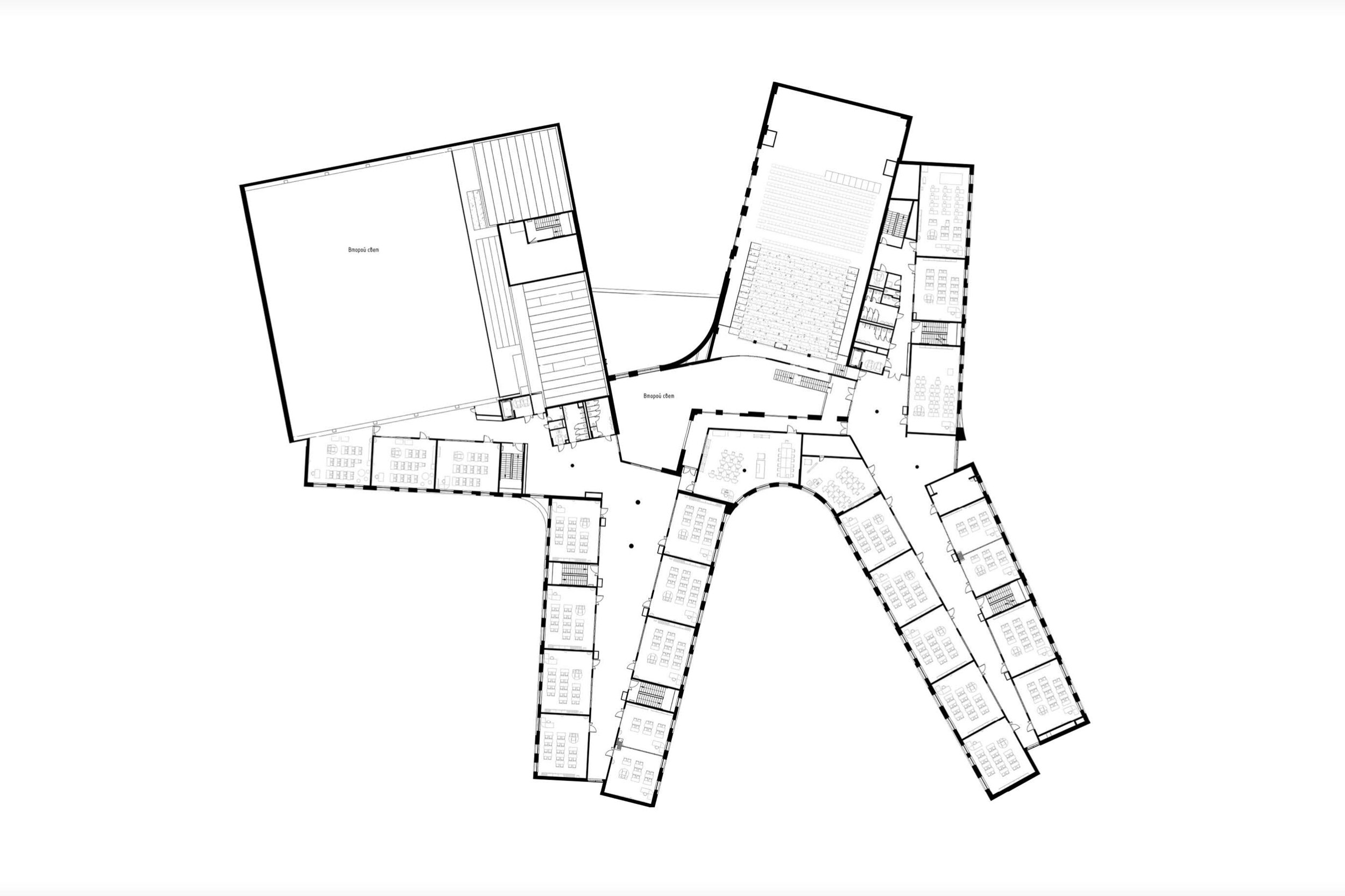
Образовательный комплекс в составе ЖК «Символ»
© ATRIUM / предоставлено пресс-службой Москомархитектуры
Образовательный комплекс в составе ЖК «Символ»
информация:
-
статус
-
даты
2016 — 2017 -
место
Москва г. Москва, ул. Золоторожский вал, 11 -
координаты
55.750328, 37.701551 -
функция
Образование и наука / Школа -
площадь участка
2,31 га -
площадь застройки
9737 м2 -
площадь подземная
799 м2 -
общая площадь
17892 м2 -
высота
+20.000 -
этажность
4 -
строительный объем
88332 м3 -
другие объекты
2020Детский сад на Золоторожском Валу2019Жилой комплекс «Символ» (очередь 1б)2020Жилой комплекс «Символ» (очередь 2А)

Антон Надточий
Anton Nadtochiy / Россия
Вера Бутко
Vera Butko / РоссияATRIUM
ATRIUM / Россияавторский коллектив
А. Надточий, В. Бутко, П. Алимов, А. Сорокин, А. Шапиро
награды:
- Номинант Архитектурной премии Москвы 2021
Атриум. Школа в ЖК «Символ»
© ATRIUM
Архи.ру об этом объекте:
06.06.2022
Юлия Тарабарина. Сергей Надточий: «В своем исследовании мы формулируем, какими качествами и характеристиками должны обладать современные образовательные пространства, а самое главное – как они создаются»
Недавно АБ ATRIUM анонсировало почти завершенное исследование, посвященное форматам проектирования современных образовательных пространств. Говорим с руководителем проекта Сергеем Надточим о целях, задачах, специфике и структуре будущей книги, в которой порядка 300 страниц.
Архи.ру: Вы руководитель исследования? Кто ваши соавторы? Сергей Надточий, ATRIUM: Да, я координирую этот проект уже около двух лет, но у этой книги много авторов. Это не просто традиционное исследование: мы постарались взглянуть на проблему прежд... читать дальшедругие тексты Архи.ру:
11.05.2017
Екатерина Шалина. На зеленом перекрестке
Библиотека. Школа в ЖК «Символ»
© ATRIUM
Образовательный комплекс в составе ЖК «Символ»
© ATRIUM
Образовательный комплекс в составе ЖК «Символ»
© ATRIUM
Образовательный комплекс в составе ЖК «Символ»
© ATRIUM
Образовательный комплекс в составе ЖК «Символ»
© ATRIUM / предоставлено пресс-службой Москомархитектуры
Образовательный комплекс в составе ЖК «Символ»
© ATRIUM
Образовательный комплекс в составе ЖК «Символ»
© ATRIUM
Образовательный комплекс в составе ЖК «Символ»
© ATRIUM
Образовательный комплекс в составе ЖК «Символ»
© ATRIUM
Образовательный комплекс в составе ЖК «Символ»
© ATRIUM
Архитекторы – партнеры Архи.ру:
Проект из каталога (случайный выбор)
Постройки и проекты (новые записи):
Новости российской архитектуры:
09.10.2025
Снос Энтузиаста
08.10.2025
Истина в муке
08.10.2025
Гнезда в Приморье
Алексей Полищук08.10.2025