Терминал Eurostar UK на Центральном вокзале Амстердама
Фото © Marc Goodwin
Терминал Eurostar UK на Центральном вокзале Амстердама
/ Eurostar UK Terminal at the Amsterdam Central Station
информация:
-
статус
реализовано -
даты
— 02.2025 -
место
Нидерланды, Амстердам -
координаты
52.378693, 4.901042 -
функция
Транспортный / пассажирский терминал -
теги
Подземные пространства, Свет в архитектуре, Потолок -
общая площадь
2 300 м2

Superimpose Architecture /
Superimpose Architecture / Нидерланды, КитайZJA Architects & Engineers /
ZJA Architects & Engineers / НидерландыТерминал Eurostar UK на Центральном вокзале Амстердама
Фото © Marc Goodwin
Архи.ру об этом объекте:
17.07.2025
Нина Фролова. Светлое подземелье
На Центральном вокзале в Амстердаме открылся новый терминал для пассажиров, отправляющихся в Лондон поездами Eurostar. Авторы проекта – ZJA Architects & Engineers и Superimpose Architecture.
читать дальшеТерминал Eurostar UK на Центральном вокзале Амстердама
Фото © Marc Goodwin
Терминал Eurostar UK на Центральном вокзале Амстердама
Фото © Marc Goodwin
Терминал Eurostar UK на Центральном вокзале Амстердама
Фото © Marc Goodwin
Терминал Eurostar UK на Центральном вокзале Амстердама
Фото © Marc Goodwin
Терминал Eurostar UK на Центральном вокзале Амстердама
Фото © Marc Goodwin
Терминал Eurostar UK на Центральном вокзале Амстердама
Фото © Marc Goodwin
Терминал Eurostar UK на Центральном вокзале Амстердама
Фото © Marc Goodwin
Терминал Eurostar UK на Центральном вокзале Амстердама
Фото © Marc Goodwin
Терминал Eurostar UK на Центральном вокзале Амстердама
Фото © Marc Goodwin
Терминал Eurostar UK на Центральном вокзале Амстердама
Фото © Marc Goodwin
Терминал Eurostar UK на Центральном вокзале Амстердама
Фото © Marc Goodwin
Терминал Eurostar UK на Центральном вокзале Амстердама
Фото © Marc Goodwin
Терминал Eurostar UK на Центральном вокзале Амстердама
Фото © Marc Goodwin
Терминал Eurostar UK на Центральном вокзале Амстердама
Фото © Marc Goodwin
Терминал Eurostar UK на Центральном вокзале Амстердама
Фото © Marc Goodwin
Терминал Eurostar UK на Центральном вокзале Амстердама
Фото © Marc Goodwin
Терминал Eurostar UK на Центральном вокзале Амстердама
Фото © Marc Goodwin
Терминал Eurostar UK на Центральном вокзале Амстердама
Фото © ZJA Architects & Engineers
Терминал Eurostar UK на Центральном вокзале Амстердама
Фото © ZJA Architects & Engineers
Терминал Eurostar UK на Центральном вокзале Амстердама
Фото © ZJA Architects & Engineers
Терминал Eurostar UK на Центральном вокзале Амстердама
Фото © ZJA Architects & Engineers
Терминал Eurostar UK на Центральном вокзале Амстердама
Фото © ZJA Architects & Engineers
Терминал Eurostar UK на Центральном вокзале Амстердама
Фото © Marc Goodwin
Терминал Eurostar UK на Центральном вокзале Амстердама
Фото © Marc Goodwin
Терминал Eurostar UK на Центральном вокзале Амстердама
Фото © ZJA Architects & Engineers
Терминал Eurostar UK на Центральном вокзале Амстердама
Фото © Marc Goodwin
Терминал Eurostar UK на Центральном вокзале Амстердама
Фото © Marc Goodwin
Терминал Eurostar UK на Центральном вокзале Амстердама
Фото © Marc Goodwin
Терминал Eurostar UK на Центральном вокзале Амстердама
Фото © Marc Goodwin
Терминал Eurostar UK на Центральном вокзале Амстердама
Фото © Marc Goodwin
Терминал Eurostar UK на Центральном вокзале Амстердама
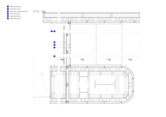
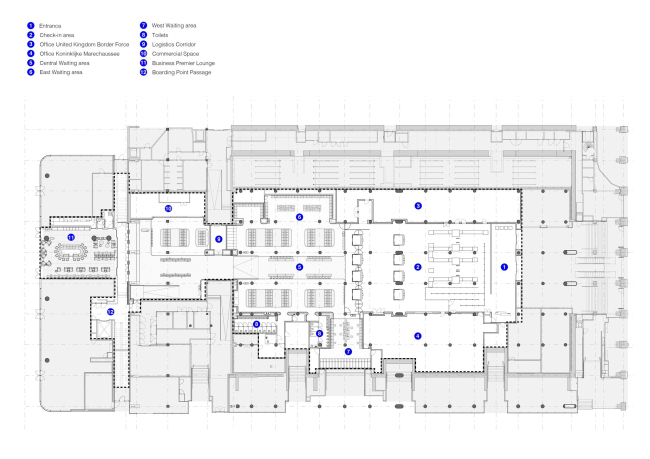
© Superimpose Architecture + ZJA Architects & Engineers
Терминал Eurostar UK на Центральном вокзале Амстердама
© ZJA Architects & Engineers
Терминал Eurostar UK на Центральном вокзале Амстердама
© ZJA Architects & Engineers
Терминал Eurostar UK на Центральном вокзале Амстердама
© ZJA Architects & Engineers
Терминал Eurostar UK на Центральном вокзале Амстердама
© Superimpose Architecture + ZJA Architects & Engineers
Терминал Eurostar UK на Центральном вокзале Амстердама
© Superimpose Architecture + ZJA Architects & Engineers
Терминал Eurostar UK на Центральном вокзале Амстердама
© Superimpose Architecture + ZJA Architects & Engineers
Терминал Eurostar UK на Центральном вокзале Амстердама
© Superimpose Architecture + ZJA Architects & Engineers
Терминал Eurostar UK на Центральном вокзале Амстердама
© Superimpose Architecture + ZJA Architects & Engineers
Терминал Eurostar UK на Центральном вокзале Амстердама
© Superimpose Architecture + ZJA Architects & Engineers
Терминал Eurostar UK на Центральном вокзале Амстердама
© Superimpose Architecture + ZJA Architects & Engineers
Терминал Eurostar UK на Центральном вокзале Амстердама
© Superimpose Architecture + ZJA Architects & Engineers
Терминал Eurostar UK на Центральном вокзале Амстердама
© Superimpose Architecture + ZJA Architects & Engineers
Терминал Eurostar UK на Центральном вокзале Амстердама
© Superimpose Architecture + ZJA Architects & Engineers
Избранные архитекторы:
Проект из каталога (случайный выбор)
Избранные постройки:
Зарубежные новости
26.09.2025
Бумеранг на скалах
25.09.2025
Архитектурная «дипломатия»
24.09.2025
Дыхание банковского дела
23.09.2025
Пещеры и каньоны
19.09.2025