Описание предоставлено архитекторами
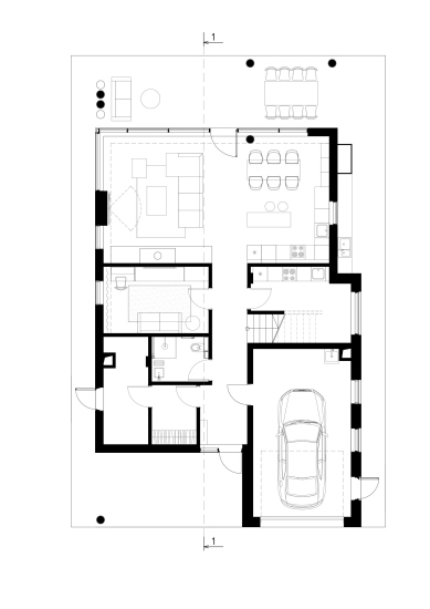
Основой композиции дома являются два простых прямоугольных объема: светлый, но массивный второй этаж, который консольно нависает над темным и одновременно более прозрачным первым. Лаконичные фасады дополняют стеклянные витражи, а также контрастные линии «пергол» балкона и массивных опор, на которых держится консольный выступ. На первом этаже располагаются технические помещения, кабинет, кухня и гостиная с камином, из которой открывается вид на небольшую террасу и благоустроенный участок. На втором этаже – четыре мастер-спальни и постирочная.
BeStBe. Perspective
                Фотография © Сергей Ананьев / предоставлена PROEKTOR
        BeStBe. Perspective
                Фотография © Сергей Ананьев / предоставлена PROEKTOR
        BeStBe. Perspective
                Фотография © Сергей Ананьев / предоставлена PROEKTOR
        BeStBe. Perspective
                Фотография © Сергей Ананьев / предоставлена PROEKTOR
        В интерьер игра контрастов материалов и цветов продолжается. Стены выкрашены в нейтральные тона, а энергии добавляют яркие акценты: мобиль на лестнице, картины, написанные специально для этого проекта. Фрагменты стен отделаны металлом. Необычным решением стали двери, поднятые до потолка. Открытые планировки и панорамные окна придают ощущение бесконечного пространства, которое усиливается благодаря обилию зеркал, умножающих свет.
BeStBe. Perspective
                © PROEKTOR
        
            
            
        
                                                                                
                            
                            
                            
                            
                            
                            
                            
                            
                            
                            
                            
                            
                            
                            
                            
                            
                            