Описание предоставлено архитекторами
Гимназия № 610 – родная для главного архитектора проекта Анны Дельгядо, поэтому и само пространство школы, и его проблемы были хорошо знакомы команде бюро. Главными вызовами стали бюджетное финансирование и сжатые сроки, но оказалось, что даже с помощью ограниченных ресурсов, которые выделяются на ремонт государственных учреждений в России, можно добиться стоящих результатов. Что касается сроков – основные работы нужно было успеть завершить за летние каникулы, чтобы не закрывать школу.
Санкт-Петербургская классическая гимназия, школа № 610. Интерьер кафе
Фотография © Дмитрий Цыренщиков / предоставлена Архитектурным бюро 11
Перед проектированием архитекторы раздали детям анкету, составленную при участии школьного психолога, а потом обсудили с ними, что хотелось бы изменить в первую очередь. Несмотря на необходимость лавировать между реальными возможностями, госзакупками, устаревшими пожарными нормами, многие из пожеланий удалось выполнить: в коридорах появились рекреации с подушками и ниши, в которых можно сидеть, в библиотеке – столы, за которыми удобно читать и делать уроки, в уборных – современные краны и горячая вода, в спортзале – душ.
Санкт-Петербургская классическая гимназия, школа № 610. Интерьер класса
Фотография © Дмитрий Цыренщиков / предоставлена Архитектурным бюро 11
Санкт-Петербургская классическая гимназия, школа № 610. Интерьер класса
Фотография © Дмитрий Цыренщиков / предоставлена Архитектурным бюро 11
Санкт-Петербургская классическая гимназия, школа № 610. Интерьер класса
Фотография © Дмитрий Цыренщиков / предоставлена Архитектурным бюро 11
Дети, которые активно участвовали в обсуждении дизайна в специально созданном телеграм-канале, выбрали и цветовую гамму – серый с желтым. Чтобы впустить в темные помещения свет, архитекторы сделали двери полностью стеклянными, а ниши в классах разобрали так, что открылись дополнительные световые проемы в коридор.
Санкт-Петербургская классическая гимназия, школа № 610. Холл
Фотография © Дмитрий Цыренщиков / предоставлена Архитектурным бюро 11
Санкт-Петербургская классическая гимназия, школа № 610. Интерьер класса
Фотография © Дмитрий Цыренщиков / предоставлена Архитектурным бюро 11
Санкт-Петербургская классическая гимназия, школа № 610. Интерьер класса
Фотография © Дмитрий Цыренщиков / предоставлена Архитектурным бюро 11
Тесный холл первого этажа после сноса всех временных перегородок стал просторным светлым залом с кафе. В результате советскую репрессивную оболочку удалось превратить в ориентированное на детей пространство, где приятно и не страшно находиться.
Санкт-Петербургская классическая гимназия, школа № 610. Интерьер кафе
Фотография © Дмитрий Цыренщиков / предоставлена Архитектурным бюро 11
Некоторые вещи сделать не получилось: например, не удалось купить светильники, предусмотренные проектом, потому что экономить пришлось даже больше, чем планировалось. По этой же причине в школе установили самые дешевые радиаторы и пластиковые трубы. Не хватило денег на стеллажи в классах и шторы, не появилось благоустроенного двора со спортивной площадкой и качелями, не удалось поднять потолок в спортзале до правильной высоты. Авторы надеятся, что все это удастся осуществить в будущем.
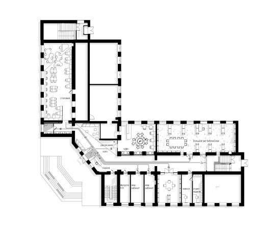
Практически полностью по проекту была реализована фанерная библиотека, для которой дети придумали столики на колесах и скамейки в окнах. Теперь это главное рекреационное пространство в реконструированной школе, в 2021 году библиотека получила премию Архивуд.
Недавно после обновления в гимназии открылась еще одна библиотека – античная, существующая в школе со дня ее основания, поскольку в обязательном расписании присутствует латынь и древнегреческий язык. Собранием библиотеки пользуются не только школьники и преподаватели, но и студенты университетов страны.
Санкт-Петербургская классическая гимназия, школа № 610. Интерьер библиотеки
Фотография © Дмитрий Цыренщиков / предоставлена Архитектурным бюро 11
Архитекторы взяли за основу колонну неопределенного «фанерного ордера» и превратили помещение в бесконечную анфиладу, усилив эффект зеркалами и арочными проемами. Среди колонн-стеллажей образуются рабочие места, пространство-кабинет для большого стола и место для библиотекаря.
Санкт-Петербургская классическая гимназия, школа № 610. Интерьер библиотеки
Фотография © Дмитрий Цыренщиков / предоставлена Архитектурным бюро 11
