RSS
Кафе Aaark
Фотография @ Варвара Топленникова / предоставлена KIDZ

Кафе Aaark

информация:

Россия

авторский коллектив

Лид проекта: Виктор Ауров
Архитекторы: Виктор Ауров, Екатерина Легостаева, Мария Соболева, Наталья Мелёшкина
Визуализаторы: Полина Дьяченко, Алена Минаева

Кафе Aaark
Фотография @ Варвара Топленникова / предоставлена KIDZ

Архи.ру об этом объекте:

15.01.2025

Корочка и мякоть

Кафе Aaark на Чистых прудах вдохновлено Италией середины XX века. Студия KIDZ выбрала в качестве концептуальной основы фокаччу, однако уловить это в элегантном ретро-интерьере можно только после пояснения: фактурные штукатурки, темный шпон и алый стол отвечают соответственно за мякоть, корочку и томаты.

Описание предоставлено архитекторами Проект соединяет современный минимализм с винтажными элементами и гастрономическими акцентами. Концепция пространства основана на образе фокаччи, поэтому интерьер делится на три ключевые части: мякоть , корочку...   читать дальше
Кафе Aaark
Фотография @ Варвара Топленникова / предоставлена KIDZ

описание:

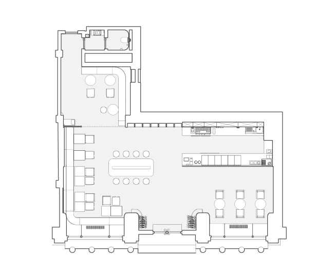
Архитектурная студия KIDZ разработала интерьер для флагманского заведения Макса Князяна на Чистых прудах. Проект, вдохновленный Италией, воплощает современный минимализм с винтажными элементами и гастрономическими акцентами. Основная идея пространства основана на образе фокаччи, который находит отражение в разделении интерьера на три ключевые части: «мякоть», «корочку» и «томаты». «Мякоть» – это светлая часть интерьера, где текстурные штукатурки и светлое дерево создают ощущение легкости и воздушности. «Корочка» представляет собой тёмные панели, выполненные из шпонированных материалов с уникальной фактурой, тонированных в разные оттенки, символизирующие степень «запеченности» фокаччи. Завершают композицию «томаты» – глянцевые акценты, добавляющие сочности и яркости всему пространству.

Каждая деталь интерьера тщательно продумана и несет в себе отсылки к Италии середины XX века: от стульев и столов до светильников и оформления лайтбоксов. Визуальное разделение пространства на светлую и темную зоны подчеркивается использованием различных материалов. В светлой зоне – фактурные штукатурки, светлый шпон и молочная плитка, которые создают ощущение уюта и камерности. Закругленные колонны и акцент на арочных окнах усиливают это впечатление. В темной зоне мебель и панели выполнены из сложного шпона, тонированного в несколько оттенков. Швы между панелями окрашены в красный цвет, что добавляет игривости и концептуальности пространству, создавая эффект томатного сока, вытекающего из трещин запеченной фокаччи.

Центром композиции стал глянцевый алый стол, расположенный в центре зала, который символизирует сочный томат и привлекает внимание своим насыщенным цветом и фактурой.

Одним из важных решений является кладка пола. Простой, но оригинальный рисунок создается с помощью плитки, нарезанной и уложенной вручную, что подчеркивает уникальность этой композиции.

Выбор шпона для темных панелей также стал вызовом, но результат превзошел ожидания. Удивительная фактура материала потребовала множества проб и ошибок, прежде чем удалось достичь желаемого оттенка и качества тонировки.
Кафе Aaark
Фотография @ Варвара Топленникова / предоставлена KIDZ
Кафе Aaark
Фотография @ Варвара Топленникова / предоставлена KIDZ
Кафе Aaark
Фотография @ Варвара Топленникова / предоставлена KIDZ
Кафе Aaark
Фотография @ Варвара Топленникова / предоставлена KIDZ
Кафе Aaark
Фотография @ Варвара Топленникова / предоставлена KIDZ
Кафе Aaark
Фотография @ Варвара Топленникова / предоставлена KIDZ
Кафе Aaark
Фотография @ Варвара Топленникова / предоставлена KIDZ
Кафе Aaark
Фотография @ Варвара Топленникова / предоставлена KIDZ
Кафе Aaark
@ KIDZ
Кафе Aaark
@ KIDZ
Кафе Aaark
@ KIDZ

Архитекторы – партнеры Архи.ру:

  • Наталья Сидорова
  • Алексей Орлов
  • Полина Воеводина
  • Алексей Гинзбург
  • Василий Крапивин
  • Павел Андреев
  • Антон Яр-Скрябин
  • Юлия Солдатенкова
  • Дмитрий Ликин
  • Михаил Канунников
  • Юлий Борисов
  • Татьяна Зульхарнеева
  • Сергей Никешкин
  • Евгений Зеленов
  • Елена Пучкова
  • Игорь Членов
  • Григориос Гавалидис
  • Энди Сноу
  • Екатерина Кузнецова
  • Ерлан Бекмухамедов
  • Сергей Скуратов
  • Дмитрий Буш
  • Михаил Давыдов
  • Владимир Плоткин
  • Александр Скокан
  • Евгений Новосадюк
  • Станислав Белых
  • Роман Леонидов
  • Сергей Кузнецов
  • Иван Кожин
  • Анна Иванова
  • Александр Котенков
  • Дмитрий Остроумов
  • Олег Шапиро
  • Александра Кузьмина
  • Степан Липгарт
  • Вера Бутко
  • Валерий Каняшин
  • Зураб Басария
  • Марина Егорова
  • Раис Баишев
  • Антон Надточий
  • Илья Машков
  • Александр Самарин
  • Юлия Тряскина
  • Андрей Романов
  • Ростислав Цайзер
  • Андрей Чуйков
  • Владислав Андреев
  • Сергей Переслегин
  • Даниил Лоренц
  • Александр Асадов
  • Виталий Лутц
  • Николай Переслегин
  • Олег Мединский
  • Сергей Чобан
  • Андрей Асадов
  • Наталия Шилова
  • Сергей Труханов
  • Дмитрий Сухов
  • Юлиана Княжевская
  • Константин Ходнев
  • Всеволод Медведев
  • Георгий Трофимов
  • Евгений Подгорнов
  • Андрей Михайлов
  • Григорий Мустафин
  • Игорь Шварцман
  • Николай Кикава
  • Анастасия Абашева
  • Никита Явейн
  • Андрей Гнездилов
  • Тимур Абдуллаев
  • Екатерина Абдуллаева
  • Маргарита Авдышева
  • Левон Айрапетов
  • Александр Аношкин
  • Алексей Афоничкин
  • Владислав Бек-Булатов
  • Антон Белов
  • Татьяна Бузулукова
  • Петр Васильев
  • Алина Георгиевская
  • Павел Гордеев
  • Илья Гринберг
  • Никита Демидов
  • Никита Дергунов
  • Наталья Жилкина
  • Алексей Зародов
  • Екатерина Зырина
  • Алексей Ильин
  • Дарья Ильина
  • Олег Карлсон
  • Алексей Кибкало
  • Денис Кувшинников
  • Анна Куликова
  • Алексей Курков
  • Алексей Курков
  • Данил Куров
  • Евгений Кутай
  • Мария Кутай
  • Антон Ладыгин
  • Антон Ладыгин
  • Дмитрий Лапин
  • Борис Левянт
  • Катерина Левянт
  • Илья Левянт
  • Антон Лукомский
  • Валерий Лукомский
  • Екатерина Ляпунова
  • Сергей Марков
  • Николай Миловидов
  • Станислав Михаловский
  • Олеся Могилевская
  • Мария Николаева
  • Виктор Перов
  • Алексей Полищук
  • Роман Пономарёв
  • Валерия Преображенская
  • Виктория Раубо
  • Василий Рыбаков
  • Мария Салех
  • Александр Стариков
  • Илья Уткин
  • Дмитрий Шурыгин
  • Олег Шурыгин

Проект из каталога (случайный выбор)

Постройки и проекты (новые записи):

  • Проект общественно-делового комплекса у станции метро «Ботанический Сад» / Genpro
  • Проект общественно-делового комплекса у станции метро «Ботанический Сад» / UNK
  • Дворец бильярда в Мневниковской пойме
  • БЦ в Раменках
  • Бизнес-центр (на месте ТЦ «Старт»)
  • DELO HOUSE 3.2 с флигелем
  • Ледовый дворец Navka Arena
  • Благоустройство территории ЖК Holms Residence
  • Игровое пространство у театра им. Г.К. Камала

Новости российской архитектуры:

Потенциальные примечательности. Обзор проектов 16–22 февраля 2026
22.02.2026

Потенциальные примечательности. Обзор проектов 16–22 февраля 2026

Евгений Зеленов, Юлий Борисов, Амир Идиатулин, Николай Гордюшин, Александр Аношкин, Мария Салех, Никита Дергунов
Визуальная чистота
20.02.2026

Визуальная чистота

Александр Жидков, Михаил Гуманков
Кирпичная вуаль
20.02.2026

Кирпичная вуаль

Айк Навасардян, Рубен Аракелян