RSS
ЖК Зорге Премьер
Фотография © PRSPKT.Architects

ЖК Зорге Премьер

информация:

  • статус
    в процессе реализации
  • даты
    20192022 / 20222025
  • region= area= address=ул. Рихарда Зорге, 73/1 country_t=Россия city_t=Уфа
    место
    Уфа ул. Рихарда Зорге, 73/1
  • координаты
    54.772587, 56.014935
  • функция
    Жилой / жилой комплекс
  • теги
    send.project
  • площадь застройки
    5 530,84 м2
  • общая площадь
    39 764,59 м2
  • этажность
    15-24
  • строительный объем
    168 509,6 м3
АБ ПРСПКТ

авторский коллектив

Руководитель авторского коллектива – Александр Сафаров, Юлия Мусина; ГИП – Раис Галимзянов, Азат Бакиев; архитекторы – Артур Хусаинов, Семён Кучеров, Екатерина Селезнёва; благоустройство – Семён Кучеров; интерьер – Юлия Мусина, Екатерина Селезнёва, Ксения Зырянова; BIM-инженер – Олег Резвов

партнеры, заказчики, смежники

Заказчик: ГК Жилстройинвест
Главный конструктор: КБ Проспект
Застройщик: ГК Жилстройинвест
 

поставщики, технологии

награды:

    Победитель премии «Лидеры жилищного строительства РБ» в номинации «Лучший строящийся жилой комплекс премиум-класса»

     
ЖК Зорге Премьер. Фотография на момент реализации. Июль 2025
Фотография © PRSPKT.Architects

Архи.ру об этом объекте:

26.08.2025

Уступы, арки и кирпич

По проекту PRSPKT.Architects в Уфе достроен жилой комплекс «Зорге Премьер», честно демонстрирующий роскошь, присущую заявленному стилю ар-деко: фасады полностью облицованы кирпичом, просторные лобби украшает барельефы и многоярусные люстры, вместо остекленных лоджий – гедонистические балкончики. В стройной башне-доминанте располагается по одной квартире на этаже.

Описание предоставлено архитекторами Жилой комплекс расположен в географическом центре Уфы, на границе с лесопарковой зоной. Спокойный, рекреационный характер этого места поддерживают соседствующие здания и инфраструктура. Особенность участка вид ...   читать дальше

другие тексты Архи.ру:

ЖК Зорге Премьер. Фотография на момент реализации. Июль 2025
Фотография © PRSPKT.Architects

описание:

Жилой комплекс расположен в географическом центре Уфы, на границе с лесопарковой зоной. Спокойный, рекреационный характер этого места поддерживают соседствующие здания и инфраструктура. Особенность участка – вид на лес, опоясывающий северо-западную часть города в долине реки Белая, который открывается из окон жилых секций. Этот фактор стал одним из ключевых при формировании объёмно-пространственных и архитектурных решений.

Комплекс состоит из трёх жилых объёмов: секций 1А и 1Б по 15 этажей и 24-этажной секции 1Г, включая встроено-пристроенные помещения. Все они объединены общим стилобатом 1В, в котором расположены парковка и помещения инженерно-технического обеспечения. Кровля стилобата – эксплуатируемая: на ней размещены детские, спортивные и рекреационные площадки. Доступ на кровлю обеспечивается напрямую с уровня рельефа, без необходимости устройства дополнительных пандусов или лестниц. Из секций 1Г и 1Б выход на кровлю осуществляется с полуэтажей второго уровня: в 1Г – через лифт и внутреннюю лестницу, в 1Б – по наружной лестнице, встроенной в объём здания и являющейся продолжением входной группы. Эта лестница объединяет входы секций и обеспечивает основную пешеходную связь для жителей секции 1Б со стороны улицы Р. Зорге.

Главный акцент композиции – высотная доминанта, секция 1Г. Её пропорции придают силуэтам квартала выразительность и служат ориентиром в городской панораме, начиная от улицы Р. Зорге и заканчивая деталями кирпичной отделки фасадов. Планировка секции уникальна: на каждом этаже расположена всего одна квартира, что обеспечивает видовые характеристики на три стороны света, а на верхних десяти этажах – на все четыре.

В каждой секции предусмотрены вестибюли высотой около пяти метров с тщательно продуманным дизайном. В секции 1Б, расположенной ниже по отметкам рельефа, вестибюль выполнен двухсветным, что обеспечивает более комфортный доступ к эксплуатируемой кровле. Все вестибюли находятся в одном уровне с благоустройством придомовой территории, что облегчает перемещение, включая доступ для маломобильных жителей, и выполнены с нормативными уклонами, исключающими попадание осадков внутрь. Въезд в подземную парковку осуществляется преимущественно со стороны Лесопаркового проезда: один – непосредственно с него, другой – с примыкающего проезда у угла секции 1Б.

Задача проекта заключалась в гармоничном вписывании комплекса в существующую среду – как в масштабе города, так и в масштабе человека. При этом обеспечивались комфортные условия проживания и благоустроенная территория. Этому способствуют умеренная этажность двух корпусов по 15 этажей, акцент в виде 24-этажной секции с одной квартирой на этаже, а также продуманное расположение зданий и двора с разделением автомобильных и пешеходных потоков.

Жилые секции ориентированы так, чтобы максимально раскрыть панораму на реку Белая и лесной массив для северных фасадов. Такое расположение также обеспечивает виды на парковую зону со стороны улицы Р. Зорге. Широкие окна северных фасадов не только открывают живописные виды, но и улучшают инсоляционные характеристики квартир.

ЖК Зорге Премьер. Фотография на момент реализации. Июль 2025
Фотография © PRSPKT.Architects

здесь использованы материалы и технологии:

Группа компаний BRAER

Для облицовки фасадов жилого комплекса был выбран облицовочный кирпич BRAER «Баварская кладка» в формате 0,7 НФ. Кирпичная кладка стала основой архитектурного образа зданий, придав им особую пластику и приятную тактильную фактуру. При помощи кладки выделены арочные обрамления окон и межоконныне вставки. Технология обжига «флешинг» придает кирпичу естественные переливы оттенков — от песочного до терракотового и глубокого коричневого. Высокие эксплуатационные характеристики (прочность М150-200, морозостойкость F100 и низкое водопоглощение 6-9%) гарантируют долговечность и безупречный внешний вид зданий.

ЖК Зорге Премьер
Фотография © PRSPKT.Architects
ЖК Зорге Премьер. Фотография на момент реализации. Июль 2025
Фотография © PRSPKT.Architects
ЖК Зорге Премьер. Фотография на момент реализации. Июль 2025
Фотография © PRSPKT.Architects
ЖК Зорге Премьер
Рендеры © PRSPKT.Architects
ЖК Зорге Премьер. Фотография на момент реализации. Июль 2025
Фотография © PRSPKT.Architects
ЖК Зорге Премьер
Фотография © PRSPKT.Architects
ЖК Зорге Премьер
Фотография © PRSPKT.Architects
ЖК Зорге Премьер. Фотография на момент реализации. Июль 2025
Фотография © PRSPKT.Architects
ЖК Зорге Премьер. Фотография на момент реализации. Июль 2025
Фотография © PRSPKT.Architects
ЖК Зорге Премьер. Фотография на момент реализации. Июль 2025
Фотография © PRSPKT.Architects
ЖК Зорге Премьер. Фотография на момент реализации. Июль 2025
Фотография © PRSPKT.Architects
ЖК Зорге Премьер
Фотография © PRSPKT.Architects
ЖК Зорге Премьер. Фотография на момент реализации. Июль 2025
Фотография © PRSPKT.Architects
ЖК Зорге Премьер. Фотография на момент реализации. Июль 2025
Фотография © PRSPKT.Architects
ЖК Зорге Премьер. Фотография на момент реализации. Июль 2025
Фотография © PRSPKT.Architects
ЖК Зорге Премьер. Фотография на момент реализации. Июль 2025
Фотография © PRSPKT.Architects
ЖК Зорге Премьер. Фотография на момент реализации. Июль 2025
Фотография © PRSPKT.Architects
ЖК Зорге Премьер. Фотография на момент реализации. Июль 2025
Фотография © PRSPKT.Architects
ЖК Зорге Премьер. Фотография на момент реализации. Июль 2025
Фотография © PRSPKT.Architects
ЖК Зорге Премьер. Фотография на момент реализации. Июль 2025
Фотография © PRSPKT.Architects
ЖК Зорге Премьер. Фотография на момент реализации. Июль 2025
Фотография © PRSPKT.Architects
ЖК Зорге Премьер. Фотография на момент реализации. Июль 2025
Фотография © PRSPKT.Architects
ЖК Зорге Премьер. Фотографии реализации интерьера парадных и МОП
Фотография © PRSPKT.Architects
ЖК Зорге Премьер. Фотографии реализации интерьера парадных и МОП
Фотография © PRSPKT.Architects
ЖК Зорге Премьер. Фотографии реализации интерьера парадных и МОП
Фотография © PRSPKT.Architects
ЖК Зорге Премьер. Фотографии реализации интерьера парадных и МОП
Фотография © PRSPKT.Architects
ЖК Зорге Премьер. Фотографии реализации интерьера парадных и МОП
Фотография © PRSPKT.Architects
ЖК Зорге Премьер. Фотографии реализации интерьера парадных и МОП
Фотография © PRSPKT.Architects
ЖК Зорге Премьер. Фотографии реализации интерьера парадных и МОП
Фотография © PRSPKT.Architects
ЖК Зорге Премьер. Фотографии реализации интерьера парадных и МОП
Фотография © PRSPKT.Architects
ЖК Зорге Премьер. Фотографии реализации интерьера парадных и МОП
Фотография © PRSPKT.Architects
ЖК Зорге Премьер. Фотографии реализации интерьера парадных и МОП
Фотография © PRSPKT.Architects
ЖК Зорге Премьер. Фотографии реализации интерьера парадных и МОП
Фотография © PRSPKT.Architects
ЖК Зорге Премьер. Фотографии реализации интерьера парадных и МОП
Фотография © PRSPKT.Architects
ЖК Зорге Премьер. Фотографии реализации интерьера парадных и МОП
Фотография © PRSPKT.Architects
ЖК Зорге Премьер
© PRSPKT.Architects / источник: Наш дом.рф
ЖК Зорге Премьер
© PRSPKT.Architects / источник: Наш дом.рф
ЖК Зорге Премьер
Рендер © PRSPKT.Architects
ЖК Зорге Премьер
Рендер © PRSPKT.Architects
ЖК Зорге Премьер
Рендер © PRSPKT.Architects
ЖК Зорге Премьер
Рендер © PRSPKT.Architects
ЖК Зорге Премьер
Рендер © PRSPKT.Architects
ЖК Зорге Премьер
Рендер © PRSPKT.Architects
ЖК Зорге Премьер
Рендер © PRSPKT.Architects
ЖК Зорге Премьер
Рендер © PRSPKT.Architects
ЖК Зорге Премьер
Рендер © PRSPKT.Architects
ЖК Зорге Премьер. Модель SketchUP
Рендер © PRSPKT.Architects
ЖК Зорге Премьер. Развертка по улице Рихарда
© PRSPKT.Architects
ЖК Зорге Премьер. Эскизы Артура Хусаинова
© PRSPKT.Architects
ЖК Зорге Премьер. Схема расположения объекта в городе
© PRSPKT.Architects
ЖК Зорге Премьер. План благоустройства и озеленения
© PRSPKT.Architects
ЖК Зорге Премьер. План и вид игрового ручья
© PRSPKT.Architects
ЖК Зорге Премьер. Схема. Фасады секции Б
© PRSPKT.Architects
ЖК Зорге Премьер. Схема. Фасады секции Г
© PRSPKT.Architects
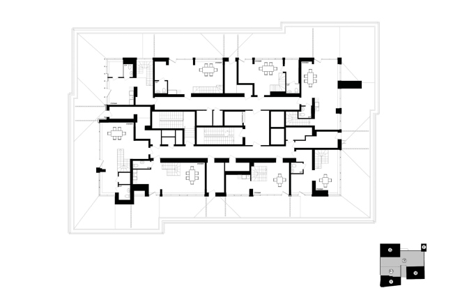
ЖК Зорге Премьер. Схема. План секции Б
© PRSPKT.Architects
ЖК Зорге Премьер. Схема. План секции Б
© PRSPKT.Architects
ЖК Зорге Премьер.Схема. План секции Б
© PRSPKT.Architects
ЖК Зорге Премьер. Схема. План секции Б
© PRSPKT.Architects
ЖК Зорге Премьер. Схема. Планы секции Г
© PRSPKT.Architects
ЖК Зорге Премьер. Схема. Разрезы секции Б
© PRSPKT.Architects
ЖК Зорге Премьер. Схема. Разрезы секции Г
© PRSPKT.Architects

Архитекторы – партнеры Архи.ру:

  • Илья Машков
  • Сергей Чобан
  • Ростислав Цайзер
  • Сергей Переслегин
  • Валерий Каняшин
  • Юлия Тряскина
  • Дмитрий Буш
  • Алексей Орлов
  • Василий Крапивин
  • Татьяна Зульхарнеева
  • Андрей Асадов
  • Юлиана Княжевская
  • Владислав Андреев
  • Александр Котенков
  • Андрей Гнездилов
  • Михаил Канунников
  • Игорь Членов
  • Владимир Плоткин
  • Станислав Белых
  • Зураб Басария
  • Дмитрий Остроумов
  • Вера Бутко
  • Антон Надточий
  • Степан Липгарт
  • Григориос Гавалидис
  • Ерлан Бекмухамедов
  • Григорий Мустафин
  • Александр Самарин
  • Виталий Лутц
  • Павел Андреев
  • Марина Егорова
  • Юлий Борисов
  • Анастасия Абашева
  • Сергей Скуратов
  • Евгений Зеленов
  • Константин Ходнев
  • Мария Ахременкова
  • Николай Кикава
  • Никита Явейн
  • Георгий Трофимов
  • Олег Шапиро
  • Николай Переслегин
  • Елена Пучкова
  • Андрей Михайлов
  • Антон Яр-Скрябин
  • Наталия Шилова
  • Иван Кожин
  • Сергей Кузнецов
  • Евгений Подгорнов
  • Борис Воскобойников
  • Евгений Новосадюк
  • Сергей Труханов
  • Михаил Давыдов
  • Дмитрий Ликин
  • Раис Баишев
  • Екатерина Кузнецова
  • Наталья Сидорова
  • Игорь Шварцман
  • Полина Воеводина
  • Александр Скокан
  • Сергей Никешкин
  • Всеволод Медведев
  • Александр Асадов
  • Даниил Лоренц
  • Андрей Романов
  • Дмитрий Сухов
  • Александра Кузьмина
  • Юлия Солдатенкова
  • Олег Мединский
  • Энди Сноу
  • Тимур Абдуллаев
  • Екатерина Абдуллаева
  • Маргарита Авдышева
  • Левон Айрапетов
  • Александр Аношкин
  • Алексей Афоничкин
  • Владислав Бек-Булатов
  • Антон Белов
  • Татьяна Бузулукова
  • Петр Васильев
  • Данило Вукосавлевич
  • Алина Георгиевская
  • Павел Гордеев
  • Илья Гринберг
  • Никита Демидов
  • Никита Дергунов
  • Наталья Жилкина
  • Алексей Зародов
  • Екатерина Зырина
  • Алексей Ильин
  • Дарья Ильина
  • Олег Карлсон
  • Алексей Кибкало
  • Денис Кувшинников
  • Анна Куликова
  • Алексей Курков
  • Данил Куров
  • Мария Кутай
  • Евгений Кутай
  • Иван Кычкин
  • Антон Ладыгин
  • Дмитрий Лапин
  • Борис Левянт
  • Илья Левянт
  • Катерина Левянт
  • Валерий Лукомский
  • Антон Лукомский
  • Екатерина Ляпунова
  • Иса Магомедов
  • Сергей Марков
  • Елена Мерцалова
  • Николай Миловидов
  • Станислав Михаловский
  • Сергей Мичурин
  • Олеся Могилевская
  • Филипп Никандров
  • Мария Николаева
  • Дмитрий Овчаров
  • Сергей Пергаев
  • Виктор Перов
  • Алексей Полищук
  • Роман Пономарёв
  • Валерия Преображенская
  • Виктория Раубо
  • Василий Рыбаков
  • Николай Рыбаков
  • Мария Салех
  • Александр Стариков
  • Илья Уткин
  • Елисей Чакан
  • Бориша Чорович
  • Олег Шурыгин
  • Дмитрий Шурыгин

Проект из каталога (случайный выбор)

Постройки и проекты (новые записи):

  • Деловое пространство «ПЛЭЙН»
  • Конкурсный проект ФИЦ / ТПО «Резерв»
  • Porta
  • Детский сад на 200 мест в Жилино-1
  • Архитектурная концепция кластера Ломоносов-2
  • Клубный дом в 1-м Казачьем переулке
  • Частный дом в Ленинградской области
  • IT-кластер TravelLine в Йошкар-Оле
  • Гостиничный комплекс Cosmos Selection Derbent 5

Новости российской архитектуры:

КиноГолограмма
12.05.2026

КиноГолограмма

Николай Переслегин, Сергей Переслегин, Георгий Трофимов
Форма как метод: ТПО «Резерв»
12.05.2026

Форма как метод: ТПО «Резерв»

Владимир Плоткин
Консервация как комментарий
12.05.2026

Консервация как комментарий

Наринэ Тютчева