Храмовый комплекс в честь иконы Божией Матери «Знамение» в г. Краснодар ЖК «Первое место»
© Мастерская «ПРОХРАМ»
Храмовый комплекс в честь иконы Божией Матери «Знамение» в г. Краснодар ЖК «Первое место»
информация:

Дмитрий Остроумов
Dmitry Ostroumov / РоссияМастерская «Прохрам»
Prohram Studio / Россияавторский коллектив
Д.А. Остроумов, К.А. Васина, Г.Н. Жуковская, Г.А. Гончаров, Е.А. Белякович, А.А. Виданова
партнеры, заказчики, смежники
Заказчик: ГК ТОЧНО
награды:
- Бронзовый диплом. Зодчество 2024. XXXII Международный архитектурный фестиваль
Храмовый комплекс в честь иконы Божией Матери «Знамение» в г. Краснодар ЖК «Первое место»
© Мастерская «ПРОХРАМ»
Храмовый комплекс в честь иконы Божией Матери «Знамение» в г. Краснодар ЖК «Первое место»
© Мастерская «ПРОХРАМ»
описание:
Храм в честь иконы Божией Матери «Знамение» запроектирован для жилого квартала «Первое место» в городе Краснодар и будет располагаться в центральном сквере района.
Храм станет центральным звеном сквера, при этом площадь сквера останется достаточно большой, в нем будут организованы прогулочные зоны для тихого отдыха и детские площадки. Сама же территория храма остается без ограждения и станет продолжением сквера.
С юга и востока храмовая территория будет отделена от жилой застройки комплексом зданий. С угла в юго-восточной части это приходской дом, с юга – монументальная невысокая колокольня и коммерческие помещения (магазины). В юго-западном углу
сквера и, соответственно, храмовой территории запроектировано размещение кафе.
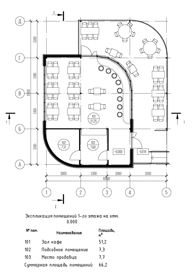
Площадь застройки храма 545 м2, приходского дома с колокольней – 618 м2, кафе – 118 м2.
Храм выполнен в традиционной манере, характерной для русского храмостроительства, однако с определенными отсылками к неорусскому стилю (модерну) и византийской стилистике, характерной для южных регионов. Высота храма от планировочной отметки земли до центра подкрестного шара 20,57 м.
В проекте заложены скатные кровли, что упрощает процесс строительства. В интерьере предполагается использование открытых балок. При этом центральная часть храма (молельный зал) перекрыта четырьмя большими подпружными арками с парусами и световым барабаном.
Традиционно в восточной части запроектирован алтарь, причем алтарная апсида представляет собой не полукруг, а окружность, обрезанную с запада таким образом, что полукруг становится более «закрученным», что еще больше выделяет сакральное пространство алтаря.
В храме предусмотрена большая открытая паперть, из которой человек попадает в притвор, в котором расположены небольшая церковная лавка, гардероб и подъем на хоры, а далее в молельный зал. На паперть предполагается организовать вывод святой воды из бака, расположенного в притворе, так, чтобы с улицы человек мог подойти и набрать воды, помолившись перед иконографическим образом, расположенным там же.
С уровня земли возможно зайти во встроенную небольшую часовню с мозаичным образом иконы Божией Матери «Знамение», когда храм закрыт. В этой часовне можно поставить свечи о здравии и упокоении в специально организованных уличных подсвечниках.
С севера и юга от молельного зала запроектированы галереи, являющиеся, с одной стороны, частью основного храмового пространства, а с другой стороны – несколько отделенные от него. В этих галереях можно служить панихиды и совершать исповедь. Во время службы они могут быть зонами тихой молитвы и отдыха, так как в них предполагается размещение скамей либо стасидий. В восточной части храма галереи переходят в помещения ризницы и пономарки.
В храме запроектирован полноценный цокольный этаж, в котором размещен молельный зал нижнего храма, инженерные помещения и служебный санузел с комнатой уборочного инвентаря. Нижний храм может использоваться как крестильный, в молельном зале выделена зона с трансформируемой перегородкой, в которой может храниться передвижная купель, там же готовящиеся к Таинству Крещения смогут переодеться. Здесь же в нижнем храме могут происходить отпевания усопших. В большие праздники и по воскресным дням, когда существует необходимость служения двух Литургий в один день, служба может проходить и в верхнем, и в нижнем храме в разное время.
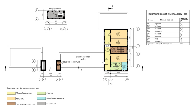
В здании храма предусмотрен лифт для маломобильных групп населения, соединяющий уровень земли, нулевую отметку и цокольный этаж. Подъем на хоры осуществляется по лестнице. В храме запроектированы все нормативные пожарные выходы, как с нулевой отметки, так и с нижнего этажа. Здания, расположенные рядом с храмом, представляют собой один связанный помещениями блок. Это помещение приходского дома, на первом этаже которого предполагаются многофункциональный зал, трапезная с кухней, общественные санузлы с отдельным входом с улицы, внутренние санузлы, помещения торговли, сторожка. Над торговыми помещениями запроектирована эксплуатируемая кровля с озеленением. Через эту кровлю происходит подъем на надвратную звонницу.
Стилистически эти здания связаны со зданием храма, но при этом выполнены в современной манере, что связывает храмовый комплекс с ближайшей современной застройкой. Отдельно стоящий павильон-кафе предполагается выполнить в виде каркасного здания, обшитого деревянным планкеном. Как часть этого сооружения запроектирована открытая терраса для использования в теплое время года.
Цветовая гамма храмового комплекса выдержана в «южных» тонах с акцентом на штукатурку цвета цементно-известкового раствора (светло-бежевый с розовым отливом). Предполагается выполнить ее в технике мазанки, так, чтобы за этим цветом частично была видна фактура кирпича. На фасадах предусмотрен декор из натурального камня, в том числе каменные барельефы, керамические цветные вставки, мозаика из смальты и камня и цветное стекло на барабане храма. Покрытие кровли храма и павильона-кафе предполагается из стальных листов с полимерным покрытием, в покрытии барабана используется свинец. Цоколь храма предполагается отделать натуральным рустованным камнем.
Храм станет центральным звеном сквера, при этом площадь сквера останется достаточно большой, в нем будут организованы прогулочные зоны для тихого отдыха и детские площадки. Сама же территория храма остается без ограждения и станет продолжением сквера.
С юга и востока храмовая территория будет отделена от жилой застройки комплексом зданий. С угла в юго-восточной части это приходской дом, с юга – монументальная невысокая колокольня и коммерческие помещения (магазины). В юго-западном углу
сквера и, соответственно, храмовой территории запроектировано размещение кафе.
Площадь застройки храма 545 м2, приходского дома с колокольней – 618 м2, кафе – 118 м2.
Храм выполнен в традиционной манере, характерной для русского храмостроительства, однако с определенными отсылками к неорусскому стилю (модерну) и византийской стилистике, характерной для южных регионов. Высота храма от планировочной отметки земли до центра подкрестного шара 20,57 м.
В проекте заложены скатные кровли, что упрощает процесс строительства. В интерьере предполагается использование открытых балок. При этом центральная часть храма (молельный зал) перекрыта четырьмя большими подпружными арками с парусами и световым барабаном.
Традиционно в восточной части запроектирован алтарь, причем алтарная апсида представляет собой не полукруг, а окружность, обрезанную с запада таким образом, что полукруг становится более «закрученным», что еще больше выделяет сакральное пространство алтаря.
В храме предусмотрена большая открытая паперть, из которой человек попадает в притвор, в котором расположены небольшая церковная лавка, гардероб и подъем на хоры, а далее в молельный зал. На паперть предполагается организовать вывод святой воды из бака, расположенного в притворе, так, чтобы с улицы человек мог подойти и набрать воды, помолившись перед иконографическим образом, расположенным там же.
С уровня земли возможно зайти во встроенную небольшую часовню с мозаичным образом иконы Божией Матери «Знамение», когда храм закрыт. В этой часовне можно поставить свечи о здравии и упокоении в специально организованных уличных подсвечниках.
С севера и юга от молельного зала запроектированы галереи, являющиеся, с одной стороны, частью основного храмового пространства, а с другой стороны – несколько отделенные от него. В этих галереях можно служить панихиды и совершать исповедь. Во время службы они могут быть зонами тихой молитвы и отдыха, так как в них предполагается размещение скамей либо стасидий. В восточной части храма галереи переходят в помещения ризницы и пономарки.
В храме запроектирован полноценный цокольный этаж, в котором размещен молельный зал нижнего храма, инженерные помещения и служебный санузел с комнатой уборочного инвентаря. Нижний храм может использоваться как крестильный, в молельном зале выделена зона с трансформируемой перегородкой, в которой может храниться передвижная купель, там же готовящиеся к Таинству Крещения смогут переодеться. Здесь же в нижнем храме могут происходить отпевания усопших. В большие праздники и по воскресным дням, когда существует необходимость служения двух Литургий в один день, служба может проходить и в верхнем, и в нижнем храме в разное время.
В здании храма предусмотрен лифт для маломобильных групп населения, соединяющий уровень земли, нулевую отметку и цокольный этаж. Подъем на хоры осуществляется по лестнице. В храме запроектированы все нормативные пожарные выходы, как с нулевой отметки, так и с нижнего этажа. Здания, расположенные рядом с храмом, представляют собой один связанный помещениями блок. Это помещение приходского дома, на первом этаже которого предполагаются многофункциональный зал, трапезная с кухней, общественные санузлы с отдельным входом с улицы, внутренние санузлы, помещения торговли, сторожка. Над торговыми помещениями запроектирована эксплуатируемая кровля с озеленением. Через эту кровлю происходит подъем на надвратную звонницу.
Стилистически эти здания связаны со зданием храма, но при этом выполнены в современной манере, что связывает храмовый комплекс с ближайшей современной застройкой. Отдельно стоящий павильон-кафе предполагается выполнить в виде каркасного здания, обшитого деревянным планкеном. Как часть этого сооружения запроектирована открытая терраса для использования в теплое время года.
Цветовая гамма храмового комплекса выдержана в «южных» тонах с акцентом на штукатурку цвета цементно-известкового раствора (светло-бежевый с розовым отливом). Предполагается выполнить ее в технике мазанки, так, чтобы за этим цветом частично была видна фактура кирпича. На фасадах предусмотрен декор из натурального камня, в том числе каменные барельефы, керамические цветные вставки, мозаика из смальты и камня и цветное стекло на барабане храма. Покрытие кровли храма и павильона-кафе предполагается из стальных листов с полимерным покрытием, в покрытии барабана используется свинец. Цоколь храма предполагается отделать натуральным рустованным камнем.
архитектурно-планировочные решения:
Цоколь: песчаник пиленный
Рустованный
Стены: фасадная цементно-
известковая штукатурка
(RAL 1034)
Фасадный декор: плитка из
Известняка
Барельеф с резьбой по камню:
Известняк
Керамические вставки на
фасаде:
(RAL 6021)
Фальцевая кровля купола:
листовой свинец
(RAL 7003)
Кровля фальцевая: оцинкованная
сталь с полимерным покрытием
(RAL 7003)
-Фальцевая кровля, стальной гладкий лист с полимерным
покрытием -0,6 мм;
-Объемно-диффузионная мембрана для отвода конденсата;
-Сплошной настил из доски 150х50 (h) Вент. зазор -25 мм;
-Контробрешетка 150х50 (h) Вент. зазор -50 мм;
-Диффузионная ветроводозащитная мембрана;
-Стропила/утеплитель минераловатный -200 мм;
-Подшивка по обрешетке
-Пароизоляцонная пленка
Храмовый комплекс в честь иконы Божией Матери «Знамение» в г. Краснодар ЖК «Первое место»
© Мастерская «ПРОХРАМ»
Храмовый комплекс в честь иконы Божией Матери «Знамение» в г. Краснодар ЖК «Первое место»
© Мастерская «ПРОХРАМ»
Храмовый комплекс в честь иконы Божией Матери «Знамение» в г. Краснодар ЖК «Первое место»
© Мастерская «ПРОХРАМ»
Храмовый комплекс в честь иконы Божией Матери «Знамение» в г. Краснодар ЖК «Первое место»
© Мастерская «ПРОХРАМ»
Храмовый комплекс в честь иконы Божией Матери «Знамение» в г. Краснодар ЖК «Первое место»
© Мастерская «ПРОХРАМ»
Храмовый комплекс в честь иконы Божией Матери «Знамение» в г. Краснодар ЖК «Первое место»
© Мастерская «ПРОХРАМ»
Храмовый комплекс в честь иконы Божией Матери «Знамение» в г. Краснодар ЖК «Первое место»
© Мастерская «ПРОХРАМ»
Храмовый комплекс в честь иконы Божией Матери «Знамение» в г. Краснодар ЖК «Первое место». Развертка 1 по ул. им. Виктора Нарыкова
© Мастерская «ПРОХРАМ»
Храмовый комплекс в честь иконы Божией Матери «Знамение» в г. Краснодар ЖК «Первое место». Развертка 2 по ул. им. Анатолия Барабанова
© Мастерская «ПРОХРАМ»
Храмовый комплекс в честь иконы Божией Матери «Знамение» в г. Краснодар ЖК «Первое место». Развертка 3, вид на восточную стену храма
© Мастерская «ПРОХРАМ»
Храмовый комплекс в честь иконы Божией Матери «Знамение» в г. Краснодар ЖК «Первое место». Развертка 4, вид на северную стену храма
© Мастерская «ПРОХРАМ»
Храмовый комплекс в честь иконы Божией Матери «Знамение» в г. Краснодар ЖК «Первое место». Ситуационный план
© Мастерская «ПРОХРАМ»
Храмовый комплекс в честь иконы Божией Матери «Знамение» в г. Краснодар ЖК «Первое место». Генплан
© Мастерская «ПРОХРАМ»
Храмовый комплекс в честь иконы Божией Матери «Знамение» в г. Краснодар ЖК «Первое место». Храм. Схема фасада в осях Е-А
© Мастерская «ПРОХРАМ»
Храмовый комплекс в честь иконы Божией Матери «Знамение» в г. Краснодар ЖК «Первое место». Храм. Схема фасада в осях А-Е
© Мастерская «ПРОХРАМ»
Храмовый комплекс в честь иконы Божией Матери «Знамение» в г. Краснодар ЖК «Первое место». Храм. Схема фасада в осях 1-9
© Мастерская «ПРОХРАМ»
Храмовый комплекс в честь иконы Божией Матери «Знамение» в г. Краснодар ЖК «Первое место». Храм. Схема фасада в осях 9-1
© Мастерская «ПРОХРАМ»
Храмовый комплекс в честь иконы Божией Матери «Знамение» в г. Краснодар ЖК «Первое место»
© Мастерская «ПРОХРАМ»
Храмовый комплекс в честь иконы Божией Матери «Знамение» в г. Краснодар ЖК «Первое место»
© Мастерская «ПРОХРАМ»
Храмовый комплекс в честь иконы Божией Матери «Знамение» в г. Краснодар ЖК «Первое место»
© Мастерская «ПРОХРАМ»
Храмовый комплекс в честь иконы Божией Матери «Знамение» в г. Краснодар ЖК «Первое место»
© Мастерская «ПРОХРАМ»
Храмовый комплекс в честь иконы Божией Матери «Знамение» в г. Краснодар ЖК «Первое место». Храм. Схема плана цокольного этажа
© Мастерская «ПРОХРАМ»
Храмовый комплекс в честь иконы Божией Матери «Знамение» в г. Краснодар ЖК «Первое место». Храм. Схема плана 1 этажа
© Мастерская «ПРОХРАМ»
Храмовый комплекс в честь иконы Божией Матери «Знамение» в г. Краснодар ЖК «Первое место». Храм. Схема плана хоров
© Мастерская «ПРОХРАМ»
Храмовый комплекс в честь иконы Божией Матери «Знамение» в г. Краснодар ЖК «Первое место». Разрез 1-1
© Мастерская «ПРОХРАМ»
Храмовый комплекс в честь иконы Божией Матери «Знамение» в г. Краснодар ЖК «Первое место». Разрез 2-2
© Мастерская «ПРОХРАМ»
Храмовый комплекс в честь иконы Божией Матери «Знамение» в г. Краснодар ЖК «Первое место». Церковно-причтовый дом. Схема фасада в осях 1-12, 12-1
© Мастерская «ПРОХРАМ»
Храмовый комплекс в честь иконы Божией Матери «Знамение» в г. Краснодар ЖК «Первое место». Церковно-причтовый дом. Схема фасада в осях Ж-А, А-Ж
© Мастерская «ПРОХРАМ»
Храмовый комплекс в честь иконы Божией Матери «Знамение» в г. Краснодар ЖК «Первое место»
© Мастерская «ПРОХРАМ»
Храмовый комплекс в честь иконы Божией Матери «Знамение» в г. Краснодар ЖК «Первое место». Церковно-причтовый дом. Схема плана 1 этажа
© Мастерская «ПРОХРАМ»
Храмовый комплекс в честь иконы Божией Матери «Знамение» в г. Краснодар ЖК «Первое место». Церковно-причтовый дом. Схема плана 2 этажа, колокольни
© Мастерская «ПРОХРАМ»
Храмовый комплекс в честь иконы Божией Матери «Знамение» в г. Краснодар ЖК «Первое место». Церковно-причтовый дом. Схема разреза 1-1, 2-2
© Мастерская «ПРОХРАМ»
Храмовый комплекс в честь иконы Божией Матери «Знамение» в г. Краснодар ЖК «Первое место». Церковно-причтовый дом. Схема разреза А-А
© Мастерская «ПРОХРАМ»
Храмовый комплекс в честь иконы Божией Матери «Знамение» в г. Краснодар ЖК «Первое место». Павильон-кафе. Схема фасада в осях А-Д, Д-А
© Мастерская «ПРОХРАМ»
Храмовый комплекс в честь иконы Божией Матери «Знамение» в г. Краснодар ЖК «Первое место». Павильон-кафе. Схема фасада в осях 5-1,1-5
© Мастерская «ПРОХРАМ»
Храмовый комплекс в честь иконы Божией Матери «Знамение» в г. Краснодар ЖК «Первое место». Павильон-кафе. Схема плана 1 этажа
© Мастерская «ПРОХРАМ»
Храмовый комплекс в честь иконы Божией Матери «Знамение» в г. Краснодар ЖК «Первое место». Павильон-кафе. Схема разреза 1-1, 2-2
© Мастерская «ПРОХРАМ»
Архитекторы – партнеры Архи.ру:
Проект из каталога (случайный выбор)
Постройки и проекты (новые записи):
Новости российской архитектуры:
21.10.2025
Кто в Сити, кто в горы?
Сергей Скуратов21.10.2025
На династической тропе
Сергей Никешкин20.10.2025
Крылья Маяковского
Алексей Гуров20.10.2025