RSS
Meditation House
© Babayants Architects

Meditation House

информация:

Россия

авторский коллектив

Архитектор проекта: Артем Бабаянц

Meditation House
© Babayants Architects
Meditation House
© Babayants Architects

история проекта:

К команде Babayants Architects обратилась молодая пара с ребенком, которая нашла участок в Подмосковье, покоривших их своим расположением. Рядом с территорией находится густой взрослый хвойный лес. Идея проекта дома с большим объемом остекление, раскрывающимся на лес, родилась сразу.

Заказчикам хотелось, чтобы их дом стал небольшим и уютным местом силы. Современные лаконичные архитектурные решения, продуманная эргономика и функциональность пространства, которая сохраняет объемы и простор, были приоритетными пожеланиями от них.

описание:

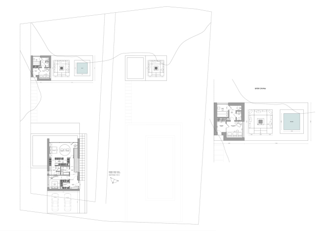
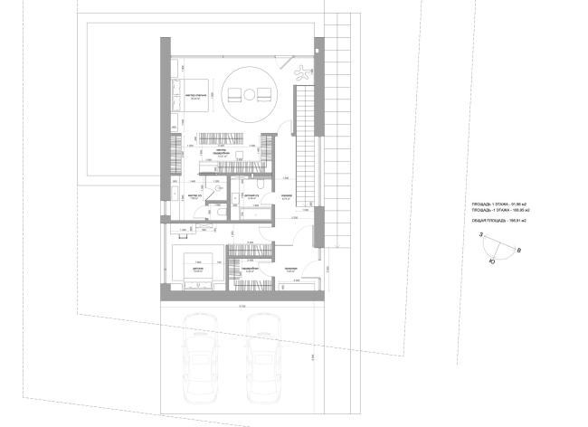
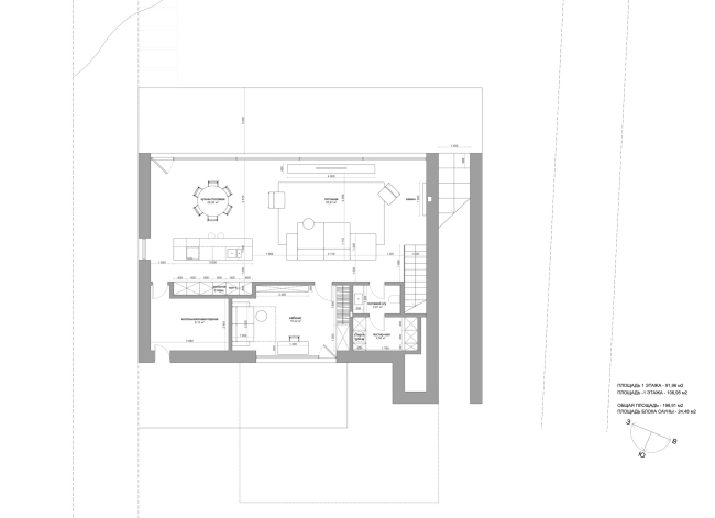
Загородный дом, архитектура которого, гармонично интегрирована в сложный активный ландшафт. При входе на территорию мы попадаем на парковочную площадку с навесом, которая находится на одной высоте с верхним уровнем дома. Здесь, на первом этаже расположен мастер и детский блок. Внутренняя и верхняя лестница ведут на нижний уровень, -1 этаж с общей зоной, кабинетом и выходом на террасу. Через террасу раскрывается вид на каскадный участок, который завершается лаунж зоной с декоративным бассейном и баней, спроектированной в единой минималистской эстетике с архитектурой дома.

Сам участок очень сложный: он имеет большой перепад рельефа. Одним из архитектурно-художественных элементов стала система лестниц. Внешняя лестница, примыкающая к фасаду здания и при этом являющаяся частью архитектурного комплекса, вызывает ассоциацию «пути». Для архитектора было важно спроектировать минималистичный современный дизайн, сохранив чистоту и лаконичность линий на активном рельефе. Дом органично вписан в природу, но при этом не сливается с ней, а выстраивает выразительные монолитные формы на фоне густого леса.
 
Конструктив дома представляет собой два блока, которые обрамлены дополнительными объемами. В одном из углублений, естественно возникшем на каскаде, мы спроектировали японский сад камней для медитаций, из которого и родилось название проекта. В него можно попасть через кабинет заказчика, который мечтал об уединенном месте, где можно поразмышлять, созерцая на природу.
 
Нам удалось создать цельную лиричную историю, которая гармонично развивается во всех объемах и деталях, даже в отражении воды в декоративном бассейне.  
 
Meditation House
© Babayants Architects
Meditation House
© Babayants Architects
Meditation House
© Babayants Architects
Meditation House
© Babayants Architects
Meditation House
© Babayants Architects
Meditation House
© Babayants Architects
Meditation House
© Babayants Architects
Meditation House
© Babayants Architects
Meditation House
© Babayants Architects
Meditation House
© Babayants Architects
Meditation House
© Babayants Architects
Meditation House
© Babayants Architects
Meditation House
© Babayants Architects
Meditation House
© Babayants Architects
Meditation House
© Babayants Architects
Meditation House
© Babayants Architects
Meditation House
© Babayants Architects
Meditation House
© Babayants Architects
Meditation House
© Babayants Architects
Meditation House
© Babayants Architects
Meditation House
© Babayants Architects
Meditation House
© Babayants Architects
Meditation House
© Babayants Architects
Meditation House
© Babayants Architects
Meditation House
© Babayants Architects
Meditation House
© Babayants Architects
Meditation House
© Babayants Architects
Meditation House
© Babayants Architects
Meditation House
© Babayants Architects
Meditation House
© Babayants Architects

Архитекторы – партнеры Архи.ру:

  • Сергей Труханов
  • Юлия Тряскина
  • Никита Явейн
  • Андрей Гнездилов
  • Дмитрий Остроумов
  • Григорий Мустафин
  • Александр Асадов
  • Энди Сноу
  • Наталия Шилова
  • Дмитрий Сухов
  • Николай Переслегин
  • Мария Ахременкова
  • Юлиана Княжевская
  • Раис Баишев
  • Сергей Кузнецов
  • Евгений Новосадюк
  • Даниил Лоренц
  • Дмитрий Ликин
  • Зураб Басария
  • Игорь Шварцман
  • Антон Надточий
  • Николай Кикава
  • Екатерина Кузнецова
  • Виталий Лутц
  • Олег Шапиро
  • Всеволод Медведев
  • Алексей Орлов
  • Олег Мединский
  • Александр Самарин
  • Наталья Сидорова
  • Сергей Чобан
  • Степан Липгарт
  • Константин Ходнев
  • Анастасия Абашева
  • Евгений Подгорнов
  • Валерий Каняшин
  • Марина Егорова
  • Александр Скокан
  • Александра Кузьмина
  • Борис Воскобойников
  • Андрей Михайлов
  • Юлия Солдатенкова
  • Сергей Никешкин
  • Полина Воеводина
  • Юлий Борисов
  • Иван Кожин
  • Владислав Андреев
  • Игорь Членов
  • Андрей Асадов
  • Вера Бутко
  • Владимир Плоткин
  • Илья Машков
  • Елена Пучкова
  • Павел Андреев
  • Ростислав Цайзер
  • Татьяна Зульхарнеева
  • Андрей Романов
  • Ерлан Бекмухамедов
  • Евгений Зеленов
  • Станислав Белых
  • Василий Крапивин
  • Михаил Канунников
  • Григориос Гавалидис
  • Михаил Давыдов
  • Георгий Трофимов
  • Александр Котенков
  • Сергей Скуратов
  • Сергей Переслегин
  • Дмитрий Буш
  • Антон Яр-Скрябин
  • Тимур Абдуллаев
  • Екатерина Абдуллаева
  • Маргарита Авдышева
  • Левон Айрапетов
  • Александр Аношкин
  • Алексей Афоничкин
  • Владислав Бек-Булатов
  • Антон Белов
  • Татьяна Бузулукова
  • Петр Васильев
  • Данило Вукосавлевич
  • Алина Георгиевская
  • Павел Гордеев
  • Илья Гринберг
  • Никита Демидов
  • Никита Дергунов
  • Наталья Жилкина
  • Алексей Зародов
  • Екатерина Зырина
  • Алексей Ильин
  • Дарья Ильина
  • Олег Карлсон
  • Алексей Кибкало
  • Денис Кувшинников
  • Анна Куликова
  • Алексей Курков
  • Данил Куров
  • Мария Кутай
  • Евгений Кутай
  • Иван Кычкин
  • Антон Ладыгин
  • Дмитрий Лапин
  • Илья Левянт
  • Катерина Левянт
  • Борис Левянт
  • Валерий Лукомский
  • Антон Лукомский
  • Екатерина Ляпунова
  • Иса Магомедов
  • Сергей Марков
  • Елена Мерцалова
  • Николай Миловидов
  • Станислав Михаловский
  • Сергей Мичурин
  • Олеся Могилевская
  • Филипп Никандров
  • Мария Николаева
  • Дмитрий Овчаров
  • Сергей Пергаев
  • Виктор Перов
  • Алексей Полищук
  • Роман Пономарёв
  • Валерия Преображенская
  • Виктория Раубо
  • Василий Рыбаков
  • Николай Рыбаков
  • Мария Салех
  • Александр Стариков
  • Илья Уткин
  • Елисей Чакан
  • Бориша Чорович
  • Олег Шурыгин
  • Дмитрий Шурыгин

Проект из каталога (случайный выбор)

Офисный комплекс «Фили-2»
Борис Левянт, Борис Стучебрюков, 2007
Офисный комплекс «Фили-2»

Постройки и проекты (новые записи):

  • Деловое пространство «ПЛЭЙН»
  • Porta
  • Детский сад на 200 мест в Жилино-1
  • Архитектурная концепция кластера Ломоносов-2
  • Клубный дом в 1-м Казачьем переулке
  • Частный дом в Ленинградской области
  • IT-кластер TravelLine в Йошкар-Оле
  • Гостиничный комплекс Cosmos Selection Derbent 5
  • Офис компании АльфаСтрахование

Новости российской архитектуры:

Курган памяти
08.05.2026

Курган памяти

Никита Явейн
Баня по-царски
07.05.2026

Баня по-царски

Ольга Смоленская
«Заря» над волнами
07.05.2026

«Заря» над волнами

Дарья Виноградова
Белый конгломерат
07.05.2026

Белый конгломерат

Александр Томашенко, Андрей Горелов, Василий Сошников, Иван Колманок, Николай Фугаров, Владимир Плоткин
Между фантазией и реальностью: ПАСП & РОСТ
06.05.2026

Между фантазией и реальностью: ПАСП & РОСТ

Андрей Тютерев, Владимир Плоткин