ЖК Квартал Kontinent. Общий вид c высоты птичьего полета
Фотография © sp architect
ЖК Квартал Kontinent
информация:
-
статус
реализовано -
даты
08.2019 — 10.2020 / 10.2020 — 11.2023 -
место
Пенза ул. Мира -
координаты
53.187341, 44.974106 -
функция
Жилой / жилой комплекс -
теги
send.project -
общая площадь
66 100 м2 -
площадь жилая
40 107 м2 -
этажность
12-17

Сергей Попрядухин
Sergey Popryaduhin / Россияsp architect
sp architect / РоссияAБ «Вещь!»
Россияавторский коллектив
Руководитель, гл. архитектор: Сергей Попрядухин
ГАП: Игорь Кудряшов
ГАП: Игорь Кудряшов
партнеры, заказчики, смежники
Проект благоустройства: совместно с АБ «Вещь»
Проектная и Рабочая Документация: совместно с РисанПроект
Заказчик: строительная Группа «Рисан»
Проектная и Рабочая Документация: совместно с РисанПроект
Заказчик: строительная Группа «Рисан»
ЖК Квартал Kontinent. Общий вид c гостевой парковки
Фотография © sp architect
ЖК Квартал Kontinent. Общий вид двора
Фотография © sp architect
описание:
Расположение:
Участок стр-ва представляет собой сложный градостроительный клин.
На востоке он граничит с новыми 17-ти эт. жилыми домами ЖК «Фаворит», этого же застройщика. А в западной части, ограничен старыми 5-ти эт. жилыми домами.
Существующая застройка образует непрямую линию, формирующую ул. Мира, которую необходимо снивелировать фронтом нашего объекта.
Конфигурация и размеры участка не позволяют разместить на нем классический жилой квартал, с традиционной изолированной дворовой территорией. Кроме того, участок расположен на холме и отлично просматривается из многих точек города, что формирует особые требования к силуэту будущего объекта.
Архитектура:
Застройка представлена двумя типологиями:
Четыре 17-ти эт. «Башни» и две 12-ти эт. «Скобы»
Две 17-ти этажные башни размещены отдельно стоящими, в западной части участка.
2 остальных строения представляют собой композицию: башня+скоба, объединенную общим стилобатом.
Разница между типологиями подчеркнута различным «архитектурным каркасом» фасадов. Так Башня, в противовес Скобе, вытянута вертикальным ритмом каркаса и имеет другое венчание.
Кроме того, чтобы усилить контраст между типологиями и снивелировать линию застройки вдоль ул. мира, Скоба -более вытянутая в плане и нависает над стилобатом, образуя консоль.
Лаконичная архитектура, призвана сгладить высокую плотность застройки и облегчить визуальное восприятие объекта.
Благодаря рассредоточению башен на участке и их различной высоте, объект получил интересный и узнаваемый силуэт, который просматривается из многих точек города.
Кроме того, такое расположение строений позволило создать комфортный двор, который в течение всего дня, частично или полностью освещен солнцем.
Фасады объекта, отображают суть его внутреннего наполнения. Так, ритм каркаса Башен подчеркивает именно те этажи, где происходит смена планировок: стандартные планировки Low Flat сменяются, начиная с 12-го этажа, квартирами увеличенной площади – High Flat. А последний этаж башен, представлен Sky Flat – квартирами с увеличенными окнами и высотой потолка 3,2 м.
Отделка фасадов выполнена из композитных панелей, в системе вентилируемого фасада. Стойкий к воздействию природных явлений материал отделки, а также декоративные корзины для кондиционеров, предусмотренные проектом, позволят фасадам оставаться неизменными в течение долгого времени.
Благоустройство:
Двор без автомобилей и сквозные подъезды, расположенные на уровне земли, позволяют территории ЖК соответствовать принципам доступной и безопасной среды. Авторское благоустройство, разработанное в привязке к имени объекта, раскрывает тему континента, как многообразия ландшафтов. Двор состоит из 5-ти оформленных тематических зон, адресованных различным группам пользователей. Центром композиции двора является интерактивный арт-объект «Голоса континентов».
Интерьеры:
Концепция оформления интерьеров лобби развивает тему континентов:
Застройка сформирована 6-ю объемами, архитектура которых попарно повторяется.
Для достижения идентичности, МОПы башен необходимо персонифицировать.
Принимая во внимание имя объекта, а также тот факт, что расположение башен на участке созвучно расположению континентов на географической карте мира, родилась идея оформить каждое лобби в уникальной стилистике, присущей той или иной части света.
Так появились МОПы Африки и Австралии; Латинской Америки; Северной Америки; Европы и Азии
Участок стр-ва представляет собой сложный градостроительный клин.
На востоке он граничит с новыми 17-ти эт. жилыми домами ЖК «Фаворит», этого же застройщика. А в западной части, ограничен старыми 5-ти эт. жилыми домами.
Существующая застройка образует непрямую линию, формирующую ул. Мира, которую необходимо снивелировать фронтом нашего объекта.
Конфигурация и размеры участка не позволяют разместить на нем классический жилой квартал, с традиционной изолированной дворовой территорией. Кроме того, участок расположен на холме и отлично просматривается из многих точек города, что формирует особые требования к силуэту будущего объекта.
Архитектура:
Застройка представлена двумя типологиями:
Четыре 17-ти эт. «Башни» и две 12-ти эт. «Скобы»
Две 17-ти этажные башни размещены отдельно стоящими, в западной части участка.
2 остальных строения представляют собой композицию: башня+скоба, объединенную общим стилобатом.
Разница между типологиями подчеркнута различным «архитектурным каркасом» фасадов. Так Башня, в противовес Скобе, вытянута вертикальным ритмом каркаса и имеет другое венчание.
Кроме того, чтобы усилить контраст между типологиями и снивелировать линию застройки вдоль ул. мира, Скоба -более вытянутая в плане и нависает над стилобатом, образуя консоль.
Лаконичная архитектура, призвана сгладить высокую плотность застройки и облегчить визуальное восприятие объекта.
Благодаря рассредоточению башен на участке и их различной высоте, объект получил интересный и узнаваемый силуэт, который просматривается из многих точек города.
Кроме того, такое расположение строений позволило создать комфортный двор, который в течение всего дня, частично или полностью освещен солнцем.
Фасады объекта, отображают суть его внутреннего наполнения. Так, ритм каркаса Башен подчеркивает именно те этажи, где происходит смена планировок: стандартные планировки Low Flat сменяются, начиная с 12-го этажа, квартирами увеличенной площади – High Flat. А последний этаж башен, представлен Sky Flat – квартирами с увеличенными окнами и высотой потолка 3,2 м.
Отделка фасадов выполнена из композитных панелей, в системе вентилируемого фасада. Стойкий к воздействию природных явлений материал отделки, а также декоративные корзины для кондиционеров, предусмотренные проектом, позволят фасадам оставаться неизменными в течение долгого времени.
Благоустройство:
Двор без автомобилей и сквозные подъезды, расположенные на уровне земли, позволяют территории ЖК соответствовать принципам доступной и безопасной среды. Авторское благоустройство, разработанное в привязке к имени объекта, раскрывает тему континента, как многообразия ландшафтов. Двор состоит из 5-ти оформленных тематических зон, адресованных различным группам пользователей. Центром композиции двора является интерактивный арт-объект «Голоса континентов».
Интерьеры:
Концепция оформления интерьеров лобби развивает тему континентов:
Застройка сформирована 6-ю объемами, архитектура которых попарно повторяется.
Для достижения идентичности, МОПы башен необходимо персонифицировать.
Принимая во внимание имя объекта, а также тот факт, что расположение башен на участке созвучно расположению континентов на географической карте мира, родилась идея оформить каждое лобби в уникальной стилистике, присущей той или иной части света.
Так появились МОПы Африки и Австралии; Латинской Америки; Северной Америки; Европы и Азии
ЖК Квартал Kontinent. Общий вид двора
Фотография © sp architect
ЖК Квартал Kontinent. Арт-объект голоса континентов
Фотография © sp architect
ЖК Квартал Kontinent
Фотография © sp architect
ЖК Квартал Kontinent
Фотография © sp architect
ЖК Квартал Kontinent. Подземная автостоянка
Фотография © sp architect
ЖК Квартал Kontinent. Ожидание и реальность
Фотография © sp architect
ЖК Квартал Kontinent
Фотография © sp architect
ЖК Квартал Kontinent
Фотография © sp architect
ЖК Квартал Kontinent
Фотография © sp architect
ЖК Квартал Kontinent. МОП башен Африка и Австралия
Фотография © sp architect
ЖК Квартал Kontinent. МОП башен Африка и Австралия
Фотография © sp architect
ЖК Квартал Kontinent. МОП башен Африка и Австралия
Фотография © sp architect
ЖК Квартал Kontinent. МОП башен Африка и Австралия
Фотография © sp architect
ЖК Квартал Kontinent. МОП башни Латинская америка
Фотография © sp architect
ЖК Квартал Kontinent. МОП башни Северная америка
Фотография © sp architect
ЖК Квартал Kontinent. МОП башен Европа и Азия
Фотография © sp architect
ЖК Квартал Kontinent. МОП башен Европа и Азия
Фотография © sp architect
ЖК Квартал Kontinent. МОП башен Европа и Азия
Фотография © sp architect
ЖК Квартал Kontinent. МОП башен Европа и Азия
Фотография © sp architect
ЖК Квартал Kontinent. Общий вид c ул. Мира
© sp architect
ЖК Квартал Kontinent
© sp architect
ЖК Квартал Kontinent. Вид с высоты птичьего полета
© sp architect
ЖК Квартал Kontinent. Благоустройство
© sp architect
ЖК Квартал Kontinent. Благоустройство
© sp architect
ЖК Квартал Kontinent. Благоустройство
© sp architect
ЖК Квартал Kontinent
© sp architect
ЖК Квартал Kontinent. Расположение и окружение
© sp architect
ЖК Квартал Kontinent. Общий вид c ул. Мира
© sp architect
ЖК Квартал Kontinent. Общий вид c территории парка Спутник
© sp architect
ЖК Квартал Kontinent. Встроенные помещения
© sp architect
ЖК Квартал Kontinent. Торговая галерея вдоль ул. Мира
© sp architect
ЖК Квартал Kontinent. Общий вид города из окон 12 этажа
© sp architect
ЖК Квартал Kontinent. Схема Генплана
© sp architect
ЖК Квартал Kontinent. Эскиз | Варианты освоения участка
© sp architect
ЖК Квартал Kontinent. Эскиз | Концепция благоустройства
© sp architect
ЖК Квартал Kontinent. Анализ освещенности жилого двора
© sp architect
ЖК Квартал Kontinent. Схема очередности строительства
© sp architect
ЖК Квартал Kontinent. Взрыв-схема | Дом N3
© sp architect
ЖК Квартал Kontinent
© sp architect
ЖК Квартал Kontinent. Западный и южный фасады | Дом N1
© sp architect
ЖК Квартал Kontinent. Восточный и северный фасады | Дом N1
© sp architect
ЖК Квартал Kontinent. Восточный и северный фасады | Дом N2
© sp architect
ЖК Квартал Kontinent. Западный и южный фасады | Дом N2
© sp architect
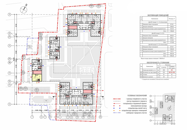
ЖК Квартал Kontinent. План 1 эт. | Схема размещения встроек
© sp architect
ЖК Квартал Kontinent. План подземного паркинга
© sp architect
ЖК Квартал Kontinent. Интерьеры | Легенда
© sp architect
ЖК Квартал Kontinent. План 3-12 этажа
© sp architect
ЖК Квартал Kontinent. План 13-17 этажа
© sp architect
ЖК Квартал Kontinent. Типология башня | План 3-12 этажей
© sp architect
ЖК Квартал Kontinent. Типология башня | План 13-17 этажей
© sp architect
ЖК Квартал Kontinent. Типология скоба | План 7-12 этажей
© sp architect
ЖК Квартал Kontinent. Схема разреза
© sp architect
Архитекторы – партнеры Архи.ру:
Проект из каталога (случайный выбор)
Постройки и проекты (новые записи):
Новости российской архитектуры:
17.10.2025
Под небом голубым
Никита Явейн16.10.2025
Русский Север и Арктика: четыре проекта
Григорий Соломин16.10.2025
Жила, жива и будет жить
15.10.2025