RSS
Дом Большое Гнездо
Фотография © Сергей Ананьев, стилист: Наталья Онуфрейчук / предоставлена Quatrobase

Дом Большое Гнездо

информация:

  • статус
    реализовано
  • даты
    10.2019 — 12.2020 / 07.2020 — 08.2021
  • region=Московская Область area=Чеховский район address= country_t=Россия city_t=
    место
    Московская Область Чеховский район
  • функция
    Жилой / индивидуальный жилой дом
  • теги
    send.project
  • площадь участка
    0,21 га
  • общая площадь
    140 м2
Россия

авторский коллектив

Илья Хомяков, Света Хомякова 

Отделка интерьеров: Роман Виталюев
Столярные изделия: Александр Новиков

партнеры, заказчики, смежники

​Строительство: Интелл Груп

награды:

    10 лучших домов 2022 по версии Elle Decoration.
    Специальный приз конкурса VI Международный конкурс «Дом на Брестской приглашает: Архитектура, Дизайн».
    Шорт лист ADD Awards 2024
Дом Большое Гнездо
Фотография © Сергей Ананьев, стилист: Наталья Онуфрейчук / предоставлена Quatrobase

Архи.ру об этом объекте:

14.04.2025

Убежище архитектора

Собственный дом архитекторов студии Quatrobase в Московской области изобретателен и включает множество нестандартных решений: двусветную гостиную при каркасной технологии строительства, темный фасад и контрастные окна, а также целый ряд интерьерных и технических находок.

Описание предоставлено архитекторами Работа с архитектурой и конфигурацией пространства дает большую свободу в создании интерьера. Проект этого дома определили такие элементы интерьера как второй свет в гостиной и акцентный камин. Дом каркасный и ...   читать дальше
Дом Большое Гнездо
Фотография © Сергей Ананьев, стилист: Наталья Онуфрейчук / предоставлена Quatrobase

история проекта:

Нам давно хотелось сделать всеобъемлющий проект, так как интерьер на наш взгляд связан неразрывно с архитектурой. Работа с конфигурацией пространства, архитектурой, дает удивительную свободу в создании интерьера.

Важными элементами для нас были: второй свет в гостиной и обзорный камин. Зачем строить низкие комнаты, когда можно строить высокие? – нам очень хотелось иметь вдохновляющее пространство, поэтому при проектировании мы отталкивались от двусветной гостиной. Камин – личная страсть Ильи, возможность проводить зимние вечера у огня стала решающим фактором в постройке дома.

Также практически вся мебель сделана по нашим эскизам и придумана специально для этого проекта. Многие элементы, как лестница со встроенной системой хранения или большая рабочая столешница в мастер-спальне являются продолжением архитектуры и были придуманы в моменте создания проекта дома.

описание:

Этот дом стал воплощением идеи о гармоничном сочетании архитектуры и интерьера. Отправной точкой проекта стали двусветная гостиная и обзорный камин, которые формируют пространство, наполненное светом и воздухом. Высокие потолки создают ощущение простора, а камин не только обеспечивает комфорт в зимние вечера, но и становится композиционным центром гостиной.

Практически вся мебель разработана по индивидуальным эскизам специально для этого проекта. Лестница со встроенной системой хранения, большая рабочая столешница в мастер-спальне – эти элементы были задуманы как естественное продолжение архитектуры дома.

Этот каркасный дом спроектирован для круглогодичного проживания: стены утеплены до 250 мм, крыша – до 500 мм. Поиск подрядчика занял время: не все строительные компании были готовы работать с двусветным пространством в каркасной конструкции из-за технических сложностей. Однако это было принципиальное решение авторов проекта, как и повышенная звукоизоляция внутренних стен, реализованная с применением специальных материалов. В итоге удалось найти подрядчика.

Система отопления включает электрический котел мощностью 9 кВт и эффективный камин, что позволяет поддерживать комфортную температуру даже в самые суровые зимы. Теплые полы на первом этаже обеспечивают дополнительный уют.

Первоначально дом задумывался как загородный вариант для выходных, однако в процессе строительства планы изменились – теперь здесь живет вся семья архитекторов, включая двух котов, для которых предусмотрена автоматическая дверка в прихожей. Уютный чердак с мансардным окном стал любимым местом для детей, а лестница с подсветкой – настоящим хитом среди гостей.

Фасады выполнены в насыщенном темном цвете, что придает дому выразительность. Лимонные оконные рамы создают яркий контраст, подчеркивая архитектурные линии. Такое решение не только выделяет здание среди окружающих построек, но и делает его легко узнаваемым.

Главный фасад ориентирован на юго-восток: утреннее солнце заливает веранду светом, а после обеда она остается в легкой тени, создавая комфортную атмосферу. Перед террасой расположена ровная площадка для игр, а зимой здесь наряжается живая елка. Внутри большого панорамного остекления скрывается раздвижной экран домашнего кинотеатра, который в развернутом виде закрывает нижние окна, а проектор спрятан в верхних шкафчиках кухни.

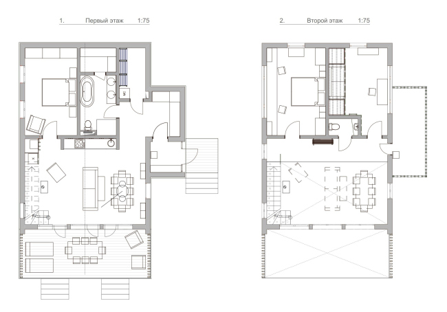
Общая площадь дома составляет 140 кв. м, из них 80 кв. м – на первом этаже и 60 – на втором. В планировке предусмотрены три спальни, два санузла, просторная кухня-гостиная с двусветным пространством, сауна и бойлерная.

Важная тема интерьера – использование привычных дачных материалов в новом прочтении, создание современной загородной эстетики с помощью доступных средств. Простые серийные шкафы стали холстом для экспериментов с УФ-печатью: в мастер-спальне на фасадах появился камуфляжный паттерн, разработанный для одного из проектов Хомяковых, но не нашедший воплощения, а в спальне родителей – увеличенная графика из коллекции музея Метрополитен. В гостиной стены украшают детские рисунки дочки архитекторов, перенесенные на фасады мебели.

Одним из ключевых декоративных элементов стали цилиндры на потолке кухни – ритмичный мотив, перекликающийся с отверстиями в ограждении второго света. Эти цилиндры изготовлены из упаковочного картона, который собирался в течение нескольких лет.

Интерьер сочетает функциональность и креативность: раздвижные двери позволяют легко перемещать обеденный стол на террасу, люстра в гостиной декорирована стабилизированными растениями, а серийные кухонные фасады перекрашены в лососевый оттенок в столярной мастерской.

Проект удалось реализовать с разумным бюджетом благодаря продуманному подходу: отказу от перфекционизма, вниманию к концепции и нестандартному использованию материалов. Например, пол на первом этаже выполнен из полусухой стяжки, затонированной разведенной краской и покрытой эпоксидной смолой.

Неотъемлемой частью проекта стало искусство: садовые скульптуры из ржавого железа, объемное панно в детской, «надутые» капли из стали в гостиной, портрет Давида из винных пробок в санузле. В интерьере также представлена живопись из личной коллекции и авторские работы, некоторые из которых ожидали своего часа несколько лет.

Ландшафт задумывался как естественный: разнотравные лужайки, клумбы с белыми, фиолетовыми и желтыми акцентами многолетних цветов, «дикие» деревья и кустарники. Огород с дизайнерской теплицей расположен в дальнем углу участка, а две крупные стальные скульптуры создают диалог форм, встречая гостей у въезда и завершая композицию на северной стороне.

Этот дом – не просто архитектурный объект, а пространство, в котором каждая деталь продумана и имеет смысл. Он отражает идеи авторов, их творческий подход и стремление к уникальности, оставаясь при этом уютным семейным домом.

Дом Большое Гнездо
Фотография © Сергей Ананьев, стилист: Наталья Онуфрейчук / предоставлена Quatrobase
Дом Большое Гнездо
Фотография © Сергей Ананьев, стилист: Наталья Онуфрейчук / предоставлена Quatrobase
Дом Большое Гнездо
Фотография © Сергей Ананьев, стилист: Наталья Онуфрейчук / предоставлена Quatrobase
Дом Большое Гнездо
Фотография © Сергей Ананьев, стилист: Наталья Онуфрейчук / предоставлена Quatrobase
Дом Большое Гнездо
Фотография © Сергей Ананьев, стилист: Наталья Онуфрейчук / предоставлена Quatrobase
Дом Большое Гнездо
Фотография © Сергей Ананьев, стилист: Наталья Онуфрейчук / предоставлена Quatrobase
Дом Большое Гнездо
Фотография © Сергей Ананьев, стилист: Наталья Онуфрейчук / предоставлена Quatrobase
Дом Большое Гнездо
Фотография © Сергей Ананьев, стилист: Наталья Онуфрейчук / предоставлена Quatrobase
Дом Большое Гнездо
Фотография © Сергей Ананьев, стилист: Наталья Онуфрейчук / предоставлена Quatrobase
Дом Большое Гнездо
Фотография © Сергей Ананьев, стилист: Наталья Онуфрейчук / предоставлена Quatrobase
Дом Большое Гнездо
Фотография © Сергей Ананьев, стилист: Наталья Онуфрейчук / предоставлена Quatrobase
Дом Большое Гнездо
Фотография © Сергей Ананьев, стилист: Наталья Онуфрейчук / предоставлена Quatrobase
Дом Большое Гнездо
Фотография © Сергей Ананьев, стилист: Наталья Онуфрейчук / предоставлена Quatrobase
Дом Большое Гнездо
Фотография © Сергей Ананьев, стилист: Наталья Онуфрейчук / предоставлена Quatrobase
Дом Большое Гнездо
Фотография © Сергей Ананьев, стилист: Наталья Онуфрейчук / предоставлена Quatrobase
Дом Большое Гнездо
Фотография © Сергей Ананьев, стилист: Наталья Онуфрейчук / предоставлена Quatrobase
Дом Большое Гнездо
Фотография © Сергей Ананьев, стилист: Наталья Онуфрейчук / предоставлена Quatrobase
Дом Большое Гнездо
Фотография © Сергей Ананьев, стилист: Наталья Онуфрейчук / предоставлена Quatrobase
Дом Большое Гнездо
Фотография © Сергей Ананьев, стилист: Наталья Онуфрейчук / предоставлена Quatrobase
Дом Большое Гнездо
Фотография © Сергей Ананьев, стилист: Наталья Онуфрейчук / предоставлена Quatrobase
Дом Большое Гнездо
Фотография © Сергей Ананьев, стилист: Наталья Онуфрейчук / предоставлена Quatrobase
Дом Большое Гнездо
Фотография © Сергей Ананьев, стилист: Наталья Онуфрейчук / предоставлена Quatrobase
Дом Большое Гнездо
Фотография © Сергей Ананьев, стилист: Наталья Онуфрейчук / предоставлена Quatrobase
Дом Большое Гнездо
Фотография © Сергей Ананьев, стилист: Наталья Онуфрейчук / предоставлена Quatrobase
Дом Большое Гнездо
Фотография © Сергей Ананьев, стилист: Наталья Онуфрейчук / предоставлена Quatrobase
Дом Большое Гнездо
Фотография © Сергей Ананьев, стилист: Наталья Онуфрейчук / предоставлена Quatrobase
Дом Большое Гнездо
Фотография © Сергей Ананьев, стилист: Наталья Онуфрейчук / предоставлена Quatrobase
Дом Большое Гнездо
Фотография © Сергей Ананьев, стилист: Наталья Онуфрейчук / предоставлена Quatrobase
Дом Большое Гнездо
Фотография © Сергей Ананьев, стилист: Наталья Онуфрейчук / предоставлена Quatrobase
Дом Большое Гнездо
Фотография © Сергей Ананьев, стилист: Наталья Онуфрейчук / предоставлена Quatrobase
Дом Большое Гнездо
Фотография © Сергей Ананьев, стилист: Наталья Онуфрейчук / предоставлена Quatrobase
Дом Большое Гнездо
Фотография © Сергей Ананьев, стилист: Наталья Онуфрейчук / предоставлена Quatrobase
Дом Большое Гнездо
Фотография © Сергей Ананьев, стилист: Наталья Онуфрейчук / предоставлена Quatrobase
Дом Большое Гнездо
Фотография © Сергей Ананьев, стилист: Наталья Онуфрейчук / предоставлена Quatrobase
Дом Большое Гнездо
Фотография © Сергей Ананьев, стилист: Наталья Онуфрейчук / предоставлена Quatrobase
Дом Большое Гнездо
© Quatrobase

Архитекторы – партнеры Архи.ру:

  • Илья Машков
  • Раис Баишев
  • Татьяна Зульхарнеева
  • Дмитрий Ликин
  • Ерлан Бекмухамедов
  • Полина Воеводина
  • Андрей Романов
  • Антон Яр-Скрябин
  • Павел Андреев
  • Александра Кузьмина
  • Олег Мединский
  • Михаил Канунников
  • Василий Крапивин
  • Андрей Гнездилов
  • Владислав Андреев
  • Наталья Сидорова
  • Антон Надточий
  • Сергей Переслегин
  • Евгений Зеленов
  • Виталий Лутц
  • Александр Самарин
  • Ростислав Цайзер
  • Юлиана Княжевская
  • Николай Кикава
  • Зураб Басария
  • Юлий Борисов
  • Сергей Скуратов
  • Елена Пучкова
  • Владимир Плоткин
  • Никита Явейн
  • Анастасия Абашева
  • Андрей Михайлов
  • Николай Переслегин
  • Вера Бутко
  • Сергей Никешкин
  • Алексей Орлов
  • Энди Сноу
  • Константин Ходнев
  • Дмитрий Сухов
  • Григорий Мустафин
  • Иван Кожин
  • Игорь Шварцман
  • Дмитрий Остроумов
  • Евгений Новосадюк
  • Александр Скокан
  • Станислав Белых
  • Андрей Асадов
  • Игорь Членов
  • Юлия Солдатенкова
  • Сергей Чобан
  • Григориос Гавалидис
  • Евгений Подгорнов
  • Олег Шапиро
  • Михаил Давыдов
  • Екатерина Кузнецова
  • Наталия Шилова
  • Георгий Трофимов
  • Дмитрий Буш
  • Сергей Кузнецов
  • Борис Воскобойников
  • Валерий Каняшин
  • Марина Егорова
  • Всеволод Медведев
  • Александр Асадов
  • Юлия Тряскина
  • Степан Липгарт
  • Мария Ахременкова
  • Александр Котенков
  • Сергей Труханов
  • Даниил Лоренц
  • Тимур Абдуллаев
  • Екатерина Абдуллаева
  • Маргарита Авдышева
  • Левон Айрапетов
  • Александр Аношкин
  • Алексей Афоничкин
  • Владислав Бек-Булатов
  • Антон Белов
  • Татьяна Бузулукова
  • Петр Васильев
  • Данило Вукосавлевич
  • Алина Георгиевская
  • Павел Гордеев
  • Илья Гринберг
  • Никита Демидов
  • Никита Дергунов
  • Наталья Жилкина
  • Алексей Зародов
  • Екатерина Зырина
  • Алексей Ильин
  • Дарья Ильина
  • Олег Карлсон
  • Алексей Кибкало
  • Денис Кувшинников
  • Анна Куликова
  • Алексей Курков
  • Данил Куров
  • Мария Кутай
  • Евгений Кутай
  • Иван Кычкин
  • Антон Ладыгин
  • Дмитрий Лапин
  • Илья Левянт
  • Катерина Левянт
  • Борис Левянт
  • Валерий Лукомский
  • Антон Лукомский
  • Екатерина Ляпунова
  • Иса Магомедов
  • Сергей Марков
  • Елена Мерцалова
  • Николай Миловидов
  • Станислав Михаловский
  • Сергей Мичурин
  • Олеся Могилевская
  • Филипп Никандров
  • Мария Николаева
  • Дмитрий Овчаров
  • Сергей Пергаев
  • Виктор Перов
  • Алексей Полищук
  • Роман Пономарёв
  • Валерия Преображенская
  • Виктория Раубо
  • Василий Рыбаков
  • Николай Рыбаков
  • Мария Салех
  • Александр Стариков
  • Илья Уткин
  • Елисей Чакан
  • Бориша Чорович
  • Дмитрий Шурыгин
  • Олег Шурыгин

Проект из каталога (случайный выбор)

Торгово-развлекательный центр в городе Московский
Владимир Лабутин, Игорь Шварцман,
Торгово-развлекательный центр в городе Московский

Постройки и проекты (новые записи):

  • Гостиница в Чите
  • ЖК Квартал 64
  • Деловое пространство «ПЛЭЙН»
  • Конкурсный проект ФИЦ / ТПО «Резерв»
  • Porta
  • Детский сад на 200 мест в Жилино-1
  • Архитектурная концепция кластера Ломоносов-2
  • Клубный дом в 1-м Казачьем переулке
  • Частный дом в Ленинградской области

Новости российской архитектуры:

Сплав мировых культур
13.05.2026

Сплав мировых культур

Александр Салов, Татьяна Осецкая
КиноГолограмма
12.05.2026

КиноГолограмма

Николай Переслегин, Сергей Переслегин, Георгий Трофимов
Форма как метод: ТПО «Резерв»
12.05.2026

Форма как метод: ТПО «Резерв»

Владимир Плоткин
Консервация как комментарий
12.05.2026

Консервация как комментарий

Наринэ Тютчева