RSS
ЖК Крылья. Главный фасад
© Миторра

ЖК Крылья

информация:

  • статус
    в процессе реализации
  • даты
    07.2022 — 03.2023 / 03.2022
  • region=Тюменская область area= address=ул. Центральная country_t=Россия city_t=Горьковка
    место
    Горьковка Тюменская область ул. Центральная
  • координаты
    57.147544, 65.262892
  • функция
    Жилой / жилой комплекс
  • теги
    send.project
  • площадь участка
    7 га
  • площадь застройки
    10 150 м2
  • общая площадь
    60 997 м2
  • высота
    15
  • этажность
    4
Россия

авторский коллектив

Руководитель проекта: Игорь Герасимчук
ГИП: Алексей Кукушкин
Архитекторы: Дмитрий Кутузов, Екатерина Кононова, Илья Селиванов
Визуализация: Андрей Ихиныров
Главный конструктор: Дмитрий Кешишьян
Конструкторы: Анастасия Кременцова, Марина Лобанова 

Генеральный план: Анна Арыку  
Инженеры: Николай Самуйлов, Дмитрий Корнев, Алексей Карплюк, Иван Курков, Юрий Лунев 
BIM-менеджер: Евгений Кауров 

партнеры, заказчики, смежники

Заказчик: Паритет Девелопмент
ЖК Крылья
© Миторра
ЖК Крылья. Главный фасад. 1 корпус
© Миторра

история проекта:

Заказчик был в поисках проектировщика, готового реализовать проект в Тюменской области. После презентации реализованных проектов заказчик выбрал нашу компанию благодаря нешаблонным архитектурным решениям и команде специалистов, имеющих колоссальный опыт, в том числе в международных компаниях. Нормативная документация только предписывает, что можно сделать, а опыт показывает, как можно сделать качественно.

описание:

Вдохновляемся малоэтажным жилым комплексом «Крылья» в селе Горьковка Тюменской области от компании Миторра.

Проект жилого комплекса – это всегда синтез ряда задач и поиска исключительного решения. В Тюменской области, как и во многих других населенных пунктах России, так называемый «частный сектор» в настоящее время быстро заменяется на многоэтажное жилье. В подавляющем большинстве случаев это новое строительство – основываясь на приемах и нормах, унаследованных от советского микрорайона – не использует возможность создать живую городскую среду для человека. В этом проекте Миторра отходит от этого тренда.

При создании нового участка малоэтажной застройки самым главным было найти баланс между планировкой и открытыми пространствами, чтобы вдохновить своих обитателей на комфортную и современную жизнь. В рамках проекта реализован полный цикл работ, а именно три очереди строительства жилого комплекса, состоящего из нескольких корпусов. В состав первой очереди объекта входит три корпуса с общей дворовой территорией. Здание первого и второго корпуса со встроенными помещениями состоит из трех четырехэтажных жилых секций, здание третьего корпуса – из двух жилых секций. Все секции являются сблокированными и образуют полузамкнутый внутренний двор. Особенность жилого комплекса в том, что фасад каждой секции здания уникален, а общий ансамбль выдержан в едином норвежском стиле. Парковочные места вынесены за прогулочные пространства, а в местах пересечения пешеходного и транспортного потоков запроектированы приподнятые пешеходные переходы для повышения безопасности и комфорта передвижения.
ЖК Крылья. Входная группа. 1 корпус
© Миторра
ЖК Крылья. Внутренний двор
© Миторра
ЖК Крылья
© Миторра
ЖК Крылья
© Миторра
ЖК Крылья
© Миторра
ЖК Крылья
© Миторра
ЖК Крылья
© Миторра
ЖК Крылья
© Миторра
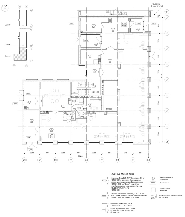
ЖК Крылья. Генплан. 1 очередь
© Миторра
ЖК Крылья. Генплан. 2 очередь
© Миторра
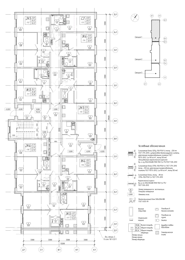
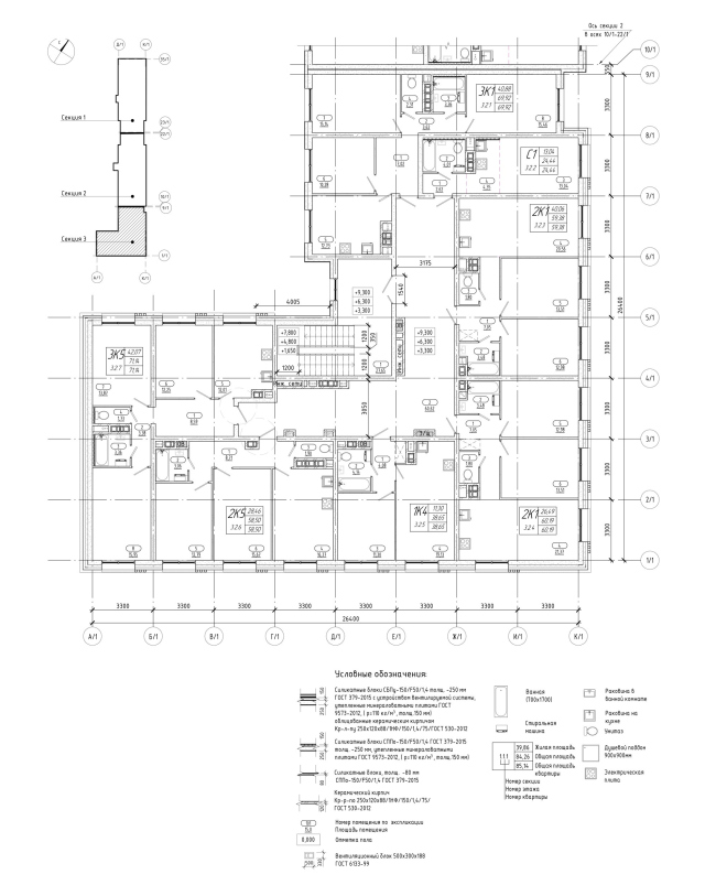
ЖК Крылья. 1 очередь строительства. Секция 1. План 1 этажа
© Миторра
ЖК Крылья. 1 очередь строительства. План 1 этажа. Секция 2
© Миторра
ЖК Крылья. 1 очередь строительства. Секция 3. План 1 этажа
© Миторра
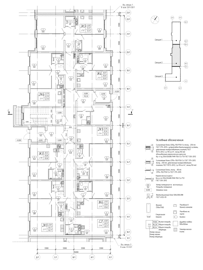
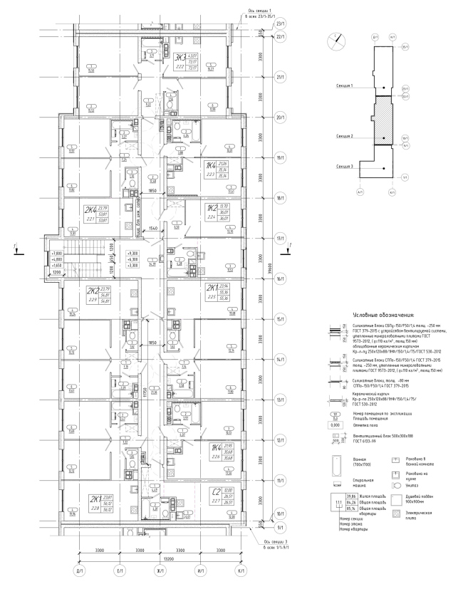
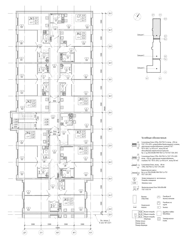
ЖК Крылья. 1 очередь строительства. Секция 1. План типового этажа
© Миторра
ЖК Крылья. 1 очередь строительства. Секция 2. План типового этажа
© Миторра
ЖК Крылья. 1 очередь строительства. Секция 3. План типового этажа
© Миторра
ЖК Крылья. 1 очередь строительства
© Миторра
ЖК Крылья. 1 очередь строительства
© Миторра
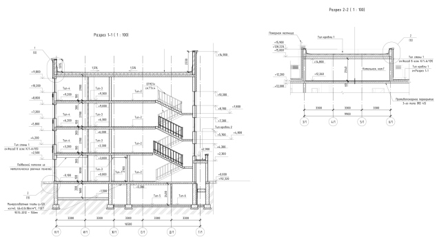
ЖК Крылья. 1 очередь строительства. Разрезы
© Миторра

Архитекторы – партнеры Архи.ру:

  • Евгений Зеленов
  • Сергей Скуратов
  • Татьяна Зульхарнеева
  • Сергей Труханов
  • Георгий Трофимов
  • Андрей Романов
  • Даниил Лоренц
  • Николай Кикава
  • Александра Кузьмина
  • Александр Асадов
  • Станислав Белых
  • Всеволод Медведев
  • Виталий Лутц
  • Александр Скокан
  • Андрей Гнездилов
  • Михаил Давыдов
  • Энди Сноу
  • Евгений Новосадюк
  • Сергей Кузнецов
  • Сергей Чобан
  • Юлий Борисов
  • Григорий Мустафин
  • Сергей Никешкин
  • Юлиана Княжевская
  • Дмитрий Ликин
  • Антон Надточий
  • Олег Шапиро
  • Елена Пучкова
  • Григориос Гавалидис
  • Екатерина Кузнецова
  • Борис Воскобойников
  • Евгений Подгорнов
  • Юлия Тряскина
  • Вера Бутко
  • Владимир Плоткин
  • Анастасия Абашева
  • Василий Крапивин
  • Владислав Андреев
  • Раис Баишев
  • Никита Явейн
  • Степан Липгарт
  • Полина Воеводина
  • Дмитрий Буш
  • Валерий Каняшин
  • Мария Ахременкова
  • Николай Переслегин
  • Олег Мединский
  • Константин Ходнев
  • Сергей Переслегин
  • Ерлан Бекмухамедов
  • Иван Кожин
  • Зураб Басария
  • Алексей Орлов
  • Игорь Членов
  • Дмитрий Сухов
  • Михаил Канунников
  • Андрей Михайлов
  • Наталья Сидорова
  • Наталия Шилова
  • Павел Андреев
  • Илья Машков
  • Александр Самарин
  • Ростислав Цайзер
  • Андрей Асадов
  • Игорь Шварцман
  • Александр Котенков
  • Юлия Солдатенкова
  • Антон Яр-Скрябин
  • Дмитрий Остроумов
  • Марина Егорова
  • Тимур Абдуллаев
  • Екатерина Абдуллаева
  • Маргарита Авдышева
  • Левон Айрапетов
  • Александр Аношкин
  • Алексей Афоничкин
  • Владислав Бек-Булатов
  • Антон Белов
  • Татьяна Бузулукова
  • Петр Васильев
  • Данило Вукосавлевич
  • Алина Георгиевская
  • Павел Гордеев
  • Илья Гринберг
  • Никита Демидов
  • Никита Дергунов
  • Наталья Жилкина
  • Алексей Зародов
  • Екатерина Зырина
  • Алексей Ильин
  • Дарья Ильина
  • Олег Карлсон
  • Алексей Кибкало
  • Денис Кувшинников
  • Анна Куликова
  • Алексей Курков
  • Данил Куров
  • Мария Кутай
  • Евгений Кутай
  • Иван Кычкин
  • Антон Ладыгин
  • Дмитрий Лапин
  • Илья Левянт
  • Катерина Левянт
  • Борис Левянт
  • Валерий Лукомский
  • Антон Лукомский
  • Екатерина Ляпунова
  • Иса Магомедов
  • Сергей Марков
  • Елена Мерцалова
  • Николай Миловидов
  • Станислав Михаловский
  • Сергей Мичурин
  • Олеся Могилевская
  • Филипп Никандров
  • Мария Николаева
  • Дмитрий Овчаров
  • Сергей Пергаев
  • Виктор Перов
  • Алексей Полищук
  • Роман Пономарёв
  • Валерия Преображенская
  • Виктория Раубо
  • Василий Рыбаков
  • Николай Рыбаков
  • Мария Салех
  • Александр Стариков
  • Илья Уткин
  • Елисей Чакан
  • Бориша Чорович
  • Олег Шурыгин
  • Дмитрий Шурыгин

Проект из каталога (случайный выбор)

Постройки и проекты (новые записи):

  • Архитектурная концепция кластера Ломоносов-2
  • Клубный дом в 1-м Казачьем переулке
  • Частный дом в Ленинградской области
  • IT-кластер TravelLine в Йошкар-Оле
  • Гостиничный комплекс Cosmos Selection Derbent 5
  • Офис компании АльфаСтрахование
  • MIDITI
  • Офис компании Kept
  • Дом Спорта

Новости российской архитектуры:

Северный ветер
27.04.2026

Северный ветер

Дарья Белецкая
Высший уровень
24.04.2026

Высший уровень

Борис Воскобойников, Мария Ахременкова
Белые террасы в зеленом предгорье
24.04.2026

Белые террасы в зеленом предгорье

Маргарита Авдышева